Группа Д88
Изменение № 3 ГОСТ 18477-79 Контейнеры универсальные. Типы, основные параметры и размеры
Утверждено и введено в действие Постановлением Государственного комитета СССР по стандартам от 24.02.88 № 345
Дата введения 01.07.88
Вводную часть после слов «и автомобильным транспортом» изложить в новой редакции: «включая крупнотоннажные контейнеры кодов 00-04, 10, 11, 13, 50-53 по ГОСТ 25290-82, а также универсальные малотоннажные автомобильные контейнеры для прямых перевозок указанных грузов на автомобильном транспорте.
Стандарт не распространяется на универсальные крупнотоннажные контейнеры других кодов, на универсальные контейнеры, обладающие повышенными по сравнению с устанавливаемыми настоящим стандартом размерами и массой брутто, на универсальные авиационные и специализированные (индивидуальные и групповые) контейнеры.
В стандарте полностью учтены требования международных стандартов ИСО 668, ИСО 1161, ИСО 1496/1.
Стандарт полностью соответствует СТ СЭВ 772-83.
Пункт 1.1. Заменить значение: 2,5 на 3 (2 раза).
Пункт 1.2. Таблицу 1 изложить в новой редакции:
|
Тип контейнера |
Обозначение типоразмера |
Масса брутто, т |
Внутренний объем, м3, не менее |
|
|
Rном |
Rмакс |
|||
|
Крупнотоннажные |
|
|
|
|
|
1АА |
30 |
30,48 |
65,6 |
|
|
1А |
30 |
30,48 |
61,3 |
|
|
1АХ |
30 |
30,48 |
* |
|
|
1ВВ** |
25 |
25,40 |
48,9 |
|
|
1В** |
25 |
25,40 |
45,7 |
|
|
1ВХ** |
25 |
25,40 |
* |
|
|
1СС |
24 |
24,00 |
32,1 |
|
|
1C |
24 |
24,00 |
30,0 |
|
|
1СХ |
24 |
24,00 |
* |
|
|
1D |
10 |
10,16 |
14,3 |
|
|
1DX |
10 |
10,16 |
* |
|
|
Среднетоннажные |
|
|
|
|
|
|
УУКП-5(6) |
5 |
6,00*** |
11,3 |
|
УУКП-5 |
5 |
5,0 |
11,3 |
|
|
УУК-5(6) |
5 |
6,00*** |
10,4 |
|
|
УУК-5 |
5 |
5,00 |
10,4 |
|
|
УУК-5У |
5 |
5,00 |
5,1 |
|
|
УУКП-3(5) |
3 |
5,00 |
5,7 |
|
|
УУК-3(5) |
3 |
5,00 |
5,1 |
|
|
|
УУК-3 |
3 |
3,00 |
5,1 |
|
Малотоннажные |
|
|
|
|
|
|
АУК-1,25 |
1,25 |
1,25 |
3,0 |
|
|
АУК-0,625 |
0,625 |
0,63 |
1,4 |
|
* Определяют расчетом в зависимости от принятой высоты контейнера. ** К строительству в СССР не приняты. Параметры учитывают при проектировании подвижного состава. *** Повышение массы брутто контейнеров с 5 до 6 т осуществляют в сроки, устанавливаемые нормативными документами транспортных министерств. примечание исключить. |
||||
Пункты 1.4, 1.6 изложить в новой редакции: «1.4. Крупнотоннажные и среднетоннажные контейнеры всех типоразмеров должны изготовляться закрытыми и открытыми со съемной крышей, съемным тентом или без них.
Внутренний объем открытых контейнеров типоразмеров 1СС и 1C должен быть соответственно не менее 31,5 и 29,5 м3, контейнеров других типоразмеров - по согласованию с транспортными министерствами».
1.6. Условное обозначение контейнера должно состоять из обозначения типоразмера и обозначения настоящего стандарта. В условном обозначении крупнотоннажного контейнера, кроме того, указывают код по ГОСТ 25290-82.
Примеры условного обозначения:
универсального унифицированного закрытого крупнотоннажного контейнера массой брутто 30,48 т, высотой 2591 мм, с естественной вентиляцией при общей площади поперечного сечения вентиляционных отверстий менее 25 см2/м номинальной длины контейнера:
1АА ГОСТ 18477-79 код 10 ГОСТ 25290-82
то же, открытого крупнотоннажного контейнера массой брутто 24 т, высотой менее 2438 мм, с проемом в одном торце:
1СХ ГОСТ 18477-79 код 50 ГОСТ 25290-82
то же, среднетоннажного контейнера номинальной и предельной массой брутто 5 т, высотой 2400 мм:
УУК-5 ГОСТ 18477-79
то же, среднетоннажного контейнера номинальной массой брутто 3 т и предельной 5 т, высотой 2591 мм:
УУКП-3(5) ГОСТ 18477-79
автомобильного универсального малотоннажного контейнера массой брутто 1,25 т:
АУК-1,25 ГОСТ 18477-79.
Основные наружные и внутренние размеры крупнотоннажных, среднетоннажных и малотоннажных контейнеров должны соответствовать указанным на черт. 1-6 и табл. 2.
|
Обозначение типоразмера |
Размеры |
Номер чертежа |
|||||
|
Наружные |
Внутренние, не менее |
||||||
|
Длина L |
Ширина В |
Высота Н |
Длина l |
Ширина b |
Высота h |
||
|
1AA |
12192-10 |
2438-5 |
2591-5 |
11988 |
2330 |
2350 |
1 |
|
1А |
12192-10 |
2438-5 |
2438-5 |
11988 |
2330 |
2197 |
1 |
|
1АХ |
12192-10 |
2438-5 |
<2438 |
11988 |
2330 |
* |
1 |
|
1BB |
9125-10 |
2438-5 |
2591-5 |
8931 |
2330 |
2350 |
1 |
|
1В |
9125-10 |
2438-5 |
2438-5 |
8931 |
2330 |
2197 |
1 |
|
1BX |
9125-10 |
2438-5 |
<2438 |
8931 |
2330 |
* |
1 |
|
1СС |
6058-6 |
2438-5 |
2591-5 |
5867 |
2330 |
2350 |
1 |
|
1C |
6058-6 |
2438-5 |
2438-5 |
5867 |
2330 |
2197 |
1 |
|
1СХ |
6058-5 |
2438-5 |
<2438 |
5867 |
2330 |
* |
1 |
|
1D |
2991-5 |
2438-5 |
2438-5 |
2802 |
2330 |
2197 |
1 |
|
1DX |
2991-5 |
2438-5 |
<2438 |
2802 |
2330 |
* |
1 |
|
УУКП-5(6) |
2100±5 |
2650±7 |
2591±5 |
1950 |
2515 |
2310 |
2 |
|
УУКП-5 |
2100±5 |
2650±7 |
2591±5 |
1950 |
2515 |
2310 |
2 |
|
УУК-5(6) |
2100±5 |
2650±7 |
2400±5 |
1950 |
2515 |
2128 |
2 |
|
УУК-5 |
2100±5 |
2650±7 |
2400±5 |
1950 |
2515 |
2128 |
2; 3 |
|
УУК-5У |
2100±5 |
1325±3 |
2400±5 |
1980 |
1216 |
2128 |
4; 5 |
|
УУКП-3(5) |
2100±5 |
1325±3 |
2591±5 |
1980 |
1225 |
2380 |
4; 5 |
|
УУК-3(5) |
2100±5 |
1325±3 |
2400±5 |
1980 |
1225 |
2128 |
4; 5 |
|
УУК-3 |
2100±5 |
1325±3 |
2400±5 |
1980 |
1225 |
2128 |
4; 5 |
|
АУК-1,25 |
1800±5 |
1050±3 |
2000±5 |
1720 |
960 |
1820 |
6 |
|
АУК-0,625 |
1150±3 |
1050±3 |
1700±5 |
1070 |
910 |
1520 |
6 |
|
* Определяют расчетом в зависимости от принятой наружной высоты контейнера. Примечания: 1. Внутреннюю высоту открытых контейнеров со съемной крышей, съемным тентом или без них типоразмеров 1АА и 1СС кодов 50-53 допускается уменьшать по согласованию между изготовителем и заказчиком до 2311 мм и типоразмеров 1А, 1C и 1D - до 2158 мм при соответствующем изменении внутреннего объема. 2. Высота открытых контейнеров типоразмеров 1АХ, 1ВХ, 1СХ и 1DX с учетом возможности их двухъярусной перевозки на железнодорожном транспорте не должна превышать 1580 мм. Любая большая высота в пределах до 2438 мм должна согласовываться с МПС. 3. Размеры, указанные в табл. 2 и примечаниях к ней, действительны при температуре 20 °С. |
|||||||
чертеж 2. Наименование после слова «контейнеры» дополнить обозначениями: «УУКП-5(6), УУКП-5, УУК-5(6) и»;
чертежи 4, 5. Наименование после слова «контейнеры» дополнить обозначениями: «УУК-5У, УУКП-3(5), УУК-3(5) и»;
чертеж 6. Наименование после слова «контейнеры» дополнить обозначением: «АУК-1,25 и».
Раздел 2. Наименование. Исключить слово: «торцевых».
Пункт 2.1 после слова «проема» дополнить словом: «закрытых»;
таблицу 3 для типоразмеров УУК-5-УУК-5у изложить в новой редакции:
Таблица 3
|
Обозначение |
Торцевые дверные проемы контейнеров в свету, мм, не менее |
|
|
Ширина |
Высота |
|
|
УУКП-5(6) |
1950 |
2280 |
|
УУКП-5 |
1950 |
2280 |
|
УУК-5(6) |
1950 |
2100 |
|
УУК-5 |
1950 |
2100 |
|
УУК-5У |
1216 |
2090 |
|
УУКП-3(5) |
1225 |
2300 |
|
УУК-3(5) |
1225 |
2090 |
|
примечание исключить. |
||
Пункты 2.2, 2.3, 2.5 изложить в новой редакции: «2.2. По требованию заказчика закрытые контейнеры кодов 02 и 04 типоразмеров 1АА, 1А, 1СС и 1C следует выполнять с боковыми дверными проемами шириной 2790 мм и высотой 2076 мм (1А, 1C) или 2200 мм (1АА, 1СС). Внутренняя ширина таких контейнеров, а также открытых контейнеров кодов 52 и 53 может быть уменьшена по сравнению с указанной в табл. 2 в пределах, согласованных с заказчиком».
2.3. При наличии у контейнеров типоразмеров УУК-5У, УУКП-3(5), УУК-3(5) и УУК-3 боковой двери (черт. 4) вместо торцовой ширина и высота дверного проема должны быть равны внутренним длине и высоте этих контейнеров. Если такое равенство обеспечить невозможно, то ширина бокового дверного проема у контейнеров всех указанных типоразмеров должны быть не менее 1950 мм, а высота - не менее 2090 мм у контейнеров типоразмеров УУК-5У, УУК-3(5), УУК-3 и не менее 2280 мм - у контейнера типоразмера УУКП-3(5).
Размеры бокового дверного проема контейнеров типоразмеров УУКП-5(6), УУКП-5, УУК-5(6) и УУК-5 устанавливаются транспортными министерствами.
2.5. Размеры и расположение рымных узлов закрытых среднетоннажных контейнеров - по ГОСТ 18579-79 и приведенным на черт. 2-5, открытых среднетоннажных - по утвержденной конструкторской документации, автомобильных малотоннажных - по ГОСТ 22225-76.
Пункт 2.7. Примечание 2. Заменить слово: «Контейнеры» на «Крупнотоннажные контейнеры».
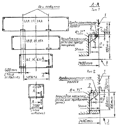
Пункт 2.8. Чертеж 8 заменить новым:

1 - часть стенки, включая выступающие заклепки и головки болтов, не должна отстоять от внутренней грани предохранительной полосы (планки, кромки) более чем на 12-2 мм; 2 - полка балки в зоне контакта с лапой захвата должна быть плоской и горизонтальной и образовывать с предохранительной полосой прямой угол; 3 - нижняя поверхность нижних угловых фитингов
(ИУС № 5 1988 г.)