
ГОСУДАРСТВЕННЫЙ СТАНДАРТ СОЮЗА ССР
БЛОКИ СТЕКЛЯННЫЕ ПУСТОТЕЛЫЕ
ТЕХНИЧЕСКИЕ УСЛОВИЯ
ГОСТ 9272-81
(СТ СЭВ 3478-81, СТ СЭВ 4418-83)
ГОСУДАРСТВЕННЫЙ СТРОИТЕЛЬНЫЙ КОМИТЕТ СССР
Москва
ГОСУДАРСТВЕННЫЙ СТАНДАРТ СОЮЗА ССР
|
БЛОКИ СТЕКЛЯННЫЕ ПУСТОТЕЛЫЕ Технические условия Hollow
glass blocks. |
ГОСТ (СТ СЭВ 3478-81, Взамен |
Постановлением Государственного комитета СССР по делам строительства от 31 декабря 1980 г. № 236 срок введения установлен
с 01.01.83
Несоблюдение стандарта преследуется по закону
Настоящий стандарт распространяется на стеклянные пустотелые сварные блоки неокрашенные и цветные, предназначенные для кладки светопрозрачных не несущих ограждающих конструкций зданий и сооружений.
Стандарт полностью соответствует СТ СЭВ 3478-81 и СТ СЭВ 4418-83 в части, указанной в справочном приложении 4.
(Измененная редакция, Изм. № 1).
1.1. Блоки должны иметь квадратную или прямоугольную форму. Размеры и масса блоков должны соответствовать указанным в табл. 1.
Таблица 1
Размеры в мм
|
Ширина |
Толщина |
Масса, кг |
|
|
194 |
194 |
98 |
2,8 |
|
244 |
244 |
98 |
4,3 |
|
294 |
194 |
98 |
4,2 |
|
244 |
244 |
75 |
3,8 |
Примечание. Допускается по соглашению изготовителя с потребителем изготавливать блоки, длина и ширина которых на 10 мм меньше указанных в табл. 1.
(Измененная редакция, Изм. № 1).
1.2. Отклонения размеров блоков по длине, ширине и толщине не должны превышать ±2 мм, отклонение массы - ±0,1 кг.
1.3. Условное обозначение блоков должно состоять из букв: БК (блок квадратный), БКЦ (блок квадратный цветной), БП (блок прямоугольный), длины, ширины, толщины блоков и обозначения настоящего стандарта.
Пример условного обозначения блока квадратного, неокрашенного длиной и шириной 194 мм, толщиной 98 мм:
БК 194/98 ГОСТ 9272-81
То же, цветного длиной и шириной 244 мм, толщиной 98 мм:
БКЦ 244/98 ГОСТ 9272-81
То же, прямоугольного неокрашенного длиной 294 мм, шириной 194 мм, толщиной 98 мм:
БП 294/194/98 ГОСТ 9272-81
2.1а. Блоки должны изготавливаться в соответствии с требованиями настоящего стандарта по технологическим регламентам, утвержденным в установленном порядке.
(Введен дополнительно, Изм. № 1).
2.1. Неокрашенные блоки могут иметь желтоватый, голубоватый или зеленоватый оттенки, не снижающие коэффициента светопропускания стекла, указанного в п. 2.9.
2.2. Наружные поверхности лицевых стенок блоков должны быть гладкими, а торцовых - рифлеными. Внутренние поверхности лицевых стенок блоков должны быть гладкими или иметь рельефный узор, а торцовых - гладкими.
2.3. Цвет окрашенных блоков, вид рельефного узора блоков должны соответствовать образцам-эталонам, утвержденным в установленном порядке.
2.4. Толщина лицевых стенок блоков должна быть не менее 8 мм.
2.5. Наружные поверхности лицевых стенок блоков должны быть плоскими. Выпуклость или вогнутость наружных поверхностен лицевых стенок блоков не допускается при измерении по большей стороне более 1,5 мм для блоков размерами 194´194´98 мм, более 2,0 мм - размерами 244´244´98 мм, 244´244´75 мм и более 2,5 мм - размерами 294´194´98 мм.
Вогнутость наружных поверхностей лицевых стенок блоков высшей категории качества не допускается.
2.6. Сварной шов не должен выходить за внешние габариты блока.
2.7. Смещение полублоков, из которых состоит блок, не должно быть более 2 мм.
2.8. По показателям внешнего вида (порокам) блоки должны соответствовать требованиям, указанным в табл. 2.
Таблица 2
|
Наименование показателя |
Норма на один блок |
|
|
высшей категории |
1 категории |
|
|
Пузыри открытые |
Не допускаются |
|
|
Пузыри закрытые размером: |
|
|
|
до 1 мм |
Не допускаются на лицевых стенках в сосредоточенном виде |
|
|
от 1 до 3 мм |
Не допускаются на 100 см2 поверхности лицевых стенок в количестве более, шт.: |
|
|
2 |
3 |
|
|
Инородные разрушающие включения |
Не допускаются |
|
|
Инородные неразрушающие включения (непроваренные частицы шихты, закристаллизовавшееся стекло) размером: |
|
|
|
до 1 мм |
Не допускаются на лицевых стенках более 6 шт. |
Не допускаются на лицевых стенках в сосредоточенном виде |
|
от 1 до 2 мм |
Не допускаются |
Не допускаются на лицевых стенках более 3 шт. |
|
Свиль |
Не допускается |
|
|
Кованость, складки, морщины |
Не регламентируются |
|
|
Царапины |
Не регламентируются |
|
|
Посечки |
Не допускаются длиной более 6 мм в количестве более 4 шт. на каждой стенке |
|
|
Трещины |
Не допускаются |
|
|
Сколы |
Не допускаются более 1 шт. глубиной св. 2 мм и длиной более 5 мм |
|
|
След от ножниц |
Не регламентируются |
|
2.9. Коэффициент светопропускания стекла, применяемого для изготовления неокрашенных блоков, при прохождении сквозь него параллельного пучка световых лучей с нормальным углом падения к поверхности стекла должен быть не менее 0,85 при пересчете на 4 мм толщины пластины, изготовленной из того же стекла.
2.10. Справочные коэффициенты светопропускания блоков при освещении рассеянным светом должны соответствовать указанным в справочном приложении 1.
2.11. Блоки должны быть отожжены. Величина остаточных внутренних напряжений в неокрашенных блоках не должна превышать 100 нм на 1 см длины пути света.
2.12. Блоки должны быть термостойкими и выдерживать перепад температур не менее 40 °С, а блоки размерами (244´244´75) мм - не менее 30 °С.
(Измененная редакция, Изм № 1, 2).
2.13. Блоки должны быть герметичными.
2.14а. Блоки должны изготавливаться из стекла, водостойкость которого должна быть не ниже класса 4/98.
(Введен дополнительно, Изм. № 1).
2.14. Предел прочности блоков при сжатии должен быть не менее 1,5 МПа (15 кгс/см2).
2.15. Справочное значение сопротивления удару блоков должно соответствовать указанному в справочном приложении 2.
2.16. Поставку блоков производят по спецификации заказчика.
3.1. Блоки должны быть приняты техническим контролем предприятия-изготовителя.
3.2. Приемку блоков производят партиями. В партию должны входить блоки одного размера, одинакового оттенка и цвета, с одинаковым рельефным узором.
Размер партии блоков не должен превышать 10 тыс. шт.
3.3. Приемку партии блоков производят путем проведения приемочного контроля по группам показателей, указанным в табл. 3, по двухступенчатым планам контроля в соответствии с табл. 3а по ГОСТ 18242-72.
(Измененная редакция, Изм. № 1).
Таблица 3
|
Номер группы |
Приемочный уровень дефектности |
Уровень контроля |
|
|
1 |
6,5 |
11 |
|
|
Цвет стекла (п. 2.3) |
|||
|
Фактура поверхностей (п. 2.2) |
|||
|
Внешний вид (п. 2.8) |
|||
|
2 |
4,5 |
||
|
Выпуклость (вогнутость) поверхностей (п. 2.5) |
|||
|
Качество сварного шва (п. 2.6) |
|||
|
Смещение полублоков (п. 2.7) |
|||
|
Величина остаточных внутренних напряжений (п. 2.11) |
3 |
2,5 |
|
|
Термостойкость (п. 2.12) |
|||
|
Герметичность (п. 2.13) |
3.3а. Для контроля блоков по каждой группе показателей из всей партии методом случайного отбора по ГОСТ 18321-73 составляют выборку объемом, указанным в табл. 3а.
Таблица 3а
|
Объем партии блоков, шт. |
Ступени плана контроля |
Объем выборки блоков, шт. |
Общий объем выборки блоков, шт. |
Число дефектных блоков для групп показателей |
|||||
|
1 |
2 |
3 |
|||||||
|
Приемочное число |
Браковочное число |
Приемочное число |
Браковочное число |
Приемочное число |
Браковочное число |
||||
|
501 - 1200 |
Первая |
50 |
150 |
5 |
9 |
3 |
7 |
2 |
5 |
|
Вторая |
50 |
100 |
12 |
13 |
8 |
9 |
6 |
7 |
|
|
1201 - 3200 |
Первая |
80 |
80 |
7 |
11 |
5 |
9 |
3 |
7 |
|
Вторая |
80 |
160 |
18 |
19 |
12 |
13 |
8 |
9 |
|
|
3201 - 10000 |
Первая |
125 |
125 |
11 |
16 |
7 |
11 |
5 |
9 |
|
Вторая |
125 |
250 |
26 |
27 |
18 |
19 |
12 |
13 |
|
(Введен дополнительно, Изм. № 1).
3.4. Партию блоков принимают, если число дефектных блоков в первой выборке меньше или равно приемочному числу, и бракуют без назначения второй выборки, если число дефектных блоков больше или равно браковочному числу.
Если число дефектных блоков в первой выборке больше приемочного числа, но меньше браковочного, производят вторую выборку.
Партию блоков принимают, если число дефектных блоков в двух выборках меньше или равно приемочному числу, и бракуют, если число дефектных блоков в двух выборках больше или равно браковочному числу.
3.5. Испытание блоков по водостойкости, коэффициенту светопропускания стекла, применяемого для изготовления неокрашенных блоков, и пределу прочности при сжатии производят в соответствии с табл. 4 на блоках, из числа принятых в соответствии с пп. 3.3 и 3.3а.
Таблица 4
|
Наименование показателя |
Объем выборки блоков, шт. |
Периодичность проведения проверок |
|
Водостойкость |
1 |
Не реже одного раза в 6 мес. |
|
Коэффициент светопропускания стекла |
3 пластины |
Не реже одного раза в месяц на каждой печи |
|
Предел прочности при сжатии блоков: |
|
|
|
квадратных |
20 |
Не реже одного раза в квартал |
|
прямоугольных |
40 |
То же |
3.6. При получении неудовлетворительных результатов испытаний блоков, отобранных в соответствии с п. 3.5, по водостойкости, коэффициенту светопропускания стекла и пределу прочности при сжатии проводят повторные испытания по этому показателю удвоенного числа блоков из той же партии.
При неудовлетворительных результатах повторных испытаний партия блоков приемке не подлежит.
3.5, 3.6. (Измененная редакция, Изм. № 1).
3.7. Потребитель имеет право производить контрольную проверку соответствия блоков требованиям настоящего стандарта, соблюдая при этом приведенный порядок отбора образцов и применяя указанные методы испытаний.
4.1. Длину, ширину и толщину блоков измеряют металлической рулеткой по ГОСТ 7502-89 с погрешностью до 1 мм.
Результаты каждого измерения длины, ширины и толщины блоков должны находиться в пределах допускаемых отклонений.
4.2. Массу блоков определяют взвешиванием на весах по ГОСТ 23676-79 с погрешностью до 0,01 кг.
Результаты каждого взвешивания должны находиться в пределах допускаемых отклонений.
4.3. Толщину лицевых стенок блоков измеряют стенкомером типа С-50 по ГОСТ 11358-89 с удлинителем или другим измерительным инструментом, изготовленным по чертежам, утвержденным в установленном порядке. Измерение толщины стенок производят на полублоках в зоне пересечения диагоналей лицевой поверхности полублока. Диаметр зоны измерений должен быть 50 - 70 мм. Производят не менее трех измерений. Результат каждого измерения не должен быть менее указанного в п. 2.4. При измерении толщины лицевых стенок с рельефным узором высоту рельефа не включают в номинальную толщину.
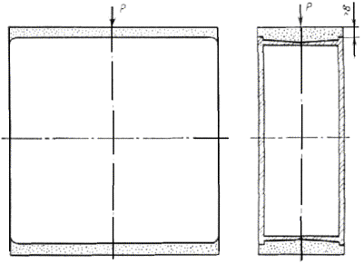
4.4. Выпуклость наружных поверхностей лицевых стенок блоков определяют двумя щупами (или металлическими пластинами толщиной, соответствующей выпуклости наружных поверхностей лицевых стенок блоков, указанной в п. 2.5, изготовленными по чертежам, утвержденным в установленном порядке) в соответствии с черт. 1.
1 - щуп первый; 2 - поверочная линейка; 3 - щуп второй; 4 - блок
Черт. 1
Один щуп вставляют под поверочную линейку, приложенную к контролируемой поверхности блока. При этом второй щуп не должен входить в зазор с противоположной стороны между поверочной линейкой и поверхностью блока.
Вогнутость наружных поверхностей лицевых стенок блоков определяют измерением щупом ТУ 2-034-225-87 (или металлической пластиной толщиной, соответствующей вогнутости наружных поверхностей лицевых стенок блоков, указанной в п. 2.5, изготовленной по чертежам, утвержденным в установленном порядке) наибольшего просвета, образующегося при наложении поверочной металлической линейки на эти поверхности.
Выпуклость и вогнутость поверхностей лицевых стенок блоков определяют в двух взаимно перпендикулярных направлениях.
4.5. Наличие выступающего за пределы внешних габаритов блока сварного шва проверяют прикладыванием поверочной металлической линейки по ГОСТ 8026-75 к торцовым поверхностям блока перпендикулярно поверхностям лицевых стенок и перемещением ее вдоль ребер блока. Продольное покачивание линейки не допускается.
4.6. Смещение полублоков определяют в соответствии с черт. 2.

1 - угловая плита; 2 - блок; 3 - щуп; 4 - поверочная плита
Блок устанавливают торцовой поверхностью на горизонтальную поверочную плиту по ГОСТ 10905-86 и прижимают его к угловой плите, изготовленной по чертежам, утвержденным в установленном порядке. Зазор между торцовой поверхностью блока и поверхностью поверочной плиты измеряют щупом ТУ 2-034-225-87 (или металлической пластиной, изготовленной по чертежам, утвержденным в установленном порядке). Затем блок поворачивают на 90° и проводят те же измерения. Величина зазора не должна превышать величины, указанной в п. 2.7.
4.7. Показатели внешнего вида (пороки) блоков определяют визуально в проходящем свете при рассеянном освещении на расстоянии 0,8 - 1,0 м. Освещенность на контролируемой поверхности блока должна быть 100 - 120 лк.
Пороки измеряют металлической линейкой по ГОСТ 427-75 с погрешностью до 1 мм. За размер порока принимают наибольший результат измерения.
Цвет (оттенок) и вид рельефного узора блоков проверяют путем сравнения с образцами-эталонами.
(Измененная редакция, Изм. № 1).
4.8. Коэффициент светопропускания стекла, применяемого для изготовления неокрашенных блоков, определяют по ГОСТ 11-78 на плоских пластинах, полированных с обеих сторон.
4.9. Внутренние напряжения в неокрашенных блоках определяют по СТ СЭВ 2052-79.
4.10. Термостойкость блоков определяют по ГОСТ 25535-82.
(Измененная редакция, Изм. № 1).
4.10.1 - 4.10.3. (Исключены, Изм. № 1).
4.11. Герметичность блоков проверяют после проведения испытания на термостойкость по п. 4.10. После выдержки в ванне с водой не менее 5 мин блоки вынимают, высушивают и проверяют наличие влаги во внутренней полости.
(Измененная редакция, Изм. № 1).
4.12. Определение предела прочности при сжатии
4.12.1. Сущность метода заключается в разрушении блока равномерно распределенной нагрузкой, прикладываемой к двум его противоположным торцовым поверхностям.
4.12.2. Аппаратура и принадлежности
Пресс гидравлический по ГОСТ 8905-82.
Металлическая форма для обетонирования блока.
4.12.3. Подготовка образцов
У блоков, отобранных для испытания в соответствии с п. 3.5, измеряют в двух местах длину и ширину и по средним арифметическим значениям вычисляют площадь торцовой поверхности блока, находящейся под нагрузкой.
Две противоположные торцовые поверхности блока покрывают обмазкой из цементного раствора так, чтобы они были ровными. Обмазка должна выступать за лицевые поверхности блока не менее чем на 8 мм (черт. 3).

Цементный раствор для обмазки блоков должен иметь состав, указанный в справочном приложении 3.
При испытании блоков прямоугольной формы у 20 блоков из 40 покрывают обмазкой короткие стороны, а у остальных 20 блоков - длинные стороны.
При нанесении обмазки блоки фиксируют в форме по центру. Блоки с обмазкой покрывают мокрой тканью, которую регулярно смачивают водой и выдерживают в течение 7 сут. Затем ткань убирают и выдерживают блоки с обмазкой еще 21 сут в помещении при температуре (20 ± 5) °С и относительной влажности воздуха 60 - 70 %.
4.12.4. Проведение испытания
Определение предела прочности при сжатии блоков производят на гидравлическом прессе. Квадратные блоки испытывают в одном направлении, а прямоугольные - в двух взаимно перпендикулярных направлениях.
Подачу масла регулируют таким образом, чтобы нагрузка на блок возрастала равномерно со скоростью 0,5 - 0,6 МПа (5 - 6 кгс/см2) в секунду.
Нагрузку повышают до момента разрушения блока и отсчитывают ее максимальное значение с погрешностью до 1 %.
4.12.2. - 4.12.4. (Измененная редакция, Изм. № 1).
4.12.5. Обработка результатов испытания
Предел прочности при сжатии Rсж в МПа (кгс/см2) вычисляют по формуле
![]()
где Р - разрушающая нагрузка, кН (кгс);
А - площадь торцовой поверхности блока, см2.
За величину предела прочности при сжатии партии блоков принимают среднее арифметическое значение результатов испытаний двадцати квадратных или сорока прямоугольных блоков.
4.13. Водостойкость стекла для изготовления блоков определяют по ГОСТ 10134.1-82.
4.12.5, 4.13. (Введены дополнительно, Изм. № 1).
5.1. Каждый блок должен иметь маркировку в одном из углов на наружной поверхности лицевой стенки с указанием товарного знака предприятия-изготовителя или его краткого наименования.
5.2. Блоки должны быть упакованы в пакеты-поддоны или контейнеры по техническим условиям, утвержденным в установленном порядке. Блоки при упаковке должны быть уложены на торец рядами. При упаковке в пакеты-поддоны каждый горизонтальный ряд, а при упаковке в контейнеры и каждый вертикальный ряд блоков должны быть переложены упаковочным материалом (гофрированным картоном по ГОСТ 7376-89, бумагой и др.).
5.3. Тара должна иметь ярлык, в котором указывают:
наименование или товарный знак предприятия-изготовителя;
наименование, цвет и условное обозначение блоков;
число блоков, шт.;
номер упаковщика и дату упаковки.
5.4. Правила маркирования тары должны соответствовать ГОСТ 14192-77.
5.5. Предприятие-изготовитель должно сопровождать каждую партию блоков документом о качестве установленной формы, в котором указывают:
наименование и адрес предприятия-изготовителя и получателя;
наименование, цвет и условное обозначение блоков;
число блоков, шт.;
дату изготовления;
результаты испытаний.
5.6. Вся товаросопроводительная документация на блоки высшей категории качества должна иметь изображение государственного Знака качества.
5.7. Пакеты-поддоны или контейнеры с блоками транспортируют любым видом транспорта. При транспортировании, погрузке и выгрузке блоков должны приниматься меры, обеспечивающие их сохранность от механических повреждений.
5.8. Блоки должны храниться в закрытых помещениях или под навесом в распакованном виде.
При хранении блоки должны быть уложены на торец рядами, причем прямоугольные блоки должны быть уложены на больший торец. Высота штабеля блоков не должна превышать 1,5 м.
Справочное
|
Условное обозначение блоков |
Характеристика внутренней поверхности лицевых стенок блоков |
Справочный коэффициент светопропускания блоков, не менее |
|
БК 194/98 |
Гладкая |
0,50 |
|
Рифленая |
0,30 |
|
|
БК 244/98 |
Гладкая |
0,55 |
|
БК 244/75 |
Рифленая |
0,35 |
|
БП 294/194/98 |
Гладкая |
0,53 |
|
Рифленая |
0,33 |
Справочное
Справочное значение сопротивления удару блоков должно быть не менее 0,8 Дж (8 кгс×см).
Справочное
Цементный раствор для приготовления обмазки должен состоять из портландцемента марки 400 и песка в соотношении по массе 1:3 при водоцементном отношении 0,54.
Содержание SiO2 в песке должно быть не менее 98 %, потери при прокаливании должны быть не более 0,5 %. Гранулометрический состав песка должен соответствовать указанному в таблице.
|
Размер ячеек сита, мм |
0,08 |
0,16 |
0,50 |
1,00 |
1,60 |
2,00 |
|
Общий остаток на сите, % |
96 - 100 |
83 - 93 |
62 - 72 |
28 - 38 |
Не более 10 |
Не более 0,5 |
(Введено дополнительно, Изм. № 1).
Справочное
Требования ГОСТ 9272-81 к блокам размерами (194´194´98) мм, (244´244´98) мм, (244´244´75) мм, (294´194´98) мм соответствуют требованиям СТ СЭВ 4418-813.
(Введено дополнительно, Изм. № 2).
СОДЕРЖАНИЕ
|
5. Маркировка, упаковка, транспортирование и хранение. 8 Информационные данные о соответствии гост 9272-81 ст сэв 4416-83. 9 |