
ГОСУДАРСТВЕННЫЙ СТАНДАРТ СОЮЗА ССР
СТЕКЛО СТРОИТЕЛЬНОЕ
ПРОФИЛЬНОЕ
ТЕХНИЧЕСКИЕ УСЛОВИЯ
ГОСТ 21992-83
(СТ СЭВ 2682-80)
ГОСУДАРСТВЕННЫЙ КОМИТЕТ СССР ПО ДЕЛАМ СТРОИТЕЛЬСТВА
МОСКВА
ГОСУДАРСТВЕННЫЙ СТАНДАРТ СОЮЗА ССР
|
СТЕКЛО СТРОИТЕЛЬНОЕ ПРОФИЛЬНОЕ Технические условия Profile building glass. Specifications |
ГОСТ
(СТ СЭВ 2682-80) Взамен ГОСТ 21992-76 |
Постановлением Государственного комитета СССР по делам строительства от 10 января 1983 г. № 5 срок введения установлен
с 31.01.83
Настоящий стандарт распространяется на строительное профильное стекло (далее - стекло), предназначенное для устройства светопрозрачных ограждающих конструкций в зданиях и сооружениях различного назначения.
Стандарт соответствует СТ СЭВ 2682-80 в части, указанной в справочном приложении 1.
1.1. Типы, марки, размеры и форма стекла должны соответствовать указанным в табл. 1 и на черт. 1.
Таблица 1
мм
|
Тип |
Марка |
Ширина b |
Высота h |
Толщина t |
Длина l, не более |
Ширина шва b1 |
Наружный радиус углов |
Ширина основания среднего ребра b2 | |
|
r |
1 | ||||||||
|
Швеллерное профильное |
ШП-240 |
244 |
35 |
5,5 |
3600 |
- |
9 |
- |
- |
|
ШП-250 |
250 |
40; 50 |
5,5; 6,0 |
5000 | |||||
|
ШП-300 |
294 |
35; 40; 50 | |||||||
|
ШП-500 |
500 |
40; 50 |
3000 | ||||||
|
Коробчатое профильное: |
|
|
50 |
5,5 |
3600 |
|
8 |
|
- |
|
а) с одним швом |
КП-1-250 |
244 |
20 |
- | |||||
|
КП-1-300 |
294 |
22 |
10 | ||||||
|
б) с двумя швами |
КП-2-250 |
244 |
55 |
|
| ||||
|
КП-2-300 |
294 |
|
| ||||||
|
Ребристое профильное |
РП-600 |
594 |
50 |
5,5 |
3600 |
- |
9 |
- |
35 |
Примечания:
1. Длина стекла должна быть кратной 5 мм.
2. Стекло марок ШП-240 и ШП-300 высотой 35 мм допускается изготавливать для ремонтных целей.
ТИПЫ СТЕКЛА
Швеллерное Коробчатое с одним швом

Коробчатое с двумя швами

Ребристое

Черт. 1
1.2. Отклонения размеров стекла не должны превышать, мм:
по длине и ширине .................................................. ± 5
по высоте ............................................................... ± 3
по толщине ............................................................ ± 0,5
по ширине шва коробчатого стекла ........................ ± 5
радиуса углов ........................................................ ± 1
по ширине основания среднего ребра ..................... ± 5
для стекла высшей категории качества:
по длине ................................................................ ± 3
по ширине и высоте ............................................... ± 2
1.3. Стекло может изготавливаться бесцветным и цветным, армированным и неармированным, с гладкой (кованой), рифленой или узорчатой поверхностью.
1.4. Условное обозначение стекла должно состоять из марки, длины, высоты, толщины, наличия цвета (Ц) и армирования (А), характеристики поверхности (рифленая - Р, узорчатая Уз) и обозначения настоящего стандарта.
Пример условного обозначения швеллерного стекла марки ШП-300, длиной 3600 мм, высотой 40 мм, толщиной 5,5 мм, бесцветного, неармированного, с гладкой поверхностью:
ШП-300-3600-40-5,5 ГОСТ 21992-83
То же, цветного, армированного, с рифленой поверхностью:
ШП-300-3600-40-5,5-Ц-А-Р ГОСТ 21992-83
1.5. Справочная масса стекла приведена в справочном приложении 2.
2.1. Стекло должно изготавливаться в соответствии с требованиями настоящего стандарта по технологической документации, утвержденной в установленном порядке.
2.2. Бесцветное стекло может иметь желтоватый, голубоватый или зеленоватый оттенок.
2.3. Цвет и фактура поверхности стекла, рисунок рифленой или узорчатой поверхности должны соответствовать образцам-эталонам, утвержденным в установленном порядке.
2.4. Для армирования стекла должна применяться стальная проволока диаметром 0,5 или 0,6 мм с защитным алюминиевым покрытием или сетки из нее: сварная № 125 и 25 или крученая № 20 и 25 по техническим условиям, утвержденным в установленном порядке.
Примечание. Допускается по соглашению изготовителя с потребителем применять для армирования стекла первой категории качества стальную термически обработанную проволоку со светлой поверхностью по ГОСТ 3282-74 и сетку из нее без алюминиевого покрытия.
2.5. Проволочная арматура в армированном стекле должна быть размещена параллельно боковым его поверхностям. Расстояние между проволоками и от шва коробчатого стекла до арматуры должно соответствовать указанному в табл. 2.
Таблица 2
мм
|
Марка стекла |
Расстояние между проволоками |
Расстояние от шва до арматуры |
|
ШП-240 |
30 ± 5 |
- |
|
ШП-250 | ||
|
ШП-300 | ||
|
ШП-500 | ||
|
КП-1-250 |
50 ± 5 |
60 ± 3 |
|
КП-1-300 |
- | |
|
КП-2-250 | ||
|
КП-2-300 |
Примечание. Боковые поверхности стекла марок ШП-240, ШП-250, ШП-300, ШП-500, КП-2-250, КП-2-300 не армируют.
2.6. Отклонение от прямого угла, образуемого лицевыми и боковыми поверхностями стекла, не должно превышать ± 2 мм.
2.7. Отклонение от прямого угла, образуемого плоскостью торцов стекла с его лицевыми и боковыми поверхностями, не должно превышать ± 2 мм.
2.8. Разность высот боковых поверхностей стекла не должна превышать 3 мм.
2.9. Лицевая и боковая поверхности стекла должны быть плоскими. Отклонение от прямолинейности в плоскости (выпуклость или вогнутость) лицевых поверхностей стекла не должно превышать 2 мм по ширине и 4 мм по длине стекла на 1 м его длины и, соответственно, 1 и 2 мм на 1 м длины для стекла высшей категории качества. Отклонение от прямолинейности в плоскости боковых поверхностей стекла не должно превышать 2 мм на 1 м его длины.
2.10. По показателям внешнего вида стекло должно соответствовать требованиям, указанным в табл. 3.
Таблица 3
|
Наименование показателя |
Норма на 1 м длины стекла | |
|
высшей категории качества |
первой категории качества | |
|
Открытые пузыри |
Не допускаются | |
|
Закрытые пузыри: |
|
|
|
а) на лицевой поверхности размером по наибольшему измерению: до 1 мм |
В неармированном стекле не допускаются при расстоянии между пузырями менее 100-кратной суммы размеров соседних пузырей |
Не нормируют |
|
|
Для армированного стекла не нормируют | |
|
св. 1 до 3 мм включ. |
При ширине стекла 244, 250 и 294 мм не допускаются более 4 шт., при ширине 500 и 600 мм - более 6 шт. |
Не нормируют |
|
св. 3 до 8 мм включ. |
Не допускаются более: | |
|
1 шт. |
20 шт. | |
|
б) на боковой поверхности |
Не нормируют | |
|
Инородные разрушающие включения (непроваренные частицы огнеупорных материалов) |
Не допускаются | |
|
Инородные неразрушающие включения (непроваренные частицы шихты, закристаллизовавшееся стекло «рух») размером по наибольшему измерению: |
|
|
|
до 1 мм |
Не допускаются при расстоянии между включениями менее 10-кратной суммы размеров соседних включений |
Не нормируют |
|
св. 1 до 2 мм |
Не допускаются более: | |
|
|
при ширине стекла 244, 250 и 294 мм - 2 шт., при ширине 500 и 600 мм - 3 шт. |
6 шт. |
|
Нитевидные пузыри, свиль, царапины, складки |
Не допускаются видимые с расстояния менее 1 м |
Не нормируют |
|
Трещины и посечки |
Не допускаются | |
|
Выступы на торцах |
| |
|
а) для швеллерного стекла |
Не допускаются | |
|
б) для коробчатого стекла |
Не допускаются |
Не допускаются высотой более 5 мм |
|
Отбитые углы и сколы на торцах |
Не допускаются глубиной более: | |
|
5 мм |
10 мм | |
|
Окраска окислившейся арматурой |
Не допускается |
Не допускается видимая с расстояния более 2 м |
|
Разрыв проволок в арматуре более 30 мм |
Не допускается |
На допускается более одного |
|
Соединение проволок в арматуре |
Не допускается |
Не допускается более одного |
|
Выход арматуры на поверхность |
Не допускается | |
|
Выщелачивание в виде помутнений и радужных пятен |
Не допускается | |
2.11. Сварной шов коробчатого стекла должен быть герметичным, сплошным (не иметь пустот), прямым и находиться посередине лицевой или боковых поверхностей.
2.12. Стекло должно быть термостойким и выдерживать перепад температур не менее 40 °С.
2.13. Водостойкость стекла должна быть не ниже класса 4/98 по ГОСТ 10134.1-82.
2.14. Стекло должно быть отожжено. Величина остаточных внутренних напряжений при просмотре в поляризованном свете торцов и лицевых поверхностей бесцветного стекла не должна превышать 100 нм на 1 см длины пути света, что соответствует цветам интерференции - фиолетовому, сочетанию красного с красно-оранжевым и с синим или фиолетовым. Не допускаются цвета интерференции - оранжевый, белый, желтый, зеленый, а также их сочетание с голубым.
Примечание. Величина остаточных внутренних напряжений при просмотре в поляризованном свете лицевых поверхностей бесцветного стекла определяется для каждой партии, указывается в документе о качестве установленной формы, но не является браковочным признаком до 1 января 1984 г.
2.15. Коэффициент светопропускания пластины, вырезанной из бесцветного стекла с гладкой (кованой) поверхностью, при прохождении сквозь нее параллельного пучка световых лучей с нормальным углом падения к поверхности пластины должен быть не менее 0,75.
2.16. Коэффициенты светопропускания стекла при освещении рассеянным светом приведены в справочном приложении 3.
2.17. Неармированное стекло с рифленой или гладкой поверхностью при испытании на изгиб должно выдерживать кратковременную нагрузку не менее, кПа (кгс/см2):
1,0 (0,010) - для стекла марок ШП-240, ШП-250;
1,2 (0,012) - для стекла марки ШП-300;
7,0 (0,070) - для стекла марок КП-1-250, КП-1-300, КП-2-250, КП-2-300.
Примечание. Испытание на изгиб стекла марок ШП-500, РП-600, узорчатого и армированного стекла всех марок производится при каждом заказе. Полученные данные указывают в документе о качестве установленной формы.
3.1. Стекло должно поставляться по спецификации потребителя в комплекте с уплотнителями и герметиками.
Форма, размеры, материал и назначение уплотнителей, а также марки герметиков приведены в рекомендуемом приложении 4.
Примечание. Условия поставки уплотнителей и герметиков определяются соглашением между изготовителем и потребителем.
4.1. Стекло должно быть принято техническим контролем предприятия-изготовителя.
4.2. Приемку стекла производят партиями.
В партию должно входить стекло одной марки, толщины, высоты, цвета, узора или рифления, с одинаковой арматурой. Размер партии не должен превышать 1200 шт.
4.3. При проверке стекла на соответствие показателям, приведенным в пп. 1.1, 1.2, 2.3, 2.5 - 2.10, применяют двухступенчатый план контроля, для чего от партии отбирают стекло в соответствии с табл. 4.
Таблица 4
|
Объем партии стекла, шт. |
Ступени плана контроля |
Объем выборки стекла, шт. |
Общий объем выборки стекла, шт. |
Приемочное число |
Браковочное число |
|
51 - 90 |
Первая |
8 |
8 |
1 |
4 |
|
Вторая |
8 |
16 |
4 |
5 | |
|
91 - 150 |
Первая |
13 |
13 |
2 |
5 |
|
Вторая |
13 |
26 |
6 |
7 | |
|
151 - 280 |
Первая |
20 |
20 |
3 |
7 |
|
Вторая |
20 |
40 |
8 |
9 | |
|
281 - 500 |
Первая |
32 |
32 |
5 |
9 |
|
Вторая |
32 |
64 |
12 |
13 | |
|
501 - 1200 |
Первая |
50 |
50 |
7 |
11 |
|
Вторая |
50 |
100 |
18 |
19 |
4.4. Партию стекла принимают, если число дефектных стекол в первой выборке меньше или равно приемочному числу, и бракуют без назначения второй выборки, если число дефектных стекол больше или равно браковочному числу.
Если число дефектных стекол в первой выборке больше приемочного числа, но меньше браковочного, производят вторую выборку.
Партию стекла принимают, если число дефектных стекол в двух выборках меньше или равно приемочному числу, и бракуют, если число дефектных стекол в двух выборках больше или равно браковочному числу.
4.5. Проверку стекла на соответствие показателям, приведенным в пп. 2.11 - 2.15, 2.17, производят в соответствии с табл. 5 на образцах, вырезанных из изделий, принятых по пп. 4.3 и 4.4.
Таблица 5
|
Наименование показателя |
Число образцов, шт. |
Размер образцов, мм |
Периодичность проведения проверки |
|
Герметичность сварного шва, нагрузка при изгибе |
3 |
Длина 2800 |
Не реже одного раза в сутки |
|
Величина остаточных внутренних напряжений: |
|
|
Не реже одного раза в неделю и при изменении технологии |
|
торцовых |
4 |
Длина не более 100 | |
|
плоскостных |
4 |
Длина не менее 1000 | |
|
Термостойкость |
3 |
Длина не более 500 |
Не реже одного раза в неделю |
|
Водостойкость |
1 |
Масса около 100 г |
Не реже одного раза в полугодие |
|
Коэффициент светопропускания |
3 |
Пластина размером не менее 50´50 |
Не реже одного раза в квартал |
Примечание. Испытание образцов на изгиб производят после испытания на герметичность сварного шва.
4.6. При получении неудовлетворительных результатов испытаний образцов по герметичности сварного шва, нагрузке при изгибе, величине остаточных внутренних напряжений, термостойкости, водостойкости и коэффициенту светопропускания, производят повторные испытания по этому показателю удвоенного числа образцов, вырезанных из стекла той же партии.
При неудовлетворительных результатах повторной проверки партия стекла приемке не подлежит.
4.7. Потребитель имеет право производить контрольную проверку соответствия стекла требованиям настоящего стандарта, соблюдая при этом приведенный порядок отбора образцов и применяя указанные методы испытаний.
5.1. Длину, ширину шва коробчатого стекла, расстояние между проволоками в армированном стекле определяют металлическим измерительным инструментом с погрешностью до 1 мм.
Ширину и высоту стекла определяют штангенциркулем по ГОСТ 166-80 в трех точках по длине стекла с погрешностью до 0,1 мм.
За ширину и высоту принимают среднее арифметическое значение результатов трех измерений.
Наружные радиусы углов стекла проверяют шаблоном по ГОСТ 4126-82.
5.2. Толщину стекла измеряют штангенциркулем по ГОСТ 100-80 или микрометром по ГОСТ 6507-78 в трех точках по ширине швеллерного и в четырех точках коробчатого и ребристого стекла (на каждой лицевой поверхности в двух точках).
При измерении толщины стекла с рифленой или узорчатой поверхностью высоту рифления или узора включают в номинальную толщину.
За толщину стекла принимают среднее арифметическое значение результатов измерений.
5.3. Отклонение от прямого угла, образуемого лицевыми и боковыми поверхностями стекла, определяют угольником по ГОСТ 3749-77 путем наложения его на лицевую поверхность стекла перпендикулярно к длине стекла и измерения щупом по ГОСТ 882-75 максимального зазора между боковой поверхностью стекла и другой стороной угольника.
5.4. Отклонение от прямого угла, образуемого плоскостью торцов стекла с боковыми и лицевыми поверхностями, определяют угольником по ГОСТ 3749-77 путем приложения одной из его сторон к лицевой (боковой) поверхности стекла и измерения щупом по ГОСТ 882-75 максимального зазора между другой стороной угольника и торцом боковой (лицевой) поверхности без учета выступов.
5.5. Выпуклость или вогнутость лицевой и боковой поверхностей стекла определяют измерением щупом по ГОСТ 882-75 максимального зазора, образующегося при наложении линейки по ГОСТ 427-75 на эту поверхность.
Выпуклость или вогнутость поверхности стекла по ширине определяют в середине и по краям стекла, а по длине - последовательно прикладывая к стеклу линейку длиной 1 м.
За выпуклость или вогнутость лицевой и боковой поверхностей стекла принимают среднее арифметическое значение результатов соответствующих измерений.
5.6. Показатели внешнего вида стекла проверяют путем его осмотра в проходящем свете при рассеянном освещении на расстоянии 1 м от наблюдателя. Пороки стекла измеряют металлической линейкой по ГОСТ 427-75 с погрешностью до 1 мм. За размер порока принимают наибольший результат измерения.
Цвет (оттенок), вид рифления и узора стекла проверяют путем сравнения с образцами-эталонами.
5.7. Герметичность сварного шва коробчатого стекла определяют следующим образом. Стекло устанавливают в горизонтальном положении швом вверх. Впадину около шва закрывают с торцов и заполняют окрашенной водой. Шов считают герметичным, если внутри его по истечении 30 мин не обнаруживают затеков воды.
5.8. Термостойкость стекла определяют по ГОСТ 25535-82.
5.9. Водостойкость стекла определяют по ГОСТ 10134.1-82.
5.10. Остаточные внутренние напряжения в стекле определяют по СТ СЭВ 2052-79.
5.11. Коэффициент светопропускания неокрашенного стекла определяют по ГОСТ 111-78.
5.12. Испытание стекла на изгиб
5.12.1. Сущность метода заключается в проверке способности стекла выдерживать соответствующую нагрузку без разрушения.
5.12.2. Аппаратура
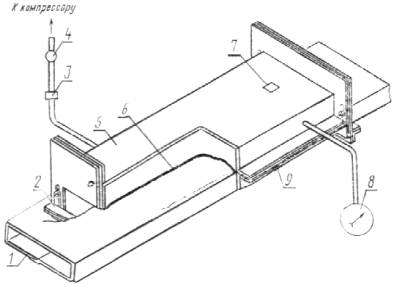
Испытательный стенд. Схема стенда указана на черт. 2.

1 - образец; 2 - опора; 3 - трехходовой кран; 4 - вентиль; 5 - короб; 6 - резиновая мембрана; 7 - предохранительный клапан; 8 - манометр; 9 - крепежные уголки
Черт. 2
Манометр по ГОСТ 6521-72 или напоромер по ГОСТ 2648-78 с пределом измерений 60 кПа (0,6 кгс/см2).
5.12.3. Проведение испытания
Образец 1 укладывают на опоры 2, имеющие резиновые прокладки толщиной не менее 10 мм, вплотную к мембране 6. Швеллерное или ребристое стекло укладывают ребрами вниз, а коробчатое швом вниз. Открывают вентиль 4 для подачи воздуха и создания избыточного давления в полости короба 5.
Время нагружения образца коробчатого стекла должно быть не менее 4 мин, а швеллерного и ребристого - 6 мин.
Каждый образец выдерживают под соответствующей нагрузкой, измеряемой манометром 8, не менее 30 с, после чего нагрузку снимают с помощью трехходового крана 3. Во избежание выхода из строя мембраны 6 предусматривают предохранительный клапан 7, срабатывающий при деформации мембраны в случае разрушения образца 1, и прокладку из ткани между мембраной и образцом.
6.1. Стекло должно быть упаковано в транспортные пакеты по техническим условиям, утвержденным в установленном порядке.
Примечание. Допускается до 1 января 1985 г. транспортирование стекла без упаковки в пакеты. В этом случае стекло должно транспортироваться с расшивкой деревянными планками и заполнением свободного пространства стружкой или другими уплотняющими материалами.
6.2. В каждый транспортный пакет должен быть вложен ярлык, в котором указывают:
наименование или товарный знак предприятия-изготовителя;
условное обозначение стекла;
количество стекла, м2;
номер упаковщика и дату упаковывания.
6.3. Правила маркирования тары - по ГОСТ 14192-77.
6.4. Предприятие-изготовитель должно сопровождать каждую партию стекла документом о качестве установленной формы, в котором указывают:
наименование и адрес предприятия-изготовителя;
наименование, цвет и условное обозначение стекла;
количество стекла, м2;
результаты физико-механических испытаний;
номер партии и дату изготовления;
наименование уплотнителей и герметиков.
6.5. Вся товаросопроводительная документация на стекло высшей категории качества должна иметь изображение государственного Знака качества по ГОСТ 1.9-67.
6.6. Упакованное стекло транспортируют любым видом транспорта в соответствии с правилами перевозки грузов, действующими на конкретном виде транспорта, утвержденными в установленном порядке.
При транспортировании, погрузке и выгрузке стекла должны приниматься меры, обеспечивающие его сохранность от механических повреждений.
При транспортировании тара должна быть установлена так, чтобы торцы стекла были расположены по направлению движения транспорта.
6.7. Стекло должно храниться в закрытых помещениях или под навесом стопами. Коробчатое и швеллерное стекло должно быть уложено на боковую поверхность, а ребристое - плашмя с перекладкой каждого ряда деревянными планками, расположенными на расстоянии 1/4 длины стекла от его торцов.
Число рядов в стопе не должно превышать для коробчатого и швеллерного стекла четырех при его ширине 244, 250, 294 мм и двух при ширине 500 мм, а ребристого - десяти.
7.1. Монтаж и эксплуатацию конструкций из стекла следует производить в соответствии с указаниями по проектированию, монтажу и эксплуатации конструкций из профильного стекла.
Справочное
Требования ГОСТ 21992-83 к швеллерному стеклу марок ШП-250, ШП-300, ШП-500 высшей категории качества соответствуют СТ СЭВ 2682-80.
Справочное
|
Марка стекла |
Справочная масса 1 м, кг | ||||||
|
Толщина 5,5 мм |
Толщина 6,0 мм | ||||||
|
Высота, мм |
Высота, мм | ||||||
|
35 |
40 |
50 |
55 |
35 |
40 |
50 | |
|
ШП-240 |
4,3 |
- |
- |
- |
- |
- |
- |
|
ШП-250 |
- |
4,5 |
4,8 |
- |
- |
4,9 |
5,2 |
|
ШП-300 |
5,0 |
5,1 |
5,4 |
- |
5,5 |
5,6 |
5,9 |
|
ШП-500 |
- |
7,9 |
8,2 |
- |
- |
8,6 |
8,9 |
|
КП-1-250 |
- |
- |
8,5 |
- |
- |
- |
- |
|
КП-1-300 |
- |
- |
9,7 |
- |
- |
- |
- |
|
КП-2-250 |
- |
- |
- |
8,9 |
- |
- |
- |
|
КП-2-300 |
- |
- |
- |
10,1 |
- |
- |
- |
|
РП-600 |
- |
- |
10,6 |
- |
- |
- |
- |
Справочное
|
Тип стекла |
Характеристика поверхности стекла |
Коэффициент светопропускания стекла, не менее |
|
Швеллерное и ребристое неармированное |
Гладкая |
0,65 |
|
Рифленая, узорчатая |
0,55 | |
|
Швеллерное и ребристое армированное |
Гладкая |
0,55 |
|
Коробчатое неармированное |
Гладкая |
0,55 |
|
Рифленая, узорчатая |
0,50 | |
|
Коробчатое армированное |
Гладкая |
0,50 |
Рекомендуемое
Размеры в мм
|
Форма и размеры |
Материал |
Назначение |
|
|
Морозостойкая резина средней твердости |
Насадка для уплотнения и защиты торцов профильного стекла марок КП-1-300 и КП-1-250 |
|
| ||
|
|
То же |
То же, для швеллерного стекла |
|
| ||
|
|
Профильный нетвердеющий герметик Бутэпрол-2 или резина губчатая плотностью не более 500 кг/м3 |
Прокладка для уплотнения стыков между элементами коробчатого стекла |
|
|
Профильный нетвердеющий герметик Бутэпрол-2 или резина губчатая плотностью не более 500 кг/м3 |
Прокладка для уплотнения стыков между элементами швеллерного стекла |
|
|
Губчатая резина плотностью не более 500 кг/м3 |
Прокладка для уплотнения стыков между элементами коробчатого стекла |
|
|
Гернит по ГОСТ 19177-81 |
Прокладка для уплотнения стыков между стеной и простенками (или рамой в стеклопанелях) |
Для герметизации стыков с уплотнителями из профильного нетвердеющего герметика Бутэпрол-2 и губчатой резины применяется герметик нетвердеющий Бутэпрол-2м или тиоколовые мастики УТ-32, АМ-0,5 или ТМ-0,5.
Уплотнители герметики и мастики изготавливаются по техническим условиям, утвержденным в установленном порядке.
СОДЕРЖАНИЕ
|
1. Типы и основные размеры.. 1 2. Технические требования. 3 3. Комплектность. 5 4. Правила приемки. 5 5. Методы испытаний. 7 6. Маркировка, упаковка, транспортирование и хранение. 8 7. Указания по монтажу и эксплуатации. 9 Приложение 1 Информационные данные о соответствии гост 21992-82 ст сэв 2682- 80. 9 Приложение 2 Справочная масса стекла. 9 Приложение 3 Коэффициент светопропускания стекла. 10 Приложение 4 Форма, размеры, материал и назначение уплотнителей. 10 |