ТРУБЫ МЕТАЛЛИЧЕСКИЕ
И СОЕДИНИТЕЛЬНЫЕ ЧАСТИ К НИМ
Часть 4
ТРУБЫ ИЗ ЧЕРНЫХ МЕТАЛЛОВ И СПЛАВОВ
ЛИТЫЕ И СОЕДИНИТЕЛЬНЫЕ ЧАСТИ К НИМ.
ОСНОВНЫЕ РАЗМЕРЫ.
МЕТОДЫ ТЕХНОЛОГИЧЕСКИХ ИСПЫТАНИЙ
ТРУБ
ГОСТ 8953-75*
Москва
ИПК ИЗДАТЕЛЬСТВО СТАНДАРТОВ
1998
ГОСУДАРСТВЕННЫЙ СТАНДАРТ СОЮЗА ССР
|
СОЕДИНИТЕЛЬНЫЕ ЧАСТИ ИЗ КОВКОГО ЧУГУНА Основные размеры Ductile iron fittings with parallel |
ГОСТ Взамен |
Постановлением Государственного комитета стандартов Совета Министров СССР от 14.11.75 № 2901 дата введения установлена
01.01.77
Ограничение срока действия снято по протоколу Межгосударственного Совета по стандартизации, метрологии и сертификации (ИУС 2-93)
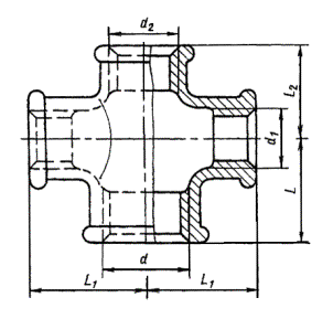
1. Основные размеры крестов должны соответствовать указанным на чертеже и в таблице.

Примечание. Чертеж не определяет конструкцию креста.
Размеры в мм
|
Условный
проход |
Резьба |
L |
L1 |
L2 |
Масса без покрытия, кг, не более* |
|||
|
d |
d1 |
d2 |
Вариант по ГОСТ 8944-75 |
|||||
|
1 |
2 |
|||||||
|
20´15´15 |
G 3/4 - В |
G 1/2 - В |
G 1/2 - В |
30 |
31 |
28 |
0,200 |
0,180 |
|
20´20´15 |
G 3/4 - В |
G 3/4 - В |
G 1/2 - В |
33 |
33 |
31 |
0,264 |
0,217 |
|
25´15´20 |
G 1 - В |
G 1/2 - В |
G 3/4 - В |
32 |
34 |
30 |
0,252 |
0,230 |
|
25´20´20 |
G 1 - В |
G 3/4 - В |
G 3/4 - В |
35 |
36 |
33 |
0,316 |
0,268 |
|
32´20´25 |
G 13/4- В |
G 3/4 - В |
G 1 - В |
36 |
41 |
35 |
0,396 |
0,342 |
* Для справок.
Примечание. Масса оцинкованных соединительных частей не должна превышать массу неоцинкованных более чем на 5 %.
Примеры условных обозначений
Креста с двумя переходами без покрытия с Dу 25 мм на Dу1 15 мм и Dу2 20 мм:
Крест 25´15´20 ГОСТ 8953-75
То же, с цинковым покрытием:
Крест Ц-25´15´20 ГОСТ 8953-75
(Измененная редакция, Изм. № 1).
2. Конструктивные размеры и технические требования - по ГОСТ 8944-75.