ТРУБЫ
МЕТАЛЛИЧЕСКИЕ
И СОЕДИНИТЕЛЬНЫЕ ЧАСТИ
К НИМ
Часть 4
ТРУБЫ ИЗ ЧЕРНЫХ МЕТАЛЛОВ И СПЛАВОВ
ЛИТЫЕ И СОЕДИНИТЕЛЬНЫЕ ЧАСТИ К НИМ.
ОСНОВНЫЕ РАЗМЕРЫ.
МЕТОДЫ ТЕХНОЛОГИЧЕСКИХ ИСПЫТАНИЙ
ТРУБ
ГОСТ 8959-75*
Москва
ИПК ИЗДАТЕЛЬСТВО СТАНДАРТОВ
1998
ГОСУДАРСТВЕННЫЙ СТАНДАРТ СОЮЗА ССР
|
СОЕДИНИТЕЛЬНЫЕ ЧАСТИ ИЗ КОВКОГО ЧУГУНА Основные размеры Ductile iron fittings with |
ГОСТ Взамен |
Постановлением Государственного комитета стандартов Совета Министров СССР от 14.11.75 № 2901 дата введения установлена
01.01.77
Ограничение срока действия снято по протоколу Межгосударственного Совета по стандартизации, метрологии и сертификации (ИУС 2-93)
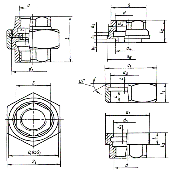
1. Основные размеры гаек должны соответствовать указанным на чертеже и в таблице.

Примечание. Чертеж не определяет конструкцию гайки.
Размеры в мм
|
Условный проход Dy |
Резьба d |
Накидная гайка |
d3 |
d4 |
d5 |
d6 |
Размер «под ключ» |
b1 |
b2 |
b3 |
b4 |
L |
L2 |
L3 |
Диаметр прокладки |
Масса без покрытия, кг, не более* |
||||||||
|
Резьба d1 |
l |
L1 |
Размер «под ключ» |
b |
d2 |
|||||||||||||||||||
|
S1ном S1наиб |
S |
Sном Sнаиб |
Sнаим |
наружной |
внутренней |
|||||||||||||||||||
|
8 |
G 1/4 - В |
G 3/4 - B |
10 |
18 |
32 |
30,0 |
4 |
22,0 |
21,7 |
16,7 |
17 |
24,0 |
19 |
17,7 |
3,5 |
2,5 |
2,5 |
5 |
42 |
21,0 |
21,0 |
24 |
17 |
0,216 |
|
10 |
G 3/8 - B |
G 7/8 - В |
10 |
18 |
36 |
34,0 |
4 |
25,0 |
24,7 |
18,7 |
19 |
27,5 |
22 |
20,7 |
3,5 |
2,5 |
2,5 |
5 |
45 |
24,0 |
23,0 |
27 |
19 |
0,282 |
|
15 |
G 1/2 - B |
G 11/8 - В |
11 |
19 |
46 |
44,0 |
4 |
32,0 |
31,7 |
23,7 |
24 |
34,5 |
27 |
25,7 |
4,0 |
3,0 |
2,5 |
5 |
48 |
25,0 |
25,0 |
34 |
24 |
0,464 |
|
20 |
G 3/4 - B |
G 11/4 - В |
12 |
20 |
50 |
48,0 |
4 |
36,0 |
35,6 |
26,6 |
27 |
38,5 |
32 |
30,0 |
4,0 |
3,0 |
2,5 |
5 |
52 |
27,0 |
27,0 |
38 |
27 |
0,588 |
|
25 |
G 1 - B |
G 13/4 - B |
13 |
23 |
65 |
62,6 |
5 |
48,0 |
47,6 |
37,6 |
38 |
50,5 |
41 |
39,0 |
5,0 |
4,0 |
3,0 |
6 |
58 |
31,5 |
29,5 |
50 |
38 |
1,091 |
|
32 |
G 11/4 - B |
G 2 - B |
13 |
24 |
70 |
67,2 |
6 |
53,0 |
52,6 |
41,6 |
42 |
56,0 |
50 |
48,0 |
5,0 |
4,0 |
3,0 |
7 |
65 |
35,0 |
33,0 |
55 |
42 |
1,423 |
|
40 |
G 11/2 - B |
G 21/4 - В |
14 |
25 |
75 |
72,2 |
6 |
59,5 |
59,1 |
45,5 |
46 |
62,5 |
55 |
52,6 |
5,0 |
4,0 |
3,0 |
7 |
70 |
37,0 |
36,0 |
62 |
46 |
1,702 |
|
50 |
G 2 - B |
G 23/4 - В |
16 |
27 |
90 |
87,2 |
6 |
74,0 |
73,6 |
59,6 |
60 |
78,0 |
66 |
65,0 |
6,0 |
5,0 |
3,0 |
7 |
78 |
41,5 |
40,5 |
77 |
60 |
2,522 |
|
(65) |
G 21/2 - В |
G 31/2 - В |
19 |
30 |
110 |
107,0 |
6 |
92,0 |
91,5 |
74,5 |
75 |
97,0 |
83 |
81,8 |
6,0 |
5,0 |
3,0 |
7 |
85 |
44,0 |
45,0 |
96 |
75 |
4,078 |
|
(80) |
G 3 - В |
G 4 - B |
20 |
31 |
130 |
127,0 |
6 |
104,5 |
104,0 |
87,5 |
88 |
109,5 |
96 |
94,6 |
6,0 |
5,0 |
3,0 |
8 |
95 |
48,5 |
50,5 |
109 |
88 |
5,922 |
(Поправка от 01.10.2004 г.).
* Для справок.
Примечания:
1. Масса оцинкованных соединительных частей не должна превышать массу неоцинкованных более чем на 5%.
2. Соединительные гайки с Dу, указанными в таблице в скобках, применять не рекомендуется.
Примеры условных обозначений
Гайки соединительной без покрытия с Dу 40 мм:
Гайка соединительная 40 ГОСТ 8959-75
То же, с цинковым покрытием:
Гайка соединительная Ц-40 ГОСТ 8959-75
(Измененная редакция, Изм. № 1).
2. Конструктивные размеры и технические требования - по ГОСТ 8944-75.
3. Толщины стенок не должны быть менее
и
.