Нормативные документы размещены исключительно с целью ознакомления учащихся ВУЗов, техникумов и училищ.
Объявления:

ГОСУДАРСТВЕННЫЙ СТАНДАРТ СОЮЗА ССР

ЕДИНАЯ СИСТЕМА ЗАЩИТЫ ОТ КОРРОЗИИ И СТАРЕНИЯ

ПЛАСТМАССЫ

МЕТОДЫ ИСПЫТАНИЙ НА СТАРЕНИЕ
ПРИ ВОЗДЕЙСТВИИ ЕСТЕСТВЕННЫХ
И ИСКУССТВЕННЫХ КЛИМАТИЧЕСКИХ ФАКТОРОВ

ГОСТ 9.708-83
(СТ СЭВ 3758-82)

ГОСУДАРСТВЕННЫЙ КОМИТЕТ СССР ПО СТАНДАРТАМ

Москва

РАЗРАБОТАН Министерством химической промышленности

ИСПОЛНИТЕЛИ

Г. И. Файдель, канд. техн. наук; Н. Н. Павлов, канд. хим. наук; Е. Л. Татевосян, канд. хим. наук; Е. Н. Дубровина

ВНЕСЕН Министерством химической промышленности

Зам. министра Е. Ф. Власкин

УТВЕРЖДЕН И ВВЕДЕН В ДЕЙСТВИЕ Постановлением Государственного комитета СССР по стандартам от 19 декабря 1983 г. № 6358

ГОСУДАРСТВЕННЫЙ СТАНДАРТ СОЮЗА ССР

Единая система защиты от коррозии и старения

ПЛАСТМАССЫ

Методы испытаний на старение
при воздействии естественных
и искусственных климатических факторов

Unified system of corrosion and ageing protection
plastics. Ageing test methods on exposureto natural
and artificial climatic factors

ГОСТ
9.708-83

(CT СЭВ 3758-82)

Взамен
ГОСТ 17170-71,
ГОСТ 17171-71

Постановлением Государственного комитета СССР по стандартам от 19 декабря 1983 г. № 6253 срок действия установлен

с 01.01.85

до 01.01.92

Несоблюдение стандарта преследуется по закону

Настоящий стандарт распространяется на пластмассы в ненапряженном состоянии и устанавливает методы испытаний на старение при воздействии естественных и искусственных климатических факторов.

Методы предназначены для сравнительной оценки стойкости пластмасс к указанному старению.

Настоящий стандарт не предусматривает корреляции между результатами испытаний при воздействии естественных и искусственных климатических факторов.

Стандарт полностью соответствует СТ СЭВ 3758-82.

1. МЕТОД 1

1.1. Сущность метода заключается в том, что образцы подвергают воздействию естественных климатических факторов на климатических станциях в течение заданной продолжительности испытаний и определяют стойкость к указанному воздействию по изменению одного или нескольких показателей свойств (физико-механических, электрических, оптических, внешнего вида и т.п.).

Показатель устанавливают в стандартах или технических условиях на пластмассы.

1.2. Отбор образцов

1.2.1. Форма и размеры образцов для испытаний должны соответствовать требованиям стандарта на метод определения показателя.

1.2.2. Способ и условия изготовления образцов указывают в стандартах на пластмассы.

При изготовлении образцов вырезанием из слоистых пластмасс, содержащих волокнистый наполнитель, торцевые части образцов покрывают связующим, на основе которого изготовлена пластмасса.

1.2.3. Количество образцов для испытаний (N) при использовании разрушающего метода определения показателя вычисляют по формуле

N = N0 + n×Ki×d + NK,

где N0 - количество образцов для определения значения показателя до испытаний, которое устанавливают в соответствии со стандартами на метод определения показателя;

п - количество образцов для определения значения показателя после одного периода испытаний, при условии 5 £ n £ 25;

Ki - количество периодов испытаний;

d - количество климатических районов, в которых проводят испытания;

NK - количество контрольных образцов, где N = п×Кi.

При использовании неразрушающего метода определения показателя количество образцов для испытаний вычисляют по формуле

N = n×d + NK

1.3. Аппаратура

Испытания проводят на климатических станциях, соответствующих требованиям ГОСТ 9.906-83 и оборудованных:

стендами с изменяемым углом наклона рамы к горизонту;

кассетами или другими приспособлениями для закрепления образцов. Схема кассеты приведена в рекомендуемом приложении 1.

Приспособления для закрепления образцов не должны подвергаться коррозии и биоповреждениям в заданном климатическом районе и оказывать влияния на результат испытаний.

1.4. Подготовка к испытаниям

1.4.1. Стенды на станциях располагают таким образом, чтобы рабочая поверхность образца была ориентирована на юг под заданным углом наклона к линии горизонта. Угол наклона в зависимости от географической широты места расположения станции устанавливают по таблице.

Географическая широта, °

Угол наклона, °

От 0 до 10

5

» 10 » 20 »

15

» 20 » 30

25

» 30 » 40

35

» 40 » 50

45

В технически обоснованных случаях допускается размещать образцы под углом 10 или 90°.

На стенд не должна падать тень в светлое время суток, а также не должно быть воздействия искусственного источника света в темноте.

1.4.2. Перед испытаниями образцы закрепляют в кассете или другом приспособлении и маркируют, не повреждая рабочую часть образца.

Конструкция кассеты и других приспособлений для закрепления образцов должна обеспечивать свободное изменение линейных размеров образцов в процессе их испытаний. Образцы испытывают без подложки.

Если испытуемая пластмасса применяется в изделиях вместе с подложкой, то образцы испытывают на подложке. Подложку используют также в качестве опоры при испытаниях пленок. При этом подложку изготовляют из материала, не оказывающего воздействия на испытуемую пленку.

1.4.3. По данным метеорологических наблюдений определяют значения следующих климатических факторов:

среднюю суточную относительную влажность, %, и температуру каждого месяца испытаний, °С;

среднюю максимальную и среднюю минимальную относительную влажность, %, и температуру каждого месяца испытаний, °С;

продолжительность солнечного сияния, ч., каждого месяца испытаний и среднее значение продолжительности солнечного сияния за месяц, ч;

количество атмосферных осадков для каждого месяца испытаний, мм.

В качестве дополнительных данных определяют концентрацию SO2, NO2, CO, CО2, NH3 в воздухе.

1.5. Проведение испытаний

1.5.1. Значение показателя до испытаний определяют в соответствии со стандартом на метод определения показателя.

1.5.2. Испытания проводят в соответствии с принятой программой испытаний в представительных пунктах климатических районов по ГОСТ 16350-80.

Программу испытаний устанавливают по согласованию с заказчиком в соответствии с требованиями, указанными в обязательном приложении 2.

Для определения стойкости пластмасс к воздействию отдельных климатических факторов образцы размещают в жалюзийной будке, под навесом или в неотапливаемом хранилище.

1.5.3. Испытания начинают весной, предпочтительно в марте, если нет других указаний в программе испытаний.

1.5.4. Продолжительность испытаний должна быть не менее одного года и не более 5 лет, если нет других указаний в программе испытаний. Контроль показателя в процессе испытаний проводят через 1, 3, 6, 9, 12 мес., в дальнейшем не реже одного раза в год, если нет других указаний в программе испытаний.

1.5.5. Контрольные образцы в течение всей продолжительности испытаний хранят в темном помещении при температуре (23 ± 2) °С и относительной влажности (50 ± 5) % по ГОСТ 12423-66.

1.5.6. Образцы, подготовленные по п. 1.4.2., размещают на стендах и в течение заданной продолжительности испытаний проводят контроль показателя в соответствии с требованиями п. 1.5.4.

Для контроля внешнего вида образцы осматривают с целью выявления видимых невооруженным глазом изменений (трещин, вздутий, изменения цвета и т.п.).

Для контроля физико-механических, электрических, оптических и других показателей образцы снимают со стенда и, при необходимости, очищают от загрязнений. При очистке не должна быть повреждена поверхность образца. Химические моющие средства или растворители применять не допускается.

1.5.7. Значение показателя испытуемых и контрольных образцов определяют в соответствии с требованиями п. 1.5.1.

1.5.8. Результаты испытаний записывают в протокол, который должен содержать следующие данные:

географический район размещения климатической станции;

значения климатических факторов;

географическую широту и высоту над уровнем моря пункта размещения станции;

дату начала и окончания испытаний и периодичность контроля показателя;

наименование и марку испытуемой пластмассы;

способ и условия изготовления образцов;

условия испытаний (угол наклона рамы, наличие или отсутствие подложки, применение навеса, жалюзийной будки и т.п.),

значения коэффициентов сохранения свойств к моменту времени t;

обозначение стандарта на метод определения показателя;

обозначение настоящего стандарта.

1.6. Обработка результатов

1.6.1. За результат испытаний принимают среднее арифметическое значение показателя, вычисленное из результатов испытаний п образцов в соответствии со стандартом на метод определения показателя.

1.6.2. Коэффициенты сохранения свойств (Кt и К) в процентах вычисляют по формулам

где Pt - значение показателя после испытаний к моменту времени t, определяемое по п. 1.5.7;

Р - значение показателя контрольного образца к моменту времени t, определяемое по п. 1.5.7;

Р0 - значение показателя до испытаний, определяемое по п. 1.5.1.

1.6.3. Результаты испытаний представляют в форме, таблицы или графика, показывающих зависимость коэффициентов сохранения свойств пластмасс от продолжительности испытаний.

2. МЕТОД 2

2.1. Сущность метода заключается в том, что образцы подвергают воздействию искусственно созданных климатических факторов в аппарате искусственной погоды в течение заданной продолжительности испытаний и определяют стойкость к указанному воздействию по изменению одного или нескольких показателей свойств (физико-механических, электрических, оптических, внешнего вида и т.п.).

Показатель устанавливают в стандартах или технических условиях на пластмассы.

2.2. Отбор образцов

2.2.1. Образцы для испытаний должны соответствовать требованиям п.п. 1.2.1; 1.2.2.

2.2.2. Количество образцов для испытаний (N) при использовании разрушающего метода определения показателя вычисляют по формуле

N = N0 + n×Ki.g

где N0 - количество образцов для определения значения показателя до испытаний, которое устанавливают в соответствии со стандартом на метод определения показателя;

п - количество образцов для определения значения показателя после одного периода испытаний при условии 5 £ п £ 25;

Ki - количество периодов испытаний;

g - количество режимов испытаний.

При использовании неразрушающего метода определения показателя количество образцов для испытаний (N) вычисляют по формуле

N = n×g.

2.3. Аппаратура, материалы

Аппарат искусственной погоды (АИП) на ксеноновых излучателях по ГОСТ 23750-79, обеспечивающий:

создание, регулирование и поддержание при испытаниях заданных значений температуры с предельной допускаемой погрешностью ±2 °С, относительной влажности ±5 %;

дождевание в соответствии с требованиями справочного приложения 3;

световой поток с поверхностной плотностью энергии интегрального излучения 1000 Вт/м2. При этом плотность потока энергии ультрафиолетового излучения в области длин волн короче 400 нм должна быть не менее 68 Вт/м2. Контроль плотности потока энергии ультрафиолетового излучения в указанной области длин волн проводят в соответствии с требованиями ГОСТ 16948-79. В технически обоснованных случаях допускается применять другие источники светового излучения, обеспечивающие указанные требования к световому потоку;

вращение барабана испытательной камеры вокруг источника светового излучения с частотой не более 6 об/мин.

АИП должен быть снабжен кассетами или другими устройствами для закрепления образцов на барабане испытательной камеры, изготовленными из материалов, не оказывающих влияния на результат испытаний.

Термометр с черной панелью, который устанавливают в держателе для образца так, чтобы его черная сторона была обращена к лампе.

Вода дистиллированная по ГОСТ 6709-72.

2.4. Проведение испытаний

2.4.1. Исходное значение показателя определяют в соответствии со стандартом на метод определения показателя.

2.4.2. Образцы закрепляют в кассетах или других приспособлениях и размещают их на барабане испытательной камеры АИП без подложки. При этом конструкция применяемых для закрепления приспособлений должна исключать возможность возникновения механических напряжений в образце при его нагреве.

2.4.3. Температуру черной панели и относительную влажность в камере в зависимости от типа испытуемой пластмассы и цели испытаний выбирают из следующего ряда:

45 °С, 55 °С, 65 °С; 35 %, 50 %, 65 %, 90 %.

Значения температуры и влажности устанавливают в соответствии со стандартами или техническими условиями на пластмассы.

При необходимости дополнительного увлажнения образцов проводят дождевание как указано в справочном приложении 3. Для дождевания используют дистиллированную воду.

2.4.4. Количество действующих на образцы факторов и их сочетания выбирают в соответствии с программой испытаний, которую устанавливают по согласованию с заказчиком в соответствии с требованиями, указанными в обязательном приложении 2.

2.4.5. Отсчет продолжительности испытаний начинают с момента достижения в камере АИП заданного режима испытаний. Продолжительность испытаний должна быть не менее 500 ч, если в программе не установлено другое значение.

Испытания проводят непрерывно. В технически обоснованных случаях допускаются перерывы в работе оборудования продолжительностью не более 10 % от общей продолжительности испытаний.

2.4.6. Образцы в процессе испытаний периодически осматривают и контролируют показатели по п. 2.4.1 через 24, 48, 96, 168 ч и далее через интервалы кратные 168 ч.

2.4.7. Результаты испытаний записывают в протокол, который должен содержать:

наименование и марку пластмассы;

тип источника излучения;

способ и условия изготовления образцов;

режим испытаний (количество и сочетания климатических факторов, их значения, продолжительность испытаний, периодичность определения показателя и т.п.);

сведения об изменении внешнего вида;

значение показателя до испытаний;

значение показателя после периода испытаний к моменту времени t;

значение коэффициента сохранения свойств;

обозначение стандарта на метод определения показателя;

обозначение настоящего стандарта.

2.5. Обработка результатов

2.5.1. За результат испытаний принимают среднее арифметическое значение показателя, вычисленное из результатов испытаний п образцов в соответствии со стандартом на метод определения показателя.

2.5.2. Коэффициент сохранения свойств (Kt) в процентах вычисляют по формуле

где Pt - значение показателя после испытании к моменту времени t, определяемое по п. 2.4.6;

Р0 - значение показателя до испытаний, определяемое по п. 2.4.1.

2.5.3. Результаты испытаний представляют в форме таблицы или графика, показывающих зависимость коэффициента сохранения свойств от продолжительности испытаний.

2.5.4. Сопоставимыми считают результаты испытаний, полученные при использовании одного типа источника излучения и одинаковых режиме испытаний, способе и условиях изготовления образцов.

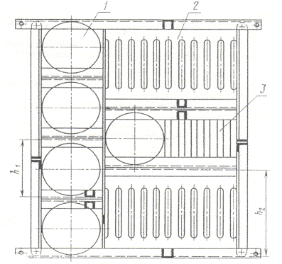
ПРИЛОЖЕНИЕ 1

Рекомендуемое

1 - образец в форме диска; 2 - образец в форме лопатки; 3 - образец в форме бруска; h1 - высота рамки для образца 1; h2 - высота рамки для образца 2

ПРИЛОЖЕНИЕ 2

Обязательное

ПРОГРАММА ИСПЫТАНИЙ

Программа испытаний должна содержать:

цель испытаний;

характеристику объекта испытаний (марку материала, химический состав, способ и условия изготовления образцов и т.п.);

показатели свойств, подлежащие контролю в процессе испытаний;

обозначения стандартов на методы определения показателей;

дату начала испытаний;

продолжительность испытаний;

перечень действующих на объект испытаний климатических факторов, их сочетания и количественные значения;

периодичность осмотра или отбора образцов для контроля показателей;

количество периодов испытаний;

расчет количества образцов для определения показателя после одного периода испытаний (п) для обеспечения попадания среднего арифметического значения показателя в доверительный интервал с вероятностью не менее 0,7 в соответствии с требованиями ГОСТ 9.707-81.

ПРИЛОЖЕНИЕ 3

Справочное

УСЛОВИЯ ДОЖДЕВАНИЯ

мин

Продолжительность дождевания

Продолжительность сухого периода

1

29

3

17

5

25

12

48

18

102

СОДЕРЖАНИЕ

1. Метод 1. 2

2. Метод 2. 4

Приложение 1. 6

Приложение 2 Программа испытаний. 7

Приложение 3 Условия дождевания. 7

 

2008-2013. ГОСТы, СНиПы, СанПиНы - Нормативные документы - стандарты.