ГОСТ Р 41.7-99
(Правила ЕЭК ООН № 7)
ЕДИНООБРАЗНЫЕ ПРЕДПИСАНИЯ, КАСАЮЩИЕСЯ ОФИЦИАЛЬНОГО УТВЕРЖДЕНИЯ ПЕРЕДНИХ ГАБАРИТНЫХ ОГНЕЙ, ЗАДНИХ ГАБАРИТНЫХ (БОКОВЫХ) ОГНЕЙ, СИГНАЛОВ ТОРМОЖЕНИЯ И КОНТУРНЫХ ОГНЕЙ МЕХАНИЧЕСКИХ ТРАНСПОРТНЫХ СРЕДСТВ (ЗА ИСКЛЮЧЕНИЕМ МОТОЦИКЛОВ) И ИХ ПРИЦЕПОВ
ГОССТАНДАРТ РОССИИ
Москва
СОДЕРЖАНИЕ
1. РАЗРАБОТАН Всероссийским научно-исследовательским институтом стандартизации и сертификации в машиностроении (ВНИИНМАШ) на основе Правил ЕЭК ООН № 7, принятых Рабочей группой по конструкции транспортных средств КВТ ЕЭК ООН
ВНЕСЕН Госстандартом России
2. ПРИНЯТ И
ВВЕДЕН В ДЕЙСТВИЕ Постановлением Госстандарта России от 26 мая
3. Настоящий стандарт представляет собой идентичный текст Правил ЕЭК ООН № 7, Пересмотр 2 (документ E/ECE/324-E/ECE/TRANS/505/Add.5/Rev.2, дата вступления в силу 13.01.93) «Единообразные предписания, касающиеся официального утверждения указателей поворота механических транспортных средств и их прицепов» и включает в себя:
- Пересмотр 2 - Поправка 1 (документ E/ECE/324-E/ECE/TRANS/505/Add.5/Rev.2/Amend.l, дата вступления в силу 11.02.96);
- Пересмотр 2 - Поправка 2 (документ E/ECE/324-E/ECE/TRANS/505/Add.5/Rev.2/Amend.2, дата вступления в силу 03.09.97).
4. ВВЕДЕН ВПЕРВЫЕ
5. ИЗДАНИЕ
(март
ГОСУДАРСТВЕННЫЙ СТАНДАРТ РОССИЙСКОЙ ФЕДЕРАЦИИ
|
ЕДИНООБРАЗНЫЕ ПРЕДПИСАНИЯ, КАСАЮЩИЕСЯ ОФИЦИАЛЬНОГО УТВЕРЖДЕНИЯ ПЕРЕДНИХ ГАБАРИТНЫХ ОГНЕЙ, ЗАДНИХ ГАБАРИТНЫХ (БОКОВЫХ) ОГНЕЙ, СИГНАЛОВ ТОРМОЖЕНИЯ И КОНТУРНЫХ ОГНЕЙ МЕХАНИЧЕСКИХ ТРАНСПОРТНЫХ СРЕДСТВ (ЗА ИСКЛЮЧЕНИЕМ МОТОЦИКЛОВ) И ИХ ПРИЦЕПОВ Uniform provisions concerning the approval of front and rear position (side) lamps, stop-lamps and end-outline marker lamps for motor vehicles (except motor cycles) and their trailers |
Дата введения 2000-07-01
Настоящий стандарт вводит в действие Правила ЕЭК ООН № 7 (далее - Правила).
В настоящих Правилах применяют следующие термины с соответствующими определениями.
1.1 передний габаритный огонь: Огонь, предназначенный для сигнализации наличия и габаритной ширины транспортного средства спереди;
1.2 задний габаритный (боковой) огонь: Огонь, предназначенный для сигнализации наличия и габаритной ширины транспортного средства сзади;
1.3 сигнал торможения: Огонь, предназначенный для подачи другим участникам дорожного движения, находящимся сзади транспортного средства, сигнала о том, что водитель привел в действие рабочий тормоз. Сигналы торможения могут включаться посредством использования замедлителя или аналогичного устройства;
1.4 контурный огонь: Огонь, установленный вблизи крайних внешних углов и как можно ближе к высшей точке транспортного средства и предназначенный для ясного обозначения габарита транспортного средства по ширине. На некоторых автотранспортных средствах и прицепах эти огни предназначаются для дополнения габаритных (боковых) огней транспортного средства и привлечения особого внимания к его контурам;
1.5 передние габаритные огни и задние габаритные (боковые) огни, сигналы торможения и огни для обозначения контуров различных типов: Огни, которые отличаются в каждой из указанных категорий по таким основным элементам, как:
- торговая или фабричная марка;
- характеристики оптической системы (уровни силы света, углы распределения света, тип ламп накаливания и т.д.);
- система уменьшения освещенности в ночное время в отношении сигналов торможения с двумя уровнями силы света.
1.6 Остальные термины и определения - по Правилам ЕЭК ООН № 48.
2.1 Заявка на официальное утверждение представляется владельцем фабричной или торговой марки или его надлежащим образом уполномоченным представителем. В ней должны быть указаны:
2.1.1 функция или функции, для которых предназначается представляемое для официального утверждения устройство и может ли оно использоваться также в сочетании двух огней одного и того же вида (типа);
2.1.2 в случае контурного огня - предназначается ли он для излучения белого или красного света;
2.1.3 в случае передних габаритных огней или задних габаритных (боковых) огней - предназначены ли они для излучения белого, селективного желтого или красного света.
2.2 Для каждого типа устройств к заявке должны быть приложены:
2.2.1 чертежи в трех экземплярах, достаточно подробные для того, чтобы можно было идентифицировать тип устройства, и указывающие геометрические условия монтажа на транспортном средстве, а также ось наблюдения, которая принимается при испытаниях в качестве исходной оси (горизонтальный угол Н = 0°, вертикальный угол V = 0°), и точку, которая принимается при испытаниях в качестве исходного центра. На чертежах должно быть указано место, предназначенное для номера официального утверждения и дополнительных знаков относительно круга знака официального утверждения;
2.2.2 краткое техническое описание, в котором, за исключением ламп с несменными источниками света, указывается, в частности, категория или категории предписываемых ламп накаливания; эта категория ламп накаливания должна входить в число категорий, предусмотренных в Правилах ЕЭК ООН № 37;
2.2.3 в отношении сигналов торможения с двумя уровнями силы света - принципиальная схема и перечень характеристик системы, обеспечивающий два уровня силы света;
2.2.4 два образца; если официальное утверждение распространяется на устройства, которые не являются идентичными, однако являются симметричными и предназначены для установки с правой и левой сторон транспортного средства, то оба представленных образца могут быть идентичными и пригодными для установки только с правой или только с левой стороны транспортного средства; в случае сигнала торможения с двумя уровнями силы света к заявке также прилагаются два образца частей, образующих систему, обеспечивающую два уровня силы света.
На устройствах, представленных на официальное утверждение:
3.1 должны проставляться фабричная или торговая марка предприятия, представившего заявку на официальное утверждение. Эта маркировка должна быть четкой и нестираемой;
3.2 должна быть сделана четкая и нестираемая отметка, указывающая категорию или категории предписываемых ламп накаливания; это положение не применяется к лампам с несменными источниками света;
3.3 должно быть предусмотрено место достаточной величины для знака официального утверждения и дополнительных обозначений, предусмотренных в 4.2; это место должно быть указано на чертежах, упомянутых в 2.2.1.
3.4 В случае ламп с несменными источниками света должна наноситься маркировка, указывающая номинальное напряжение и мощность.
4.1 Общие положения
4.1.1 Официальное утверждение предоставляется в том случае, если оба устройства, представленные во исполнение 2.2.4, удовлетворяют предписаниям настоящих Правил.
4.1.2 Если два или несколько огней являются частью одного и того же устройства сгруппированных, комбинированных или совмещенных огней, то официальное утверждение может быть предоставлено только в том случае, если каждый из этих огней отвечает предписаниям, изложенным в настоящих Правилах или в других Правилах. Огни, не отвечающие предписаниям этих Правил, не должны включаться в такое устройство сгруппированных, комбинированных или совмещенных огней.
Настоящее положение не применяется к фарам, в которых используются лампы с двойной нитью накаливания и в которых официально утверждается только один луч света.
4.1.3 Каждому официально утвержденному типу присваивается номер официального утверждения. Первые две цифры этого номера указывают серию поправок (в настоящее время 02), включающую самые последние значительные технические изменения, внесенные в Правила к моменту предоставления официального утверждения. Одна и та же Договаривающаяся сторона не может присваивать один и тот же номер другому типу устройства, на которое распространяются настоящие Правила, за исключением случаев распространения официального утверждения на устройство, которое отличается от уже официально утвержденного устройства лишь по цвету испускаемого света.
4.1.4 Стороны Соглашения 1958 года, применяющие настоящие Правила, уведомляются об официальном утверждении или распространении официального утверждения, или об отказе в официальном утверждении, или об отмене официального утверждения, об окончательном прекращении производства типа устройства на основании настоящих Правил посредством карточки, соответствующей образцу, приведенному в приложении 2.
4.1.5 На каждом устройстве, соответствующем типу, официально утвержденному на основании настоящих Правил, в месте, указанном в 3.3, помимо маркировки, предписанной соответственно в 3.1 и 3.2 или 3.4, должен проставляться знак официального утверждения, о котором говорится в 4.2 и 4.3.
4.2 Содержание знака официального утверждения
Знак официального утверждения состоит из:
4.2.1 Международного знака официального утверждения, включающего:
4.2.1.1 круг, в котором проставлена буква Е, за которой следует отличительный номер страны, предоставившей официальное утверждение 1);
1) 1 - Германия, 2 - Франция, 3 - Италия, 4 - Нидерланды, 5 - Швеция, 6 - Бельгия, 7 - Венгрия, 8 - Чешская Республика; 9 - Испания, 10 - Югославия, 11 - Соединенное Королевство, 12 - Австрия, 13 - Люксембург, 14 - Швейцария, 15 - не присвоен, 16 - Норвегия, 17 - Финляндия, 18 - Дания, 19 - Румыния, 20 - Польша, 21 - Португалия, 22 - Российская Федерация, 23 - Греция, 24 - не присвоен, 25 - Хорватия, 26 - Словения, 27 - Словакия, 28 - Беларусь, 29 - Эстония, 30 - не присвоен, 31 - Босния и Герцеговина, 32 - 36 - не присвоены, 37 - Турция, 38 - 39 - не присвоены и 40 - бывшая югославская Республика Македония. Последующие порядковые номера присваиваются другим странам в хронологическом порядке ратификации ими Соглашения о принятии единообразных технических предписаний для колесных транспортных средств, предметов оборудования и частей, которые могут быть установлены и (или) использованы на колесных транспортных средствах, и об условиях взаимного признания официальных утверждений, выдаваемых на основе этих предписаний, или в порядке их присоединения к этому Соглашению. Присвоенные им таким образом номера сообщаются Генеральным секретарем Организации Объединенных Наций Договаривающимся сторонам Соглашения.
4.2.1.2 номер официального утверждения, предписанный в 4.1.3.
4.2.2 Следующих дополнительных знаков и обозначений:
4.2.2.1 на устройствах, соответствующих требованиям настоящих Правил, касающихся передних габаритных огней, - буквы А;
4.2.2.2 на устройствах, соответствующих требованиям настоящих Правил, касающихся задних габаритных (боковых) огней, - буквы R;
4.2.2.3 на устройствах, отвечающих требованиям настоящих Правил, касающихся сигналов торможения, - буквы S, за которой следует цифра:
- 1 - для устройства с одним уровнем силы света;
- 2 - для устройства с двумя уровнями силы света;
- 3 - для устройства, которое отвечает конкретным требованиям, предъявляемым к сигналам торможения категории S3;
4.2.2.4 на устройствах, состоящих одновременно из заднего габаритного (бокового) огня и сигнала торможения и отвечающих требованиям настоящих Правил, касающихся таких огней, - буквы R и, в зависимости от случая, знаков S1 или S2, отделенных дефисом;
4.2.2.5 на передних габаритных огнях или задних габаритных огнях, углы видимости которых асимметричны в отношении исходной оси в горизонтальном направлении, - стрелки, направленной острием в ту сторону, на которой предписанные фотометрические характеристики удовлетворены в пределах угла 80°Н;
4.2.2.6 на огнях, которые могут использоваться как одиночные огни, а также в качестве составной части двух огней, - дополнительной буквы D справа от знака, упомянутого в 4.2.2.1 - 4.2.2.4;
4.2.3 двух цифр номера
официального утверждения (в настоящее время 02, что соответствует поправкам
серии 02, которые вступили в силу 5 мая
4.2.4 знаки и обозначения, упомянутые в 4.2.1 и 4.2.2, должны быть ясно видимыми и нестираемыми даже тогда, когда устройство установлено на транспортном средстве.
4.3 Схема знака официального утверждения
4.3.1 Отдельные огни
В пунктах 1 - 4 приложения 3 приводятся примеры знака официального утверждения с упомянутыми выше дополнительными обозначениями.
4.3.2 Сгруппированные, комбинированные или совмещенные огни
4.3.2.1 Если сгруппированные, комбинированные или совмещенные огни отвечают требованиям нескольких Правил, то на них может проставляться единый международный знак официального утверждения, состоящий из круга, в котором проставлена буква Е, за которой следует отличительный номер страны, предоставившей официальное утверждение, и номер официального утверждения. Этот знак официального утверждения может проставляться в любом месте на сгруппированных, комбинированных или совмещенных огнях при условии, что:
4.3.2.1.1 он хорошо различим после их установки;
4.3.2.1.2 ни одна из частей сгруппированных, комбинированных или совмещенных огней не может быть снята с транспортного средства без удаления знака официального утверждения.
4.3.2.2 Отличительный знак для каждого огня, соответствующий Правилам, на основании которых было выдано официальное утверждение, вместе с соответствующей серией поправок, включающих последние основные технические изменения, внесенные в настоящие Правила к моменту выдачи официального утверждения и, в случае необходимости, соответствующая стрелка, должны наноситься:
4.3.2.2.1 либо на соответствующую светоиспускающую поверхность.
4.3.2.2.2 либо на весь узел таким образом, что каждый из сгруппированных, комбинированных или совмещенных огней мог быть легко идентифицирован.
4.3.2.3 Размеры элементов единого знака официального утверждения должны быть не меньше минимального размера, предписываемого для самых маленьких отдельных знаков, проставляемых на основании официального утверждения.
4.3.2.4 Каждому утвержденному типу должен соответствовать свой номер официального утверждения. Одна и та же Договаривающаяся сторона не может присваивать один и тот же номер другому типу сгруппированных, комбинированных или совмещенных огней, подпадающих под действие настоящих Правил.
4.3.2.5 В пункте 5 приложения 3 приведены примеры знаков официального утверждения для сгруппированных, комбинированных или совмещенных огней и все упомянутые выше дополнительные обозначения.
4.3.3 Огни, совмещенные с таким типом фары, рассеиватель которой также используется для фар других типов
В данном случае применяются предписания, изложенные в 4.3.2.
4.3.3.1 Однако если в различных типах фар или отдельных узлах огней, включая фару, используется один и тот же рассеиватель, то на таком рассеивателе могут проставляться различные знаки официального утверждения, относящиеся к соответствующим типам фар или отдельным узлам огней при условии, что на основном корпусе фары, даже если его нельзя отделить от рассеивателя, также имеется место, описанное в 3.3, и на нем проставлены знаки официального утверждения, соответствующие его фактическим функциям. Если для различных типов фар используется один и тот же основной корпус, то на этом корпусе могут проставляться различные знаки официального утверждения.
4.3.3.2 В пункте 6 приложения 3 приведены примеры знаков официального утверждения для совмещенной фары.
5.1 Каждое представленное устройство должно соответствовать спецификациям, перечисленным в разделах 6 и 8.
5.2 Устройства должны быть спроектированы и сконструированы таким образом, чтобы в обычных условиях эксплуатации и несмотря на вибрацию, которой они могут при этом подвергаться, обеспечивалось их удовлетворительное функционирование и чтобы они сохраняли характеристики, предписанные настоящими Правилами.
5.3 Огни, утвержденные в качестве передних габаритных огней или задних габаритных (боковых) огней, считаются также официально утвержденными в качестве контурных огней.
5.4 Передние габаритные огни и задние габаритные (боковые) огни, которые являются сгруппированными, комбинированными или совмещенными огнями, могут также использоваться в качестве контурных огней.
6.1 По исходной оси сила света, испускаемого каждым из представленных устройств, должна быть не ниже минимальной и не выше максимальной из указанных ниже значений.
|
1) |
Минимальные значения силы света, кд |
Максимальные значения, кд, при использовании в качестве |
||
|
одиночного огня |
огня (одиночного) с отметкой D (4.2.2.6) |
суммарной величины для комбинации двух огней (4.2.2.6) |
||
|
6.1.1 Передние габаритные огни, передние огни для обозначения контуров транспортного средства |
4 |
60 2) |
42 2) |
84 2) |
|
6.1.2 Передние габаритные огни, совмещенные с фарами |
4 |
100 2) |
- |
- |
|
6.1.3 Задние габаритные огни, задние огни для обозначения контуров транспортного средства |
4 |
12 2) |
8,5 2) |
17 2) |
|
6.1.4 Сигналы торможения: |
|
|
|
|
|
6.1.4.1 с одним уровнем силы света (категория S1) |
60 |
185 2) |
130 2) |
260 2) |
|
6.1.4.2 с двумя уровнями силы света (категория S2): |
|
|
|
|
|
6.1.4.2.1в дневное время |
130 |
520 2) |
366 2) |
728 2) |
|
6.1.4.2.2 в ночное время |
30 |
80 2) |
56 2) |
112 2) |
|
6.1.4.3 сигналы торможения категории S3 |
25 |
80 |
55 |
110 |
|
1) Установка указанных выше устройств на механических транспортных средствах и их прицепах предписывается соответствующими Правилами, касающимися установки устройств освещения и световой сигнализации (Правила ЕЭК ООН № 48 и Правила ЕЭК ООН № 53). 2) Суммарное значение максимальной силы света комбинации из двух огней получают путем умножения на 1,4 значения, предписанного для одного огня. В случае, если комбинация из двух огней, имеющих одно и то же значение, рассматривается в целях установки на транспортном средстве в качестве «одиночного огня» (в соответствии с определением в Правилах ЕЭК ООН № 48 и в тех сериях поправок к ним, которые применялись на дату подачи заявки на официальное утверждение типа) сила света каждого отдельного огня, входящего в «одиночный огонь», должна соответствовать требуемым минимальным значениям силы света, причем сила света двух огней, взятых вместе, не должна превышать максимальных допустимых значений (последняя колонка таблицы). В случае одного огня, имеющего более одного источника света: характеристики этого огня должны соответствовать требуемым минимальным значениям силы света, когда один из источников света вышел из строя, и когда включены все источники света, максимальные допустимые значения силы света для одного огня могут быть превышены при условии, что на нем отсутствует маркировка в виде буквы D и не превышаются максимально допустимые показатели силы света для комбинации из двух огней (последняя колонка таблицы). |
||||
6.2 Вне исходной оси и в пределах полей видимости, определенных на схемах в приложении 1, сила света, испускаемого каждым из двух представленных образцов:
6.2.1 должна в каждом направлении, соответствующем точкам в таблице распределения света, приведенной в приложении 4, быть не меньше произведения минимального значения, указанного в 6.1, на процент, указанный в этой таблице для данного направления;
6.2.2 не должно ни в одном из направлений пространства, в пределах которого может быть видно устройство световой сигнализации, превышать максимальное значение, указанное в 6.1;
6.2.3 однако для габаритных (боковых) огней, совмещенных с сигналами торможения (см. 6.1.3) ниже плоскости, образующей с горизонтальной плоскостью направленный вниз угол в 5°, допускается сила света в 60 кд;
6.2.4 кроме того,
6.2.4.1 по всей площади полей видимости, определенных на схемах в приложении 1, сила испускаемого света должна быть не менее 0,05 кд для передних габаритных огней, задних габаритных (боковых) огней и контурных огней, не менее 0,3 кд - для сигналов торможения с одним уровнем силы света и для сигналов торможения с двумя уровнями силы света - 0,3 кд в дневное время и 0,7 кд в ночное время;
6.2.4.2 если задний габаритный (боковой) огонь совмещен с сигналом торможения, то соотношение между фактически измеренной силой света двух этих огней, включенных одновременно, и силой света заднего габаритного (бокового) огня, включенного отдельно, должно быть не менее 5:1 в поле, ограниченном прямыми горизонтальными линиями, проходящими через точки ± 5° V и прямыми вертикальными линиями, проходящими через точки ± 10° Н (таблица распределения света). Если сигнал торможения имеет два уровня силы света, то это положение должно соблюдаться в том случае, если он работает в ночном режиме;
6.2.4.3 предписания 2.2 приложения 4, касающиеся местных колебаний силы света, должны соблюдаться.
6.3 Сила света измеряется с помощью постоянно включенной лампы (ламп) накаливания, причем, когда речь идет об устройствах, испускающих селективный желтый или красный свет, - с помощью цветных ламп.
6.4 Для сигнала торможения с двумя уровнями силы света промежуток времени с момента включения электричества до того момента, когда сила света, измеренная в направлении исходной оси, достигает 90 % значения, измеряемого в соответствии с 6.3, измеряется как в дневных, так и в ночных условиях эксплуатации. Время, измеренное для ночных условий эксплуатации, не должно превышать времени, измеренного для дневных условий эксплуатации.
6.5 В приложении 4 приводятся указания в отношении методов измерения, которые следует применять.
7.1 Все измерения должны производиться с помощью стандартной лампы накаливания белого цвета категории, предписанной для данного устройства, при напряжении питания, отрегулированном на излучении нормального светового потока, предписанного для этой категории ламп.
7.1.1 Все измерения на огнях с несъемными источниками света (лампами накаливания и др.) должны производиться при напряжении 6,75; 13,5 или 28,0 В соответственно.
В случае источников света со специальным блоком питания вышеуказанное испытательное напряжение подается на входные клеммы этого блока питания. Испытательная лаборатория может потребовать от изготовителя предоставить этот специальный блок питания, необходимый для питания источников света.
7.2 Однако при испытании работы сигнала торможения, у которого в ночном режиме используется дополнительная система, напряжение, подаваемое на систему при измерении ночной силы света, должно быть равным напряжению, которое подавалось на лампы накаливания при измерении силы света в дневном режиме работы 1).
1) Условия работы и установки этих дополнительных систем будут определяться специальными предписаниями.
7.3 В том случае, когда задний габаритный (боковой) огонь взаимно совмещен с сигналом торможения, имеющим два уровня силы света, и предусмотрено его постоянное функционирование с дополнительной системой, предназначенной для регулирования силы испускаемого света, измерение характеристик испускаемого света должно осуществляться при таком напряжении, которое при подаче его на лампу обеспечило бы предписанный нормальный световой поток.
7.4 Вертикальный и горизонтальный профили освещающей поверхности устройства световой сигнализации (1.6.2) определяются и измеряются по отношению к исходному центру (1.6.5).
Цвет испускаемого света должен быть в пределах координат, предписываемых для данного цвета в приложении 5.
Процедуры обеспечения соответствия производства должны соответствовать процедурам, изложенным в добавлении 2 к Соглашению (E/ECE/324-E/ECE/TRANS/505/Rev.2), с учетом следующих предписаний:
9.1 Огни, официально утвержденные на основании настоящих Правил, изготавливаются таким образом, чтобы они соответствовали официально утвержденному типу и отвечали требованиям, изложенным в разделах 6 и 8.
9.2 Должны соблюдаться минимальные предписания в отношении процедур контроля за соответствием производства, изложенные в приложении 6.
9.3 Должны соблюдаться минимальные предписания в отношении производимого инспектором отбора образцов, изложенные в приложении 7.
9.4 Компетентный орган, предоставивший официальное утверждение по типу, может в любое время проверить методы контроля за соответствием производства, применяемые на каждом производственном объекте. Обычно эти проверки проводятся с периодичностью один раз в два года.
10.1 Официальное утверждение устройства может быть отменено, если не соблюдаются изложенные выше условия.
10.2 Если какая-либо Договаривающаяся сторона Соглашения, применяющая настоящие Правила, отменяет предоставленное ею ранее официальное утверждение, она немедленно сообщает об этом другим Договаривающимся сторонам, применяющим настоящие Правила, посредством карточки сообщения, соответствующей образцу, приведенному в приложении 2.
Если владелец
официального утверждения полностью прекращает производство устройства,
утвержденного на основании настоящих Правил, то он должен сообщить об этом
компетентному органу, предоставившему официальное утверждение. По получении
соответствующего сообщения этот компетентный орган информирует об этом другие
Стороны Соглашения
Статья 3 Соглашения, к которому прилагаются настоящие Правила, оставляет за Договаривающимися сторонами Соглашения право запрещать использовать в устройствах, устанавливаемых на транспортных средствах, которые они регистрируют, определенные цвета, предусмотренные в настоящих Правилах, или запрещать применение на всех или некоторых категориях транспортных средств, которые они регистрируют, сигналов торможения лишь с одним уровнем силы света.
Стороны Соглашения
14.1 Стороны Соглашения, применяющие настоящие Правила:
14.1.1 продолжают признавать официальные утверждения, предоставленные в соответствии с первоначальным вариантом (серии 00), без поправок, или с поправками серии 01 к настоящим Правилам в отношении установки устройств для замены на транспортных средствах, находящихся в эксплуатации;
14.1.2 могут предоставлять официальные утверждения устройств на основании документа E/ECE/324-E/ECE/TRANS/505/Add.6 (без поправок или с поправками серии 01) при условии, что эти устройства предназначены для замены на находящихся в эксплуатации транспортных средствах и что с технической точки зрения невозможно обеспечить, чтобы данные устройства отвечали новым требованиям, содержащимся в поправках серии 02;
14.1.3 могут запрещать установку устройств, которые не отвечают требованиям настоящих Правил:
14.1.3.1 на транспортные средства, на которые утверждение по типу конструкции или индивидуальное утверждение было выдано по истечении двух лет после вступления в силу поправок серии 02 к настоящим Правилам;
14.1.3.2 на транспортные средства, введенные в эксплуатацию по истечении пяти лет после вступления в силу поправок серии 02 к настоящим Правилам.
14.2 Допускается использовать устройства, имеющие знак официального утверждения, предписанный в первоначальном варианте настоящих Правил (серия 00) или с внесенными в него поправками серии 01, после истечения сроков, определенных в 14.1.3.1 и 14.1.3.2.
14.3 Официальные утверждения в соответствии с поправками серии 01 могут быть предоставлены в течение 24 месяцев после даты вступления в силу поправок настоящей серии.
14.4 Предоставленные официальные утверждения сохраняют свое действие.
Минимальные вертикальные углы распределения света расположены в пространстве на 15° выше и на 15° ниже горизонтали для всех категорий устройств, включенных в настоящие Правила, за исключением сигнала торможения категории S3, для которого эти углы составляют 10° выше и 5° ниже горизонтали.
1) Углы, изображенные на данных схемах, соответствуют приспособлениям, предназначенным для установки на правой стороне транспортного средства. Стрелки на этих схемах направлены острием к передней части транспортных средств.

[Максимальный формат: А4 (210x297 мм)]

направленное_______________________________
наименование административного органа
касающееся 2) ОФИЦИАЛЬНОГО УТВЕРЖДЕНИЯ,
РАСПРОСТРАНЕНИЯ ОФИЦИАЛЬНОГО УТВЕРЖДЕНИЯ,
ОТКАЗА В ОФИЦИАЛЬНОМ УТВЕРЖДЕНИИ,
ОТМЕНЫ ОФИЦИАЛЬНОГО УТВЕРЖДЕНИЯ ИЛИ
ОКОНЧАТЕЛЬНОГО ПРЕКРАЩЕНИЯ ПРОИЗВОДСТВА
типа устройства________________________________________________________________
на основании Правил ЕЭК ООН № 7
Официальное утверждение №__________________ Распространение №________________
1. Фабричная или торговая марка устройства_______________________________________
2. Наименование, присвоенное типу устройства предприятием-изготовителем___________
3. Наименование и адрес предприятия-изготовителя
4. Фамилия и адрес представителя предприятия-изготовителя (в соответствующих случаях).________________________________________________________________________
5. Представлено на официальное утверждение (дата)________________________________
6. Техническая служба, уполномоченная проводить испытания для официального утверждения.____________________________________________________________________
7. Дата выдачи протокола технической службой____________________________________
8. Номер протокола____________________________________________________________
9. Категория:
цвет испускаемого света: красный/селективный желтый/ белый 2) _____________________
количество и категория лампы (ламп) накаливания__________________________________
10. Расположение знака официального утверждения_________________________________
11. Причина (причины) распространения официального утверждения (в случае необходимости)__________________________________________________________________
12. Официальное утверждение предоставлено /официальное утверждение распространено/ в официальном утверждении отказано /официальное утверждение отменено 2)_____________
_____________________________________________________________________________
13. Место_____________________________________________________________________
14. Дата____________________________________________________________________________
15. Подпись___________________________________________________________________
16. Перечень документов, которые были переданы административной службе, предоставившей официальное утверждение, и которые можно получить по просьбе, содержится в приложении к настоящему сообщению.
1) Отличительный номер страны, которая предоставила /распространила/ отменила официальное утверждение или отказала в официальном утверждении (см. положения Правил, касающиеся официального утверждения).
2) Ненужное вычеркнуть.
Примечание - Для ламп с несменными источниками света указать количество и общую мощность источников света.
1 Передний габаритный огонь

Устройство является передним габаритным огнем, официально утвержденным в Нидерландах (Е4), номер официального утверждения 221, на основании Правил ЕЭК ООН № 7.
Число, указанное рядом с символом А, означает, что официальное утверждение предоставлено в соответствии с требованиями Правил ЕЭК ООН № 7, включающих поправки серии 02. Стрелка указывает сторону, на которой фотометрические характеристики удовлетворены в пределах угла 80° Н.

2 Задний габаритный (боковой) огонь
Устройство является задним габаритным огнем, который официально утвержден в Нидерландах (Е4), номер официального утверждения 221, на основании Правил ЕЭК ООН № 7 и который может быть также использован в комбинации двух задних габаритных (боковых) огней.
Число, указанное под символом RD, означает, что официальное утверждение предоставлено в соответствии с требованиями Правил ЕЭК ООН № 7, включающих поправки серии 02.
Отсутствие стрелки означает, что как в правом, так и в левом направлениях предписанные фотометрические характеристики удовлетворены в пределах угла 80° Н.

3 Сигнал торможения
Устройство является сигналом торможения с одним уровнем силы света, официально утвержденным в Нидерландах (Е4), номер официального утверждения 221, на основании Правил ЕЭК ООН № 7.
Число, указанное под символом S1, означает, что официальное утверждение предоставлено в соответствии с требованиями Правил ЕЭК ООН № 7, включающих поправки серии 02.

4 Устройство, состоящее из заднего габаритного (бокового) огня и сигнала торможения
Устройство является устройством, состоящим из заднего габаритного (бокового) огня, совмещенного с сигналом торможения, с двумя уровнями силы света, официально утвержденным в Нидерландах (Е4), номер официального утверждения 221, на основании Правил ЕЭК ООН № 7.
Число, указанное под символом RD-S2D, означает, что официальное утверждение предоставлено в соответствии с требованиями Правил ЕЭК ООН № 7 с внесенными в них поправками серии 02. Задний габаритный (боковой) огонь совмещен с сигналом торможения с двумя уровнями силы света, который также может быть использован в комбинации двух огней.
Отсутствие стрелки означает, что как в правом, так и левом направлениях предписанные фотометрические характеристики удовлетворены в пределах угла 80° Н.
Примечание - Номер официального утверждения и дополнительные обозначения должны проставляться вблизи круга и располагаться над или под буквой Е, справа или слева от этой буквы. Цифры номера официального утверждения должны располагаться с той же стороны по отношению к букве Е и быть ориентированы в том же направлении. Номер официального утверждения и дополнительные обозначения, включая номер серии поправок к соответствующим правилам, если таковые имеются, должны располагаться с диаметрально противоположных сторон круга.
Следует избегать использования римских цифр для номеров официального утверждения, чтобы их нельзя было перепутать с другими обозначениями.
5 Упрощенная маркировка сгруппированных, комбинированных или совмещенных огней, когда два или несколько огней являются частью одного устройства
(Вертикальные и горизонтальные линии служат для схематического изображения формы устройства световой сигнализации и не являются частью знака официального утверждения).

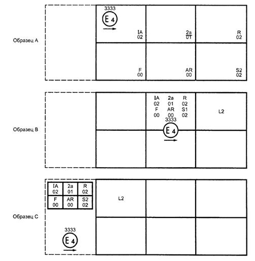
Примечание - Три приведенные образца знаков официального утверждения (образцы А, В и С) представляют собой три возможные варианта маркировки световых устройств в тех случаях, когда два или несколько огней входят в состав одного узла сгруппированных, комбинированных или совмещенных огней.
Они показывают, что данное устройство было официально утверждено в Нидерландах (Е4), номер официального утверждения 3333, и включает:
светоотражающее приспособление класса Iа, официально утвержденное в соответствии с поправками серии 02 к Правилам ЕЭК ООН № 3;
задний указатель поворота категории 2а, официально утвержденный в соответствии с поправками серии 01 к Правилам ЕЭК ООН № 6;
задний габаритный (боковой) огонь красного цвета (R), официально утвержденный в соответствии с поправками серии 02 к Правилам ЕЭК ООН № 7;
задний противотуманный огонь (F), официально утвержденный в соответствии с Правилами ЕЭК ООН № 38 в их первоначальном варианте;
фара заднего хода (AR), официально утвержденный в соответствии с Правилами ЕЭК ООН № 23 в их первоначальном варианте;
сигнал торможения с двумя уровнями освещения (S2), официально утвержденный в соответствии с поправками серии 02 к Правилам ЕЭК ООН № 7.
Примечание - Три приведенных ниже образца знака официального утверждения (образцы D, Е и F) соответствуют световому устройству, имеющему знак официального утверждения и включающему:
передний габаритный огонь, официально утвержденный в соответствии с поправками серии 02 к Правилам ЕЭК ООН № 7;
фару с лучом ближнего света, предназначенную для право- и левостороннего движения, и с лучом дальнего света максимальной силы света от 86 250 до 111 250 кд (о чем свидетельствует номер 30), официально утвержденную в соответствии с поправками серии 02 к Правилам ЕЭК ООН № 20;
переднюю противотуманную фару, официально утвержденную в соответствии с поправками серии 02 к Правилам ЕЭК ООН № 19;
передний указатель поворота категории 1а, официально утвержденный в соответствии с поправками серии 01 к Правилам ЕЭК ООН № 6.

6 Совмещенная фара

Приведенный выше образец соответствует маркировке рассеивателя, предназначенного для использования в фарах различного типа, а именно:
либо: в фаре с лучом ближнего света, предназначенным для право- и левостороннего движения, и лучом дальнего света максимальной силы света от 86250 до 111250 кд (о чем свидетельствует номер 30), которая официально утверждена в Германии (Е1) в соответствии с требованиями Правил ЕЭК ООН № 8, включающих поправки серии 04, и которая совмещена с передним габаритным огнем, официально утвержденным в соответствии с поправками серии 02 к Правилам ЕЭК ООН № 7;
либо: в фаре с лучом ближнего света, предназначенным для право- и левостороннего движения, и лучом дальнего света, которая официально утверждена в Германии (Е1) в соответствии с требованиями Правил ЕЭК ООН № 1, включающих поправки серии 01, и которая совмещена с передним габаритным огнем, о котором говорится выше;
либо: в любой из упомянутых выше фар, даже если она официально утверждена в качестве отдельного огня.
Основной корпус фары должен иметь только действующий знак официального утверждения, например:

1. Методы измерения
1.1 При фотометрических измерениях побочные отражения устраняются путем надлежащей маскировки.
1.2 Если правильность результатов подвергается сомнению, то измерения необходимо проводить с соблюдением следующих условий:
1.2.1 расстояние измерения должно быть таким, чтобы мог применяться закон обратной величины квадрата расстояния;
1.2.2 измерительный
прибор должен быть таким, чтобы угловая апертура приемника, рассматриваемая из
центра отсчета огня, находилась в пределах угла
и 1°;
1.2.3 требование относительно силы света в определенном направлении наблюдения считается выполненным, если оно соблюдается в направлении, отклоняющемся не более чем на 1/4° от направления наблюдения.
2. Таблица нормального распределения света в пространстве

Таблица распределения света для сигнала торможения категории S3
|
10° |
32 |
-1- |
64 |
-1- |
32 |
|
5° |
64 |
100 |
100 |
100 |
64 |
|
0° |
64 |
100 |
100 |
100 |
64 |
|
5° |
64 |
100 |
100 |
100 |
64 |
|
|
10° |
5° |
0° |
5° |
10° |
2.1 Направление Н = 0° и V = 0° соответствует исходной оси (на транспортном средстве оно является горизонтальным, параллельным средней продольной плоскости транспортного средства и ориентированным в предписанном направлении видимости). Оно проходит через исходный центр. Значения, указанные в таблице, показывают - по отдельным направлениям измерения - минимальную силу света в процентах от требуемого минимального значения по оси для каждого огня (в направлении Н= 0° и V= 0°).
2.2 В пределах предусмотренного в пункте 2 поля распределения света, схематично представленного решеткой, структура светового потока должна быть в основном однородной, т.е. сила света в каждом направлении части поля, образуемой линиями решетки, должна соответствовать, по крайней мере, наиболее низкому минимальному значению, указанному в процентах на линиях решетки, окружающих данное направление.
3 Фотометрическое измерение огней, оснащенных несколькими источниками света
Производится проверка фотометрических характеристик:
3.1 несъемных источников света (ламп накаливания и др.) с использованием имеющихся в огнях источников света в соответствии с 7.1.1 настоящих Правил;
3.2 съемных ламп накаливания:
в случае оснащения лампами накаливания серийного производства 6,75; 13,5 или 28,0 В полученные значения силы света должны находиться между максимальным пределом, указанным в настоящих Правилах, и минимальным пределом, указанным в настоящих Правилах, и увеличенным в соответствии с допустимым отклонением светового потока, которое разрешено для типа выбранной лампы накаливания, как предусмотрено в Правилах ЕЭК ООН № 37 для ламп накаливания серийного производства. Вместо этого в каждом из отдельных положений дополнительно может быть использована эталонная лампа накаливания, параметры которой соответствуют контрольному потоку, причем в этом случае учитывается суммарное значение отдельных измерений в каждом положении.
КООРДИНАТЫ ЦВЕТНОСТИ
|
КРАСНЫЙ |
предел в |
сторону |
желтого |
y |
≤ 0,335 |
|
|
“ |
“ |
пурпурного |
z |
≤ 0,008 |
|
БЕЛЫЙ |
предел в |
сторону |
синего |
x |
≥ 0,310 |
|
|
“ |
“ |
желтого |
x |
≤ 0,500 |
|
|
“ |
“ |
зеленого |
y |
≤ 0,150 + 0,640х |
|
|
“ |
“ |
зеленого |
y |
≤ 0,440 |
|
|
“ |
“ |
пурпурного |
y |
≥ 0,050 + 0,750x |
|
|
“ |
“ |
красного |
y |
≥ 0,382 |
|
СЕЛЕКТИВНЫЙ ЖЕЛТЫЙ |
предел в |
сторону |
красного |
y |
≥ 0,138 + 0,580х |
|
|
“ |
“ |
зеленого |
y |
≤ 1,29x - 0,100 |
|
|
“ |
“ |
белого |
y |
≥ -х + 0,966 |
|
|
предел в сторону значения |
спектрального |
y |
≤ -х + 0,992 |
|
Однако проверка колориметрических характеристик огней с несъемными источниками света (лампами накаливания и др.) проводится с использованием имеющихся в огнях источников света в соответствии с 8.1 настоящих Правил.
1. Общие положения
1.1 С точки зрения механических и геометрических характеристик требования в отношении соответствия считаются выполненными, если различия не превышают неизбежных производственных отклонений в рамках предписаний настоящих Правил.
1.2 Что касается фотометрических характеристик, то соответствие серийных огней считается доказанным, если при фотометрическом испытании любого произвольно выбранного огня, оснащенного стандартной лампой накаливания, или огней, оснащенных несменными источниками света (лампами накаливания или другими источниками), и проведении всех измерений при напряжении 6,75; 13,5 или 28,0 В, соответственно:
1.2.1 ни одно из измеренных значений не отличается в неблагоприятную сторону более чем на 20 % от тех значений, которые предписаны в настоящих Правилах;
1.2.2 если огонь оснащен сменным источником света и если результаты описанного выше испытания не соответствуют предъявляемым требованиям, то огни подвергаются повторным испытаниям с использованием другой стандартной лампы накаливания.
1.3 Координаты цветности должны быть удовлетворительными, когда огонь оснащен стандартной лампой накаливания или, в случае огней, оснащенных несменными источниками света (лампами накаливания или другими источниками), когда колориметрические характеристики проверяются на источнике света, имеющемся в огне.
2. Минимальные предписания в отношении проверки соответствия, проводимой предприятием-изготовителем
Владелец знака официального утверждения проводит через соответствующие промежутки времени, по крайней мере, нижеследующие испытания огней каждого типа. Испытания проводят в соответствии с положениями настоящих Правил.
Если в ходе определенного типа испытания выявляется несоответствие каких-либо отобранных образцов, то отбираются и испытываются новые образцы. Предприятие-изготовитель принимает меры для обеспечения соответствия данного производства.
2.1 Характер испытаний
Испытания на соответствие, предусматриваемые в настоящих Правилах, касаются фотометрических и колориметрических характеристик.
2.2 Методы, используемые при проведении испытаний
2.2.1 Испытания, как правило, проводятся в соответствии с методами, изложенными в настоящих Правилах.
2.2.2 При любом испытании на соответствие производства, проводимом предприятием-изготовителем, с согласия компетентного органа, ответственного за проведение испытаний на официальное утверждение, могут применяться другие равноценные методы. Предприятие-изготовитель отвечает за обеспечение того, чтобы применяемые методы были равноценны методам, предусмотренным в настоящих Правилах.
2.2.3 Применение 2.2.1 и 2.2.2 требует регулярной калибровки испытательной аппаратуры и сопоставления регистрируемых с ее помощью данных с измерениями, произведенными компетентным органом.
2.2.4 Во всех случаях эталонными являются те методы, которые описаны в настоящих Правилах, особенно при проведении проверки и отборе образцов административным органом.
2.3 Характер отбора образцов
Образцы огней отбираются произвольно из партии готовых однородных изделий. Под партией однородных изделий подразумевается набор огней одного типа, определенного в соответствии с производственными методами, используемыми предприятием-изготовителем.
В целом оценка проводится на серийной продукции отдельных заводов. Вместе с тем предприятие-изготовитель может собрать данные о производстве огней одного и того же типа на нескольких заводах при условии, что они руководствуются одинаковыми критериями качества и используют одинаковые методы управления качеством.
2.4 Измеряемые и регистрируемые фотометрические характеристики
Отобранный огонь подвергается фотометрическим измерениям на предмет определения минимальных значений в точках, перечисленных в приложении 4, и координат цветности, перечисленных в приложении 5, как это предусмотрено в Правилах.
2.5 Критерии приемлемости
Предприятие-изготовитель несет ответственность за проведение статистического анализа результатов испытаний и за определение, по согласованию с компетентным органом, критериев приемлемости его продукции в целях выполнения предписаний в отношении проверки соответствия продукции, предусмотренных в 9.1 настоящих Правил.
Критерии приемлемости являются таковыми, что при уровне уверенности 95 % минимальная вероятность успешного прохождения выборочной проверки в соответствии с требованиями приложения 7 (первый отбор образцов) должна составлять 0,95.
1. Общие положения
1.1 С точки зрения механических и геометрических характеристик требования в отношении соответствия считаются выполненными согласно предписаниям настоящих Правил (когда такие требования сформулированы), если различия не превышают неизбежных производственных отклонений.
1.2 Что касается фотометрических характеристик, то соответствие серийных огней считается доказанным, если при фотометрическом испытании любого произвольно выбранного огня, оснащенного стандартной лампой накаливания, или огней, оснащенных несменными источниками света (лампами накаливания или другими источниками), и когда все измерения проводятся при напряжении 6,75; 13,5 или 28,0 В, соответственно:
1.2.1 ни одно из измеренных значений не отличается в неблагоприятную сторону более чем на 20 % от тех значений, которые предписаны в настоящих Правилах;
1.2.2 Если огонь оснащен сменным источником света и результаты описанного выше испытания не соответствуют предъявляемым требованиям, то огни подвергаются повторным испытаниям с использованием другой стандартной лампы накаливания;
1.2.3 Огни с явными неисправностями не учитываются.
1.3 Координаты цветности должны быть удовлетворительными, когда огонь оснащен стандартной лампой накаливания или, в случае огней, оснащенных несменными источниками света (лампами накаливания или другими источниками), когда колориметрические характеристики проверяются на источнике света, имеющемся в огне.
2. Первый отбор образцов
В ходе первого отбора образцов произвольно выбираются четыре огня. Первые два образца обозначаются буквой А, а вторые два образца - буквой В.
2.1 Соответствие считается доказанным
2.1.1 После проведения процедуры отбора образцов, указанной на рисунке 1 настоящего приложения, соответствие производства серийных огней считается доказанным, если отклонения измеренных значений для огней в неблагоприятную сторону составляют:
2.1.1.1 образец А
А1: для одного огня, % 0
для другого огня, %, не более. 20
А2: для обоих огней, %, более 0
но не более, % 20
перейти к образцу В
2.1.1.2 образец В
В1: для обоих огней, % 0
2.1.2 или если выполнены условия, изложенные в 1.2.2 в отношении образца А.
2.2 Соответствие не считается доказанным
2.2.1 После проведения процедуры отбора образцов, указанной на рисунке 1 настоящего приложения, соответствие производства серийных огней не считается доказанным и предприятию-изготовителю предлагается обеспечить соответствие производства предъявляемым требованиям (привести его в соответствие с этими требованиями), если отклонения измеренных значений для огней составляют:
2.2.1.1 образец А
A3: для одного огня, %, не более 20
для другого огня, %, более 20
но не более, % 30
2.2.1.2 образец В
В2: в случае А2:
для одного огня, %, более 0
но не более, % 20
для другого огня, %, не более 20
В3: в случае А2:
для одного огня, % 0
для другого огня, %, более 20
но не более, % 30
2.2.2 или если не выполнены условия, изложенные в 1.2.2 в отношении образца А.
2.3 Отмена официального утверждения
Соответствие не считается доказанным и применяются положения пункта 10 в том случае, если после проведения процедуры отбора образцов, указанной на рисунке 1 настоящего приложения, отклонения измеренных значений для огней составляют:
2.3.1 образец А
А4: для одного огня не более, % 20
для другого огня, %, более 30
А5: для обоих огней, %, более 20
2.3.2 образец В
В4: в случае А2:
для одного огня, %, более 0
но не более, % 20
для другого огня, %, более 20
В5: в случае А2
для обоих огней, %, более 20
В6: в случае А2:
для одного огня, % 0
для другого огня, %, более 30
2.3.3 или если не выполнены условия, изложенные в 1.2.2 в отношении образцов А и В.
3 Повторный отбор образцов
В случаях A3, В2 и В3 в течение двух месяцев после уведомления необходимо произвести повторный отбор образцов: из партии изделий, изготовленных после приведения производства в соответствие с предъявляемыми требованиями, отбираются третья группа из двух образцов огней С и четвертая группа из двух образцов огней D.
3.1 Соответствие считается доказанным
3.1.1 После проведения процедуры отбора образцов, указанной на рисунке 1 настоящего приложения, соответствие производства серийных огней считается доказанным, если отклонения измеренных значений для огней составляют:
3.1.1.1 образец С
С1: для одного огня, % 0
для другого огня, %, не более 20
С2: для обоих огней, %, более 0
но не более, % 20
перейти к образцу D
3.1.1.2 образец D
D1: в случае С2
для обоих огней, % 0
3.1.2 или если выполнены условия, изложенные в 1.2.2 в отношении образца С.
3.2 Соответствие не считается доказанным
3.2.1 После проведения процедуры отбора образцов, указанной на рисунке 1 настоящего приложения, соответствие производства серийных огней не считается доказанным и предприятию-изготовителю предлагается обеспечить соответствие производства предъявляемым требованиям (привести его в соответствие с этими требованиями), если отклонения измеренных значений для огней составляют:
3.2.1.1 образец D
D2: в случае С2:
для одного огня, %, более 0
но не более, % 20
для другого огня, %, не более 20
3.2.1.2 или если не выполнены условия, изложенные в 1.2.2 в отношении образца С.
3.3 Отмена официального утверждения
Соответствие не считается доказанным и применяются положения раздела 10 в том случае, если после проведения процедуры отбора образцов, указанной на рисунке 1 настоящего приложения, отклонения измеренных значений для огней составляют:
3.3.1 образец С
С3: для одного огня, %, не более 20
для другого огня, %, более 20
С4: для обоих огней, %, более 20
3.3.2 образец D
D3: в случае С2
для одного огня 0 % или более, % 0
для другого огня, %, более 20
3.3.3 или если не выполнены условия, изложенные в 1.2.2 в отношении образцов С и D.

- Максимальное отклонение в неблагоприятную
сторону от предельных значений, %
Ключевые слова: передние габаритные огни, задние габаритные (боковые) огни, контурные огни, сигналы торможения, фотометрические характеристики, цвет испускаемого света