ГОСТ Р 51317.4.3-99
(МЭК 61000-4-3-95)
ГОСУДАРСТВЕННЫЙ СТАНДАРТ РОССИЙСКОЙ ФЕДЕРАЦИИ
Совместимость технических средств электромагнитная
УСТОЙЧИВОСТЬ
К РАДИОЧАСТОТНОМУ
ЭЛЕКТРОМАГНИТНОМУ ПОЛЮ
Требования и методы испытаний
ГОССТАНДАРТ РОССИИ
Предисловие
1 РАЗРАБОТАН И ВНЕСЕН Техническим комитетом по стандартизации в области электромагнитной совместимости технических средств (ТК 30)
2 ПРИНЯТ И ВВЕДЕН В ДЕЙСТВИЕ Постановлением Госстандарта России от 28 декабря 1999 г. № 794-ст
3 Настоящий стандарт содержит аутентичный текст международного стандарта МЭК 61000-4-3 (1995-03), изд. 1 «Электромагнитная совместимость (ЭМС). Часть 4. Методы испытаний и измерений. Раздел 3. Испытания на устойчивость к излучаемому радиочастотному электромагнитному полю», включая Изменение № 1 (1998), с дополнительными требованиями, отражающими потребности экономики страны
4 ВЗАМЕН ГОСТ Р 50008-92
5 ПЕРЕИЗДАНИЕ, июнь 2001 г.
Стандарт МЭК 61000-4-3-95 является частью стандартов МЭК серии 61000 «Электромагнитная совместимость» согласно следующей структуре:
Общее рассмотрение (введение, фундаментальные принципы)
Определения, терминология
Описание электромагнитной обстановки
Уровни электромагнитной совместимости
Нормы помехоэмиссии
Нормы помехоустойчивости (в тех случаях, когда они не являются предметом рассмотрения техническими комитетами, разрабатывающими стандарты на продукцию)
Методы измерений
Методы испытаний
Руководства по установке
Руководства по помехоподавлению
Каждая часть подразделяется на разделы, которые могут быть опубликованы как международные стандарты либо как технические отчеты.
Настоящая часть представляет собой международный стандарт, который устанавливает требования помехоустойчивости и методы испытаний применительно к радиочастотному электромагнитному полю.
(МЭК 61000-4-3-95)
Совместимость технических средств электромагнитная
УСТОЙЧИВОСТЬ К РАДИОЧАСТОТНОМУ ЭЛЕКТРОМАГНИТНОМУ ПОЛЮ
Требования и методы испытаний
Electromagnetic compatibility of technical equipment. Radiated,
radio-frequency, electromagnetic field immunity.
Requirements and test methods
Настоящий стандарт распространяется на электротехнические, электронные и радиоэлектронные изделия и оборудование (далее в тексте - технические средства) и устанавливает требования и методы испытаний технических средств (ТС) на устойчивость к радиочастотному электромагнитному полю.
Целью настоящего стандарта является установление общих методов оценки качества функционирования ТС при воздействии на них радиочастотных электромагнитных полей.
Стандарт рассматривает вопросы испытаний на помехоустойчивость в связи с задачами общего характера. Особое внимание уделяется устойчивости ТС в условиях помехоэмиссии от цифровых радиотелефонов.
Примечание - Методы испытаний, установленные в настоящем стандарте, применяют для оценки эффектов воздействия электромагнитного излучения на ТС конкретного вида. Моделирование и измерение параметров электромагнитного излучения не обеспечивают достаточной точности для количественного определения указанных эффектов. Установленные методы испытаний предназначены, в первую очередь, для обеспечения достаточной воспроизводимости результатов, полученных с использованием различных средств испытаний, при качественном анализе эффектов.
Настоящий стандарт не устанавливает испытаний, применяемых для ТС конкретного вида. Его главной задачей является обеспечение всех заинтересованных технических комитетов по стандартизации, разрабатывающих стандарты на продукцию, общими ссылочными данными. Технические комитеты по стандартизации (или изготовители ТС) несут ответственность за выбор видов и степеней жесткости испытаний, применяемых для ТС.
Степени жесткости испытаний на устойчивость к радиочастотному электромагнитному полю в определенной полосе (полосах) частот и методы испытаний устанавливают в стандартах на ТС конкретного вида и в технической документации на ТС в соответствии с настоящим стандартом.
При установлении требований к ТС по устойчивости к радиочастотному электромагнитному полю настоящий стандарт применяют совместно с ГОСТ Р 51317.4.6.
Требования настоящего стандарта являются обязательными.
Содержание стандарта МЭК 1000-4-3-95 набрано прямым шрифтом, дополнительные требования к стандарту МЭК 1000-4-3, отражающие потребности экономики страны, - курсивом.
В настоящем стандарте использованы ссылки на следующие стандарты:
ГОСТ 30372-95/ГОСТ Р 50397-92 Совместимость технических средств электромагнитная. Термины и определения
ГОСТ Р 51048-97 Совместимость технических средств электромагнитная. Генераторы электромагнитного поля с ТЕМ-камерами. Основные параметры и методы аттестации
ГОСТ Р 51317.4.6-99 (МЭК 61000-4-6-96) Совместимость технических средств электромагнитная. Устойчивость к кондуктивным помехам, наведенным радиочастотными электромагнитными полями. Требования и методы испытаний
Большинство ТС эксплуатируют в условиях воздействия на них электромагнитных излучений. Источниками этих излучений часто являются портативные приемопередатчики, применяемые эксплуатационным персоналом и службами безопасности, стационарные радио- и телевизионные передатчики, радиопередатчики подвижных объектов, а также различные промышленные источники излучений.
В последние годы значительно увеличилось использование радиотелефонов и других радиопередатчиков, действующих на частотах от 0,8 до 3 ГГц. Указанные устройства во многих случаях используют методы модуляции с непостоянной огибающей.
Кроме электромагнитной энергии, генерируемой намеренно, на ТС также воздействуют побочные излучения, создаваемые такими источниками, как сварочное оборудование, тиристорные регуляторы, люминисцентные источники света, переключатели, коммутирующие индуктивные нагрузки и т.д. Воздействие указанных излучений на ТС проявляется, как правило, в виде кондуктивных помех, которые рассматриваются в других государственных стандартах на основе стандартов МЭК серии 61000. Методы, используемые для предотвращения влияния на ТС электромагнитных полей, будут, в общем случае, уменьшать также эффекты воздействия побочных излучений других источников.
Электромагнитная обстановка определяется напряженностью электромагнитного поля (напряженность поля). Для измерения напряженности поля необходимы сложные измерительные приборы. Расчет напряженности поля с использованием классических выражений и формул затруднен из-за влияния окружающих предметов или близости других ТС, которые будут искажать и/или отражать электромагнитные волны.
В настоящем стандарте применяют термины, установленные в ГОСТ 30372/ГОСТ Р 50397, а также следующие.
4.1 Амплитудная модуляция - процесс, при котором амплитуда несущего сигнала изменяется по определенному закону.
4.2 Безэховая камера - экранированное помещение, покрытое радиочастотным поглощающим материалом для уменьшения отражений от внутренних поверхностей.
4.2.1 Полностью безэховая камера - экранированное помещение, внутренние поверхности которого полностью покрыты поглощающим электромагнитные волны материалом.
4.2.2 Полубезэховая камера - экранированная камера, внутренние поверхности которой покрыты поглощающим электромагнитные волны материалом, за исключением пола (пластины заземления), который должен отражать электромагнитные волны.
4.2.3 Модифицированная полубезэховая камера - полубезэховая камера с дополнительным поглощающим электромагнитные волны материалом, установленном на пластине заземления.
4.3 Антенна - преобразователь, который либо излучает электромагнитную энергию источника сигнала в пространство, либо воспринимает распространяющееся электромагнитное поле, преобразовывая его в электрический сигнал.
4.4 Симметрирующее устройство - устройство для преобразования несимметричного напряжения в симметричное и наоборот.
4.5 Электромагнитные волны - процесс распространения взаимосвязанных друг с другом электрического и магнитного полей, сопровождающийся переносом электромагнитной энергии.
4.6 Поле дальней зоны - область, в которой плотность потока энергии излучения приблизительно обратно пропорциональна квадрату расстояния от антенны. Для дипольной антенны это соответствует расстоянию, большему λ/2π, где λ - длина волны излучения.
4.7 Напряженность поля - применяется только к измерениям, выполненным в дальней зоне. При этом может быть измерена либо электрическая, либо магнитная компонента поля и результаты измерений могут быть выражены в В/м или А/м, причем каждая из указанных величин может быть преобразована в другую.
Примечание - Для измерений, выполняемых в ближней зоне, термины «напряженность электрического поля» или «напряженность магнитного поля» применяют в зависимости от проведенных измерений результирующего электрического или магнитного поля. В указанной зоне соотношение между напряженностью электрического и магнитного полей и расстоянием является сложным и трудным для прогнозирования вследствие зависимости от конфигурации объектов.
4.8 Полоса частот - непрерывная область частот, заключенная между двумя пределами.
4.9 Поле ближней зоны - преобладающее электрическое и/или магнитное поле, существующее на расстоянии d < λ/2π, где λ - длина волны при условии, что физические размеры источника много меньше, чем расстояние d.
4.10 Поляризация - ориентация вектора электрического поля излучаемого электромагнитного поля.
4.11 Экранированное помещение - экранированное или имеющее металлические внутренние поверхности помещение, сконструированное специально для отделения внутренней электромагнитной обстановки от внешней в целях предотвращения ухудшения качества функционирования ТС при воздействии внешних полей и ослабления электромагнитных излучений от ТС во внешнее пространство.
4.12 Симметричная полосковая линия - нагруженная линия передачи, состоящая из двух параллельных пластин, между которыми электромагнитные волны распространяются в виде поперечных (ТЕМ) электромагнитных колебаний и создается поле для проведения испытаний.
4.13 Побочное излучение - любая нежелательная электромагнитная эмиссия от ТС.
4.14 Перестройка (частоты) - непрерывное или шаговое изменение частоты в определенной полосе частот.
4.15 Приемопередатчик - комбинация радиопередающего и радиоприемного оборудования в общем корпусе.
4.16 ТС, установленное на теле человека, - ТС, предназначенное для применения в условиях, когда оно прикреплено к телу человека. Данное определение включает ТС, которые при эксплуатации держат в руках или носят с собой (например, карманные устройства), а также медицинские ТС жизнеобеспечения и имплантанты.
4.17 Максимальное среднеквадратичное значение - наибольшее кратковременное среднеквадратичное значение напряжения модулированного радиочастотного сигнала на интервале наблюдения, равном одному периоду модулирующего сигнала. Кратковременное среднеквадратичное значение определяется дискретно на каждом периоде несущей частоты. Например, для радиочастотного сигнала, приведенного на рисунке 1б, максимальное среднеквадратичное значение Uск max составляет:
![]()
где Uп - пиковое значение напряжения.
4.18 Модуляция с непостоянной огибающей - модуляция, при которой амплитуда несущего сигнала незначительно изменяется в течение интервала времени, сравнимого с периодом несущего сигнала. Примерами являются амплитудная модуляция и TDMA.
4.19 TDMA (множественный доступ с временным разделением) - вид передачи с временным разделением каналов, при которой несколько каналов передаются с использованием одного несущего сигнала определенной частоты. Каждый канал занимает установленный промежуток времени, в течение которого информация, при ее наличии в канале, передается с помощью высокочастотных импульсов. Если информация в канале отсутствует, импульсы не передаются, т.е. огибающая несущего сигнала не является постоянной. В течение длительности импульса амплитуда постоянна и высокочастотный несущий сигнал модулирован по частоте или фазе.
5.1 Степени жесткости испытаний, относящиеся к задачам общего характера
Номенклатура степеней жесткости испытаний приведена в таблице 1. Полоса частот составляет от 80 до 1000 МГц.
|
Степень жесткости испытаний |
Напряженность испытательного поля, В/м (дБ относительно 1 мкВ/м) |
|
1 |
1 (120) |
|
2 |
3 (130) |
|
3 |
10 (140) |
|
Х1) |
Специальная |
|
1) Открытая степень жесткости испытаний, которая может быть установлена в стандартах на ТС конкретного вида и в технической документации на ТС |
|
В таблице 1 регламентирована напряженность поля немодулированного сигнала. При испытаниях ТС указанный сигнал должен быть модулирован по амплитуде при глубине модуляции 80 % синусоидальным сигналом частотой 1 кГц для того, чтобы воспроизвести реальные условия воздействия помех (рисунок 1). Методы испытаний детально изложены в разделе 8.
1 Техническими комитетами, разрабатывающими стандарты на ТС конкретного вида, требования и методы испытаний, регламентированные настоящим стандартом и ГОСТ Р 51317.4.6, могут быть установлены для частот ниже и выше 80 МГц соответственно.
2 Техническими комитетами, разрабатывающими стандарты на ТС конкретного вида, могут быть установлены альтернативные схемы модуляции.
3 Методы испытаний ТС на устойчивость к излучаемой электромагнитной энергии установлены также в ГОСТ Р 51317.4.6. Указанный стандарт охватывает частоты ниже 80 МГц.
4 Погрешность установки напряженности испытательного поля не должна превышать ±4 дБ.
5.2 Степени жесткости испытаний, относящиеся к устойчивости ТС в условиях помехоэмиссии от цифровых радиотелефонов
Номенклатура степеней жесткости испытаний приведена в таблице 2 для полос частот от 800 до 960 МГц и от 1,4 до 2 ГГц.
Таблица 2 - Полосы частот 800 - 960 МГц и 1,4 - 2 ГГц
|
Степень жесткости испытаний |
Напряженность испытательного поля, В/м (дБ относительно 1 мкВ/м) |
|
1 |
1 (120) |
|
2 |
3 (130) |
|
3 |
10 (140) |
|
4 |
30 (150) |
|
Х1) |
Специальная |
|
1) Открытая степень жесткости испытаний, которая может быть установлена в стандартах на ТС конкретного вида и в технической документации на ТС |
|
В таблице 2 регламентирована напряженность поля немодулированного сигнала. При испытаниях ТС указанный сигнал должен быть модулирован по амплитуде при глубине модуляции 80 % синусоидальным сигналом частотой 1 кГц для того, чтобы воспроизвести реальные условия воздействия помех (рисунок 1). Методы испытаний детально изложены в разделе 8. Если ТС должно соответствовать только требованиям помехоустойчивости, установленным в определенной стране, полоса частот 1,4 - 2 ГГц, в которой проводятся испытания, может быть уменьшена и ограничена конкретными значениями полос частот, выделенных для цифровых радиотелефонов в указанной стране. В этом случае решение о проведении испытаний в полосе частот, превышающей выделенную полосу, должно быть отражено в протоколе испытаний. Технические комитеты, разрабатывающие стандарты на ТС конкретного вида, должны установить применяемые степени жесткости испытаний для каждой полосы частот. В полосах частот, указанных одновременно в таблицах 1 и 2, испытания проводят при высшей из двух выбранных степеней жесткости испытаний.
1 В приложении А приведены обоснования решения об использовании модуляции синусоидальным сигналом при испытаниях, относящихся к устойчивости ТС в условиях помехоэмиссии от цифровых радиотелефонов.
2 Полосы частот измерений, приведенные в таблице 2, представляют собой полосы частот, которые в целом выделены для цифровых радиотелефонов.
3 На частотах выше 800 МГц возможность помехоэмиссии связана, главным образом, с радиотелефонными системами. Другие системы, работающие в этой полосе частот, имеют в основном крайне малую мощность и поэтому маловероятно, чтобы они представляли серьезные проблемы.
4 Погрешность установки напряженности испытательного поля не должна превышать ±4 дБ.
Для испытаний ТС на устойчивость к радиочастотному полю рекомендуются следующие средства испытаний:
- безэховая камера, размеры которой должны обеспечить достаточную область однородного поля применительно к испытуемым ТС (ИТС). Для подавления отражений в полубезэховых камерах могут быть применены дополнительные поглощающие материалы.
Примечание - Альтернативные методы создания испытательных полей включают применение: ТЕМ-камер и симметричных полосковых линий; экранированных помещений, не покрытых поглощающим материалом; экранированных помещений, частично покрытых поглощающим материалом; открытых испытательных площадок.
Указанные устройства могут иметь ограничения в части размеров ТС, которые могут быть испытаны в однородном поле, полос частот или уровней радиопомех. Условия испытаний с применением альтернативных методов создания полей должны быть эквивалентны условиям испытаний в безэховых камерах;
- помехоподавляющие фильтры, которые не должны вызывать резонансных явлений в соединительных линиях;
- генератор(ы) радиочастотных сигналов, обеспечивающий перекрытие полосы частот, представляющей интерес, и амплитудную модуляцию сигнала синусоидальным напряжением частотой 1 кГц при глубине модуляции 80 %. Генератор(ы) должен иметь возможность перестройки частоты в автоматическом режиме со скоростью не более 1,5·10-3 декад/с. В случае применения радиочастотных синтезаторов должна быть обеспечена программируемая шаговая перестройка частоты с установлением частотно-зависимого шага перестройки и возможностью задержки на каждой частоте. Генератор(ы) должен иметь также возможность ручной перестройки частоты.
При необходимости для исключения воздействия гармоник радиочастотного сигнала на испытуемые радиоприемные устройства применяют фильтры низких частот.
Погрешность установки частоты модулирующего сигнала должна быть не более ±10 %, глубина модуляции - не более ±5 %. Нестабильность частоты генератора радиочастотных сигналов должна составлять не более 10-5;
- усилители мощности, предназначенные для усиления радиочастотного сигнала (немодулированного и модулированного) и обеспечения создания антенной испытательного поля необходимой напряженности. Уровень гармоник и искажений, вносимых усилителем мощности, должен быть ниже уровня несущей не менее чем на 15 дБ;
- излучающие антенны (см. приложение Б): биконические, логопериодические или другие линейно поляризованные антенны, удовлетворяющие требованиям по полосе частот. Возможность применения антенн с круговой поляризацией рассматривается;
- горизонтально и вертикально поляризованная или изотропная антенна для измерения напряженности поля, представляющая собой диполи общей длиной не более 0,1 м, усилитель и электронно-оптический преобразователь, обладающие достаточной устойчивостью к воздействию измеряемого поля, и волоконно-оптическая линия для связи с индикатором, установленным вне безэховой камеры;
- оборудование для регистрации уровней мощности сигнала, необходимого для создания поля заданной напряженности и управления созданием указанного поля в процессе испытаний.
Особое внимание должно быть уделено обеспечению помехоустойчивости вспомогательного оборудования, применяемого при испытаниях.
Допускается использовать другие виды оборудования, обеспечивающие создание испытательного поля с параметрами, установленными настоящим стандартом.
6.1 Описание средств испытаний
Учитывая значительную напряженность генерируемого испытательного поля, испытания должны осуществляться в экранированном помещении, с тем чтобы исключить помехи радиосвязи. Кроме того, экранированное помещение позволяет исключить влияние испытательного поля на вспомогательное оборудование, учитывая, что большинство образцов оборудования для сбора, регистрации и отображения результатов измерений восприимчиво к внешнему полю, генерируемому в процессе испытаний. Должны быть приняты меры к фильтрации кондуктивных помех в соединительных кабелях, входящих в экранированное помещение и выходящих из экранированного помещения.
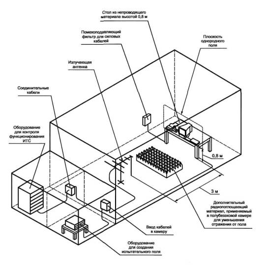
Предпочтительным средством испытаний является экранированное помещение, покрытое радиочастотным поглощающим материалом, имеющее размеры, позволяющие разместить ИТС и обеспечить соответствующее управление напряженностью испытательного поля. Целесообразно применять безэховые камеры или модифицированные полубезэховые камеры. В присоединенных дополнительных экранированных помещениях должно быть размещено оборудование, обеспечивающее генерирование высокочастотных сигналов, проведение измерений и контроль функционирования ИТС (рисунок 2).
Безэховые камеры менее эффективны на низких частотах. В связи с этим особое внимание должно быть уделено обеспечению однородности испытательного поля на низких частотах. Дополнительные рекомендации приведены в приложении В.
6.2 Аттестация испытательного оборудования
Цель аттестации заключается в том, чтобы однородность поля, воздействующего на ИТС, была достаточна для обеспечения достоверности результатов испытаний. В процессе аттестации поле должно быть немодулированным, чтобы обеспечить правильные показания любой измерительной антенны.
Настоящий стандарт основывается на применении концепции «плоскости однородного поля» (рисунки 3, 4), которая представляет собой гипотетическую вертикальную плоскость, в которой отклонения напряженности испытательного поля от установленного значения находятся в заданных пределах. Указанная плоскость однородного поля должна иметь размеры 1,5×1,5 м, за исключением случаев, когда ИТС и соединительные кабели могут быть полностью «освещены» при использовании плоскости однородного поля меньших размеров; размеры плоскости однородного поля не должны быть меньше, чем 0,5×0,5 м (при этом измерительная сетка состоит из четырех точек).
На рабочем месте для испытаний лицевая сторона ИТС, подвергаемого воздействию испытательного поля, должна совпадать с плоскостью однородного поля (рисунки 5 и 6).
Учитывая невозможность создания однородного испытательного поля в непосредственной близости к пластине заземления, нижний край плоскости однородного поля должен находиться на высоте не менее 0,8 м над пластиной заземления. По возможности, ИТС размещают на этой высоте.
Для установления жесткости испытаний в случае, если ИТС и соединительные кабели размещены не на высоте 0,8 м, а в непосредственной близости к пластине заземления, а также в случае, если стороны ИТС превышают 1,5×1,5 м, напряженность испытательного поля должна быть дополнительно зафиксирована в четырех точках плоскости однородного поля: на высоте 0,4 м над пластиной заземления и в точках, совпадающих с максимальными высотой и поперечными размерами ИТС. Результаты дополнительных измерений указывают в протоколе испытаний.
Аттестацию испытательного поля осуществляют в отсутствии ИТС. Элементы рабочего места для испытаний, включая размещение и ориентирование излучающей антенны, установку дополнительного радиопоглощающего материала (при его использовании) и т.д., должны быть зафиксированы. Указанные сведения используют при проверке напряженности испытательного поля, которую проводят перед каждой группой испытаний (см. раздел 8).
Аттестацию испытательного оборудования проводят один раз в год, а также при каждом внесении изменений в конфигурацию безэховой камеры (перемещении радиопоглощающего материала, изменении состава оборудования и т.д.).
Излучающую антенну размещают на таком расстоянии от ИТС, чтобы аттестуемая плоскость однородного поля размерами 1,5×1,5 м находилась в главном лепестке диаграммы направленности антенны. В случае, если лицевая сторона ИТС, подвергаемая воздействию испытательного поля, имеет размеры, превышающие 1,5×1,5 м, аттестацию проводят при различных положениях излучающей антенны с тем, чтобы обеспечить покрытие всей лицевой поверхности ИТС плоскостью однородного поля в серии испытаний.
Антенна для измерения напряженности поля должна быть расположена на расстоянии не менее 1 м от излучающей антенны. Предпочтительное расстояние между излучающей антенной и ИТС составляет 3 м. Это расстояние отсчитывают от центра биконической антенны или от конца логопериодической антенны. Расстояние между излучающей антенной и плоскостью однородного поля должно быть указано в протоколе испытаний. В случае расхождений результатов испытаний, полученных при различных расстояниях между излучающей антенной и ИТС, преимущество имеют результаты испытаний, полученные при расстоянии 3 м.
Поле считают однородным, если его напряженность, измеряемая в плоскости однородного поля, для 75 % поверхности (т.е. в 12 точках из 16 точек измерения) находится в пределах от 0 до 6 дБ от заданной величины. Для минимальных размеров плоскости однородного поля, составляющих 0,5×0,5 м, отклонения измеренной напряженности поля в четырех точках калибровочной сетки от заданной величины должны быть в указанных выше пределах.
Примечание - Для различных частот в пределах указанных отклонений могут находиться результаты измерений, полученные в различных точках.
Отклонение от 0 до 6 дБ установлено с тем, чтобы напряженность поля не была ниже номинальной. Предел 6 дБ выбран как минимально достижимый для практически применяемых средств испытаний. Для 3 % частот, проверяемых при испытаниях, допускается отклонение более 6 дБ, но не превышающее 10 дБ; при этом отклонения должны быть отражены в протоколе испытаний. В случае расхождений результатов испытаний, полученных при различных отклонениях напряженности поля, преимущество имеют результаты испытаний, полученные при отклонениях от 0 до 6 дБ.
Процедура проведения аттестации при постоянной подводимой мощности заключается в следующем:
а) антенну размещают для измерения напряженности поля в одной из 16 точек измерительной сетки (см. рисунок 4);
б) подают на излучающую антенну сигнал определенной мощности таким образом, чтобы значение напряженности поля на дискретных частотах в пределах установленной для испытаний полосы частот составляло от 3 до 10 В/м, причем величина шага изменения частоты должна составлять 1 % от начального (предыдущего) значения частоты. Соответствующие значения подводимой мощности сигнала и напряженности поля регистрируют;
в) при той же самой подводимой к антенне мощности измеряют и регистрируют напряженность поля для остальных 15 точек сетки;
г) рассматривая результаты измерений в 16 точках, отбрасывают 25 % (т.е. 4 из 16), имеющих наибольшие отклонения от среднего значения, выраженного в В/м;
д) измерения для оставшихся точек должны быть в пределах ±3 дБ;
е) из оставшихся точек выбирают ту, в которой напряженность поля минимальна, и принимают ее за опорную (что обеспечивает отклонения в пределах от 0 до 6 дБ для других точек);
ж) по известной подводимой к антенне мощности сигнала и соответствующей напряженности поля рассчитывают мощность сигнала, при которой напряженность поля в опорной точке будет равна заданной (например, если при мощности сигнала 80 Вт напряженность поля в опорной точке составляет 9 В/м, то для получения напряженности поля 3 В/м подводимая мощность должна составлять 8,9 Вт). Рассчитанное значение мощности регистрируют;
и) действия по перечислениям от а) до ж) повторяют для горизонтальной и вертикальной поляризации поля.
Эквивалентная процедура включает установление постоянной напряженности поля в пределах от 3 до 10 В/м и регистрацию мощности сигнала, подаваемого на излучающую антенну. При этом учитывают действия по перечислениям от а) до ж).
Аттестация действительна для ИТС всех видов, лицевые стороны которых (включая соединительные кабели) могут быть полностью покрыты плоскостью однородного поля.
При проведении испытаний должны быть использованы антенны и кабели, применяемые при аттестации поля. Использование указанных антенн и кабелей позволяет исключить влияние потерь в кабелях и направленности излучающих антенн.
При проведении испытаний антенны и кабели должны быть размещены так же, как и при аттестации поля. Незначительные их смещения оказывают существенное влияние на испытательное поле.
ТС испытывают в конфигурации, максимально близкой к используемой в условиях эксплуатации. Кабели, подключаемые к ТС, должны быть проложены в соответствии с технической документацией на ТС. Испытания проводят при установке ТС в штатных корпусах, с заглушками и откидными панелями в закрытом состоянии, если иные требования не установлены в стандартах на ТС конкретного вида. Если ТС предназначено для установки на приборной панели, в стойке или в шкафу, его размещение при испытаниях должно быть таким же.
Испытания могут быть проведены при наличии пластины заземления и без нее.
Если необходимы средства для крепления испытуемого образца, то их изготавливают из неметаллических и непроводящих материалов. Заземление корпусов оборудования должно быть выполнено в соответствии с требованиями изготовителя ТС. Относительное расположение напольных и настольных частей ТС должно быть сохранено при испытаниях.
Схемы типовых рабочих мест для испытаний ТС приведены на рисунках 5 и 6.
7.1 Размещение настольных ТС
Настольные ТС должны быть установлены на столе из непроводящего материала высотой 0,8 м.
Примечание - Использование непроводящих подставок исключает возможность случайного заземления ИТС и искажения поля. Применение в качестве стола металлической конструкции с изоляционным покрытием недопустимо.
К ИТС подключают линии передачи сигналов и линии электропитания в соответствии с инструкцией по эксплуатации.
7.2 Размещение напольных ТС
Напольные ТС должны быть установлены на непроводящей подставке толщиной 0,1 м. Использование непроводящих подставок исключает возможность случайного заземления ИТС и искажения поля. Применение в качестве подставки металлической конструкции с изоляционным покрытием недопустимо. Напольные ТС, которые могут быть установлены на платформе из непроводящего материала высотой 0,8 м, т.е. изделия, не являющиеся слишком громоздкими или тяжелыми, поднятие которых не нарушает требований безопасности, испытывают при размещении их на высоте 0,8 м, если это условие специально регламентировано в стандарте на ТС конкретного вида. Указанное изменение стандартного метода испытаний должно быть отражено в протоколе испытаний.
К ИТС подключают линии передачи сигналов и линии электропитания в соответствии с инструкцией по эксплуатации.
7.3 Расположение кабелей
Если расположение и типы подключаемых к ТС кабелей не установлены в технической документации на ТС, при испытаниях применяют неэкранированные параллельно проложенные проводники.
Подвергаемые воздействию поля части кабелей (проводников), подключенных к ИТС, должны иметь длину 1 м.
Прокладка кабелей между элементами ИТС должна удовлетворять следующим требованиям:
- применяют кабели типов, установленных в технической документации на ТС;
- если в соответствии с технической документацией на ТС длина каждого соединительного кабеля не превышает 3 м, при испытаниях применяют кабели установленной длины. При этом кабели сворачивают в петли на длине 1 м таким образом, чтобы была обеспечена их минимальная индуктивность;
- если в соответствии с технической документацией на ТС длина каждого кабеля превышает 3 м или не установлена, принимают меры к тому, чтобы подключаемые к элементам ИТС части кабелей, подвергаемые воздействию поля, имели длину 1 м. Для исключения наводок на остальных частях кабелей от воздействия испытательного поля используют помехоподавляющие фильтры или поглощающие ферритовые трубы.
Применяемые помехоподавляющие элементы не должны ухудшать функционирования ИТС. Использование помехоподавляющих элементов должно быть отражено в протоколе испытаний.
При каждом положении ИТС кабели должны быть уложены параллельно плоскости однородного поля, чтобы обеспечить максимальную восприимчивость к воздействию поля.
Для воспроизводимости результатов испытания должны сопровождаться подробным описанием прокладки кабелей и расположения и ориентирования ИТС.
Свернутые в петли кабели, подвергаемые воздействию поля, располагают таким образом, чтобы воспроизвести условия подводки кабелей горизонтально к одной из сторон ИТС, а затем их прокладки вверх или вниз в соответствии с инструкцией по установке. Горизонтальное или вертикальное расположение кабелей обеспечивает наиболее жесткие условия испытаний.
7.4 Расположение ТС, устанавливаемых на теле человека
ТС, устанавливаемые на теле человека, испытывают как настольные ТС. Однако при этом жесткость испытаний может, в ряде случаев, оказаться чрезмерно высокой или недостаточной, так как при этом не учитываются характеристики тела человека. В связи с этим технические комитеты по стандартизации, ответственные за ТС конкретного вида, должны регламентировать использование имитаторов человеческого тела, имеющих соответствующие диэлектрические характеристики.
ТС должно быть испытано в режимах функционирования и при климатических условиях, соответствующих назначению ТС. Температура и относительная влажность при испытаниях должны быть указаны в протоколе испытаний.
Испытания на соответствие требованиям настоящего стандарта проводят при нормальных климатических условиях:
- температуре окружающего воздуха (25±10) °С;
- относительной влажности воздуха 45 - 80 %;
- атмосферном давлении 84 - 106,7 кПа (630 - 800 мм рт. ст.), если иные требования не установлены в стандартах на группы ТС или ТС конкретного вида.
Методы испытаний, установленные в настоящем разделе, соответствуют применению биконической или логопериодической излучающей антенны и модифицированной полубезэховой камеры. Рекомендации, относящиеся к альтернативным методам испытаний, приведены в приложениях Г, Д.
Перед проведением испытаний проверяют установленную напряженность испытательного поля. Для этого помещают антенну для измерения напряженности поля в одну из точек измерительной сетки, размещают излучающую антенну и кабели в том же положении, как при аттестации испытательного оборудования, и измеряют подаваемую на излучающую антенну мощность сигнала, обеспечивающую заданную напряженность поля. Указанная мощность должна совпадать с установленной при аттестации. Проверку осуществляют в нескольких точках измерительной сетки на нескольких частотах в рассматриваемой полосе частот при горизонтальной и вертикальной поляризации испытательного поля.
После проведения проверки создают испытательное поле, используя данные, полученные при аттестации (см. 6.2).
Отсутствующие источники сигналов, необходимых для функционирования ИТС, заменяют имитаторами.
ИТС размещают таким образом, чтобы одна из его сторон совпадала с плоскостью однородного поля. Частоту сигнала, подаваемого на излучающую антенну, перестраивают в рассматриваемой полосе частот при амплитудной модуляции синусоидальным сигналом частотой 1 кГц при глубине модуляции 80 %. Подачу сигнала на излучающую антенну прекращают при регулировании уровня сигнала, переключении генераторов сигналов и применяемых антенн. Скорость перестройки частоты не должна превышать 1,5-10-3 декад/с. В случае шаговой перестройки частоты величина шага не должна превышать 1 % основной частоты, если иные требования не установлены в стандартах на группы ТС или ТС конкретного вида.
Примечание - Выражение «не должна превышать 1 % основной частоты» означает, что значение частоты каждого последующего шага должно быть меньше или равно значению частоты предыдущего шага, умноженному на коэффициент 1,01.
Время воздействия испытательного поля на ИТС на каждой частоте должно быть не менее времени, необходимого для проверки качества функционирования ИТС. При необходимости дополнительно проводят испытания ТС на частотах, на которых ожидается его повышенная восприимчивость к помехе [например, на тактовой частоте (частотах)].
Если ИТС эксплуатируют в одном положении, при испытаниях проводят облучение каждой из четырех сторон ИТС. Если ИТС эксплуатируют в вертикальном и горизонтальном положениях, испытания проводят при облучении всех сторон ИТС.
Примечание - Если ИТС состоит из нескольких элементов, их взаимное расположение при испытаниях должно быть сохранено при облучении ИТС с различных сторон.
Облучение каждой из сторон ИТС осуществляют при двух поляризациях испытательного поля (соответственно при вертикальном и горизонтальном расположениях излучающей антенны).
При испытаниях выбирают режимы функционирования ИТС из предусмотренных технической документацией на ИТС, обеспечивающие наименьшую устойчивость к воздействию поля.
При испытаниях рекомендуется применять специальные тестовые программы.
Испытания проводят в соответствии с программой испытаний, которая должна быть включена в протокол испытаний ТС.
Программа испытаний устанавливает:
- размеры ИТС;
- представительный режим функционирования ИТС;
- размещение ТС при испытаниях (напольное, настольное или комбинация указанных видов размещения). Для напольных ИТС указывают высоту 0,1 или 0,8 м над плоскостью заземления при проведении испытаний;
- типы используемых средств испытаний и положения излучающих антенн;
- скорость перестройки частоты, значение шага перестройки и времени задержки на каждой частоте;
- степень жесткости испытаний;
- типы и число соединительных кабелей и разъемы ИТС, к которым они должны быть подключены;
- применяемые критерии качества функционирования ИТС;
- описание метода оценки качества функционирования.
Для отработки программы испытаний ТС могут быть проведены предварительные испытания. Документация об испытаниях должна содержать условия испытаний, материалы аттестации поля и результаты испытаний.
Данный раздел определяет порядок оценки результатов испытаний и подготовки протокола испытаний, относящихся к настоящему стандарту.
Многообразие и различия ТС и систем, подлежащих испытаниям, затрудняют оценку результатов воздействия электромагнитного излучения на ТС и системы.
Результаты испытаний должны быть классифицированы на основе следующих критериев качества функционирования ИТС, если иные требования не установлены в стандартах на ТС конкретного вида или в технической документации на ТС:
- А - нормальное функционирование в соответствии с требованиями, установленными в технической документации на ТС;
- В - временное ухудшение качества функционирования или прекращение выполнения установленной функции с последующим восстановлением нормального функционирования, осуществляемым без вмешательства оператора;
- С - временное ухудшение качества функционирования или прекращение выполнения установленной функции, которое требует вмешательства оператора или перезапуска системы;
- D - ухудшение качества функционирования или прекращение выполнения установленной функции, которое не подлежит восстановлению из-за повреждения оборудования (компонентов), нарушения программного обеспечения или потери данных.
ИТС не должно становиться опасным или ненадежным в результате воздействия помех видов, регламентированных в настоящем стандарте.
Основное правило для признания результатов испытаний положительными заключается в том, что ИТС должно быть устойчиво к помехе для всех периодов воздействия помех и по окончании испытаний должно удовлетворять функциональным требованиям, установленным в технической документации на ИТС. Некоторые эффекты воздействия помех могут быть установлены в технической документации на ИТС как незначительные и, следовательно, приемлемые.
Протокол испытаний должен включать условия и результаты испытаний.
Рекомендации по выбору степеней жесткости испытаний приведены в приложении Е, мероприятия по снижению уровня воздействующих на ТС помех от излучений стационарных радиопередатчиков - в приложении Ж, рекомендации по выбору методов испытаний на устойчивость к радиочастотным электромагнитным излучениям - в приложении И, сведения о цифровых радиотелефонах - в приложении К.

а - немодулированный радиочастотный сигнал (амплитудное значение напряжения Ua = 1,4 В, среднеквадратичное значение напряжения Uск = 1 В);
б - модулированный радиочастотный сигнал при глубине модуляции 80 % (Uск = 1,12 В, пиковое значение напряжения Uп = 2,54 В, максимальное среднеквадратичное значение напряжения Uск max = 1,8 В)





А.1 Обзор методов модуляции
На частотах выше 800 МГц возможная помехоэмиссия связана с цифровыми радиотелефонами, использующими модуляцию с непостоянной огибающей излучаемого сигнала.
При разработке настоящего стандарта были рассмотрены следующие методы модуляции испытательного поля:
- амплитудная модуляция синусоидальным сигналом частотой 1 кГц при глубине модуляции 80 %;
- амплитудная модуляция сигналом прямоугольной формы со скважностью 2 и частотой повторения 200 Гц при глубине модуляции 100 %;
- импульсный радиочастотный сигнал, приближенно моделирующий характеристики различных систем радиосвязи, например, скважность 8 при частоте повторения 200 Гц для системы GSM, скважность 24 при частоте повторения 100 Гц для портативного оборудования системы DECT;
- импульсный радиочастотный сигнал, точно моделирующий характеристики каждой системы, например, для системы GSM: скважность 8, частоту повторения 200 Гц, а также вторичные эффекты, такие как режим прерывистой передачи (частота модуляции 2 Гц) и связанные с мультикадровой структурой сигнала (компонента с частотой 8 Гц).
Результаты качественного сопоставления соответствующих систем модуляции обобщены в таблице А.1.
Таблица А.1 - Сравнение методов модуляции испытательного сигнала
|
Метод модуляции |
Преимущества |
Недостатки |
|
Амплитудная модуляция синусоидальным сигналом |
1 Эффекты нарушения функционирования ТС, как показывают эксперименты, в целом одни и те же при использовании сигналов с различными видами модуляции с непостоянной огибающей при условии, что максимальное среднеквадратичное значение сигнала одинаково 2 Нет необходимости устанавливать и измерять время нарастания импульсов TDMA 3 Данный вид модуляции принят в настоящем стандарте и в ГОСТ Р 51317.4.6 4 В наличии имеется оборудование для генерирования и измерения параметров испытательного поля 5 При испытаниях аудиотехники с аналоговой обработкой сигнала на выходе ИТС в результате демодуляции возникает аудиосигнал, который может быть измерен узкополосным измерительным прибором при малом уровне шумов 6 Была показана эффективность данного вида модуляции при моделировании воздействия на ТС сигналов с другими видами модуляции (частотной, фазовой, импульсной) |
1 Не моделирует TDMA 2 Приводит к незначительному повышению жесткости испытаний для отдельных ТС 3 При использовании данного вида модуляции могут быть не выявлены некоторые процессы воздействия на ТС, приводящие к отказам в работе |
|
Амплитудная модуляция сигналом прямоугольной формы |
1 Аналогична TDMA 2 Может иметь широкое применение 3 Может обеспечить обнаружение «неизвестных» процессов воздействия, приводящих к отказам в работе ТС (чувствительных к быстрым изменениям огибающей радиочастотного сигнала) |
1 Не в полной мере моделирует TDMA 2 Требует применения нестандартного оборудования для генерирования сигнала 3 При демодуляции в ИТС возникают широкополосные аудиосигналы, которые должны быть измерены широкополосными измерительными приборами при повышенном уровне шумов 4 Необходимо регламентировать время нарастания импульсов |
|
Радиочастотные импульсы |
1 Возможно точное моделирование TDMA 2 Может обеспечить обнаружение «неизвестных» процессов воздействия, приводящих к отказам в работе ТС (чувствительных к быстрым изменениям огибающей радиочастотного сигнала) |
1 Требует применения нестандартного оборудования для генерирования сигнала 2 Параметры модулирующих сигналов необходимо изменять, чтобы привести их в соответствие с характеристиками каждой из конкретных систем (GSM, DECT и т.д.) 3 При демодуляции в ИТС возникают широкополосные аудиосигналы, которые должны быть измерены широкополосными измерительными приборами при повышенном уровне шумов 4 Необходимо регламентировать время нарастания импульсов |
А.2 Экспериментальные результаты
Для определения зависимости между используемым методом модуляции испытательного сигнала и производимым воздействием на ТС была проведена серия экспериментов. При этом проверяли следующие методы модуляции:
а) амплитудную модуляцию синусоидальным сигналом частотой 1 кГц при глубине модуляции 80 %;
б) импульсный радиочастотный сигнал, подобный сигналу системы GSM, со скважностью 8, частотой повторения 200 Гц;
в) импульсный радиочастотный сигнал, подобный сигналу системы DECT, со скважностью 2, частотой повторения 100 Гц (базовая станция);
г) импульсный радиочастотный сигнал, подобный сигналу системы DECT со скважностью 24, частотой повторения 100 Гц (подвижное оборудование).
Результаты обобщены в таблицах А.2 и A.3.
Таблица А.2 - Относительные уровни воздействия (примечание 1)
|
Метод модуляции (примечание 2) |
Амплитудная модуляция синусоидальным сигналом частотой 1 кГц при глубине модуляции 80 %, дБ |
Импульсный радиочастотный сигнал, подобный сигналу системы GSM, со скважностью 8, частотой повторения 200 Гц, дБ |
Импульсный радиочастотный сигнал, подобный сигналу системы DECT со скважностью 24, частотой повторения 100 Гц, дБ |
|
|
ИТС |
Выходной аудиосигнал |
|||
|
Слуховой аппарат (примечание 3) |
Детектор огибающей |
0 (примечание 4) |
0 |
-3 |
|
Квазипиковый детектор |
0 |
-4 |
-7 |
|
|
Телефонный аппарат аналогового типа (примечание 5) |
Детектор огибающей |
0 (примечание 4) |
-3 |
-7 |
|
Квазипиковый детектор |
-1 |
-6 |
-8 |
|
|
Радиоприемник (примечание 6) |
Детектор огибающей |
0 (примечание 4) |
1 |
-2 |
|
Квазипиковый детектор |
-1 |
-3 |
-7 |
|
Примечания1 За уровень воздействия помехи принят уровень аудиосигнала на выходе ИТС при воздействии поля. Низкий уровень воздействия эквивалентен высокому уровню помехоустойчивости ТС. 2 Амплитуда несущего сигнала регулируется таким образом, чтобы максимальное среднеквадратичное значение (см. раздел 4) испытательного (воздействующего) сигнала было одинаковым для всех методов модуляции. 3 При воздействии внешнего электромагнитного поля частотой 900 МГц. Выходной аудиосигнал представляет собой акустический выходной сигнал слухового аппарата, измеренный с применением искусственного уха, подсоединенного с помощью трубки длиной 0,5 м. 4 Выбран в качестве опорного уровня выходного аудиосигнала, т.е. 0 дБ. 5 При воздействии радиочастотного тока, наведенного в телефонном кабеле на частоте 900 МГц. Выходной аудиосигнал представляет собой напряжение звуковой частоты, измеренное в линии телефона. 6 При воздействии радиочастотного тока, наведенного в кабеле электропитания на частоте 900 МГц. Выходной аудиосигнал представляет собой акустический сигнал громкоговорителя, измеренный с помощью микрофона |
||||
Таблица А.3 - Относительные уровни помехоустойчивости (примечание 1)
|
Метод модуляции (примечание 2) |
При амплитудной модуляции синусоидальным сигналом частотой 1 кГц при глубине модуляции 80 %, дБ |
Импульсный радиочастотный сигнал, подобный сигналу системы GSM, со скважностью 8, частотой повторения 200 Гц, дБ |
Импульсный радиочастотный сигнал, подобный сигналу системы DECT, со скважностью 24, частотой повторения 100 Гц, дБ |
|
|
ИТС |
Характер воздействия |
|||
|
Телевизионный приемник (примечание 3) |
Заметное |
0 (примечание 4) |
-2 |
-2 |
|
Сильное |
+4 |
+ 1 |
+2 |
|
|
Изображение отсутствует |
+19 |
+18 |
+19 |
|
|
Цифровой терминал (примечание 5) |
Искажения на видеоэкране |
0 (примечание 4) |
0 |
- |
|
Искажения данных |
> +16 |
> +16 |
- |
|
|
Модем с интерфейсом (примечание 6) |
Искажения данных (ввод помехи в телефонный кабель) |
0 (примечание 4) |
0 |
0 |
|
Искажения данных (ввод помехи в кабель интерфейса) |
> +9 |
> +9 |
> +9 |
|
|
Регулируемый лабораторный источник электропитания (примечание 7) |
Погрешность установки уровня постоянного тока 2% |
0 (примечание 4) |
+3 |
+7 |
Примечания1 Цифры в таблице представляют собой относительные измеренные максимальные среднеквадратичные значения (см. раздел 4 настоящего стандарта) испытательного (воздействующего) сигнала, необходимые для обеспечения одной и той же степени воздействия при различных методах модуляции. Высокий уровень, выраженный в децибелах, эквивалентен высокому уровню помехоустойчивости. 2 Испытательный сигнал регулируется таким образом, чтобы характер воздействия был одинаковым при всех методах модуляции. 3 При воздействии радиочастотного тока, введенного в кабель электропитания на частоте 900 МГц. Характер воздействия определяется степенью нарушения изображения на экране телевизионного приемника. Оценка имеет, в значительной степени, субъективный характер, так как параметры ухудшения изображения различны при различных методах модуляции. 4 Выбран в качестве опорного уровня помехоустойчивости, соответствующего 0 дБ. 5 При воздействии радиочастотного тока, введенного в кабель интерфейса на частоте 900 МГц. 6 При воздействии радиочастотного тока, введенного в телефонный кабель и в кабель интерфейса на частоте 900 МГц. 7 При воздействии радиочастотного тока, введенного в выходной кабель постоянного тока на частоте 900 МГц |
||||
В ходе проведенных экспериментов были испытаны при воздействии электромагнитного поля напряженностью до 30 В/м с использованием как амплитудной модуляции синусоидальным сигналом, так и импульсной модуляции со скважностью 2, следующие образцы цифрового оборудования:
- осушитель рук (электрическое полотенце) с микропроцессорным управлением;
- модем (скорость передачи 2 Мбайт, 75-омный коаксиальный кабель);
- модем (скорость передачи 2 Мбайт, 120-омная симметричная линия);
- промышленный контроллер с микропроцессором, видеодисплеем и интерфейсом;
- обучающая система с микропроцессором;
- терминал для кредитных карт с модемом;
- цифровой мультиплексер (2/34 Мбайт).
Все отказы были связаны с аналоговыми функциями устройств.
При точном моделировании модуляции, используемой в цифровых радиотелефонных системах, важно не только моделировать первичную модуляцию, но также учесть влияние любой вторичной модуляции, которая может иметь место.
Например, применительно к системам GSM и DCS 1800 имеются эффекты, связанные с мультикадровой структурой сигнала, вызываемые подавлением пачки импульсов каждые 120 мс (что создает частотную составляющую приблизительно 8 Гц). Может присутствовать также дополнительная модуляция на частоте 2 Гц при режиме прерывистой передачи (режим DTX).
Испытанные образцы реагировали на помехи при всех используемых методах модуляции. При сравнении эффектов воздействия при различных видах модуляции важно обеспечить, чтобы испытательные сигналы имели одно и то же максимальное среднеквадратичное значение.
При наличии существенных различий между эффектами воздействия при различных видах модуляции испытания с использованием амплитудной модуляции синусоидальным сигналом были всегда наиболее жесткими. В случае, если для ТС конкретного вида отмечается различный характер воздействия при использовании амплитудной модуляции синусоидальным сигналом и импульсной модуляции, это различие может быть скорректировано при установлении соответствующего критерия качества функционирования в стандарте для ТС конкретного вида.
В целом амплитудная модуляция синусоидальным сигналом имеет следующие преимущества:
- измерение выходных сигналов в аналоговых системах, возникающих в результате воздействия помех, возможно с помощью узкополосных измерительных приборов при малом уровне шумов;
- универсальность применения, так как нет необходимости моделировать характеристики источника помех;
- возможность применения модуляции с одними и теми же параметрами на всех частотах;
- всегда обеспечивается, по крайней мере, такая же жесткость испытаний, как и при импульсной модуляции.
Учитывая вышеизложенное, в настоящем стандарте установлен метод амплитудной модуляции испытательного поля синусоидальным сигналом. Рекомендуется, чтобы технические комитеты по стандартизации, ответственные за ТС конкретного вида, применяли иной метод модуляции лишь при наличии особых причин.
Б.1 Биконическая антенна (20 - 300 МГц)
Данная антенна состоит из коаксиального симметрирующего устройства и объемного излучающего элемента, имеет широкий диапазон и может работать как на передачу, так и на прием. Зависимость коэффициента усиления антенны представляет собой плавную кривую, как правило, возрастающую с частотой.
Малые размеры антенны делают ее пригодной для применения в ограниченных зонах, например, в безэховых камерах.
Б.2 Логопериодическая антенна (80 - 1000 МГц)
Логопериодическая антенна представляет собой группу диполей различной длины, соединенных с передающей линией. Эти широкополосные антенны обладают относительно высоким усилением и низким коэффициентом стоячей волны.
Примечание - При выборе антенны для создания поля необходимо убедиться, что симметрирующее устройство обеспечивает передачу требуемой мощности.
Антенна, предназначенная для излучения электромагнитного поля с круговой поляризацией, в виде конической логарифмической спирали может быть использована только в том случае, если обеспечено дополнительное повышение на 3 дБ выходной мощности с помощью усилителя мощности.
Рупорные антенны создают линейно поляризованные электромагнитные поля. Их применение типично на частотах выше 1000 МГц.
Полубезэховая камера представляет собой экранированное помещение, у которого стены и потолок покрыты радиопоглощающим материалом (см. раздел 4 настоящего стандарта). В полностью безэховой камере радиопоглощающим материалом покрыт также пол.
Покрытие камеры радиопоглощающим материалом преследует цель предотвратить отражения радиоволн от внутренних поверхностей камеры, так как интерференция отраженного и излученного электромагнитных полей может привести к образованию пиков и провалов напряженности результирующего электромагнитного поля.
Коэффициент отражения радиопоглощающего материала зависит в основном от частоты и угла падения радиоволн. Как правило, поглощение электромагнитной энергии максимально при нормальном падении радиоволн на поверхность радиопоглощающего материала и снижается при возрастании угла падения. Для того, чтобы уменьшить отражения и увеличить поглощение радиоволн, применяется радиопоглощающий материал в форме пирамид или конусов.
В полубезэховых камерах дополнительная установка радиопоглощающего материала на полу камеры помогает обеспечить требуемую степень однородности испытательного поля на всех частотах. Место размещения радиопоглощающего материала определяют экспериментально.
Дополнительный поглощающий материал не должен находиться в направлении прямого распространения луча от антенны к ИТС. При испытаниях дополнительный поглощающий материал размещают в том же положении и при той же ориентации, что и в процессе аттестации.
Однородность испытательного поля в безэховой камере может быть также улучшена путем сдвига излучающей антенны относительно оси камеры, так как любые отражения не являются симметричными.
Симметричные полосковые линии полезны для создания линейно поляризованных полей для испытаний ИТС малого размера (порядка 0,3×0,3×0,3 м) в полосе частот от 0 до 150 МГц. Так как поле в симметричной полосковой линии имеет постоянную поляризацию, ТС при проведении испытаний последовательно поворачивают с тем, чтобы имитировать воздействие испытательного поля с горизонтальной и вертикальной поляризацией.
Получение более однородного поля и снижение излучения во внешнее пространство могут быть достигнуты за счет применения радиопоглощающего материала и размещения симметричной полосковой линии на расстоянии не менее 2 м от любого отражающего объекта.
ТЕМ-камеры имеют преимущество, так как образуют поле в замкнутом объеме, но, как правило, могут быть применены для испытаний ТС меньших размеров, чем это позволяют симметричные полосковые линии, в полосе частот до 200 МГц. Специальные конструкции ТЕМ-камер (например, гибридные ТЕМ-камеры) позволяют проводить испытания ТС больших размеров в более широкой полосе частот.
Как и в случае применения симметричных полосковых линий, испытания ИТС в ТЕМ-камере необходимо проводить последовательно в нескольких положениях с тем, чтобы проверить его устойчивость при воздействии поля с горизонтальной и вертикальной поляризацией.
Примечание - Требования к ТЕМ-камерам приведены в ГОСТ Р 51048.
Симметричные полосковые линии и ТЕМ-камеры могут быть применены для испытаний только в том случае, если удовлетворяются установленные в настоящем стандарте требования к однородности испытательного поля и размещению ИТС и подключенных к нему кабелей. ИТС и подключенные кабели должны занимать не более одной трети расстояния между электродом с нулевым потенциалом и внешним электродом ТЕМ-камеры.
Частичное покрытие экранированных помещений радиопоглощающим материалом применяют для снижения резонансов, которые имеют место в экранированной камере без покрытия, но при меньшей стоимости, чем это достигается в безэховых или полубезэховых камерах. Радиопоглощающий материал размещают на стенах и потолке в точках основного отражения электромагнитных волн, распространяющихся от излучающей антенны к ИТС.
Указанные помещения могут быть использованы для проведения испытаний, если удовлетворяются требования настоящего стандарта к однородности поля.
Этот метод применим в малонаселенных районах при условии, что исключены помехи радиосвязи. На открытых испытательных площадках необходимо применять радиопоглощающий материал для уменьшения отражений от земной поверхности.
Излучаемую мощность радиопередатчиков часто устанавливают в единицах эффективной излучаемой мощности по отношению к полуволновому диполю. Поэтому напряженность поля, создаваемого в дальней зоне, может быть непосредственно получена с использованием следующей формулы для диполя:
![]()
где Е - напряженность поля (среднеквадратичное значение), В/м;
k - коэффициент, величина которого равна 7 для распространения радиоволн в свободном пространстве в дальней зоне;
Р - эффективная излучаемая мощность, Вт;
d - расстояние от антенны, м.
Отражающие и поглощающие объекты, расположенные поблизости, изменяют напряженность поля.
Если эффективная излучаемая мощность передатчика неизвестна, в уравнение Е.1 может быть подставлена величина мощности, передаваемой в антенну. В этом случае величину коэффициента к для типичных переносных радиопередатчиков принимают равной 3.
Степени жесткости испытаний и диапазоны частот воздействующего поля при испытаниях ТС выбирают в соответствии с параметрами электромагнитных излучений, которые могут воздействовать на ТС после его окончательной установки на месте эксплуатации. При выборе степеней жесткости испытаний необходимо принимать во внимание последствия отказов в работе ТС. Если последствия отказов в работе могут быть значительными, устанавливают более высокие степени жесткости испытаний.
Если места, где будут установлены ТС, известны, ожидаемый уровень радиочастотного поля, может быть установлен путем изучения источников радиочастотных полей в местах установки ТС. Если мощности источников неизвестны, измеряют напряженность поля в местах (месте) установки ТС.
Для ТС, предназначенных для эксплуатации в различных местах, при выборе степени жесткости испытаний используют следующие рекомендации.
Приведенные ниже классы условий электромагнитной обстановки соответствуют степеням жесткости испытаний, установленным в разделе 5 настоящего стандарта. Использование указанных классов рассматривается как основа для выбора степеней жесткости испытаний.
Класс 1 - обстановка, характеризующаяся низким уровнем электромагнитных излучений. Соответствует случаю расположения маломощных радиовещательных и телевизионных передатчиков на расстоянии более 1 км от места эксплуатации ТС.
Класс 2 - обстановка, характеризующаяся средним уровнем электромагнитных излучений. Соответствует случаю применения переносных радиостанций мощностью менее 1 Вт при ограничении их работы в непосредственной близости к ТС. Представляет собой типичную коммерческую обстановку.
Класс 3 - обстановка, характеризующаяся высоким уровнем электромагнитных излучений. Соответствует случаю применения переносных радиостанций мощностью более 1 Вт в непосредственной близости к ТС (но не менее 1 м), а также близкому расположению мощных радиовещательных и телевизионных передатчиков и промышленных, научных и медицинских высокочастотных установок. Представляет собой типичную промышленную обстановку.
Класс X - особые условия электромагнитной обстановки при эксплуатации ТС, применительно к которым степень жесткости испытаний устанавливают в стандарте на ТС конкретного вида или в технической документации на ТС.
Е.3 Степени жесткости испытаний, относящиеся к устойчивости ТС в условиях помехоэмиссии от цифровых радиотелефонов
Степени жесткости испытаний должны быть выбраны в соответствии с ожидаемыми параметрами электромагнитных полей, т.е. на основе рассмотрения мощностей радиотелефонных устройств и возможных расстояний между их передающими антеннами и ТС, подлежащими испытаниям. Учет подвижных радиостанций, как правило, приводит к установлению более жестких требований при испытаниях в сравнении с базовыми станциями, так как подвижные станции могут быть размещены на существенно меньших расстояниях от потенциально восприимчивых ТС, чем базовые станции.
При выборе степеней жесткости испытаний необходимо принимать во внимание затраты, связанные с установлением необходимой помехоустойчивости ТС, и последствия отказов в работе ТС. Более высокие степени жесткости испытаний должны быть установлены только в том случае, если последствия отказов в работе могут быть значительными.
На практике с малой вероятностью появления могут иметь место случаи, когда уровни воздействующих полей могут превышать уровни, выбранные для испытаний. Для того, чтобы предотвратить неприемлемые отказы в работе ТС в этих условиях, может быть необходимым проведение вторичных испытаний при повышенной интенсивности воздействующего поля и при допущении определенного ухудшения качества функционирования ТС.
В таблице 1 приведены примеры степеней жесткости испытаний, критериев качества функционирования ТС при испытаниях и соответствующих защитных расстояний. Защитное расстояние представляет собой минимальное допустимое расстояние между ТС и цифровым радиотелефоном, соответствующее установленной степени жесткости испытаний. Указанные расстояния рассчитывают с использованием уравнения (Е.1) при k = 7, предполагая, что сигнал при испытаниях модулируется по амплитуде синусоидальным напряжением при глубине модуляции 80 %.
Таблица Е.1 - Примеры степеней жесткости испытаний, критериев качества функционирования ТС при испытаниях и соответствующих защитных расстояний
|
Степень жесткости испытаний |
Напряженность поля в отсутствие модуляции, В/м |
Максимальное среднеквадратичное значение напряженности поля, В/м |
Защитное расстояние, м |
Критерий качества функционирования (примечание 3) |
|||
|
2 Вт GSM |
8 Вт GSM |
1/4 Вт DECT |
Пример 1 (примечание 1) |
Пример 2 (примечание 2) |
|||
|
1 |
1 |
1,8 |
5,5 |
11 |
1,9 |
- |
- |
|
2 |
3 |
5,4 |
1,8 |
3,7 |
0,6 |
А |
- |
|
3 |
10 |
18 |
0,6 |
1,1 |
-0,21) |
В |
А |
|
4 |
30 |
54 |
0,4 |
0,4 |
-0,11) |
- |
В |
|
1) При данных и меньших расстояниях уравнение (ЕЛ) для поля дальней зоны является неточным. Примечания1 ТС, для которых последовательность отказов в работе допустима. 2 ТС, для которых последовательность отказов в работе недопустима. 3 В соответствии с разделом 9 настоящего стандарта. |
|||||||
При установлении величин, приведенных в таблице Е.1, было учтено следующее:
- для большей части радиотелефонов системы GSM максимальная эффективная излучаемая мощность составляет 2 Вт. Некоторая часть подвижных радиотелефонов, находящихся в эксплуатации, имеет максимальную эффективную излучаемую мощность 5 и 8 Вт. Эффективная излучаемая мощность подвижных радиотелефонов в большинстве случаев меньше, чем максимальная, за исключением их применения в районах затрудненного приема;
- условия связи внутри помещений являются более сложными, чем вне помещений. Поэтому эффективная излучаемая мощность радиотелефонов внутри помещений может во многих случаях не соответствовать максимальной мощности, установленной для данного класса оборудования. Это усложняет условия обеспечения ЭМС, так как большинство образцов ТС, восприимчивых к воздействию электромагнитных полей, применяют внутри помещений;
- как указано в приложении А, уровень помехоустойчивости различных образцов ТС определяют в зависимости от максимального среднеквадратичного значения напряженности модулированного поля. По этой причине при расчетах защитных расстояний в уравнение (ЕЛ) вместо значения напряженности немодулированного поля подставляют максимальное среднеквадратичное значение напряженности модулированного поля;
- защитное расстояние рассчитывают при подстановке в уравнение (Е.1) коэффициента k = 7. При этом не учитывают случайные колебания напряженности поля из-за отражений от стен, пола и потолка помещений, которые могут быть в пределах ±6 дБ;
- в соответствии с уравнением (Е.1) защитное расстояние зависит от эффективной излучаемой мощности цифрового радиотелефона и не зависит от его рабочей частоты.
Устанавливаемые с учетом рекомендаций, приведенных в приложении Е, степени жесткости испытаний соответствуют типичным уровням воздействующего поля, редко превышаемым при указанных выше условиях эксплуатации ТС.
Вместе с тем в некоторых местах размещения ТС указанные уровни могут быть превышены, например, при установке радиолокационной станции, расположении в одном здании с ТС мощных радиопередатчиков или промышленных, научных и медицинских высокочастотных установок. В этих случаях экранирование помещения или здания, в котором расположено ТС, и применение помехоподавляющих фильтров в силовых кабелях и кабелях передачи сигналов может быть более предпочтительным, чем установление для всех ТС повышенных требований устойчивости к электромагнитному полю.
Настоящий стандарт и ГОСТ Р 51317.4.6 устанавливают два различных метода испытаний ТС на устойчивость к воздействию излученной электромагнитной энергии.
Испытания на устойчивость к помехам, наведенным радиочастотными электромагнитными полями, в основном более полезны на пониженных частотах, а испытания на устойчивость к радиочастотным электромагнитным полям - на повышенных частотах. Существует область частот, в которой одновременно применимы методы испытаний, установленные в настоящем стандарте и в ГОСТ Р 51317.4.6.
Метод испытаний, установленный в ГОСТ Р 51317.4.6, может быть использован на частотах до 230 МГц. Возможно также использовать метод, установленный в настоящем стандарте, на частотах до 26 МГц.
Примечание - Применение метода испытаний, установленного в ГОСТ Р 51317.4.6, на частотах выше 150 МГц на рассмотрении.
Настоящее приложение преследует цель обеспечить технические комитеты по стандартизации и разработчиков технической документации на ТС рекомендациями по выбору наиболее приемлемого метода испытаний, обеспечивающего воспроизводимость результатов испытаний с учетом конструктивных особенностей ТС.
При выборе метода испытаний должны быть рассмотрены:
- соотношение между длиной волны воздействующего поля и размерами ИТС;
- соотношение размеров ИТС и длин подключенных к нему кабелей;
- число элементов ИТС и подключенных к ним кабелей.
СТ-2 (бесшнуровой телефон второго поколения) - система бесшнурового телефона, широко используется в некоторых европейских странах.
DCS 1800 (цифровая сотовая система) - сотовая мобильная система связи, характеризующаяся низкой стоимостью. Распространена в различных странах.
DECT (цифровая усиленная система связи) - бесшнуровая сотовая система связи, характеризующаяся низкой стоимостью. Широко используется в европейских странах.
GSM (глобальная система подвижной связи) - сотовая мобильная система связи. Распространена в различных странах.
NADC (северо-американская цифровая сотовая система связи) - цифровая сотовая мобильная система связи. Широко используется в США.
PDC (персональная сотовая система связи) - сотовая мобильная система связи. Широко используется в Японии.
PHS (персональная ручная телефонная система) - бесшнуровая телефонная система. Широко используется в Японии.
Ключевые слова: электромагнитная совместимость; технические средства; устойчивость к электромагнитным помехам (помехоустойчивость); радиочастотное электромагнитное поле; требования; степени жесткости испытаний; методы испытаний; испытательное оборудование; калибровка поля