
ГОСУДАРСТВЕННЫЙ СТАНДАРТ СОЮЗА ССР
МАШИНЫ
ЗЕМЛЕРОЙНЫЕ.
ТРУБОУКЛАДЧИКИ
ТЕРМИНЫ, ОПРЕДЕЛЕНИЯ И ТЕХНИЧЕСКАЯ
ХАРАКТЕРИСТИКА ДЛЯ КОММЕРЧЕСКОЙ
ДОКУМЕНТАЦИИ
ГОСТ 27963-88
(ИСО 7136-86)
ГОСУДАРСТВЕННЫЙ КОМИТЕТ СССР ПО СТАНДАРТАМ
Москва
ГОСУДАРСТВЕННЫЙ СТАНДАРТ СОЮЗА ССР
|
МАШИНЫ ЗЕМЛЕРОЙНЫЕ. Термины,
определения и техническая характеристика Earth-moving machinery. Pipe layers.
|
ГОСТ 27963-88 (ИСО 7136-86) |
Дата введения 01.01.90
Настоящий стандарт устанавливает терминологию и содержание технической документации по самоходным гусеничным трубоукладчикам.
Настоящий стандарт распространяется на гусеничные трубоукладчики по разд. 4.
Ссылочные документы приведены в приложении 2.
4.1. Трубоукладчик - самоходная гусеничная машина, предназначенная для подъема и укладки труб и транспортирования оборудования для трубопроводов. Данная машина, базой для которой служит гусеничный трактор, имеет специально сконструированные составные части, например главную раму, противовес, механизм подъема стрелы и груза и боковую стрелу, поворачивающуюся только в вертикальной плоскости.
4.2. Базовая машина - трубоукладчик без рабочего оборудования, соответствующий технической документации изготовителя, то есть с башмаками указанной ширины и механизмом подъема.
4.3. Рабочее оборудование - комплект составных частей (стрела и противовесы), монтируемых на базовую машину для обеспечения выполнения ее основной функции в соответствии с назначением.
4.4. Дополнительное оборудование - поставляемая по выбору заказчика сборочная единица из составных частей, которая может быть смонтирована на базовой машине для специального применения.
4.5. Составная часть - деталь или сборочная единица из деталей базовой машины, рабочего или дополнительного оборудования.
5.1. Основной вид трубоукладчика - по черт. 1.
Трубоукладчик
Черт. 1
Примечание. В настоящее время существуют два вида механизмов подъема стрелы: канатный и гидравлический.
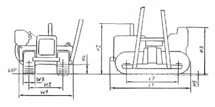
5.2. Размерные характеристики - по черт. 2.
Размеры
базовой машины (трубоукладчика)
без трубоукладочного оборудования
GRP - опорная плоскость отсчета
Черт. 2
Определения размерных характеристик базовой машины - по ИСО 6746/1.
Определения размерных характеристик, относящихся только к трубоукладчикам, приведены в приложении 1.
5.3. Массы
5.3.1. Эксплуатационная масса - масса базовой машины с рабочим оборудованием, указанным изготовителем с полностью заправленными топливным баком, гидросистемой, системами смазывания и охлаждения, с канатом и крюком и с учетом массы оператора (75 кг).
5.3.2. Отгрузочная масса - масса базовой машины без оператора с полностью заправленными гидросистемой, системами смазывания и охлаждения, с 10 %-ной заправкой топливного бака и либо со стрелой, противовесом, рамами противовеса, кабиной или навесом, либо без них, в зависимости от указаний изготовителя.
5.3.3. Масса кабины (навеса) - масса кабины (навеса) со всеми их составными частями и элементами крепления к базовой машине.
5.4. Наименования составных частей - по черт. 3.
1 - стрела; 2 - противовес; 3 - рама
(рамы) противовеса;
4 - барабаны подъема груза и (если имеется) подъема
стрелы; 5 - нижняя обойма грузового полиспаста; 6 -
верхняя обойма грузового полиспаста; 7 - грузоподъемный канат; 8 - канат или
гидроцилиндр подъема стрелы; 9 - грузовой крюк; 10 - шарнир основания стрелы;
11 - шарнир верхней грузовой обоймы; 12 - башмак гусеницы; 13 - опорный каток
гусеницы; 14 - звено гусеницы
Черт. 3
6.1. Мощность-нетто двигателя - см. ИСО 9249.
6.2. Максимальные скорости движения - см. ГОСТ 27927.
6.3. Скорость перемещения крюка - скорость перемещения крюка, измеряемая при номинальной частоте вращения коленчатого вала двигателя при порожнем барабане.
6.4. Номинальный груз - груз при указанных вылетах, положении противовеса, числе ветвей каната и разрывной прочности каната.
6.5. Грузоподъемность*.
_____________
* Метод определения грузоподъемности войдет в международный стандарт, разрабатываемый в настоящее время.
7.1. Двигатель (привести характеристики)
Изготовитель и модель.
С воспламенением от сжатия или с искровым зажиганием.
Тактность (двух- или четырехтактный).
С естественным всасыванием, механическим наддувом или газотурбонаддувом.
Число цилиндров.
Диаметр цилиндра.
Ход поршня.
Рабочий объем цилиндра.
Система охлаждения (воздушное или водяное охлаждение).
Вид топлива.
Мощность-нетто на маховике ... при ... об/мин.
Максимальный крутящий момент ... при ... об/мин.
Тип стартера.
Напряжение электрооборудования ... В.
7.2. Трансмиссия машины (указать тип)
Примеры:
С ручным переключением передач, со сцеплением на маховике.
С сервопереключением, с гидротрансформатором.
Объемная гидропередача.
Электрическая трансмиссия.
Число скоростей переднего и заднего хода.
Скорости передвижения передним и задним ходом.
7.3. Рулевое управление и торможение
Тип тормозов (барабанные, дисковые, работающие в масле, сухие).
Система привода (гидравлическая, механическая).
7.4. Заправочные емкости систем машины
Топливный бак.
Картер двигателя.
Система охлаждения.
Коробка передач.
Конечные передачи.
Гидросистема.
Механизмы подъема стрелы и груза.
7.5. Конечные передачи (указать тип)
7.6. Гусеничный ход (см. черт. 2)
Колея гусеничного хода (W2).
Ширина башмака гусеницы (W4).
База гусеничного хода (L2).
Площадь опорной поверхности (2´W4´L2).
Число башмаков гусеницы (с каждой стороны).
Число опорных катков (с каждой стороны).
7.7. Трубоукладочные механизмы (тип, размеры, масса)
Противовесы (масса).
Механизмы подъема стрелы и груза (тип и характеристики - диаметры блоков, число ветвей каната, размеры гидроцилиндров, подача насоса и т.д.).
Муфты и тормоза (типы и размеры).
Барабаны подъема стрелы и груза (размеры и канатоемкость).
Диаметр каната и минимальная разрывная прочность.
Длина стрелы.
7.8. Карта грузоподъемностей
Карта номинальных грузов при указанных вылетах груза (W12).
7.9. Эксплуатационная масса
7.10. Отгрузочная масса
7.11. Габаритные размеры трубоукладчика (приложить схемы, например черт. 2).
Справочное
Размерные характеристики. Термины, определения и условные обозначения
|
Условное обозначение |
Термин |
Определение |
Схема |
|
Н20 |
Высота до верхней точки придвинутого противовеса |
Расстояние по координате Z от опорной плоскости отсчета (GRP) до верхней точки придвинутого противовеса или его рамы |
|
|
Н21 |
Просвет под вынесенным противовесом |
Расстояние по координате Z от GRP до нижней точки вынесенного противовеса |
|
|
Н22 |
Максимальная высота подъема крюка |
Расстояние по координате Z от GRP до нижней точки внутренней поверхности максимально поднятого крюка |
|
|
W10 |
Ширина с придвинутым противовесом |
Расстояние по координате Y между плоскостями Y, проходящими через крайние внешние точки машины с придвинутым противовесом и снятой стрелой |
|
|
W11 |
Ширина с вынесенным противовесом |
Расстояние по координате Y между плоскостями Y, проходящими через крайние внешние точки машины с вынесенным противовесом и снятой стрелой |
|
|
W12 |
Вылет груза |
Расстояние по координате Y между плоскостями Y, проходящими через центр грузового крюка и внешнюю кромку внешней направляющей гусеницы стрелового борта |
|
|
L13 |
Длина стрелы |
Расстояние между центрами шарнира основания стрелы и шарнира верхней обоймы грузового полиспаста |
|
Справочное
Ссылочные нормативно-технические документы
|
Пункт, в котором приведена ссылка |
Обозначение соответствующего стандарта |
Обозначение отечественного нормативно-технического документа, на который дана ссылка |
|
5.2 |
ИСО 6746/1 |
- |
|
6.1 |
ИСО 9249 |
- |
|
6.2 |
ИСО 6014 |
ИНФОРМАЦИОННЫЕ ДАННЫЕ
|
1. |
ВНЕСЕН Министерством строительного, дорожного и коммунального машиностроения СССР |
|
2. |
Постановлением Государственного комитета СССР по стандартам от 20.12.88 № 4322 введен в действие государственный стандарт СССР ГОСТ 27963-88, в качестве которого непосредственно применен международный стандарт ИСО 7136-86, с 01.01.90 |
|
3. |
Введен впервые |