ЦЕНТРАЛЬНЫЙ НАУЧНО-ИССЛЕДОВАТЕЛЬСКИЙ И ПРОЕКТНЫЙ ИНСТИТУТ ПО ГРАДОСТРОИТЕЛЬСТВ (ЦНИИП ГРАДОСТРОИТЕЛЬСТВА) ГОСГРАЖДАНСТРОЯ
РУКОВОДСТВО ПО ПРОЕКТИРОВАНИЮ САНИТАРНО-ЗАЩИТНЫХ ЗОН ПРОМЫШЛЕННЫХ ПРЕДПРИЯТИЙ
|
|
МОСКВА СТРОЙИЗДАТ 1984 |
Содержание
Рекомендовано в изданию решением Научно-технического совета ЦНИИП градостроительства Госгражданстроя.
Разработано к СНиП II-60-75* «Планировка и застройка городов, поселков и сельских населенных пунктов».
Обобщен комплекс основных вопросов, связанных с проектированием санитарно-защитных зон промышленных предприятий. Установлены состав и содержание проектных материалов по устройству санитарно-защитных зон на разных уровнях градостроительного проектирования.
Для широкого круга проектировщиков-градостроителей.
Законом Союза ССР об охране атмосферного воздуха (статьи 13 и 14)1 приняты положения, регламентирующие размещение, проектирование строительство и ввод в эксплуатацию предприятий, сооружений и других объектов, влияющих на состояние атмосферного воздуха. В соответствии с требованиями градостроительных и санитарных норм в целях охраны окружающей среды населенных пунктов промышленные предприятия, на которых после соответствующих мер по очистке выбросов сохраняется выделение в атмосферу вредных веществ, должны отделятся от жилой застройки санитарно-защитными зонами.
1 Закон Союза ССР об охране атмосферного воздуха постановлением Верховного Совета СССР от 25 июня 1980 г. введен в действие с 1 января 1981 г.
Настоящим Руководством устанавливается порядок разработки санитарно-защитных зон промышленных предприятий на разных уровнях градостроительного проектирования: схеме и проекте районной планировки, технико-экономических основах (ТЭО) генерального плана развития крупного города, схеме генерального плана групп предприятий, проекте планировки городского промышленного района, а также при разработке технического проекта и рабочих чертежей озеленения санитарно-защитной зоны.
Настоящее Руководство распространяется на проектирование санитарно-защитных зон, находящихся в черте застройки города или поселка, при величине разрыва между границей территории промышленного предприятия и границей жилых районов, не превышающей 3000 м. В Руководстве не рассматриваются вопросы защиты внешней среды населенных пунктов от иных видов неблагоприятного воздействия промышленных предприятий (шум, вибрация, ультразвук, электромагнитные волны, радиочастоты, статическое электричество, радиация, ионизирующие излучения).
Руководство разработано Центральным научно-исследовательским и проектным институтом по градостроительству Госгражданстроя с участием Государственного проектного института Гипрокоммунстрой Министерства жилищно-коммунального хозяйства РСФСР (канд. архит. Ю. В. Жданович, архит. В. Н. Антонинов, д-р архит. Ю. П. Бочаров, инж. Д. И. Ващекин).
1.1. Проектировать санитарно-защитные зоны промышленных предприятий следует на основе рекомендаций настоящего Руководства с учетом соответствующих требований, приведенных в СНиП II-60-75* «Планировка и застройка городов, поселков и сельских населенных пунктов», СНиП II-89-80 «Генеральные планы промышленных предприятий», СН 245-71 «Санитарные нормы проектирования промышленных предприятий».
1.2. В Руководстве принимается следующий ряд понятий: «зона загрязнения», «санитарно-защитная зона», «разрыв от источника производственных выбросов в атмосферу» (рис. 1).

А - территория промышленного предприятия; Б - санитарно-защитная зона промышленного предприятия; В - селитебная территория; Г - защитная зона сельскохозяйственных или лесных угодий; Д - территория сельскохозяйственных угодий; 1 - источник производственных выбросов в атмосферу; 2 - разрыв от источника производственных выбросов до границы селитебном территории; 3 - разрыв от источника производственных выбросов до границы сельскохозяйственных или лесных угодий; 4 - граница зоны загрязнения, в пределах которой приземная концентрация вредных веществ превышает значения ПДК для населенных пунктов; 5 - граница зоны загрязнения, в пределах которой приземная концентрация вредных веществ превышает допустимые нормы для сельскохозяйственных или лесных угодий; 6 - ширина санитарно-защитной зоны промышленного предприятия
Под понятием «зона загрязнения» имеется в виду территория вокруг источника загрязнения, в пределах которой приземный слой атмосферы загрязнен вредными веществами, содержащимися в производственных выбросах, в концентрациях, превышающих допустимые нормы.
Под понятием «санитарно-защитная зона» имеется в виду часть зоны загрязнения в пределах между границей промышленного предприятия и границей селитебной территории населенного пункта. Санитарно-защитная зона устанавливается в целях снижения уровня загрязнения атмосферного воздуха до установленных пределов после проведения на предприятиях всех, мер по очистке промышленных выбросов. Зона должна быть соответствующим образом планировочно организована, озеленена и благоустроена.
Примечание. Понятие, санитарно-защитная зона» отличается от установленного СН 245-71, где допускается включение в зону части промышленной и городской территории.
Под понятием «разрыв от источника производственных выбросов в атмосферу» имеется в виду расстояние от источника выбросов, на котором достигается уровень допустимой концентрации вредных веществ в приземном слое атмосферы.
1.3. Комплексное решение санитарно-защитных зон с определением их сметной стоимости входит в задачу промышленных предприятий. Территория санитарно-защитных зон, находящихся в черте городской застройки, включается согласно СНиП II-60-75* в баланс территорий города.
1.4. Проектирование санитарно-защитных зон в части установления размеров, зонирования территории с отведением участков под озеленение, застройку, прокладку транспортных путей и сетей инженерных коммуникаций, а также решения архитектурно-планировочных задач должно осуществляться в увязке с планировочной организацией промышленных предприятий и районов жилой застройки, прилегающих к зонам.
1.5. Территория санитарно-защитных зон промышленных предприятий не должна рассматриваться в качестве резерва расширения территории предприятий.
1.6. Руководящие положения по озеленению и благоустройству санитарно-защитных зон (разд. 5) приняты с учетом технических указаний по проектированию и содержанию зеленых насаждений в санитарно-защитных зонах промышленных предприятий, разработанных Академией коммунального хозяйства им. К. Д. Памфилова и утвержденных приказом по Министерству жилищно-коммунального хозяйства РСФСР № 103 от 12 марта 1978 г.
2.1. Проектирование санитарно-защитных зон промышленных предприятий в части установления их размеров, планировочной организации, озеленения и благоустройства, а также порядок оформления, согласования и утверждения проектной документации должны находиться в увязке с проектными материалами, выполняемыми для соответствующего уровня градостроительного проектирования:
I - схемой районной планировки; II - проектом районной планировки; III - технико-экономическими основами (ТЭО) развития крупного города; IV - генеральным планом города или поселка; V - проектом планировки промышленной зоны (района) города выполняемыми в соответствии с Инструкцией о составе, порядке разработки, согласования и утверждения схем и проектов районной планировки, планировки и застройки городов, поселков и сельских населенных пунктов/ВСН 38-82; VI - схемой генерального плана промышленного узла, выполняемой в соответствии с Инструкцией по разработке схем генеральных планов групп предприятий с общими объектами (промышленных узлов) СН 387-78, а также VII - техническим проектом озеленения санитарно-защитной зоны; VIII - рабочими чертежами озеленения санитарно-защитной зоны, выполняемыми согласно рекомендациям, приведенным в настоящем Руководстве.
2.2. При разработке схемы районной планировки (I) или проекта районной планировки (II) в схемах комплексной оценки территории, выполняемых соответственно в М = 1:300000 - 1:100000 и в М = 1:50000 - 1:25000, в целях общего обоснования функционального зонирования территории должны устанавливаться зоны загрязнения промышленных предприятий (промышленных узлов) (рис. 2).

Рис. 2. Схема районной планировки. Зоны загрязнения в схеме комплексной оценки территории
1 - город и поселки; 2 - промышленные предприятия проектируемые; 3 - промышленные предприятия существующие; 4 - железные дороги; 5 - автомобильные дороги; 6 - зоны загрязнения проектируемых промышленных предприятий; 7 - зоны загрязнения существующих промышленных предприятий
Размеры зон загрязнения должны устанавливаться, как правило, путем расчета рассеивания в атмосфере вредных веществ, содержащихся в выбросах предприятий (см. разд. 3 настоящего Руководства), для чего в составе исходных материалов для разработки схемы и проекта районной планировки должны приводиться данные по производственно-технологическим параметрам (с учетом перспективы развития промышленных предприятий) по форме, приведенной в прил. 1.
В проекте районной планировки, наряду с установлением общих зон загрязнения, должны выделяться в пределах границ предприятий и жилой застройки санитарно-защитные зоны.
2.3. Зоны загрязнения, установленные в проекте районной планировки, подлежат согласованию с исполкомами местных Советов народных депутатов, местными органами Министерства здравоохранения, а также - Министерством сельского хозяйства.
2.4. При разработке технико-экономических основ (ТЭО) развития крупного города (III) в схеме санитарно-гигиенической оценки существующего состояния окружающей среды (выполняемой на копии опорного плана в М = 1 25000 - 1:10000) должны быть указаны, по данным местных санэпидстанций (СЭС), все существующие источники загрязнения окружающей среды, в том числе источники промышленных выбросов в атмосферу и ранее установленные санитарно-защитные зоны промышленных предприятий.
В схеме санитарно-гигиенической оценки прогнозируемого состояния окружающей среды (выполняемой на копии эскиза генерального плана города в М = 1:25000 - 1:10000) для существующих, реконструируемых и проектируемых промышленных предприятий должны быть определены размеры санитарно-защитных зон с учетом планируемых мероприятий по развитию предприятий, а также мероприятий, направленных на охрану окружающей среды от промышленных загрязнений.
2.5. При разработке генерального плана города или поселка (IV) в схеме санитарно-гигиенической оценки существующего состояния окружающей среды (выполняемой в масштабах 1:10000, 1:5000, 1:2000 в зависимости от величины города или поселка) должны быть указаны существующие источники загрязнения воздушной среды, а также санитарно-защитные зоны промышленных предприятий по данным, установленным ранее при разработке ТЭО развития города.
В схеме санитарно-гигиенической оценки прогнозируемого состояния окружающей среды (выполняемой в тех же масштабах, что и схема существующего состояния окружающей среды), должны быть указаны кроме существующих источников загрязнения также источники загрязнения атмосферы вновь проектируемых предприятий.
При разработке генерального плана города в целях проверки принятых размеров санитарно-защитных зон следует проводить контрольный расчет рассеивания производственных вредностей с учетом уточненного комплекса источников .выбросов и перспективного уровня технологии производства, а также фонового загрязнения (рис. 3).

Рис. 3. Функциональное зонирование города (к схеме санитарно-гигиенической оценки состояния окружающей среды)
1 - селитебная зона; 2 - промышленная зона; 3 - научно-учебная зона; 4 - коммунально-складская зона; 5 - транспортная территория; 6 - общественные центры; 7 - парки; 8 - зоны массового, отдыха; 9 - санитарно-защитная зона; 10 - источники загрязнения атмосферного воздуха
2.6. В проекте генерального плана города (поселка) территория санитарно-защитных зон должна включаться в таблицы «Проектное использование территории города (поселка)», «Баланс территории города», согласно формам СНиП II-60-75* «Планировка и застройка городов, поселков и сельских населенных пунктов», приведенным в прил. 4 и 5.
2.7. При разработке проекта планировки промышленной зоны (района) города (V):
а) в схеме планировки района, выполняемой в М = 1:5000, должны устанавливаться границы санитарно-защитных зон по материалам генплана города;
б) в схеме санитарно-гигиенической оценки современного состояния окружающей среды, выполняемой в М = 1:2000, наносятся источники загрязнения атмосферы по данным проектов предприятий и устанавливаются границы санитарно-защитных зон с учетом планировочной структуры района;
в) в эскизе планировки и застройки, выполняемом в М = 1:2000, должна быть дана архитектурно-планировочная организация территории санитарно-защитной зоны с указанием существующей, сохраняемой и проектируемой застройки, характера озеленения и благоустройства, а также должен быть выделен первый этап осуществления санитарно-защитной зоны.
В эскизе планировки и застройки должно быть предусмотрено размещение объектов, а также благоустройство и озеленение санитарно-защитных зон с учетом повышения эффективности очистки воздушного бассейна и возможного в дальнейшем сокращения размеров санитарно-защитных зон;
г) в схеме инженерной подготовки территории и оценки прогнозируемого состояния окружающей среды, выполняемой в М = 1:2000, должны быть указаны мероприятия по инженерной подготовке, направленные на обеспечение охраны окружающей среды, а также выделены участки с различной степенью загрязнения производственными выбросами;
д) в разбивочном чертеже, выполняемом в М = 1:2000, на территории санитарно-защитной зоны должны быть указаны координаты углов красных линий с привязкой их к опорным зданиям или к закрепленным на местности геодезическим пунктам.
2.8. Утвержденный в установленном порядке проект планировки промышленной зоны (района) города, в составе которого должна быть разработана санитарно-защитная зона, является основой для выдачи задания на разработку технического (техно-рабочего) проекта озеленения санитарно-защитной зоны.
Порядок разработки технического (техно-рабочего) проекта озеленения санитарно-защитных зон, а также рабочих чертежей озеленения приведен в разделе 5 настоящего Руководства.
2.9. При разработке схемы генерального плана промышленного узла (VI) согласно Инструкции СН 387-78 (п. 1.2) должно обеспечиваться наиболее эффективное кооперирование строительства общих для группы предприятий объектов. При решении санитарно-защитной зоны промышленного узла (являющейся общим для данной группы объектом) следует дополнительно рассмотреть планировочную структуру генеральных планов отдельных предприятий, входящих в группу с целью исключения неблагоприятного размещения источников производственных выбросов в атмосферу, при котором может происходить (в расчетных направлениях) наложение факелов выбросов, приводящее к увеличению приземных концентраций вредных веществ и к увеличению размеров санитарно-защитных зон (рис. 4, 5).

Рис. 4. Санитарно-защитная зона в схеме генерального плана промышленного узла
1 - территории промышленных предприятий, входящих в группу промышленного узла; 2 - селитебная территория; 3 - источники загрязнения атмосферного воздуха; 4 - санитарно-защитная зона

Рис 5 Влияние положения группы источников производственных выбросов в атмосферу на ширину санитарно-защитной зоны:
а) положение группы источников производственных выбросов в атмосферу при котором не происходит опасного суммирования приземных концентраций вредных веществ. Ширина санитарно-защитной зоны устанавливается оптимальных размеров;
б) положение группы источников производственных выбросов в атмосферу при котором происходит суммирование приземных концентраций вредных веществ. Ширина санитарно-защитной зоны должны устанавливаться увеличенных размеров;
А - территория промышленного предприятия; Б - селитебная территория; I, II, III - источники производственных выбросов в атмосферу; 1 - кривые приземных концентраций вредных веществ от отдельных источников выброса; 2 - кривые суммарных веществ приземных концентраций от групп источников выброса; 3 - уровень максимальной приземной концентрации вредного вещества; 4 - уровень предельно допустимой концентрации (ПДК) вредного вещества в атмосферном воздухе населенных пунктов; X1 - величина разрыва от источника производственных выбросов в атмосферу, ближайшего к границе селитебной территории; X2 - величина разрыва от более удельного источника выбросов; X3 - величина разрыва от наиболее удаленного источника выбросов; Y - расстояние между осями источников выбросов ( перпендикулярными к границе селитебной территории). Источники производственных выбросов в атмосферу условно принятых с одинаковыми производственно - технологическими параметрами; L - ширина санитарно-защитной зоны.
2.10. Порядок и характер разработки материалов, связанных с проектированием санитарно-защитных зон промышленных предприятий на всех уровнях градостроительного проектирования, приведен в табл. 1
Сводная таблица порядка и характера разработки санитарно-защитных зон промышленных предприятий на различных уровнях градостроительного проектирования
|
№ п.п. |
Уровень проектирования |
Наименование проектной документации |
Масштаб чертежей |
Характер разработки |
|
I |
Схема районной планировки |
Схема комплексной оценки территории |
1:300000 - 1:100000 |
Устанавливаются размеры зон загрязнения |
|
II |
Проект районной планировки |
То же |
1:50000 - 1:25000 |
Устанавливаются размеры зон загрязнения и границы санитарно-защитных зон промышленных предприятий (промышленных узлов) |
|
III |
ТЭО развития крупного города |
Схема санитарно-гигиенической оценки существующего состояния окружающей среды |
1:100000 - 1:25000 |
Устанавливаются размеры зон загрязнения существующих предприятий |
|
|
|
Схема санитарно-гигиенической оценки прогнозируемого состояния окружающей среды |
1:100000 - l:25000 |
Устанавливаются размеры зон загрязнения и санитарно-защитных зон с учетом вновь проектируемых предприятий и перспективного развития существующих предприятий (промузлов) |
|
IV |
Генеральный план города |
Схема санитарно-гигиенической оценки существующего состояния окружающей среды |
1:10000 - 1:5000 - 1:2000 |
Указываются размеры санитарно-защитных зон промышленных предприятий (с учетом существующего уровня загрязнения) |
|
|
|
Схема санитарно-гигиенической оценки прогнозируемого состояния окружающей среды |
1:10000 - 1:5000 - 1:2000 |
Уточняются расчетом размеры санитарно-защитных зон промышленных предприятий с включением их территории в таблицу баланса территорий города (поселка) |
|
|
|
Схема санитарно-гигиенической оценки современного состояния окружающей среды |
1 : 2000 |
Установление источников загрязнения атмосферы и нанесение границ санитарно-защитных зон |
|
V |
Проект планировки промышленной зоны, (района) города |
Эскиз застройки |
1:2000 |
Устанавливается архитектурно-планировочная организация санитарно-защитных зон с указанием сохраняемой существующей и проектируемой застройки, характера и вида зеленых насаждений проездов и дорог |
|
|
|
Схема инженерной подготовки территории и оценки прогнозируемого состояния окружающей среды |
1 :2000 |
В санитарно-защитной зоне указываются существующие и проектные мероприятия по инженерной подготовке, направленные на обеспечение охраны окружающей среды |
|
|
|
Разбивочный чертеж красных линий |
1 :2000 |
В санитарно-защитной зоне указываются координаты углов красных линий с привязкой их к геодезическим пунктам |
|
VI |
Схема генерального плана промышленного узла |
Ситуационный план района размещения промышленного узла (групп предприятий). Существующая планировочная структура |
1:25000 - 1:10000 |
Устанавливаются границы зон загрязнения и санитарно-защитных зон |
|
VII |
Технический проект озеленения и благоустройства санитарно-защитной зоны |
Генеральный план санитарно-защитной зоны и прочие чертежи |
1:10000 - 1:5000 - 1:2000 - 1:1000 - 1:500 |
Уточняется планировочная организация санитарно-защитной зоны, устанавливаются типы и конструкции посадок, ассортимент древесно-кустарниковых пород, цветов и газонных трав, разрабатывается агротехника работ по озеленению, определяются объемы работ по озеленению, инженерному оборудованию и благоустройству озеленяемых территорий Составляется смета на озеленение и благоустройство санитарно-защитной зоны |
|
VIII |
Рабочие чертежи озеленения санитарно-защитной зоны |
Разбивочный, посадочный и другие чертежи |
1:2000 - 1:1000 - 1:500 - 1:200 - 1:100 |
Выполняются рабочие чертежи на производство работ по озеленению инженерному оборудованию и благоустройству озеленяемых территорий |
3.1. Размеры зон загрязнения промышленных предприятий должны устанавливаться, как правило, путем расчета рассеивания в атмосфере вредных веществ, выбрасываемых из источников после применения на последних эффективных средств очистки. Расчет рассеивания производится в соответствии с «Указаниями по расчету рассеивания в атмосфере выбросов предприятий» СН 369-74.
Исходными данными для расчета являются:
а) производственно-технологические параметры источников выброса вредных веществ (выдаваемые технологическими организациями) по форме, приведенной в прил. 1;
б) схема генерального плана предприятия (промышленного узла) с указанием координат источников производственных выбросов в атмосферу, по данным технологических организаций;
в) показатели по существующему и прогнозируемому фоновому загрязнению атмосферного воздуха в районе проектируемого предприятия по данным местной санэпидстанции (СЭС) и Гидрометеослужбы;
г) расчетная температура воздуха, °С, наиболее холодного и теплого периодов времени года, данные о средней годовой скорости ветра, м/с, и повторяемость ветра, %, по материалам долголетних наблюдений близлежащей к месту строительства метеостанции.
3.2. При определении размеров зон загрязнений предприятий или промышленных узлов с многочисленными, рассредоточенными и разнохарактерными источниками выбросов в атмосферу вредных веществ расчет рассеивания следует производить по унифицированной программе расчета загрязнения атмосферы с применением ЭВМ, разработанной Главной геофизической обсерваторией им. А. И. Воейкова. Расчетом на ЭВМ комплексно вычисляется суммарная наземная концентрация по рассматриваемым видам вредных веществ, создаваемая всеми источниками загрязнения.
Результаты расчета распространения вредностей в атмосфере обрабатываются и оформляются для каждого вида вредностей в виде изолиний, наносимых на. схему генплана по заготовленной прямоугольной координатной сетке с размерами для генплана района или города 400 - 500 м, а для генплана предприятия или промузла 100 - 200 м.
Значения одинаковых показателей содержания вредных веществ на плане местности соединяются изолиниями.
3.3. При установлении зон загрязнения в целях определения мест размещения населенных пунктов критерием являются показатели предельно допустимых концентраций (ПДК) вредных веществ в атмосферном воздухе населенных мест согласно табл. 1892-78 (см. прил. 3).
Примечание. На территориях санитарно-охранных зон курортов, в местах размещения крупных санаториев и домов отдыха, зонах отдыха городов с населением более 200 тыс. человек приземные максимальные концентрации вредных веществ не должны превышать 0,8 ПДК.
При размещении вблизи промышленных предприятий сельскохозяйственных или лесных угодий критерием для установления зон загрязнения должны приниматься нормы предельно допустимых концентраций вредных веществ в атмосферном воздухе, устанавливаемые для соответствующего вида растительности Министерством сельского хозяйства СССР или Государственным комитетом лесного хозяйства СССР.
3.4. При разработке схем или проектов районной планировки в тех случаях, когда на этих этапах градостроительного проектирования отсутствуют законченные технологические проекты предприятий и не могут быть выданы точные данные по производственно-технологическим параметрам источников выбросов в атмосферу, для расчета рассеивания в атмосфере вредных веществ следует принимать ориентировочные, обобщенные и укрупненные показатели, основанные на аналогах по характеру и мощности соответствующих производств.
3.5. Устанавливать границы санитарно-защитных зон, определяемые в пределах зон загрязнения, следует с учетом конкретных условий планировки промышленного района города (поселка) и согласовывать с местными органами санитарного надзора.
3.6. При размещении предприятий с незначительным количеством источников производственных выбросов в атмосферу (до 20 источников) для определения размеров санитарно-защитных зон целесообразно пользоваться Методическим руководством по определению размеров санитарно-защитных зон и предельно допустимых выбросов (ПДВ), приведенным в прил. 2.
3.7. Перед определением размеров санитарно-защитных зон следует предварительно установить (по методике, приведенной в прил. 2) величину ПДВ по каждому виду вредного вещества, содержащемуся в выбросах предприятий. Если величина ПДВ окажется выше или равной исходной величине выброса согласно технологическим данным, дальнейшего расчета по определению размеров санитарно-защитной зоны можно не производить. В этих случаях санитарно-защитная зона устанавливается минимальной по согласованию с местными органами санитарного надзора.
3.8. Ширина санитарно-защитной зоны может устанавливаться минимальной по согласованию с органами санитарного надзора, если расчетная граница зоны загрязнения окажется в пределах территории предприятия или если расчетное расстояние от источника выбросов до места, на котором достигается уровень допустимой концентрации, меньше размера, установленного для соответствующего класса вредности предприятия по санитарной классификации производств (СН 245-71).
3.9. Увеличение высоты источников выброса (высоты труб) в целях достижения лучшего рассеивания в атмосфере вредных веществ следует применять только после использования всех современных технических средств по сокращению объемов выброса. Причем, учитывая, что с увеличением высоты источника выброса отдаляется от источника место установления максимальной приземной концентрации, следует проследить, чтобы это мероприятие не вызывало необходимости увеличения ширины санитарно-защитной зоны.
3.10. При определении границ санитарно-защитных зон промышленных предприятий в условиях реконструкции предприятий и сложившейся застройки города следует придерживаться следующего порядка.
На схеме планировки городского промышленного района наносится граница зоны загрязнения, установленная расчетом рассеивания в атмосфере вредных веществ, содержащихся в выбросах действующих предприятий (до их реконструкции).
В соответствии с ГОСТ 17.2.3.02-78 «Правила установления допустимых выбросов вредных веществ промышленными предприятиями» находят уровень допустимого выброса, который может быть поэтапно достигнут на предприятиях при дальнейшем совершенствовании технологии производств и повышении эффективности средств пылезологазоочистки. Повторным расчетом рассеивания в атмосфере производственных выбросов с учетом улучшенных производственно-технологических параметров уточняются размеры зоны загрязнения.
Граница санитарно-защитной зоны фиксируется по конкретным для каждого случая условиям градостроительного и планировочного порядка.
Жилой фонд с лечебными и детскими учреждениями, находящийся в пределах уточненных границ зоны загрязнения, подлежит выводу. Причем капитальные жилые и общественные здания могут быть переоборудованы для использования их под объекты служебного или хозяйственного назначения (лаборатории, склады и т. д.). Вся ветхая застройка подлежит сносу.
Жилой фонд, размещенный в части города, в пределах которого будет обеспечено нормальное состояние внешней среды после планируемого поэтапного проведения реконструкции предприятия и сокращения выбросов в атмосферу, сохраняется.
Принципиальная схема установления границ санитарно-защитной зоны в условиях реконструкции предприятия и сложившейся застройки города приведена на рис. 6.

Рис. 6. Принципиальная схема установления границы санитарно-защитной зоны в условиях реконструкции предприятия и сложившейся застройки города
А - территория промышленного предприятия, подлежащего реконструкции с поэтапным сокращением выбросов в атмосферу, Б - территория города; В - санитарно-защитная зона; 1 - источник производственных выбросов в атмосферу; 2 - зона загрязнения выбросами предприятия, установленная до его реконструкции; 3 - зона загрязнения предприятия с учетом сокращенного объема выбросов после его реконструкции; 4 - граница санитарно-защитной зоны, установленная с учетом планировочных ограничений; 5 - район города, из которого выносятся весь жилой фонд, лечебные и детские учреждения; 6 - район города, в пределах которого будет обеспечено нормальное состояние внешней среды после проведения полной реконструкции предприятия
В случаях, когда не представляется возможным устранить или существенно уменьшить выбросы вредных веществ от отдельных предприятий и объектов, в территориально-ведомственных планах должны определяться сроки вывода этих предприятий и объектов из селитебных зон городов и других населенных пунктов или сроки изменения производственного профиля этих предприятий и объектов.
3.11. При установлении санитарно-защитных зон необходимо учитывать влияние на размер зон, положение группы источников производственных выбросов в атмосферу на территории предприятий (рис. 5).
При фронтальном размещении группы источников выбросов (параллельно границе селитебной территории), при котором в расчетном направлении не происходит наложение факелов и исключается опасная концентрация в атмосфере вредных веществ, ширина санитарно-защитной зоны устанавливается оптимальных размеров (рис. 5, а). В случаях сосредоточенного размещения группы источников выбросов, при котором в расчетном направлении создается наложение факелов производственных выбросов и происходит опасное суммирование приземных концентраций, ширина санитарно-защитной зоны должна быть увеличена (рис. 5, б).
3.12. Размеры санитарно-защитных зон для складских зданий и сооружений следует устанавливать в соответствии с нормативными документами по проектированию складских зданий в сооружений различного назначения, а также придерживаться требований главы СНиП II-89-80 «Генеральные планы промышленных предприятий».
3.13. Размеры санитарно-защитных зон (величина разрывов) для сельскохозяйственных предприятий и объектов сельскохозяйственного назначения, для канализационных очистных сооружений, а также величину разрывов от зданий насосных станций канализации см. в прил. 6 и 7.
4.1. Планировочная организация санитарно-защитных зон кроме выполнения основной задачи защиты воздушной среды населенных пунктов от промышленных загрязнений должна также отвечать требованиям архитектурно-композиционной увязки жилых районов города с промышленными предприятиями.
4.2. При планировке санитарно-защитных зон следует учитывать, что одним из важных факторов, обеспечивающих защиту воздушной среды населенных пунктов от промышленных загрязнений, является озеленение зон газоустойчивыми древесно-кустарниковыми насаждениями конструкций защитных посадок которых приведены в разд. 5 настоящего Руководства.
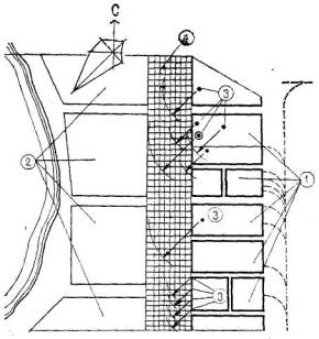
4.3. Зонирование территории санитарно-защитных зон с установлением участков под застройку, озеленение защитными древесно-кустарниковыми насаждениями, прокладка транспортных путей и размещение сети инженерных коммуникаций должны осуществляться с учетом различной интенсивности загрязнения производственными выбросами приземного слоя атмосферы на территории зоны. Для этой цели следует составлять комплексную графоаналитическую схему кривых приземных концентраций вредных веществ от всех основных источников выбросов предприятий согласно примеру, приведенному на рис. 7.

Рис. 7. Схема зонирования санитарно-защитной зоны с учетом уровня загрязнения ее территории производственными выбросами в атмосферу
А - территория промышленного предприятия; Б - селитебная территория; В - участки санитарно-защитной зоны, в пределах которых расчетом устанавливается наибольшая степень загрязнения атмосферного воздуха;
1 - источники производственных выбросов в атмосферу организованного вида (через трубы); 2 - источник производственных выбросов в атмосферу неорганизованного вида; 3 - кривая приземной концентрации вредных веществ от источника неорганизованного вида выбросов; 4 - кривые приземных концентраций вредных веществ от отдельных источников организованного вида выбросов; 5 - кривые суммирования приземных концентраций вредных веществ от источников организованного и неорганизованного видов выброса, 5 - уровень максимальной суммарной величины приземной концентрации вредного вещества; 7 -уровень предельно допустимой концентрации (ПДК.) рассматриваемого вредного вещества для населенных пунктов; 8 - ширина санитарно-защитной зоны; 9 - участок зоны, отводимый под размещение системы защитных полос древесно-кустарниковых насаждений; 10 - участок зоны, отводимый под размещение зеленого массива древесно-кустарниковых насаждений;. 11 - участки, отводимые под застройку объектами, допускаемыми к размещению на территории санитарно-защитных зон
4.4. Участки под застройку объектов, размещаемых на территории санитарно-защитных зон, следует отводить в местах, в которых по условиям закономерности распространения производственных выбросов обеспечивается наименьшая степень загрязнения приземного слоя атмосферы.
4.5. При планировке и застройке санитарно-защитных зон следует руководствоваться номенклатурой объектов и планировочных элементов, допускаемых к размещению на территории зон в зависимости от их ширины, приведенной в табл. 2.
Номенклатура объектов и планировочных элементе, допускаемых к размещению на территории санитарно-защитных зон в зависимости от их ширины
|
№ п.п. |
Наименование |
Ширина зоны, м |
||
|
до 300 |
300 - 1000 |
1000 - 3000 |
||
|
|
Озеленение, благоустройство |
|
|
|
|
1 |
Древесно-кустарниковые насаждения |
+ |
+ |
+ |
|
2 |
Газоны, цветники |
+ |
+ |
+ |
|
3 |
Питомники |
- |
- |
+ |
|
4 |
Сельскохозяйственные культуры |
- |
- |
+ |
|
5 |
Площадки для отдыха работающих на предприятиях |
+ |
+ |
+ |
|
|
Транспортные сети |
|
|
|
|
6 |
Автодороги, проезды |
+ |
+ |
+ |
|
7 |
Развязки дорог в разных уровнях |
- |
- |
+ |
|
8 |
Тротуары |
+ |
+ |
+ |
|
9 |
Велосипедные дорожки |
+ |
+ |
+ |
|
10 |
Стоянки автомотовелотранспорта |
+ |
+ |
+ |
|
11 |
Железнодорожные пути |
- |
- |
+ |
|
12 |
Вертолетные площадки |
- |
- |
+ |
|
|
Инженерные коммуникации |
|
|
|
|
13 |
Сети инженерных коммуникаций |
+ |
+ |
+ |
|
14 |
ЛЭП от 120 до 110 кВ |
- |
+ |
+ |
|
15 |
ЛЭП от 110 до 220 кВ |
- |
- |
+ |
|
|
Здания административно-служебного и научно-технического назначения |
|
|
|
|
16 |
Административно-служебные здания промпредприятий |
+ |
+ |
+ |
|
17 |
Здания научно-технического назначения промпредприятий |
+ |
+ |
+ |
|
18 |
Помещения для аварийного персонала и охраны предприятий |
+ |
+ |
+ |
|
19 |
Профтехучилища, техникумы |
+ |
+ |
+ |
|
20 |
Павильоны стационарного наблюдения за загрязнением атмосферы |
+ |
+ |
+ |
|
|
Здания торгово-коммунального назначения |
|
|
|
|
21 |
Торговые здания, киоски |
+ |
+ |
+ |
|
22 |
Заводские столовые |
+ |
+ |
+ |
|
23 |
Заводские поликлиники, амбулатории поликлиники |
+ |
+ |
+ |
|
24 |
Пожарное депо |
+ |
+ |
+ |
|
25 |
Бани, прачечные |
+ |
|
+ |
|
26 |
Гаражи. |
+ |
+ |
+ |
|
27 |
Котельные (на газовом топливе с обоснованием их размещения расчетом рассеивания) |
- |
+ |
+ |
|
28 |
Промтоварные склады, не выделяющие вредностей |
- |
+ |
+ |
|
29 |
Мелкие предприятия, не выделяющие производственных вредностей |
- |
+ |
+ |
4.6. При планировочной организации санитарно-защитных зон и установления номенклатуры объектов и планировочных элементов, размещаемых на участках зон, следует руководствоваться принципиальными схемами зонирования территории зон в зависимости от их ширины:
а) для санитарно-защитных зон шириной до 300 м схемой, приведенной на рис. 8;
б) то же, от 300 до 1000 м схемой, приведенной на рис. 9;
в) то же, от 1000 до 3000 м схемой, приведенной на рис. 10.

Рис. 8. Принципиальная схема зонирования территории санитарно-защитной зоны шириной до 300 м с указанием номенклатуры объектов и планировочных элементов, размещаемых на участках зоны I - III
А - территория промышленного предприятия; Б - селитебная территория
1 - защитные древесно-кустарниковые насаждения, площадки для отдыха работающих на предприятии, автодороги, тротуары, стоянки автомотовелотранспорта, пожарные депо, бани, прачечные, склады (кроме продовольственных), котельные, гаражи; II - защитные древесно-кустарниковые насаждения, гаражи индивидуальных машин, автодороги, тротуары, велосипедные дорожки, торговые точки, павильоны стационарного наблюдения за загрязнением атмосферы; III - дороги, соединяющие промышленное предприятие с жилыми районами, предзаводские площадки, административно-служебные здания, профессиональные училища, проходные конторы, помещения, аварийного персонала, здания общественного питания, торговые здания

Рис. 9. Принципиальная схема зонирования территории санитарно-защитной зоны шириной от 300 до 1000 м с указанием номенклатуры объектов и планировочных элементов, размещаемых на участках зоны I-V
А - территория промышленного предприятия; Б - селитебная территория
I - защитные древесно-кустарниковые насаждения, площадки для отдыха работающих на предприятиях, автодороги, развилки дорог в разных уровнях, тротуары, площадки для автомотовелотранспорта, пожарные депо, бани, прачечные, автобазы, склады (кроме продовольственных), не выделяющие вредности, мелкие безвредные предприятия, котельные; II - сети инженерных коммуникаций, ЛЭП; III - защитные древесно-кустарниковые насаждения; IV - автодороги, тротуары, велосипедные дорожки, гаражи индивидуальных машин, торговые точки; V - транспортные пути, соединяющие промышленное предприятие с жилыми районами, предзаводские площади, административно-служебные здания, профессиональные училища, проходные конторы, помещения аварийного персонала, заводские поликлиники, амбулатории, здания общественного питания, торговые здания

Рис. 10. Принципиальная схема зонирования территории санитарно-защитной зоны шириной от 1000 до 3000 м с указанием номенклатуры объектов и планировочных элементов, размещаемых на участках зоны I-VII
А - территория промышленного предприятия; Б - селитебная территория
I - защитные древесно-кустарниковые насаждения, площадки для отдыха работающих на предприятиях, автодороги, тротуары, стоянки автомотовелотранспорта, пожарные депо, бани, прачечные, мелкие безвредные предприятия, автобазы, склады, котельные; II - сети инженерных коммуникаций, ЛЭП; III - транзитные автомагистрали, развязки дорог в разных уровнях, железнодорожные пути, стоянки, вертолетные площадки; IV - лесопитомники, технические культуры; V - защитные древесно-кустарниковые насаждения; VI - автодороги, тротуары, велодорожки, гаражи индивидуальных автомашин, торговые точки; VII - предзаводские площадки, административно-служебные здания, проходные конторы, помещения аварийного персонала, заводские поликлиники, амбулатории, здания общественного питания, торговые здания, транспортные сети, соединяющие предприятия с жилым районом
4.7. Защитное озеленение санитарно-защитных зон древесно-кустарниковыми насаждениями должно занимать площадь (из расчета по ширине зоны):
а) для зон шириной до 300 м - не менее 60%;
б) то же, от 300 до 1000 м - не менее 50%;
в) » » 1000 » 3000 м - » 40%.
4.8. В санитарно-защитной зоне не допускается размещение городских стадионов, садов и парков общественного, пользования,, а также общеобразовательных школ, лечебно-профилактических я оздоровительных учреждений общего пользования.
4.9. Использование территорий санитарно-защитных зон для сельскохозяйственного производства под полевые, огородные или садовые культуры допускается только по согласованию в каждом конкретном случае с местными органами Министерства сельского хозяйства СССР и органами санитарно-эпидемиологической службы.
5.1. Проектирование озеленения санитарно-защитных зон должно осуществляться с учетом характера промышленных загрязнений, а также местных природно-климатических и топографических условий.
5.2. Растения, используемые для озеленения санитарно-защитных зон, должны быть эффективными в санитарном отношении и достаточно устойчивыми к загрязнению атмосферы и почв промышленными выбросами.
При проектировании озеленения санитарно-защитных зон следует отдавать предпочтение созданию смешанных древесно-кустарниковых насаждений, обладающих большей биологической устойчивостью и более высокими декоративными достоинствами по сравнению с однопородными посадками. При этом не менее 50% общего числа высаживаемых деревьев должна занимать главная древесная порода, обладающая наибольшей санитарно-гигиенической эффективностью, жизнеспособностью в данных почвенно-климатических условиях и устойчивостью по отношению к выбросам данного промпредприятия. Остальные древесные породы являются дополнительными, способствующими лучшему росту главной породы. Менее устойчивые породы, но дающие большой эффект в очистке воздуха, как древесные, так и кустарниковые, размещаются внутри массива под прикрытием опушечных посадок.
Для опушечных насаждений подбираются наиболее устойчивые породы деревьев и кустарников. Опушечным насаждениям, обращенным к селитебной территории, промышленным предприятиям, административным зданиям, дорогам следует придавать более живописный характер путем создания сложных по контуру групп, посадок солитеров, использования высокодекоративных растений, контрастных сочетаний и других композиционных приемов.
5.3. При подборе растений для озеленения санитарно-защитных зон следует руководствоваться «Картой древнекультурных районов СССР» (прил. 9, рис. 25), таблицей «Географические зоны применения ассортимента деревьев и кустарников» (прил. 10) и таблицей «Ассортимент деревьев и кустарников для озеленения санитарно-защитных зон промышленных предприятий» (прил. 11).
Для цветочного оформления санитарно-защитных зон рекомендуется использовать густоустойчивые виды однолетних, двухлетних и многолетних цветочных растений, приведенные в таблице «Ассортимент цветочных растений» (прил. 12). Для создания газонов на территории санитарно-защитной зоны рекомендуются газонные травы, приведенные в таблице «Ассортимент газонных трав» (прил. 13).
5.4. Существующие зеленые насаждения на территории санитарно-защитной зоны должны быть максимально сохранены и включены в общую систему озеленения зоны. При необходимости должны предусматриваться мероприятия по их реконструкции.
5.5. Вновь создаваемые зеленые насаждения решаются посадками плотной структуры изолирующего типа, которые создают на пути загрязненного воздушного потока механическую преграду, осаждая и поглощая часть вредных выбросов, или посадками ажурной структуры фильтрующего типа, выполняющими роль механического н биологического фильтра загрязненного воздушного потока.
5.6. Изолирующие посадки типов ЛПИ-1, ЛПИ-2, ЛМИ (рис 11, 12, 13) создаются в виде плотных древесных -массивов и полос с опушками из кустарников на территории санитарно-защитных зон. Насаждения изолирующего типа размещаются у промышленного предприятия.

Рис. 11. Конструкция лесозащитной полосы изолирующего типа (ЛПИ-1)
1 - деревья главной породы; 2 - кустарник высокий: 3 - кустарник средний; 4 - газон

Рис. 12. Конструкция лесозащитной полосы изолирующего типа (ЛПИ-2)
1 - деревья главной породы; 2 - деревья сопутствующей породы; 3 - кустарник высокий; 4 - кустарник средний; 5 - газон

Рис 13 Конструкция лесного массива изолирующего типа (ЛМИ)
1- деревья главной породы; 2 -деревья сопутствующей породы; 3 - кустарник высокий; 4- кустарник средний; 5 - газон
Наиболее эффективны посадки с обтекаемыми опушками, т. е. созданными кустарниковыми и древесными породами с постепенно уменьшающимися по высоте кронами.
Деревья основной породы в изолирующих посадках высаживаются через 3 м в ряду при расстоянии 3 м между рядами; расстояние между деревьями сопутствующих пород - 2,5 м; крупные кустарники высаживаются на расстоянии 1 - 1,5 м друг от друга; мелкие - 0,5 м при ширине междурядий 2 - 1,5 м.
Для скорейшего достижения фронтальной сомкнутости насаждений в посадки изолирующего типа внутрь полос и массивов могут быть введены дополнительно кустарники.
5.7. Посадки фильтрующего типа ЛПФ-1, ЛПФ-2, ЛМФ (рис. 14, 15, 16) являются основными в защитных насаждениях, ими могут быть заняты также предзаводские входные территории, участки пешеходных маршрутов и мест кратковременного отдыха.

Рис. 14. Конструкция лесозащитной полосы фильтрующего типа (ЛПФ-1)
1 - деревья главной породы; 2 - газон

Рис. 15. Конструкция лесозащитной полосы фильтрующего типа (ЛПФ-2)
1 -деревья главной породы; 2 - газон

Рис. 16. Конструкция лесного массива фильтрующего типа (ЛМФ)
1 - деревья главной породы; 2 - кустарник высокий; 3 - газон
Схемой размещения насаждений с фильтрующими посадками предусматривается чередование в шахматном порядке закрытых и открытых пространств. В качестве открытых пространств наряду с участками, озелененными низкой растительностью, могут рассматриваться дороги, транспортные развязки, железнодорожные станции, площадки крытых складов, автостоянки и др. При этом соблюдение в плане строгой геометрической формы и размещения массивов и открытых участков необязательно.
Участки под фильтрующие посадки рекомендуется отводить площадью не менее 3 - 3,5 га, под открытые пространства площадью 1 - 1,5 га. Фильтрующие посадки выполняются в виде различных по площади массивов и полос без кустарниковых опушек. Составляющие их породы должны иметь крупные и высокоподнятые кроны. Для увеличения листовой поверхности допускается введение внутрь массива кустарниковых пород - 5 -10% количества высаживаемых деревьев.
5.8. Участки зеленых насаждений санитарно-защитных зон, примыкающие к жилой застройке, можно осуществлять по типу скверов и бульваров, предназначенных для транзитного движения пешеходов.
5.9. Оптимальные условия проветривания и очистки воздушного бассейна в санитарно-защитной зоне достигаются созданием коридоров проветривания, особенно в направлении господствующих ветров.
Необходимость создания коридоров проветривания должна быть учтена архитектурно-планировочным решением санитарно-защитной зоны. В качестве коридоров проветривания могут быть использованы трассы автомобильных и железных дорог, линии высоковольтных электропередач, водоемы и другие открытые пространства.
Коридоры проветривания не должны быть направлены в сторону жилой застройки.
5.10. При создании санитарно-защитных зон на облесенных территориях необходимо обеспечить хорошее проветривание и отвод загрязненных воздушных масс как с самой промплощадки, так и с территории санитарно-защитной зоны путем создания просек шириной 60 - 80 м, но не более 100 м. направленных в сторону от жилой застройки. Со стороны просеки насаждения не должны иметь плотных опушек, препятствующих их проветриванию.
Если лесной массив сформирован из пород, не устойчивых к загрязнению территории промышленными выбросами, необходимо предусмотреть лесохозяйственные мероприятия по постепенной замене этих пород на устойчивые.
5.11. Для предотвращения эрозии почв предусматривается проведение мероприятий по закреплению насаждениями оврагов, балок, крутых склонов в соответствии с агролесомелиоративными требованиями. При этом учитывается необходимость проветривания территории: склоны следует на 60 - 70% оставлять открытыми, размещая высококронные древесные насаждения небольшими группами, кулисами. Плотные массивы могут создаваться при удалении от бровки оврага не менее чем на 200 - 300 м.
5.12. При проектировании насаждений санитарно-защитной зоны в условиях реконструкции промышленных предприятий, расположенных в городской застройке, необходимо предусмотреть интенсивное озеленение:
участков, с которых выводятся жилые, детские и лечебные учреждения;
участков, свободных от застройки и освобождающихся после сноса малоценных и ветхих строений;
участков отработанных карьеров; отвалов отходов производства, ликвидируемых свалок и т. д.
При проектировании санитарно-защитных зон действующих предприятий в стесненных условиях сложившейся городской застройки удельный вес озеленяемых территорий и их размещение устанавливаются по согласованию с местными органами санитарного надзора и органами строительства и архитектуры.
5.13. Проектирование озеленения санитарно-защитной зоны должно осуществляться с учетом утвержденных технико-экономических обоснований (ТЭО) строительства предприятий или другой предпроектной документации, заменяющей ТЭО (схемы и др.), в которых наряду с подтверждением экономической целесообразности и хозяйственной необходимости строительства или реконструкции предприятия определяются:
обоснованность принятых размеров санитарно-защитной зоны;
характер использования ее территории;
затраты на создание зоны с включением в них стоимости озеленения и благоустройства озеленяемой территории, а также затрат, связанных с изъятием земель из сельскохозяйственного пользования и выносом жилья, детских и лечебных учреждений;
очередность выполнения указанных выше работ;
стадийность проектирования.
При сложных условиях создания санитарно-защитной зоны проектирование ведется в две стадии с разработкой проекта и рабочей документации. При несложных условиях должны разрабатываться рабочие (одностадийные) проекты озеленения санитарно-защитной зоны в целом или по очередям строительства, определенным ТЭО.
Если проект озеленения санитарно-защитной зоны выполняется в составе проекта строительства или реконструкции предприятия, стадийность проектирования озеленения зоны, как правило, определяется стадийностью проектирования предприятия.
5.14. Задание на проектирование озеленения санитарно-защитной зоны выдается заказчиком проекта в соответствии с решениями и технико-экономическими показателями, включая стоимость строительства, принятыми в ТЭО строительства или реконструкции предприятий, утвержденными в установленном порядке.
В случаях когда строительство санитарно-защитной зоны намечается осуществлять очередями, задание на проектирование составляется и утверждается с технико-экономическими показателями первой очереди строительства, при этом в задании должны приводиться также технико-экономические показатели санитарно-защитной зоны на полное ее развитие. На каждую последующую очередь составляется и утверждается отдельное задание на проектирование.
Проектные организации (генеральная и субподрядная) должны принимать непосредственное участие в разработке заданий на проектирование.
Задание на проектирование утверждается в порядке, предусмотренном СН 202-81*.
Форма задания на проектирование дана в прил. 8.
Вместе с заданием на проектирование заказчиком выдаются проектной организации следующие материалы:
санитарное задание органов санитарной охраны;
архитектурно-планировочное задание, составленное местными органами строительства и архитектуры;
технические условия на проектирование инженерных сетей;
материалы по ранее проведенным инженерным изысканиям, имеющимся у заказчика проекта;
характеристика выбросов промышленного предприятия загрязняющих окружающую среду, в том числе характеристика интенсивности загрязнения территории санитарно-защитной зоны;
сведения о микроклиматических условиях территории, в том числе о повторяемости направлений ветра по месяцам года;
материалы, характеризующие размещение существующих и проектируемых зданий, сооружений, инженерных коммуникаций;
материалы, характеризующие планировку территории зоны [проекты детальной планировки промышленного узла, промышленного района и др., разработка которых предшествовала выполнению рабочего проекта озеленения (проекта озеленения)];
каталоги Единых районных единичных расценок и Сборники сметных цен на материалы, привязанные к местным условиям, размеры накладных расходов и начислений.
В случае необходимости изъятия земель из сельскохозяйственного пользования, выноса с территории зоны жилья, детских и лечебных учреждений заказчиком выдаются:
справка Исполкома местного Совета народных депутатов о санитарной норме жилой площади на 1 жителя в м2, принятой в данном населенном пункте при распределении жилья;
справка о средней плановой стоимости 1 м2, жилой площади, утвержденной для данного города или района, с учетом соответствующего объема строительства объектов соцкультбыта и инженерных сетей;
ведомость инвентаризации строений, находящихся на территории зоны, с указанием числа проживающих в них жителей, мест в детских и лечебных учреждениях и балансовой стоимости строений;
оценочная стоимость плодово-ягодных насаждений, находящихся в личной собственности граждан, переселяемых с территории зоны;
справка исполкома местного Совета народных депутатов о размере убытков, причиняемых хозяйствам в связи с изъятием земель сельхозугодий из сельскохозяйственного пользования.
5.15. К изысканиям, материалы которых необходимы для разработки проекта озеленения санитарно-защитной зоны, относятся:
топографическая съемка в масштабе согласно п. 5.17
для разработки проекта и согласно п. 5.19 настоящего Руководства для разработки соответственно рабочего проекта и рабочей документации:
почвенное исследование в М 1:5000 для участков с однородным почвенным покровом (I - II категории сложности) и в М 1:1000 - 1:2000 для участков со сложным почвенным покровом (III категории сложности);
обследование существующих зеленых насаждений как на территории санитарно-защитной зоны, так и на аналогичных по условиям произрастания участках с целью выявления породного состава растений, устойчивости их к промышленным выбросам и общего состояния;
агролесомелиоративное обследование с целью определения оптимальных условий произрастания растений (подготовка почвы, посадка, уход за насаждениями) и выявления на территории санитарно-защитной зоны действующих оврагов, оползней, размывов, подвижных песков и других проявлений эрозии;
агроэкономическое обследование с целью выявления возможности обеспечения зеленого строительства посадочным, посевным материалом, растительной землей и другими строительными материалами;
водохозяйственное обследование, определяющее необходимость орошения, источники водоснабжения, состояние существующих водоемов, выбор способа орошения, местные оросительные нормы и кратность поливов, материал труб и пр.
5.16. В случаях когда исходные данные, необходимые для проектирования, отсутствуют или имеющиеся исходные данные не могут быть использованы при проектировании, заказчик согласно СН 202-81* может поручить генеральной проектной организации или, по ее рекомендации, специализированной проектной (изыскательской) организации подготовить по отдельному договору необходимые для проектирования исходные материалы; при этом изыскания включаются в состав основного договора на проектно-изыскательские работы, а подготовка прочих исходных материалов выполняется за счет средств основной деятельности предприятия-заказчика или средств, выделяемых ему на эти цели вышестоящей организацией.
5.17. В проекте (рабочем проекте) озеленения санитарно-защитной зоны решаются следующие вопросы:
уточняются намеченные в ТЭО функциональное зонирование и планировка территории с учетом проектных планировочных разработок, предшествовавших выполнению проекта (проекты детальной планировки промышленного узла, промышленного района и другие проекты планировки);
устанавливаются типы и конструкции посадок, подбирается ассортимент деревьев, кустарников, цветочных растений и газонных трав, разрабатывается агротехника работ по озеленению и уходу за насаждениями в первый год после посадки, определяются объем работ и потребность в материалах для озеленения;
разрабатываются мероприятия по максимальному сохранению и эффективному использованию в защитных целях существующих зеленых насаждений с определением объема работ по их реконструкции;
предусматриваются мероприятия по инженерной подготовке озеленяемых территорий, занятых отработанными карьерами, отвалами отходов промышленного и строительного производства, а также заболоченных, эродированных и других территорий, непригодных для озеленения в их естественном виде. Инженерная подготовка выполняется с максимальным сохранением существующего рельефа в целях сокращения объема земляных работ;
на отдельных участках защитных насаждений, если это необходимо, проектируются эксплуатационные дороги, а на участках, решенных по типу скверов и бульваров, - пешеходные дороги и электроосвещение;
решается организация полива зеленых насаждений, определяются нормы, методы и способы орошения.
В зависимости от выбранного способа орошения разрабатывается проект открытой или закрытой поливочной сети, определяются объем работ и потребность в материалах и оборудовании для полива, а также количество поливомоечных машин для полива насаждений на участках, где не предусматривается строительство поливочной сети.
В районах, где по природно-климатическим условиям зеленые насаждения требуют постоянного полива при эксплуатации, поливочная сеть проектируется постоянной, в остальных районах - временной, из расчета регулярного полива насаждений в первые 4 - 5 лет после посадки;
определяются штаты производственного персонала по уходу за насаждениями, потребность в машинах и механизмах для ухода;
решаются вопросы организации озеленительных работ;
определяется стоимость озеленения;
составляется пояснительная записка, в которой кратко излагается содержание проекта.
Примерная структура пояснительной записки к проекту озеленения санитарно-защитной зоны:
Введение.
1. Анализ исходных документов.
2. Проектное решение (архитектурно-планировочная организация, озеленение, инженерная подготовка, благоустройство и инженерное оборудование, объем работ, очередность и стоимость строительства, организация работ по строительству и уходу за озелененными территориями.
Приложение. Копии исходных документов, материалов предварительного согласования и др.).
Графический раздел проекта включает генеральный план, планы и схемы, характеризующие решение инженерной подготовки, озеленения, благоустройства и инженерного оборудования территории, а также других вопросов, рассмотренных проектом.
Генеральный план и основные чертежи (планы) других разделов проекта выполняются в масштабе 1:10000 при общей площади зоны более 5000 га.
1:15000 при площади от 1000 до 5000 га; 1:2000 при площади от 100 до 1000 га; 1:1000 (1:500) при площади менее 100 га.
На основных чертежах каждого раздела проекта дается объем работ по этому разделу, а на генеральном плане - сводный объем основных работ по всем разделам проекта.
На генеральном плане показываются границы зоны загрязнения и санитарно-защитной зоны, существующие (сохраняемые и подлежащие сносу) и проектируемые здания, сооружения, инженерные коммуникации, зеленые насаждения, приводится баланс площадей территории.
На плане инженерной подготовки показываются участки производства земляных работ, дренажная сеть и отражаются другие мероприятия по инженерной подготовке, предусмотренные проектом.
На плане озеленения (дендроплане) показываются существующие, реконструируемые и проектируемые насаждения с указанием типов посадок, вариантов схем смешения древесно-кустарниковых пород.
На плане благоустройства показываются проектируемые дороги и даются типы дорожных покрытий.
На плане электрических сетей показываются точки подключения к источникам питания и трассы основных сетей. На плане поливочной сети показываются точки подключения к источникам водоснабжения, трассировка магистральных сетей, а также насосные станции и другие сооружения. При незначительной насыщенности чертежей отдельных разделов проекта они могут быть совмещены.
5.18. В сметах на озеленение санитарно-защитной зоны должны быть учтены затраты на производство всех строительных работ, предусмотренных проектами инженерной подготовки, озеленения (включая уход за насаждениями в первый год после посадки), благоустройства и инженерного оборудования озеленяемой территории. В затратах на организацию санитарно-защитной зоны должны быть также учтены:
возмещение убытков, причиняемых хозяйствам в связи с изъятием земель;
затраты на освоение новых земель взамен изымаемых из сельскохозяйственного производства;
затраты на вывод с территории санитарно-защитной зоны жилого фонда, а также детских и лечебных учреждений, в том числе компенсация за плодово-ягодные насаждения, находящиеся в личной собственности граждан, переселяемых из зоны;
снос малоценных и ветхих строений.
Стоимость строительства зданий, допускаемых к размещению на территории санитарно-защитной зоны, коммунально-складских сооружений, ЛЭП, дорог и т. д., л также стоимость благоустройства их участков в затраты на строительство санитарно-защитной зоны не включаются.
5.19. Рабочие чертежи озеленения разрабатываются на основании утвержденного технического проекта. В состав рабочих чертежей на работы по озеленению входят разбивочные чертежи планировки и насаждений, посадочные чертежи, схемы конструкций насаждений в лесополосах и массивах.
Разбивочные и посадочные чертежи выполняются в масштабе:
для санитарно-защитных зон, несложных по планировке и озеленению, - 1:2000 - 1:1000;
для санитарно-защитных зон или их отдельных участков, сложных по планировке и озеленению, - 1:500;
для деталей планировки и озеленения - 1:200; 1:100.
На посадочных чертежах условными знаками изображаются сохраняемые существующие насаждения и проектируемые лесные массивы, лесозащитные полосы, аллейные, рядовые, групповые и куртинные посадки деревьев и кустарников, газоны, цветники, а также все существующие и проектируемые сооружения и коммуникации или коридоры коммуникаций.
На посадочном чертеже приводятся:
объем работ по озеленению и реконструкции существующих насаждений;
таблица потребности в посадочном материале в штуках по всем видам посадок (массивы, группы, полосы и др.) по принятому в проекте ассортименту.
К посадочному чертежу прилагаются конструкции массивов и лесополос.
На разбивочных чертежах проектируемые зеленые насаждения (массивы, группы, лесополосы, аллеи и т. п.) должны быть привязаны к опорным знакам строительной сетки, базисным линиям, закрепленным в натуре, или к дорожной сети, зданиям, сооружениям и другим постоянным, хорошо заметным в натуре опознавательным точкам.
Аналогичным способом выполняется привязка элементов благоустройства озеленяемых территорий и сетей инженерного оборудования.
При незначительной графической насыщенности разбивочных и посадочных чертежей они могут быть совмещены.
Содержание рабочей документации по инженерной подготовке благоустройству и инженерному оборудованию озеленяемых территорий определяется соответствующими техническими условиями.
5.20. При одностадийном проектировании в рабочем проекте озеленения санитарно-защитной зоны решаются все задачи проекта, а также выполняются необходимые для производства работ чертежи на инженерную подготовку, озеленение, благоустройство и инженерное оборудование озеленяемой территории.
Проект включает пояснительную записку, графический материал и сметы на строительство. Пояснительная записка должна иметь примерно ту же структуру, что и записка к проекту. Графический материал включает генеральный план санитарно-защитной зоны и, если это необходимо, основные чертежи по отдельным разделам, предусмотренные требованиями к составу графического материала проекта; а также рабочие чертежи по всем разделам проекта.
Требования к сметам на строительство те же, что и требования к сметам, выполняемым к проекту.
Проекты (рабочие проекты) озеленения и благоустройства санитарно-защитных зон и сметы на строительство подлежат согласованию и утверждению в порядке, установленном правилами разработки, согласования и утверждения проектно-сметной документации на строительство предприятий, зданий и сооружений (СН 202-81*).
Рабочая документация, разработанная в соответствии с утвержденным проектом, согласованию не подлежит.
ПРИМЕРНЫЕ СХЕМЫ ПЛАНИРОВКИ САНИТАРНО-ЗАЩИТНЫХ ЗОН

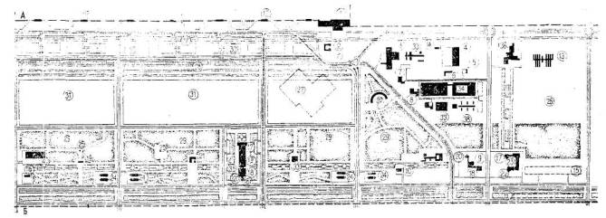
Рис. 17. Примерная схема планировки санитарно-защитной зоны шириной 2000 м крупного, вновь проектируемого машиностроительного предприятия (из практики проектирования ЦНИИП градостроительства)
А - территория промышленного предприятия; Б - селитебная территория;
1 - заводоуправление; 2 - медицинский пункт; 3 - учебный центр; 4 - центр технического обслуживания автомашин; 5 - автозаправочная станция; 6 - городской пункт мойки легковых автомашин; 7 - школа рабочей молодежи; 8- СКБ; 9 - рынок; 10 - городская понизительная подстанция; 11 - кооперативные гаражи (подземные); 12 - контрольно-пропускные пункты; 13 - оранжерея; 14 - инженерно-лабораторный корпус; 15 - кооперативные погреба; 16 - пожарное депо; 17 - гостиница; 18 - торговый комплекс; 19 - комбинат бытового обслуживания; 20 - кафе-ресторан; 21 - профтехучилище; 22 - кинотеатр; 23 - Дом быта; 24 - многоэтажные манежные гаражи; 25 - пункт наблюдения за загрязнением атмосферы; 26 - питомник; 27 - участок с существующей ветхой жилой застройкой, подлежащей сносу; 28 - озеленение в виде системы лесозащитных полос; 29 - озеленение в виде защитного лесного массива; 30 - стоянки автомотовелотранспорта; 31 - участки под сельскохозяйственные, технические культуры; 32 - сети инженерных коммуникаций (подземные); 33 - профтехучилище; 34 - НИИ; 35 - баня-сауна; 36 - административное здание

Рис. 18. Примерная схема планировки санитарно-защитной зоны в условиях реконструкции .города и промышленных предприятий (Из практики проектирования ЦНИИПромзданий
I - VII - территории промышленных предприятий, подлежащих реконструкции; А - селитебная территория; 1 - граница санитарно-защитной зоны, установленная расчетом по производственно-технологическим параметрам, принятым при реконструкции промышленных предприятий; 2 - существующие, сохраняемые объекты производственно-хозяйственного назначения (автобазы, ж. - д. депо, склады, ремонтные мастерские и др.); 3 - открытые площадки производственно-хозяйственного назначения (отвалы, склады и др.); 4 - существующая жилая застройка, подлежащая сносу; 5 - существующее кладбище; 6 - лесопитомник; 7 - массивы лесозащитного насаждения; 8 - система лесозащитных полос
Форма таблицы
|
Номер источника выброса по схеме планировки |
Координаты |
Наименование предприятия, характеристика источника выброса (труба, шахта, фонарь и т. д.) |
Наименование вредного веществе |
Количество вредного вещества, выбрасываемого в атмосферу. М, г/с |
Высота источника выброса над уровнем земли H, м |
Количество одинаковых источников N, шт. |
Диаметр устья трубы D, м |
Объем выбрасываемой газовоздушной смеси V1 м3/с |
Температура выбрасываемой газовоздушной смеси Т, °С |
|
|
x |
y |
|||||||||
|
1 |
2 |
3 |
4 |
5 |
6 |
7 |
8 |
9 |
10 |
11 |
|
|
|
|
|
|
|
|
|
|
|
|
Примечания: 1. При выдаче данных по количеству вредного вещества, выбрасываемого в атмосферу (гр. 6), а также температуры выбрасываемой газовоздушной смеси (гр. 11) необходимо указывать обоснованность этих данных: расчетные, измеренные (натурные) и т. д.
2. При наличии источника в виде аэрационного фонаря, высоту (гр. 7) принимать до верхней кромки фонаря.
3. При наличии прямоугольного устья источника (гр. 9) указывать размеры длины и ширины устья; при наличии аэрационного фонаря - длину фонаря.
4. При необходимости выдачи исходных данных для разработки проектов районной планировки или ТЗО показатели по исходным данным принимать осредненными и обобщенными.
Определение величины разрывов от источников производственных выбросов в атмосферу, регламентирующих размеры санитарно-защитных зон, производится в следующем порядке.
На схеме планировки промышленного района города координируются места размещения источников производственных выбросов в атмосферу и устанавливаются для них расчетные направления.
По материалам местной метеостанции или главы СНиП «Строительная климатология и геофизика» устанавливаются метеорологические данные, необходимые для проведения расчета:
а) показатели в расчетных направлениях средней скорости ветра, м/с;
б) показатели в расчетных направлениях повторяемости ветра, %;
в) средняя температура наружного воздуха в 13 ч наиболее жаркого месяца года.
По данным местной санэпидстанций устанавливается степень фоновой концентрации (при ее наличии) того или другого вредного вещества в атмосферном воздухе населенных мест.
Расстояние от источников производственных выбросов в атмосферу, на котором достигается уровень допустимой концентрации, определяется путем расчета рассеивания в атмосфере вредных веществ, содержащихся в выбросах предприятий по приведенным ниже расчетным формулам (согласно Указаниям СН 369-74).
Примечание. Методика расчета относится к условиям распространения производственных выбросов над ровной или слабопересеченной местностью с перепадами высот, не превышающими 50 м на 1 км в радиусе до 50 высот труб. При проектировании санитарно-защитных зон в условиях сложного рельефа следует за указаниями по расчету обращаться в Главную геофизическую обсерваторию им. А. И. Воейкова Главгидрометслужбы.
Методическое руководство предусматривает расчет по определению расстояния, на котором достигается уровень допустимой приземной концентрации вредных веществ от следующих видов источников выброса:
от одиночного точечного источника с круглым устьем выброса нагретой газовоздушной смеси;
то же, с круглым устьем выброса холодной газовоздушной смеси;
то же, с прямоугольным устьем выброса нагретой или холодной газовоздушной смеси;
от группы источников.
Порядок расчета. По каждому источнику определяются:
1) величина максимальной приземной концентрации cм, мг/м3, рассматриваемого вредного вещества;
2) величина опасной скорости ветра uм, м/с, при которой имеет место наибольшее значение приземной концентрации вредных веществ в атмосферном воздухе;
3) величина максимальной приземной концентрации cмu, мг/м3, с учетом показателей местной средней скорости ветра в расчетных направлениях;
4) расстояние xм, м, от источника выброса, на котором достигается максимальная величина приземной концентрации cм, мг/м3;
5) расстояние xмu, м, от источника, на котором достигается максимальная приземная концентрация cмu, мг/м3, с учетом показателей местной средней скорости ветра и в расчетных направлениях;
6) расстояние х, м, от источника в расчетном направлении, на котором достигается уровень приземной концентрации рассматриваемого вредного вещества, не превышающей ПДК;
7) величина разрыва l, м, в расчетном направлении от источника, размер которого соответствует расстоянию x, м, скорректированному с учетом местных показателей повторяемости, %, ветра.
Перед началом проведения расчета по определению размеров санитарно-защитных зон с учетом исходных данных для расчета следует проверить для каждого источника (по методике, изложенной ниже) величину ПДВ вредного вещества. Если расчетный показатель ПДВ, г/с, выше количества выбрасываемого вредного вещества M, г/с, принимаемого для расчета, и если нет вблизи других источников с аналогичным видом выброса (фонового загрязнения), дальнейший расчет от данного источника может не производиться (см. п. 3.7).
Расчет рассеивания в атмосфере вредных веществ от одиночного точечного источника с круглым устьем выброса нагретой газовоздушной смеси
1. Величина максимальной приземной концентрации вредных веществ см, мг/м3, определяется по формуле
(1)
где A - коэффициент, зависящий от температурной стратификации атмосферы, определяющей условия вертикального и горизонтального рассеивания вредных веществ в атмосферном воздухе, с2/3·мг·град1/3/г;
M - количество вредного вещества, выбрасываемого в атмосферу, г/с;
F - безразмерный коэффициент, учитывающий скорость оседания вредных веществ в атмосферном воздухе;
m и n - безразмерные коэффициенты, учитывающие условия выхода газовоздушной смеси из устья источника выброса;
H - высота источника выброса над уровнем земли, м;
V1 - объем газовоздушной смеси, м3с, выбрасываемой в атмосферу, определяемой по формуле
(2)
где D - диаметр, м, устья источника выброса;
ω0 - средняя скорость выхода газовоздушной смеси из устья источника выброса, м/с;
∆T - разность между температурой выбрасываемой газовоздушной смеси Tг и температурой окружающего атмосферного воздуха Tв, °С. Tв принимается равной средней температуре наружного воздуха в 13 ч наиболее жаркого месяца года; Tг, °С - температуре выбрасываемой газовоздушной смеси по технологическим нормам.
Величина; коэффициента А, c2/3 мг·град1/3/г, при расчетах должна приниматься:
а) для субтропической зоны Азии (лежащей южнее 40° с. ш.) . . . . . . . . 240
б) для Казахстана, Нижнего Поволжья, Кавказа, Молдавии, Сибири, Дальнего Востока и для остальных районов Средней Азии . . . . . 200
в) для севера и северо-запада европейской территории СССР, Среднего Поволжья, Урала и Украины . . . . . 160
г) для Центральной части европейской территории СССР . . . . . . . . . . 120
Безразмерный коэффициент F принимается:
а) для газообразных вредных веществ . . . 1
б) для пыли, если средний коэффициент очистки равен:
не менее 90% . . . . . . . 2
от 75 до 90% . . . . . . . 2,5
менее 76% . . . . . . . . . 3
Величина безразмерного коэффициента m определяется по формуле
(3)
(4)
Величина коэффициента m может быть определена по графику, приведенному на рис. 19.

Рис. 19. График для определения значений безразмерного коэффициента m
Величина безразмерного коэффициента n определяется в зависимости от параметра υм, м/с,
(5)
Величина коэффициента n может быть определена по графику, приведенному на рис. 20.

Рис. 20. График для определения значения безразмерного коэффициента n
2. Величина опасной скорости ветра, uм м/с, при котором имеет место наибольшее значение приземной концентрации вредных веществ в атмосферном воздухе, определяется в зависимости от параметра υм:
при υм ≤ 0,5 uм = 0,5; (9)
при 0,5 < υм < 2 uм = υм; (10)
(11)
3. Величина максимальной приземной концентрации cмu, мг/м3, с учетом показателей местной средней скорости ветра u, м/с, отличающейся от опасной скорости ветра uм, м/с, определяется по формуле
где r - безразмерная величина,
определяемая в зависимости от соотношения
;
Величина r может быть определена по графику, приведенному на рис. 21.

Рис. 21. График для определения значений безразмерных коэффициентов r и p
4. Расстояние xм, м, от источника, на котором достигается максимальная приземная концентрация, определяется по формуле
В случаях когда коэффициент F ≥ 2, xм, определяется по формуле
где d - безразмерная величина, определяемая в зависимости от параметра υм.
(17)
5. Расстояние xмu, м. от источника, на котором достигается максимальная приземная концентрация cмu, мг/м3, с учетом местной средней скорости ветра u, м/с, в расчетных направлениях по странам света, отличающейся от опасной старости ветра uм, м/с, определяется по формуле
xмu = pxм, (19)
где p - безразмерная величина,
определяемая в зависимости от соотношения
;
(20)
(22)
Величина p может быть определена по графику, приведенному на рис. 21.
6. Расстояние х, м, от источника выброса, на котором достигается приземная концентрация вредного вещества, не превышающая уровень ПДК, определяется по формуле
определения величины приземной концентрации вредных веществ с, мг/м3, по оси факела на различных расстояниях,
где s1 -
безразмерная величина, определяемая в зависимости от соотношения
и графиков,
приведенных на рис. 22
и 23.

Рис. 22. График для определения
безразмерного коэффициента S1
(при
≤8)

Рис. 23. График для определения
безразмерного коэффициента S1
(при
>8)
Подставляя пол значение c, мг/м3, величину ПДК рассматриваемого вредного вещества, а под значение cм - Величину максимальной приземной концентрации этого вещества с учетом показателей местной средней скорости ветра cмu, мг/м3, получаем преобразованную формулу
(24)
На графиках,
приведенных на рис. 22
и 23,
откладывая по линии s1
величину, равную соотношению
по линии
, находим соответствующую ей величину a.
Из равенства
определяем
Санитарный разрыв l, м, соответствующий расстоянию x, м, уточненному в расчетных направлениях в зависимости от местной розы ветров, определяется по формуле
(26)
где p - показатель повторяемости, %, ветра в расчетном направлении;
p0 - показатель повторяемости, %, ветра при круговой розе ветров (восьмирумбовой),
![]()
Расчет рассеивания в атмосфере вредных веществ от одиночного точечного источника с круглым устьем выброса холодной газовоздушной смеси
Величина, максимальной приземной концентрации вредных веществ cм, мг/м3, для выброса холодной газовоздушной смеси определяется по формуле
где
(28)
Значения А, М, F, H, D, V1 определены выше.
n - безразмерный коэффициент, определяется в зависимости от параметра υм, вычисляемого по формуле
(29)
Величина безмерного коэффициента п в зависимости от υм определяется по формуле (6), (7), (8) или по графику, приведенному на рис. 20.
Опасная скорость ветра uм, м/с, определяется в зависимости от параметра υм:
при υм 0,5 uм = 0,5;
при 0,5 < υм ≤ 2 uм = uм;
при υм > 2 uм = 2,2υм. (30)
Величина максимальной приземной концентрации cмu, мг/м3, в зависимости от показателей местной средней скорости ветра u, м/с, в расчетных направлениях определяется по формулам (12), (13), (14).
Расстояние xм, м, от источника выброса, на котором достигается максимальная величина приземной концентрации cм, мг/м3, определяется по формуле (15)
xм = dH,
или (при F ≥ 2) -по формуле (16)
![]()
где d - безмерный коэффициент, определяемый в зависимости от параметра υм:
при υм ≤ 2 d = 11,4υм; (31)
(32)
Расстояние хмu, м, от источник выброса, на котором достигается максимальная приземная концентрация с учетам показателей местной средней скорости ветра u, м/с, в расчетных направлениях определяется по формулам (18) - (21).
Расстояние хмu, м, от источника выброса, на котором концентрация вредного вещества, не превышающая ПДК, а также величина разрыва l, м, в зависимости от местной розы ветров определяется по формулам (23) - (25).
Расчет рассеивания в атмосфере вредных веществ от одиночного точечного источника с прямоугольным устьем выброса нагретой или холодной газовоздушной смеси
Расчет рассеивания и определение санитарных разрывов от такого вида источников выброса газовоздушной смеси объемом V1, м3/с, производятся по вышеприведенной методике для источников с круглым устьем выброса с учетом изменения следующих параметров:
диаметр устья D источника Dэ, м;
объем газовоздушной смеси V1 = V1э, м3/с.
Эффективный диаметр устья источника определяется по формуле
(33)
где L - длина устья источника, м;
b - ширина устья источника, м.
Средняя скорость выхода в атмосферу газовоздушной смеси ω0, м/с, определяется по формуле
(34)
Эффективный объем выходящей в атмосферу газовоздушной смеси определяется по формуле
(35)
Расчет по определению разрывов от группы источников
В разделе рассматриваются следующие случаи:
а. Группа точечных, близко расположенных источников с одинаковыми производственно - технологическими параметрами выброса нагретой или холодной газовоздушной смеси с однородным видом вредного вещества.
б. Группа точечных рассредоточенных источников с одинаковыми производственно - технологическими параметрами выброса нагретой или холодной газовоздушной смеси с одинаковым видом вредного вещества.
в. Группа точечных рассредоточенных источников с различными производственно - технологическими параметрами выброса газовоздушной смеси с различными видами вредных веществ (не обладающих суммацией действия).
а. Группа точечных, близко расположенных источников с одинаковыми параметрами выброса нагретой или холодной газовоздушной смеси с одним видом вредного вещества.
При расчете рассеивания и определения разрывов от группы одинаковых, близко расположенных друг к другу источников рекомендуется координаты всех источников сводить а один геометрический центр.
Величина максимальной суммарной приземной концентрации вредных веществ см, мг/м3, от группы N близко расположенных источников с одинаковыми параметрами определяется по формуле
для нагретого выброса:
(36)
для холодного выброса - по формуле (27),
(37)
где
М - суммарное количество вредного вещества, г/с выбрасываемого в атмосферу всеми источниками;
V - суммарный объем газовоздушной смеси, м3/с, выбрасываемой в атмосферу всеми источниками (V = V1N).
Определение значений А, М, F, m, n, H, ∆T, D, V1 дано выше, при определении величин концентраций от одиночных источников.
Величина параметра υ для группы источников определяется по формуле
(38)
Дальнейший расчет рассеивания в атмосфере вредных веществ и определения величины разрыва от группы N близко расположенных друг к другу одинаковых источников ведется как от одиночного источника, расположенного в геометрическом центре этой группы источников.
б. Группа точечных рассредоточенных источников с одинаковыми производственно - технологическими параметрами нагретого или холодного выброса однородного вредного вещества.
Расчет рассеивания и определения разрывов от группы N рассредоточенных источников с одинаковыми параметрами выброса однородного вещества проводится в следующем порядке.
Для упрощения расчета следует координаты мест положения источников совмещать на одну расчетную прямую, около которой эти источники группируются (учитывая при этом, что расчетная величина суммарной максимальной приземной концентрации в этом случае может быть несколько завышенной).
Величина максимальной приземной концентрации вредного вещества см, мг/м3, для каждого источника определяется согласно приведенной выше методике расчета для одиночного источника.
Суммарная величина максимальной приземной концентрации ∑см, мг/м3, от группы источников определяется графически путем построения совмещенных кривых распределения приземных концентраций в пространстве на различных расстояниях.
Величина суммарной максимальной приземной концентрации ∑смu, мг/м3, от группы источников с учетом показателей местной средней скорости ветра в расчетном направлении определяется с учетом показателя соотношения средней местной скорости ветра u и опасной скорости ветра uм по приведенной выше методике.
Расстояние х, м, на котором достигается ПДК И величина разрыва l, м, с учетом показателей местной розы ветров по повторяемости, %, устанавливается согласно вышеприведенной методике для одиночного источника с определением расстояния от места положения крайнего из группы (близлежащего к селитебной территории) источника.
В случаях когда по своему взаимоположению источники не могут быть совмещены на одну прямую, расчет определения величины суммарной приземной максимальной концентрации ∑см, мг/м3, величины расстояния х, м, на котором достигается значение ПДК, и величины разрывов l, м, ведется от места положения доминирующего в группе источника с учетом добавочного влияния на него концентраций вредных веществ от соседних источников.
Величина добавочной концентрации от каждого соседнего источника cy, ось расчетного направления которого находится на расстоянии y, м. от линии расчетного направления доминирующего источника, определяется по формуле
где c - величина концентрации соседнего источника по его оси на расстоянии х, м;
S2 -
безразмерная величина, определяемая в зависимости от местной средней скорости
ветра u, м/с, и
отношения
по формуле
или по графику, приведенному на рис. 24.

Рис. 24. График для определения значений безразмерного коэффициента S2
Расстояние х, м, и величина разрыва l, м, о учетов показателей местной розы ветров по повторяемости, %. устанавливается от места положения доминирующего из группы источника (близлежащего к границе селитебной территории), и расчет от него ведется по методике, приведенной выше для одиночного источника.
в. Группа точечных рассредоточенных источников с различными производственно - технологическими параметрами выбросов разнородных вредных веществ.
Расчет и определение разрывов от группы рассредоточенных N источников с различными производственно - технологическими параметрами выбросов разнородных вредных веществ (не обладающих суммацией действия) проводятся для каждой подгруппы по виду вредного вещества.
Расчет рассеивания в атмосфере вредных веществ от группы N источников, имеющих различные параметры выбросов, производится начиная с определения для всех источников по каждому вредному веществу максимальных приземных концентраций cм (cм1, cм2, . . . , cмN) и опасных скоростей ветра uм (uм1, uм2, . . . , uмN).
Если по какому-либо виду вредные вещества сумма максимальных приземных концентраций ∑см окажется ниже или равной ПДК, то в том случае, если отсутствует необходимость учета суммации действия некоторых вредных веществ или учета фоновой концентрации, дальнейшего расчета рассеивания можно не производить и разрывав от такой группы источников расчетом не устанавливать.
В случаях когда сумма максимальных приземных концентраций ∑см превышает ПДК, следует определить для всей группы источников средневзвешенную опасную скорость ветра uмc, м/с, по формуле
(41)
для всех вредных веществ, по которым ведется расчет.
Для N близко расположенных друг к другу источников с. различными параметрами выброса вредных веществ определяется средневзвешенная величина расстояния xмuс, м, по формуле
(42)
Максимальная суммарная приземная концентрация от группы источников различных параметров одного вида вредных веществ, группирующихся вдоль расчетной прямой, устанавливается графически путем построения кривых распределения концентрации от каждого источника и их совмещения на одной прямой.
Расстояние x, м (величина разрыва в расчетном направлении) определяется по методике, изложенной выше для группы источников с одинаковыми параметрами.
Максимальная концентрация cм, мг/м3, и величина разрыва l, м, от группы источников, которые по своему взаимоположению не могут быть совмещены на одну прямую, определяются для доминирующего в группе источника (по своей мощности и положению по отношению к селитебной территории) с учетом средневзвешенного расстояния xмuс, м, и учетом добавочного влияния на величину его максимальной концентрации вредных веществ от соседних источников по формулам (39), (40).
Разрывы от группы источников устанавливаются в каждом расчетном направлении по наибольшему размеру.
Определение предельно допустимых выбросов вредных веществ из источников в атмосферу
Под понятием «предельно допустимый выброс» (ПДВ) подразумевается количество выбрасываемого из источника в атмосферу вредного вещества, г/с, при котором устанавливается величина максимальной приземной концентрации этого вещества, не превышающая предельно допустимой нормы (ПДК), мг/м3.
Величина ПДВ вредного вещества из одиночного точечного источника с круглым устьем нагретого выброса определяется по формуле
(43)
Величина ПДВ вредного вещества из одиночного точечного источника с круглым устьем холодного выброса определяется по формуле
(44)
где значения показателей даны выше.
При наличии в районе размещения источников выброса в атмосферу, фоновой концентрации того или другого вещества следует в формулах расчета ПДВ вместо значения ПДК подставлять величину, равную ПДК с вычетом фоновой концентрации.
При выбросе в атмосферу из группы близко расположенных источников различных вредных веществ, обладающих суммацией действия в соответствии с таблицей, приведенной в прил. 3, сумма их выброса должна соответствовать формуле
(45)
где В1, В2, . . . и т. д. - количество выбрасываемого вредного вещества из источника;
ПДВ1, ПДВ2, . . . и т. д. - значения соответствующих им ПДВ.
Установление для каждого источника его ПДВ в атмосферу того или другого вредного вещества дает возможность при сопоставлении ПДВ с исходными данными по количеству выброса определять относительную мощность источника, а также степень его значения в общем фоне загрязнения окружающей среды.
Сопоставление показателей ПДВ с действительным количеством выбрасываемого вредного вещества из источников бывает необходимо в практике при решении вопроса о долевом участии предприятий, находящихся в системе промузлов, в строительстве санитарно-защитных зон.
1 Список предельно допустимых концентраций (ПДК) № 1892-718, утвержденный Главным государственным санитарным врачом СССР П. Н. Бургасовым 1 авг. 1978 г.
|
№ п. п. |
Вещества |
ПДК, мг/м3 |
||
|
максимальная разовая |
среднесуточная |
класс опасности |
||
|
1 |
Азота двуокись |
0,085 |
0,085 |
2 |
|
2 |
Акролеин |
0,03 |
0,03 |
2 |
|
3 |
Акрилонитрил |
Нет |
0,03 |
2 |
|
4 |
Альдегид масляный |
0,015 |
0,015 |
3 |
|
5 |
Амил бромистый (1-бромпентан) |
0,8 |
Нет |
2 |
|
6 |
н-Амилацетат |
0,1 |
0,15 |
4 |
|
7 |
Амилены (смесь изомеров) |
1,5 |
1,5 |
4 |
|
8 |
5/6-Амино (2-параамино-фенил) бензимидазол |
Нет |
0,01 |
3 |
|
9 |
Амины алифатические Cl5 - C20 |
0,003 |
0,003 |
2 |
|
10 |
2-Амино - 1,3,5-триметилбензол (мезидин) |
0,003 |
0,003 |
2 |
|
11 |
Аммиак |
0,2 |
0,2 |
4 |
|
12 |
Ангидрид малеиновый (пары, аэрозоль) |
0,2 |
0,05 |
2 |
|
13 |
Ангидрид сернистый |
0,5 |
0,05 |
3 |
|
14 |
Ангидрид уксусный |
0,1 |
0,03 |
3 |
|
15 |
Ангидрид фосфорный |
0,15 |
0,05 |
2 |
|
16 |
Ангидрид фталевый (пары, аэрозоль) |
0,1 |
0,10 |
2 |
|
17 |
Анилин |
0,05 |
0,03 |
2 |
|
18 |
Ацетальдегид |
0,01 |
0,01 |
3 |
|
19 |
Ацетон |
0,35 |
0,35 |
4 |
|
20 |
Ацетофенон |
0,003 |
0,003 |
3 |
|
21 |
3,4-бенз(а)пирен |
- |
0,1 мкг/100 м3 |
1 |
|
22 |
Бензин (нефтяной, малосернистый в пересчете на С) |
5 |
1,5 |
4 |
|
23 |
Бензин сланцевый в пересчете на С |
0,05 |
0,05 |
4 |
|
24 |
Бензол |
1,5 |
08 |
2 |
|
25 |
Бромбензол |
- |
0,03 |
2 |
|
26 |
Бромфенол (орто-) |
0,13 |
0,03 |
2 |
|
27 |
Бромфенол (пара-) |
0,13 |
0,03 |
2 |
|
28 |
Бутан |
200 |
- |
4 |
|
29 |
1,3-Бутадиен (дивинил) |
3 |
1 |
4 |
|
30 |
Бутил бромистый (1-бромбутан) |
0,7 |
- |
2 |
|
31 |
Бутилацетат |
0,1 |
0,1 |
4 |
|
32 |
Бутилен |
3 |
3 |
4 |
|
33 |
Бутифос (S, S, S-трибутилтритиофосфат) |
0,01 |
0,01 |
2 |
|
34 |
Ванадий пятиокись |
- |
0,002 |
1 |
|
35 |
Взвешенные вещества1 |
0,5 |
0,05 |
3 |
|
36 |
Винилацетат |
0,15 |
0,15 |
3 |
|
37 |
Водород хлористый (соляная кислота) по молекуле HCl |
0,2 |
0,2 |
2 |
|
38 |
Водород цианистый (синильная кислота) |
- |
0,01 |
2 |
|
39 |
Гексаметилендиамин |
0,001 |
0,001 |
2 |
|
40 |
Гексаметиленамин |
0,1 |
0,02 |
2 |
|
41 |
Гексаметиленамин м-нитробензоат (ингибитор коррозии Г-2) |
0,02 |
- |
3 |
|
42 |
Гексан |
60 |
- |
4 |
|
43 |
Гексафторбензол |
0,8 |
- |
2 |
|
44 |
Гексахлорциклогексан (гексахлоран) |
0,03 |
0,03 |
1 |
|
45 |
Гаксил бромистый (1-бромгексан) |
1 |
- |
2 |
|
46 |
Гептил бромистый (1-бромгептан) |
1 |
- |
2 |
|
47 |
Гидроперекись изопропилбензола (гидроперекись кумола) |
0,007 |
0,007 |
2 |
|
48 |
Децил бромистый (1-бромдекан) |
1 |
- |
2 |
|
49 |
4,4-Диаминодифенил-сульфон |
- |
0,05 |
3 |
|
50 |
Дибромбензол (пара-) |
0,2 |
- |
2 |
|
51 |
Дикетен |
0,007 |
- |
2 |
|
52 |
Диметиламин |
0,005 |
0,005 |
2 |
|
53 |
Дяметиланилин |
0,0055 |
0,0055 |
2 |
|
54 |
4,4-Диметилдиоксан-1, 3 |
0,01 |
0,004 |
2 |
|
55 |
Диметилдисульфид |
0,7 |
- |
4 |
|
56 |
0,0-Диметил-S-(N-метилкарбамидометил) дитиофосфат (фосфамид, рогор) |
0,003 |
0,003 |
2 |
|
57 |
0,0-Диметил-S-2-(1 N-метилкарбомаилэтилтио этилтиофосфат), кильваль |
0,01 |
0,01 |
2 |
|
58 |
0,0-Диметил-S- (1,2-бискарбэтоксиэтилдитиофосфат) (карбофос) |
0,015 |
- |
2 |
|
59 |
0,0-Диметил-0-(4-нитрофенил), тиофосфат (метафос) |
0,008 |
- |
1 |
|
60 |
0,0-Диметил (1-окся-2,2,2-трихлорэтил) фосфонат (хлорофос) |
0,04 |
0,02 |
2 |
|
61 |
Диметилсульфид |
0,08 |
- |
4 |
|
62 |
Диметилформамид |
0,03 |
0,03 |
2 |
|
63 |
0,0-Диметил-S-этилмеркаптоэтилдитиофосфат (М-81, экатин) |
0,001 |
0,001, |
1 |
|
64 |
Динил (смесь 25% дифенила и 75% дифенилоксида) |
0,01 |
0,01 |
3 |
|
65 |
Дифторхлорметан (фреон-22) |
100 |
10 |
4 |
|
66 |
3,4-Дихлоранилин |
0,01 |
0,01 |
2 |
|
67 |
Дихлордифторметан (фреон-12) |
100 |
10 |
4 |
|
68 |
2,3-Дихлор-1,4-нафтахинон (дихлон) |
0,05 |
0,05 |
2 |
|
69 |
1,2-Дихлорпропан |
- |
0,18 |
3 |
|
70 |
1,3-Дихлорпропилен |
0,1 |
0,01 |
2 |
|
71 |
Дихлорфторметан (фреон-21) |
100 |
10 |
4 |
|
72 |
Дихлорэтан |
3 |
1 |
2 |
|
73 |
Дициклогексиламина малорастворимая соль (ингибитор МСДА) |
0,008 |
- |
2 |
|
74 |
Дициклогексиламина нитрит (ингибитор коррозии НДА) |
0,02 |
- |
2 |
|
75 |
Диэтиламин |
0,05 |
0,05 |
4 |
|
76 |
β-Диэтиламиноэтил-меркаптан |
0,6 |
0,6 |
2 |
|
77 |
0,0-Диэтил-0-(2-изопропил-4-метил-6-пиримидил) тиофосфат (базудин) |
0,01 |
0,01 |
2 |
|
78 |
0,0-Диэтил-S-(6-хлорбензоксазонилин-3-метил) дитиофосфат (фозалон) |
0,01 |
0,01 |
2 |
|
79 |
Изоамил бромистый (1-бром-3-метилбутан) |
0,8 |
- |
2 |
|
80 |
Изобутил бромистый (1-бром-2-метилпропан) |
0,7 |
- |
2 |
|
81 |
Изопропил бромистый (2-бром-пропан) |
0,6 |
- |
4 |
|
82 |
Изопропилбензол (кумол) |
0,014 |
0,014 |
3 |
|
83 |
Капролактам (пары, аэрозоль) |
0,06 |
0,06 |
3 |
|
84 |
Карбонат циклогексиламина, (КЦА) |
0,07 |
- |
2 |
|
85 |
Кислота азотная по молекуле HNO3 |
0,4 |
0,4 |
3 |
|
86 |
Кислота валериановая |
0,03 |
0,01 |
3 |
|
87 |
Кислота капроновая |
0,01 |
0,005 |
3 |
|
88 |
Кислота масляная |
0,015 |
0,01 |
3 |
|
89 |
Кислота пропионовая |
0,015 |
- |
2 |
|
90 |
Кислота серная по моле куле H2SO4 |
0,3 |
0,1 |
3 |
|
91 |
Кислота уксусная |
0,2 |
0,06 |
1 |
|
92 |
Кобальт металлический |
- |
0,001 |
3 |
|
93 |
Ксилол |
0,2 |
0,2 |
2 |
|
94 |
Марганец и его соединения (в пересчете на MnO2) |
- |
0,01 |
|
|
95 |
Медь окись |
- |
0,002 |
2 |
|
96 |
2-Меркаптоэтанол (монотиоэтиленгликоль) |
0,07 |
0,07 |
3 |
|
97 |
Метальдегид |
0,003 |
0,003 |
2 |
|
98 |
Метилацетат |
0,07 |
0,07 |
4 |
|
99 |
Метилен хлористый |
8,8 |
- |
4 |
|
100 |
Метилмеркаптан |
9·10-6 |
- |
2 |
|
101 |
α-Метилстирол |
0,04 |
0,04 |
3 |
|
102 |
Метиловый эфир акриловой кислоты (метилакри лат) |
0,01 |
0,01 |
4 |
|
103 |
Метиловый эфир метакриловой кислоты (метилметакрилат) |
0,1 |
0,1 |
3 |
|
104 |
Мильбекс (смесь: 1,1-бис-4-хлорфенил-этанол и n-хлорфенил-2,4,5-трихлорфенилазосульфид) |
0,2 |
0,1 |
3 |
|
105 |
Моноизобутиловый эфир этиленгликоля (бутилцеллозольв) |
1 |
0,3 |
3 |
|
106 |
Моноизопропиловый эфир этиленгликоля (пропилцеллозольв) |
1,5 |
0,5 |
3 |
|
107 |
Монометиланилин |
0,04 |
0,04 |
3 |
|
108 |
Моноэтиламин |
0,01 |
0,01 |
3 |
|
109 |
Мышьяк, неорганические соединения, кроме H3As в пересчете на As |
- |
0,003 |
2 |
|
110 |
Нафталин |
0,003 |
0,003 |
4 |
|
111 |
β-Нафтол |
0,006 |
0,003 |
2 |
|
112 |
α-Нафтахинон |
0,005 |
0,005 |
1 |
|
113 |
Никель (растворимые соли) |
- |
0,0002 |
1 |
|
114 |
Никель металлический |
- |
0,001 |
2 |
|
115 |
Никель окись |
- |
0,001 |
2 |
|
116 |
Нитробензол |
0,008 |
0,008 |
2 |
|
117 |
Нитробромбензол (мета-) |
0,12 |
0,01 |
2 |
|
118 |
Нитрохлорбензол (мета-) |
0,004 |
0,004 |
2 |
|
119 |
Нитрохлорбензол (орто-) |
0,004 |
0,004 |
2 |
|
120 |
Нитрохлорбензол (пара-) |
0,004 |
0,004 |
2 |
|
121 |
Озон ** |
0,16** |
0,03 |
1 |
|
122 |
Окситетрациклин |
0,01 |
- |
2 |
|
123 |
Окситетрациклина хлоралгидрат |
0,01 |
- |
2 |
|
124 |
Пенициллин |
0,05 |
0,0025 |
3 |
|
125 |
Пентан |
100 |
25 |
4 |
|
126 |
Перхлорэтилен |
- |
0,06 |
2 |
|
127 |
Пиридин |
0,08 |
0,08 |
2 |
|
128 |
Полихлорпропинен (смесь хлорированных бициклических соединений) |
0,005 |
0,005 |
2 |
|
129 |
Пропил бромистый (1,1-бром-пропан) |
0,6 |
- |
2 |
|
130 |
Пропилен. Пыль, содержащая SiO2, % |
3 |
3 |
3 |
|
131 |
Динас 85-90% |
0,15 |
0,05 |
3 |
|
132 |
Шамот 50% |
0,3 |
0,1 |
3 |
|
133 |
Цемент 20% |
0,3 |
0,1 |
3 |
|
134 |
Доломит 8 |
0,5 |
0,15 |
3 |
|
135 |
Ртуть металлическая |
- |
0,0003 |
1 |
|
136 |
Сажа |
0,15 |
0,05 |
3 |
|
137 |
Свинец и его соединения кроме тетраэтилсвинца в пересчете на Рв |
- |
0,0003 |
1 |
|
138 |
Свинец сернистый |
- |
0,0017 |
1 |
|
139 |
Селен двуокись |
0,1 мкг/м3 |
0,05 мкг/м3 |
1 |
|
140 |
Сероводород |
0,008 |
0,008 |
2 |
|
141 |
Сероуглерод |
0,03 |
0,005 |
2 |
|
142 |
Спирт амиловый |
0,01 |
0,01 |
3 |
|
143 |
Спирт бутиловый |
0,1 |
0,1 |
3 |
|
144 |
Спирт изобутиловый |
0,1 |
0,1 |
4 |
|
145 |
Спирт изооктиловый (2-этилгексанол) |
0,15 |
0,15 |
4 |
|
146 |
Спирт изопропиловый |
0,6 |
0,6 |
3 |
|
147 |
Спирт метиловый |
1 |
0,5 |
3 |
|
148 |
Спирт пропиловый |
0,3 |
0,3 |
3 |
|
149 |
Спирт этиловый |
5 |
5 |
4 |
|
150 |
Стирол |
0,003 |
0,003 |
3 |
|
151 |
Теллур двуокись |
- |
0,5 мкг/м3 |
1 |
|
152 |
Тетрагидрофуран |
0,2 |
0,2 |
4 |
|
153 |
Тетрафторэтилен |
6 |
0,5 |
4 |
|
154 |
Тетрахлорпропен |
0,07 |
0,04 |
2 |
|
155 |
Тетрациклин |
0,01 |
0,006 |
2 |
|
156 |
Тиофен (тиофуран) |
0,6 |
- |
4 |
|
157 |
Толуилендиизоцианат |
0,05 |
0,02 |
1 |
|
158 |
Толуол |
0,6 |
0,6 |
3 |
|
159 |
Трибром-метан (бромоформ) |
- |
0,05 |
3 |
|
160 |
1,1,5-Тригидрооктафтор-пентанол (ТС - n = 2) |
1 |
0,05 |
4 |
|
161 |
1,1,3-Тригидротетрафторпропанол (ТС - n = 1) |
1 |
0,05 |
4 |
|
162 |
Трикрезол (смесь изомеров: орто-, мета-, пара-) |
0,005 |
0,005 |
2 |
|
163 |
1,2,3-Трихлорпропан |
- |
0,05 |
3 |
|
164 |
Трихлорфторметан (фреон-11) |
100 |
10 |
4 |
|
165 |
Трихлорэтилен |
4 |
1 |
3 |
|
166 |
Трнэтиламин |
0,14 |
0,14 |
3 |
|
167 |
Углерода окись |
3 |
1 |
4 |
|
168 |
Углерод четыреххлористый |
4 |
2 |
2 |
|
169 |
Фенол |
0,01 |
0,01 |
2 |
|
170 |
Формальдегид Фтористые соединения (в пересчете на F) |
0,035 |
0,003 |
2 |
|
171 |
Газообразные соединения (HF, SiF4) |
0,02 |
0,005 |
2 |
|
172 |
Хорошо растворимые неорганические фториды (NaF, Na2SiF6 |
0,03 |
0,01 |
2 |
|
173 |
Плохорастворимые неорганические фториды (AlF3, CaF2, Na3AlF6) |
0,2 |
0,03 |
2 |
|
174 |
Фурфурол |
0,05 |
0,05 |
3 |
|
175 |
Хлор |
0,1 |
0,03 |
2 |
|
176 |
Хлоранилин (мета-) |
0,01 |
0,01 |
1 |
|
177 |
Хлоранилин (пара-) |
0,04 |
0,01 |
2 |
|
178 |
Хлорбензол |
0,1 |
0,1 |
3 |
|
179 |
Хлортетрациклин (кормовой) |
0,05 |
0,05 |
2 |
|
180 |
Хлорфенилизоцианат (мета-) |
0,005 |
0,005 |
2 |
|
181 |
Хлорфенилизоцианат (пара-) |
0,0015 |
0,0015 |
2 |
|
182 |
Хром шестивалентный (в пересчете на CrO3) |
0,0015 |
0,0015 |
1 |
|
l83 |
Циклогексан |
1,4 |
1,4 |
3 |
|
184 |
Циклогексанол |
0,06 |
0,06 |
4 |
|
185 |
Циклогексанон |
0,04 |
- |
3 |
|
186 |
Циклогексаноноксим |
0,1 |
- |
3 |
|
187 |
Цинк окись |
- |
0,05 |
3 |
|
188 |
Эпихлоргидрин |
0,2 |
0,2 |
2 |
|
189 |
Этилацетат |
0,1 |
0,1 |
4 |
|
190 |
Этилбензол |
0,02 |
0,02 |
3 |
|
191 |
Этилен |
3 |
3 |
3 |
|
192 |
Этилена окись |
0,3 |
0,03 |
3 |
|
193 |
Этиленимин |
0,001 |
0,001 |
1 |
|
194 |
Этиленсульфид ** |
0,5** |
- |
1 |
|
|
Сложные смеси: |
|
|
4 |
|
195 |
Дрезесноспиртовой растворитель марки А (ацетоноэфирный) |
0,12 |
0,12 |
4 |
|
(контроль по ацетону) |
||||
|
196 |
Древесноспиртовой растворитель марки Э (эфирно-ацетоновый) |
0,07 |
0,07 |
4 |
|
(контроль по ацетону) |
||||
|
197 |
Ингибитор древесно-смоляной прямой гонки (ИДСПГ) |
0,006 |
0,006 |
3 |
|
(контроль по фенолу) |
||||
|
198 |
Мебельный растворитель АМР-3 |
0,09 |
0,09 |
3 |
|
(контроль по толуолу) |
||||
|
199 |
Термостойкая прядильная эмульсия (Тепрэм) |
0,002 |
- |
3 |
|
(контроль в сумме альдегидов, окиси этилена) |
||||
|
200 |
Флюс канифольный активированный (ФКТ) |
0,3 |
0,3 |
4 |
|
(контроль по канифоли) |
|
|||
1 ПДК взвешенных веществ не распространяются на специфические аэрозоли металлов, биологических и лекарственных препаратов и др.
** С вероятностью появления 1 %.
I. Сохраняются предельно допустимые концентрации для каждого вещества в отдельности при совместном присутствии в атмосферном воздухе:
1) окиси углерода и сернистого ангидрида;
2) окиси углерода, двуокиси азота и сернистого ангидрида;
3) сероводорода и сероуглерода;
4) фталевого, малеинового ангидридов и а-нафтахинона.
II. При совместном присутствии в атмосферном воздухе нескольких веществ, обладающих суммацией действия, сумма их концентраций при расчете по приведенной формуле не должна превышать 1.
![]()
где c1, с2, ..., сn - фактические концентрации веществ в атмосферном воздухе,
ПДК1, ПДК2, ..., ПДКn - предельно допустимые концентрации тех же веществ.
Эффектом суммации обладают:
1) ацетон, акролеин, фталевый ангидрид;
2) ацентон, ацетофенон;
3) ацетон и фенол;
4) ацетон, фурфурол, формальдегид и фенол;
5) ацетальдегид и винилацетат;
6) аэрозоли пятиокиси ванадия и окислов марганца;
7) аэрозоли пятиокиси ванадия и сернистый ангидрид;
6) аэрозоли пятиокиси ванадия и трехокиси хрома;
9) бензол и ацетофенон;
10) валериановая, капроновая и масляная кислоты;
11) 2, 3-Дихлор-1, 4-нафтахинон и 1, 4-нафтахинон;
12) изопропилбензол и гидроперекись изопропилбензола;
13) озон, двуокись азота и формальдегид;
14) окись углерода, двуокись азота, формальдегид, гексан;
15) сернистый ангидрид и аэрозоль серной кислоты;
16) сернистый ангидрид и сероводород;
17) сернистый ангидрид и двуокись азота;
18) сернистый ангидрид, окись углерода, фенол и пыль конвертерного производства;
19) сернистый ангидрид и фенол;
20) сернистый ангидрид и фтористый водород;
21) серный и сернистый ангидриды, аммиак, окислы азота;
22) сероводород и динил;
23) сильные минеральные кислоты (серная, соляная и азотная);
24) уксусная кислота и уксусный ангидрид;
26) фенол и ацетофенон;
26) фурфурол, метиловый и этиловый спирты;
27) циклогексан и бензол;
28) этилен, пропилен, бутилен и амилен.
III. Эффектом потенцирования обладают:
1) фтористый водород и фторсоли с коэффициентом 0,8.
|
№ п. п. |
Территория |
Современное использование |
Проектное использование |
||||||
|
Селитебные территории, га |
|||||||||
|
микрорайоны, кварталы |
в том числе |
участки общественных учреждений и спортивных сооружений (кроме учреждений микрорайонного значения) |
зеленые насаждения общего пользования (кроме зеленых насаждений микрорайонного значения) |
улицы, дороги, проезды, площади, автостоянки |
|||||
|
4-5 этажной и более застройки |
3 этажной застройки |
1-2 этажной застройки |
|||||||
|
1 |
2 |
3 |
4 |
5 |
6 |
7 |
8 |
9 |
10 |
|
13 |
Территории санитарно-защитных зон (за пределами площадок промпредприятий) |
|
|
|
|
|
|
|
|
|
|
|
|
|
|
|
|
|
|
|
продолжение таблицы
|
№ п. п. |
Территория |
Проектное использование |
|||||||||
|
Селитебные территории, га |
Остальные территории |
||||||||||
|
прочие территории |
в том числе |
итого селитебных территорий |
промышленные территории |
территории НИИ, проектных организаций и высших учебных заведений |
участки предприятий коммунального хозяйства и складов |
территории внешнего транспорта |
|||||
|
промышленные предприятия |
коммунально-складские объекты |
объекты внешнего транспорта |
неиспользуемые, неудобные и другие территории |
||||||||
|
1 |
2 |
11 |
12 |
13 |
14 |
15 |
16 |
17 |
18 |
19 |
20 |
|
13 |
Территории санитарно-защитных зон (за пределами площадок промпредприятий) |
|
|
|
|
|
|
|
|
|
|
|
|
|
|
|
|
|
|
|
|
|
|
|
|
№ п.п. |
Территория |
Современное использование |
По генеральному плану |
|||||||
|
на первую очередь |
на перспективу |
|||||||||
|
га |
% |
м2/чел |
га |
% |
м2/чел |
га |
% |
м2/чел |
||
|
1 |
2 |
3 |
4 |
5 |
6 |
7 |
8 |
9 |
10 |
11 |
|
|
Б. Остальные территории |
|
|
|
|
|
|
|
|
|
|
12 |
|
|
|
|
|
|
|
|
|
|
|
13 |
Территории санитарно-защитных зон (за пределами площадок промпредприятий) |
|
|
|
|
|
|
|
|
|
|
|
|
|
|
|
|
|
|
|
||
|
14 |
|
|
|
|
|
|
|
|
|
|
Санитарно-защитные зоны от канализационных сооружений до границ жилой застройки, участков общественных зданий и предприятий пищевой промышленности следует определять с учетом их перспективного расширения и принимать по табл. 1.
Санитарно-защитные зоны от шламонакопителей следует принимать в зависимости от состава и свойств шлама по согласованию с органами санитарно-эпидемиологической службы.
|
№ п.п. |
Наименование сооружений |
Санитарно-защитные зоны, м, при расчетной производительности сооружений, |
|||
|
до 0,2 |
более 0,2 до 5 |
более 5 до 50 |
более 50 до 280 |
||
|
1 |
Сооружения механической и биологической очистки с иловыми площадками для сброженных осадков, а также отдельно расположенные иловые площадки |
150 |
200 |
400 |
500 |
|
2 |
Сооружения механической и биологической очистки с термомеханической обработкой осадка в закрытых помещениях |
100 |
150 |
300 |
400 |
|
3 |
Поля фильтрации |
200 |
300 |
500 |
1000 |
|
4 |
Поля орошения |
150 |
200 |
400 |
1000 |
|
5 |
Биологические пруды |
200 |
200 |
- |
- |
|
6 |
Сооружения с циркуляционными окислительными каналами |
150 |
- |
- |
- |
|
7 |
Насосные станции |
15 |
20 |
20 |
30 |
Примечания:
1. Санитарно-защитные зоны для канализационных сооружений производительностью более 280000 м3/сут, а также при отступлении от принятой технологии очистки сточных вод и обработки осадка устанавливаются по согласованию с органами санитарно-эпидемиологической службы и Госстроем СССР,
2. При отсутствии иловых площадок на территории очистных сооружений производительностью более 0,2 тыс. м3/сут размер зоны следует сокращать на 30%.
3. Для полей фильтрации площадью до 0,5 га и для сооружений механической и биологической очистки производительностью до 50 м3/сут санитарно-защитную зону следует принимать размером 100 м.
4. Для полей подземной фильтрации пропускной способностью менее 15 м3/сут санитарно-защитную зону следует принимать размером 15 м.
5. При фильтрующих траншеях и песчано-гравийных фильтрах санитарно-защитные зоны следует принимать размером 25 м; при септиках и фильтрующих колодцах - соответственно 5 и 8 м; при аэрационных установках на полное окисление - 50 м.
6. Санитарно-защитные зоны, указанные в табл. 1, допускается увеличивать, но не более чем в два раза, в случае расположения жилой застройки с подветренной стороны по отношению к очистным сооружениям, или уменьшать не более чем на 25% при наличии благоприятной розы ветров.
7. При сушке на иловых площадках сырого (несброженного) осадка санитарно-защитные зоны устанавливаются по согласованию с местными органами санитарно-эпидемиологической службы.
|
Сельскохозяйственные предприятия и объекты |
Размер санитарно-защитной зоны, м |
|
|
1 |
Фермы: |
|
|
|
а) коневодческие и кролиководческие |
100 |
|
|
б) крупного рогатого скота (всех специализаций), овцеводческие и звероводческие |
300 |
|
|
в) птицеводческие |
300 |
|
|
г) свиноводческие |
500 |
|
2 |
Птицефабрики |
1000 |
|
3 |
Ветеринарные лечебницы |
200 |
|
4 |
Теплицы и парники: |
|
|
|
а) при биологическом обогреве (навоз) |
100 |
|
|
б) то же (мусор) |
300 |
|
|
в) при обогреве электричеством, паром или водой |
Не нормируется |
|
5 |
Цехи по приготовлению кормов: |
|
|
|
а) без использования пищевых отходов |
То же |
|
|
б) с использованием пищевых отходов |
100 |
|
6 |
Предприятия или цехи по первичной обработке и переработке молока, фруктов и овощей |
Не нормируется |
|
7 |
Гаражи и парки по ремонту, техническому обслуживанию и хранению автомобилей и сельскохозяйственной техники при численности двигателей более 200 единиц |
100 |
|
8 |
Хранилища фруктов, овощей, картофеля, зерна и другой сельскохозяйственной продукции, материальные склады |
50 |
|
9 |
Постройки для содержания животных и птицы частного пользования при квартальной застройка |
50 |
|
10 |
Склады: |
|
|
|
а) для хранения минеральных удобрений |
200 |
|
|
б) для хранения минеральных удобрений и ядохимикатов до 20 т |
200 |
|
|
в) для хранения ядохимикатов, т: до 20 |
200 |
|
|
более 20 до 50 |
300 |
|
|
» 50 » 100 |
400 |
|
|
» 100 » 300 |
500 |
|
|
» 300 » 500 |
700 |
|
|
свыше 500 |
1000 |
Примечание. Для промышленных специализированных свиноводческих комплексов санитарно-защитные зоны устанавливаются отдельным заданием.
Санитарные разрывы от зданий насосных станций канализации следует принимать (из СН 245-71, п. 8,6):
а) при расчетной производительности до 50000 м3/сут - 30 м;
б) то же, более 50000 м3/сут - 30 м.
Примечание. Для насосных станций производительностью до 200 м3/сут допускается принимать санитарный разрыв 15 м.
Форма
Утверждаю:
_____________________________
« »_________________ 19 г.
ЗАДАНИЕ
на разработку рабочего, проекта озеленения санитарно-защитной зоны предприятия (комбината, завода и т. п.)_________________________________________________________
1. Наименование объекта________________________________________________________
2. Задание выдано (указать, кем)__________________________________________________
3. Наименование проектной организации-исполнителя и ее ведомственной принадлежности _________________________________________________________________
|
Наименование элементов задания на проектирование |
Основное содержание задания по элементам |
|
|
1 |
Основание для проектирования |
Наименование, номера и даты: постановлений и решений о строительстве или реконструкции предприятия; решений и распоряжений об утверждении ТЭО строительства или реконструкции предприятия или другой проектной документации, заменяющей ТЭО; других документов, являющихся основанием для проектирования |
|
2 |
Место расположения объекта |
Наименование района или участка строительства предприятия, комбината, завода и т. п |
|
3 |
Размер и границы |
Размер (ширина) санитарно-защитной зоны, площадь, границы, согласованные с органами санитарной охраны |
|
4 |
Архитектурно-планировочные требования |
Архитектурно-планировочные требования по решению: зонирования территории: планировочной структуры территории и отдельных зон; озеленения территории; инженерной подготовки, благоустройства и инженерного оборудования озеленяемых территорий |
|
5 |
Исходные данные для проектирования |
Перечень исходных данных, выдаваемых заказчиком проектной организации-исполнителю согласно СН 202-81* Перечень изысканий, которые необходимо выполнить в составе проектно-изыскательских работ |
|
6 |
Намечаемые сроки строительства |
Сроки начала строительства и ввода в эксплуатацию по очередям строительства |
|
7 |
Стадийность проектирования |
Стадийность проектирования: в две стадии с разработкой технического проекта и рабочих чертежей или в одну стадию с разработкой технорабочего проекта |
|
8 |
Намечаемый размер капитальных вложений |
Стоимость строительства а соответствии с ТЭО или другой проектной документацией, заменяющей ТЭО |
|
9 |
Наименование строительной организации генерального подрядчика |
Генеральная подрядная строительная организация и ее ведомственная принадлежность |
|
10 |
Особые условия |
Особые требования к проекту, в том числе необходимость определения и включения в смету на строительство затрат на следующие цели: возмещение убытков, причиняемых хозяйствам в связи с изъятием земель; освоение новых земель взамен изымаемых из сельскохозяйственного производства; переселение с территории санитарно-защитной зоны жителей, а также детских и лечебных учреждений, в том числе компенсация за плодово-ягодные насаждения, находящиеся в личной собственности граждан, переселяемых из зоны; снос малоценных и ветхих строений |
|
ПОДПИСИ: |
СОГЛАСОВАНО: |
|

Рис. 25. Карта древокультурных районов СССР. Древокультурные районы.
1а - тундра европейской част СССР; 1б - лесотундра европейской части СССР; 2 - то же, область ели; 3 - то же. область ели и пихты сибирской; 4 - зона хвойных лесов - область, ели липы и ясеня; 5а, б - зона широколиственно- хвойных лесов - область ели, дуба и ясеня; 6а, б - то же, область ели и дуба; 7 - то же, область ели, липы и пихты сибирской; 8 - то же, область ели, дуба и граба; 9 - западная лесостепная зона - область дуба и граба; 11а, б - средняя лесостепная зона - область дуба, клена и липы; 12 - восточная лесостепная зона - область дуба, липы и вяза; 13 - горнобашкирский лесостепной район с преобладанием липы и березы; 14 - лесостепи Крымского п-ва; 15 - лесостепь предгорий Северного Кавказа; 16 - западная байрачная степь; 17 - центральная байрачная степь; 18 - восточная байрачная степь; 19 - северокавказская байрачная степь; 20 - причерноморская сухая степь; 21а, б - весьма засушливая степь на каштановых почвах; 22 - солончаковая полупустыня; 23 - Южный берег Крыма; 24а, б, в - Крымско-Кавказская ботаническая провинция Черноморского побережья; 25 - влажный субтропический район; 26 - переходный субтропический район центральной и восточной Грузии; 27 - Азербайджанская ССР; 28 - Армянское нагорье; 29а - тундра Сибири; 29б - лесотундра Сибири; 30 - область хвойных лесов западносибирского типа; 31 - область хвойных лесов восточносибирского типа; 32а, б - лесостепь восточносибирского типа; 33 - лесостепь западносибирского типа; 34 - сухие безлесные степи Западной Сибири; 35 - полуостров Средней Азии; 36а, б, в - среднеазиатские пустыни северного типа; 37а, б - среднеазиатские пустыни южного типа; 38 - долины тугайных зарослей и богарного земледелия Таджикистана; 38а - Памиро-Алтайский подрайон; 39 - межгорные долины Киргизии; 40 - горные леса алтайско-саянского типа; 41а, б, в - область охотско-камчатской флоры; 42а, б, в - область маньчжурской флоры. (Карта составлена на основе материалов: 1.Колесников А. И. Декоративная дендрология. М. «Лесная промышленность», 1974. 2. Галактионов И.И., Ву А. В. Декоративные деревья и кустарники для озеленения городов европейской части РСФСР. М., Стройиздат, 1966. 3 Галактионов И.И., Ву А. В. Декоративные деревья и кустарники для озеленения городов азиатской части РСФСР. М., Изд-во МКХ РСФСР,1963. 4. Временные технические условия на проектирование работ по озеленению. М., Изд-во МКХ РСФСР, 1962).
|
№ п.п. |
Названия пород |
Зоны применения |
|
|
|
I. Породы, устойчивые против производственных выбросов |
|
|
|
Деревья |
|
1 |
Айлант высочайший |
9, 14-6, 19, 20, 21а, 22ю, 24а, б; 26, 27, 28а; 37ю; 38; 39ю |
|
2 |
Акация белая |
5; 6юз; 8-11; 14-17; 19; 20; 21а; 22ю; 24а; б; 26-27; 28; 36-39; 42б |
|
3 |
Гледичия трехколючковая |
9; 10; 14-17; 19-20; 21а; 22; 24я; б; 26-27; 28а; 36б; в; 37-39 |
|
4 |
Ива белая, форма плакучая |
2-22; 24а; 26; 27; 28; 30ц; ю; 31ю; 32-40; 41в; 42 |
|
5 |
Клен ясенелистный |
2ю; 3ю; 4-22; 24а; б; 26-27; 28б; 30ю; 33-3б |
|
6 |
Тополь лавролистный |
2-7; 12-13; 30с; ю; 31с; ю; 33; 40-42 |
|
7 |
Шелковица белая |
5; 8-11; 14-l7; 19-22; 24а; б; 27-28; 33ю, в; 34-40; 42; 26 |
|
|
|
Кустарники |
|
1 |
Акация желтая |
2-22; 24а; б; 26-38; 30-42 |
|
2 |
Бирючина обыкновенная |
5ю; 6ю; 8-11; 14-17; 18юз; 19-22; 24а; Б; 26-28; 35; 36в; 37а; б; 38; 39; 426 |
|
3 |
Бузина красная |
2-18; 30-31; 33; 34; 40; 41б; в; 42 |
|
4 |
Жимолость татарская |
2-8; 10-22; 24а; 27-28; 30ю; 31ю; 33-35; 36а; в; 40; 42 |
|
5 |
Лох серебристый |
2ю; 3ю; 4-13; 30ю; 31ю; 33; 40; 42 |
|
6 |
Лох узколистный |
5; 6ю; 8-10; 14-17; 18ю; 19-22; 24а; 26; 27; 28а; б; 33-37 |
|
7 |
Снежноягодник |
2ю; 3ю; 4-21; 42а; 30юз; 33; 35; 36в; 39-40; 41в; 42 |
|
8 |
Чубушник обыкновенный |
4-28; 30юз; 33-39; 42в |
|
9 |
Шиповник краснолистный |
2-22; 24а; 27-28; 30ю; 31ю; 32-36; 39-40; 41в; 42 |
|
|
|
Лианы |
|
1 |
Виноград пятилистный |
2ю; 3ю; 4-23; 24а, б; 26-28; 30юз; 32ю; 33-40; 41в; 42 |
|
|
|
II. Породы, относительно устойчивые против производственных выбросов |
|
|
|
Деревья |
|
1 |
Абрикос обыкновенный |
9; 10; 16-16; 22-23; 26-28; 37-38 |
|
2 |
Береза бородавчатая |
2-l5; 17-18; 21; 27-28; 30; 31ю; 32; 34; 40; 416, в; 42 |
|
3 |
Береза пушистая |
1а, б; 2-8; 29б; з; 30; 31с |
|
4 |
Вяз обыкновенный |
2-22; 24а; 28; 30ю; 33-34; 36в; 37-39; 42б, в |
|
5 |
Вяз перистоветвистый |
10в; 11ю; 12юз; 16юв: 17-18; 20-22; 27 ;28а, в; 33-39; 42 |
|
6 |
Вяз шершавый |
2ю; 3ю; 4-21; 24а; б; 26; 28б; 30юз; 33; 36в; 38-40 |
|
7 |
Дуб красный |
4-6; 7юз; 9-12; 14-17; 18з; 19-21; 24а, б; 26; 28в; 36в; 39; 42б |
|
8 |
Катальпа великолепная |
8-10; 14-17; ,20-27; 36а; в; 37ю; 38-39; 42б |
|
9 |
Клен полевой |
5; 7-11; 12з; 14-l7; 18з; 19; 20; 21юз; 24а; б; 26-28; 36в |
|
10 |
Осина |
2-7; 12-18; 21б; 22; 30-35; 36б; 40-41 |
|
11 |
Рябина обыкновенная |
2-22; 24а; 28бв; 30ю; 31ю; 32-35; 36в; 39-40; 41в; 42 |
|
12 |
Софора японская |
9; 10ю; 14-15; 16ю; 19-21; 22ю; 23-27; 28а; суб.; 27ю; 38; 39ю |
|
13 |
Тополь бальзамический |
2-7; 11-13; 18; 30ю; 33 |
|
14 |
Тополь канадский |
5; 6юз; 7з; 8-11; 12з; 14-17; 18з; 19-22; 24а; 27; 28а; б; в; 33юв; 36в; 37юв |
|
15 |
Тополь китайский |
4юз; 5; 6; 7юз; 8-11; 12з; 14-17; 18з; 28б, в; 30юз; 31ю; 32-35; 36б, в; 41в; 42а, б |
|
16 |
Тополь берлинский |
4-7; 11-13; 17-18; 30юз; 33-35; 40; 42а; б |
|
17 |
Черемуха обыкновенная |
1б; 2-7; 11-13; 30ю; 31юв; 33; 40-42 |
|
18 |
Черешня обыкновенная |
5б; 8-11; 12з; 14-17; 19-28; 36в; 37ю; 38; 39ю; 40юз |
|
19 |
Яблоня Сибирская |
2-7; 11-13; 17-18; 30ю; 31ю; 32-34; 40; 41в; 42 |
|
20 |
Ясень зеленый |
2ю; 3ю; 4-8; 10-22; 24а; 27; 26; ,28; 30ю; 32-35; 36в; 37юв; 39; 40з |
|
21 |
Ясень обыкновенный |
4; 5; 7юз; 8-11; 12з; 14-17; 18з; 19-21; 22юз; 26-27; 28бв; 34-36в |
|
22 |
Ясень пенсильванский |
4-8; 11-12; 27; 28; 30ю; 33 |
|
|
|
Кустарники |
|
1 |
Айва обыкновенная |
5ю- 8-10; 11юз; 114-16; 17юз; 10-20; 21а; 22ю; 23; 24а; бв; 25-28 ;30в; 37; 38; 426 |
|
2 |
Аморфа кустарниковая |
5б; 8юз; 9-11; 14-17; 19-22; 24а; б; 28; 36-39; 426 |
|
3 |
Барбарис обыкновенный |
2-22; 24а; 26-28; 30ю; 32-40; 42 |
|
4 |
Бересклет европейский |
4-6; 8-11; 14-17; 19-20; 21ю; 22ю; 24а; б; 36б; 39; 42 |
|
5 |
Боярышник обыкновенный |
4-6; 8-11; 12з; 14-22; 24а; б; 26-28; 34-35; 36а; б; 37ю; 38-39; 42а; б, в |
|
6 |
Гортензия метельчатая |
4-6; 7юз; 8-12; 14-17; 19-21; 24а; б; 26; 28; 30ю; 31ю; 33юз; 36в; 38; 39; 42б, в |
|
7 |
Дерен белый |
2-13; 30ю; 31ю; 33-34; 36в; 39св; 40; 41в; 42 |
|
8 |
Ива козья |
2-8; 12-13; 30; 31ц; 32-33; 40; 41в |
|
9 |
Калина обыкновенная |
2-22, 24а; 26-28; 30ю; 31ю; 33; 36в; 39; 40; 42 |
|
10 |
Кизильник блестящий |
2-7; 12-13; 16; 30ю; 31ю; 32-33; 40; 41в; 42 |
|
11 |
Клен гиннала |
4-18; 30ю; 31ю; 32-34; 36в; 39-40; 41б; в; 42 |
|
12 |
Клен татарский |
2-22; 24а; 26-28; 30ю; 33-36 |
|
13 |
Птелея трехлистная |
4-6; 7з; 8-11; 12з; 14-20; 33-34; 36в; 39 |
|
14 |
Пузыреплодник калинолистный |
2-22; 28; 30ю; 31ю; 32-34; 36в; 39 |
|
15 |
Сирень венгерская |
1а; з; 2-13; 28; 30ю; 31ю; 32-33; 40; 41в; 42 |
|
16 |
Сирень обыкновенная |
2-27; 28; 30ю; 31ю; 32-40; 41в; 42 |
|
Ы |
Смородина золотистая |
2-22; 24а; 27; 30ю; 32-36; 39; 41в; 42 |
|
18 |
Смородина красная |
5б; 6ю; 8-10; 11юз; 14-16; 19-21а; 24а; 36в; 39; 42б |
|
19 |
Смородина черная |
2-21; 28; 30ю; 31ю; 32-34; 36в; 39-40; 41в; 42 |
|
20 |
Спирея Вангутта |
4-6; 7з; 8-11; 12з; 14-17; 18з; 19-21; 22ю; 23-28; 30юз; 33-34; 36в; 39; 42б |
|
21 |
Спирея иволистная |
2-7; 11-13; 30ю; 31ю; 32-35; 36в; 39-40; 41в; 42 |
|
22 |
Скумпия величественная |
8-10; 14-21; 28; 36в; 37в; 37ю; 38-39 |
|
23 |
Сумах пушистый |
5; 6юз; 8-17; 19-21а; 22ю; 24а; 27-28; 36в; 37-39; 426 |
|
24 |
Тамариск |
14-16; 17ю; 19-24; 26 |
|
25 |
Шиповник морщинистый |
2-7; 11-13; 30ю; 31ю; 32-33; 40-42 |
|
26 |
Шиповник обыкновенный |
5; 6; 7юз; 8-12; 14-22; 24а; 33ю; 34-36; 39; 40; 42а; б |
Примечание. Литеры при номерах районов означают: а, б, в, - подрайоны; ю - юг данного района; с - севеp; в - восток; з - запад; ц - центр; юв - юго-восток; юг - юго-запад.
|
№ п.п. |
Название пород |
Газоустойчивость растений в условиях загрязнения атмосферного воздуха выбросами предприятий: |
Рекомендуемый тип насаждений (ф. - фильтрующие; и. - изолирующие) |
Санирующий эффект в осаждении пыли одним взрослым растением за вегетацию, кг |
||||||||||||
|
медеплавильные |
черной металлургии |
коксохимические |
алюминиевые |
магниевые |
азотнотуковые |
метанола и аммиака |
сложных фосфорно-азотных удобрений и суперфосфата |
серной кислоты |
красителей |
капролактана |
нефтеперерабатывающие |
ТЭЦ на угле |
||||
|
1 |
2 |
3 |
4 |
5 |
6 |
7 |
8 |
9 |
10 |
11 |
12 |
13 |
14 |
15 |
16 |
17 |
|
I. Породы, устойчивые против производственных выбросов Деревья |
||||||||||||||||
|
1 |
Айлант высочайший |
3 |
4 |
3 |
3 |
- |
- |
- |
- |
- |
4 |
- |
- |
4 |
и. ф. |
24 |
|
2 |
Акация белая |
3 |
4 |
3 |
3 |
- |
4 |
- |
3 |
3 |
4 |
- |
3 |
4 |
и. ф. |
4 |
|
3 |
Гледичия трехколючковая |
3 |
4 |
4 |
4 |
- |
- |
- |
- |
- |
5 |
- |
- |
4 |
и. ф. |
18 |
|
4 |
Ива белая, форма плакучая |
- |
4 |
4 |
- |
- |
3 |
4 |
3 |
3 |
4 |
- |
4 |
4 |
и. ф. |
36 |
|
5 |
Клен ясенелистный |
- |
- |
- |
- |
- |
- |
4 |
5 |
3 |
- |
- |
4 |
4 |
и. ф. |
33 |
|
6 |
Тополь канадский |
3 |
4 |
4 |
4 |
- |
4 |
4 |
- |
4 |
5 |
4 |
5 |
5 |
и. ф. |
34 |
|
7 |
Шелковица белая |
4 |
4 |
4 |
3 |
- |
- |
- |
- |
- |
- |
- |
4 |
5 |
и. ф. |
31 |
|
Кустарники |
||||||||||||||||
|
1 |
Акация желтая |
3 |
3 |
3 |
4 |
3 |
3 |
3 |
4 |
4 |
3 |
4 |
4 |
4 |
и. |
0,2 |
|
2 |
Бирючина обыкновенная |
3 |
4 |
4 |
4 |
- |
3 |
3 |
3 |
4 |
4 |
4 |
4 |
4 |
и. |
0,3 |
|
3 |
Бузина красная |
- |
3 |
3 |
3 |
3 |
3 |
4 |
4 |
4 |
4 |
4 |
4 |
4 |
и. ф. |
0,4 |
|
|
Жимолость татарская |
4 |
- |
3 |
3 |
- |
4 |
5 |
- |
3 |
4 |
4 |
4 |
4 |
и. ф. |
- |
|
5 |
Лох серебристый |
3 |
- |
- |
4 |
3 |
4 |
4 |
4 |
4 |
- |
4 |
3 |
4 |
и. ф. |
0,2 |
|
6 |
Лох узколистный |
- |
4 |
3 |
4 |
- |
- |
5 |
- |
4 |
- |
- |
4 |
4 |
и. ф. |
- |
|
7 |
Снежноягодник |
- |
4 |
4 |
3 |
- |
- |
3 |
4 |
4 |
- |
- |
4 |
4 |
и. |
- |
|
8 |
Чубушник обыкновенный |
- |
3 |
4 |
- |
- |
- |
- |
- |
- |
- |
- |
4 |
4 |
и. ф. |
- |
|
9 |
Шиповник краснолистный |
- |
4 |
3 |
- |
- |
4 |
4 |
- |
- |
- |
- |
- |
4 |
и. ф. |
- |
|
Лианы |
||||||||||||||||
|
1 |
Виноград пятилистный |
- |
4 |
4 |
4 |
3 |
- |
5 |
- |
4 |
5 |
- |
- |
4 |
и. |
0,1 |
|
II. Породы, относительно устойчивые против производственных выбросов Деревья |
||||||||||||||||
|
1 |
Абрикос обыкновенный |
- |
3 |
3 |
3 |
- |
- |
- |
- |
- |
- |
- |
- |
4 |
и. |
- |
|
2 |
Береза бородавчатая |
- |
3 |
3 |
- |
3 |
- |
- |
3 |
- |
3 |
- |
3 |
3 |
ф. |
- |
|
3 |
Береза пушистая |
- |
- |
- |
- |
- |
- |
3 |
4 |
- |
- |
- |
4 |
3 |
ф. |
- |
|
4 |
Вяз обыкновенный |
3 |
3 |
3 |
3 |
- |
- |
- |
- |
- |
3 |
- |
3 |
3 |
и. ф. |
- |
|
5 |
Вяз перистоветвистый |
3 |
4 |
4 |
3 |
- |
- |
- |
- |
- |
- |
3 |
3 |
4 |
и. ф. |
18 |
|
6 |
Вяз шершавый |
- |
3 |
- |
3 |
- |
- |
- |
- |
- |
- |
- |
- |
4 |
и. ф. |
23 |
|
7 |
Дуб красный |
- |
- |
- |
- |
- |
- |
- |
- |
- |
- |
- |
4 |
4 |
и. |
- |
|
8 |
Катальпа великолепная |
- |
- |
3 |
4 |
- |
- |
- |
- |
- |
- |
- |
- |
- |
ф. |
- |
|
9 |
Клен полевой |
- |
4 |
3 |
- |
- |
- |
- |
- |
- |
- |
- |
- |
- |
ф. |
20 |
|
10 |
Осина |
- |
- |
- |
- |
- |
- |
4 |
5 |
3 |
- |
- |
4 |
4 |
и. ф. |
- |
|
11 |
Рябина обыкновенная |
- |
3 |
3 |
- |
- |
- |
- |
3 |
- |
- |
3 |
3 |
3 |
ф. |
- |
|
12 |
Софора японская |
- |
4 |
4 |
- |
- |
- |
- |
- |
- |
3 |
- |
- |
- |
ф. |
- |
|
13 |
Тополь бальзамический |
3 |
3 |
3 |
3 |
- |
3 |
3 |
4 |
- |
4 |
- |
4 |
3 |
и. ф. |
- |
|
14 |
Тополь берлинский |
- |
3 |
3 |
- |
- |
- |
3 |
- |
3 |
- |
3 |
4 |
3 |
и. ф. |
- |
|
15 |
Тополь китайский |
- |
- |
- |
- |
- |
- |
4 |
- |
- |
- |
- |
- |
4 |
и. ф. |
- |
|
16 |
Тополь лавролистный |
- |
- |
- |
- |
- |
- |
4 |
- |
3 |
- |
- |
4 |
4 |
и. ф. |
- |
|
17 |
Черемуха обыкновенная |
3 |
- |
- |
- |
- |
- |
- |
4 |
- |
- |
- |
4 |
4 |
и. |
- |
|
18 |
Черешня обыкновенная |
- |
4 |
4 |
- |
- |
- |
- |
- |
- |
- |
- |
4 |
4 |
и. |
- |
|
19 |
Яблоня сибирская |
3 |
- |
4 |
- |
- |
- |
- |
4 |
- |
- |
- |
4 |
- |
и. |
- |
|
20 |
Ясень зеленый |
- |
3 |
4 |
4 |
- |
3 |
4 |
- |
3 |
3 |
4 |
3 |
4 |
и. ф. |
30 |
|
21 |
Ясень обыкновенный |
- |
3 |
- |
3 |
- |
- |
3 |
- |
3 |
- |
4 |
- |
3 |
и. ф. |
27 |
|
22 |
Ясень пенсильванский |
3 |
- |
- |
3 |
- |
- |
- |
- |
3 |
- |
- |
- |
4 |
и. ф. |
- |
|
Кустарники |
||||||||||||||||
|
1 |
Айва обыкновенная |
- |
4 |
4 |
- |
- |
- |
- |
- |
3 |
- |
- |
- |
- |
и. |
- |
|
2 |
Аморфа кустарниковая |
- |
3 |
3 |
- |
- |
- |
- |
- |
- |
- |
- |
- |
- |
и. |
0,2 |
|
3 |
Барбарис обыкновенный |
- |
4 |
3 |
- |
- |
3 |
- |
- |
- |
- |
- |
3 |
4 |
и. |
- |
|
4 |
Бересклет европейский |
3 |
- |
- |
- |
- |
- |
- |
- |
4 |
- |
- |
- |
4 |
и. |
0.5 |
|
5 |
Боярышник обыкновенный |
- |
3 |
4 |
3 |
- |
- |
3 |
3 |
- |
3 |
- |
- |
3 |
и. ф. |
- |
|
6 |
Гортензия метельчатая |
- |
3 |
3 |
- |
- |
- |
3 |
- |
- |
- |
- |
- |
3 |
ф. |
- |
|
7 |
Дерен белый |
- |
3 |
3 |
3 |
- |
- |
3 |
4 |
3 |
4 |
3 |
3 |
3 |
и. ф. |
- |
|
8 |
Ива козья |
- |
- |
- |
- |
- |
- |
- |
4 |
- |
4 |
- |
3 |
4 |
и. ф. |
- |
|
9 |
Калина обыкновенная |
- |
- |
- |
|
- |
3 |
- |
3 |
- |
- |
- |
- |
3 |
и. ф. |
- |
|
10 |
Кизильник блестящий |
- |
- |
- |
- |
- |
3 |
3 |
4 |
3 |
4 |
- |
3 |
4 |
и. ф. |
- |
|
11 |
Клен гиннала |
3 |
3 |
3 |
3 |
- |
3 |
- |
- |
3 |
3 |
- |
4 |
4 |
и. ф. |
- |
|
12 |
Клен татарский |
- |
3 |
- |
- |
- |
- |
- |
4 |
3 |
- |
- |
3 |
3 |
и. ф. |
- |
|
13 |
Птелея трехлистная |
- |
4 |
4 |
- |
- |
- |
- |
- |
- |
- |
- |
- |
- |
и. |
0,5 |
|
14 |
Пузыреплодник калинолистный |
- |
4 |
3 |
- |
- |
- |
3 |
4 |
3 |
- |
4 |
4 |
3 |
и. ф. |
- |
|
15 |
Сирень венгерская |
- |
- |
3 |
- |
- |
3 |
3 |
- |
3 |
4 |
- |
4 |
3 |
и. ф. |
- |
|
16 |
Сирень обыкновенная |
3 |
- |
3 |
3 |
- |
- |
3 |
3 |
- |
4 |
- |
4 |
3 |
и. ф. |
1,6 |
|
17 |
Смородина золотистая |
- |
4 |
- |
3 |
- |
- |
3 |
4 |
3 |
- |
- |
4 |
- |
и. |
- |
|
18 |
Смородина красная |
- |
- |
4 |
4 |
- |
- |
3 |
4 |
- |
- |
3 |
- |
4 |
и. |
- |
|
19 |
Смородина черная |
- |
- |
- |
- |
- |
- |
3 |
- |
- |
- |
- |
4 |
- |
и. |
- |
|
20 |
Спирея Вангутта |
- |
3 |
4 |
- |
- |
- |
- |
- |
3 |
- |
- |
- |
4 |
и. |
0,4 |
|
21 |
Спирея иволистная |
- |
- |
- |
3 |
- |
- |
- |
- |
- |
- |
- |
4 |
3 |
и. |
- |
|
22 |
Скумпия величественная |
3 |
4 |
3 |
- |
- |
3 |
- |
- |
- |
3 |
- |
4 |
4 |
и. ф. |
- |
|
23 |
Сумах душистый |
- |
3 |
3 |
- |
- |
- |
- |
- |
3 |
- |
- |
- |
- |
и. ф. |
- |
|
24 |
Тамариск |
- |
3 |
3 |
4 |
- |
- |
- |
- |
- |
- |
- |
- |
4 |
и. |
- |
|
25 |
Шиповник морщинистый |
3 |
- |
- |
3 |
- |
4 |
3 |
- |
3 |
- |
3 |
4 |
3 |
и. ф. |
- |
|
26 |
Шиповник обыкновенный |
- |
3 |
3 |
- |
- |
- |
- |
- |
- |
- |
- |
4 |
4 |
и. ф. |
- |
Примечания: 1. Газоустойчивость оценивается по пятибалльной шкале: «5» - не имеющие видимых повреждений, рост и развитие нормальное, декоративность высокая; «4» - с небольшими отклонениями от нормы, не снижающими декоративность; «3» - имеющие ожоги на листьях (30 - 40%), декоративность удовлетворительная; «2» - очень ослабленные растения, имеющие ожоги на листьях (50 - 60%), декоративность низкая; «1» - погибающие растения. 2. Отсутствие оценки в графах 3 - 15 означает, что проверенных данных об устойчивости породы в условиях данного типа производства нет. 3. В качестве сопутствующей породы могут быть использованы: абрикос обыкновенный, дуб красный, катальпа великолепная, клен полевой, клен ясенелистный, рябина обыкновенная, софора японская, черемуха обыкновенная, черешня обыкновенная, яблоня сибирская. 4. Прочерки в графах 16 и 17 говорят об отсутствии данных, т. е. что указанные растения не вошли в число исследуемых пород.
|
№ п.п. |
Название растений |
Расстояние в рядах при посадке, см |
Тип применения |
|
Однолетники |
|||
|
1 |
Алиссум морской |
8 - 10 |
Бордюры, вазы |
|
2 |
Антирринум |
15 - 20 |
Рабатки, вазы, группы |
|
3 |
Астра китайская |
15 - 20 |
Рабатки, группы |
|
4 |
Вербена гибридная |
15 - 20 |
Бордюры, рабатки, вазы, группы |
|
5 |
Гвоздика китайская |
15 - 25 |
Рабатки, клумбы |
|
6 |
Диморфотека выемчатая |
20 - 25 |
Группы в газоне |
|
7 |
Космея дваждыперистая |
15 - 30 (после прореживания) |
Рабатки, массивы |
|
8 |
Календула лекарственная |
15 - 20 (после прореживания) |
Рабатки, группы |
|
9 |
Левкой летний |
15 - 20 |
Клумбы, рабатки, группы |
|
10 |
Лобелия Эринус |
8 - 10 |
Бордюры, вазы |
|
11 |
Настурция большая |
10 - 25 |
Группы на газоне, вазы |
|
12 |
Петуния гибридная |
10 - 25 |
Клумбы, группы, вазы |
|
13 |
Перетрум девичий |
8 - 10 |
Бордюры |
|
14 |
Портулак крупноцветный |
10 - 15 |
Группы на газоне, бордюры |
|
15 |
Тагетес рассеченный |
15 - 25 |
Рабатки, группы на газоне |
|
16 |
Циния изящная |
15 - 20 |
Клумбы, рабатки |
|
Двулетники и многолетники |
|||
|
1 |
Виола двуцветная |
10 - 20 |
Бордюры, группы на газоне |
|
2 |
Гвоздика Гренадин |
10 - 15 |
Клумбы, рабатки |
|
3 |
Гвоздика перистая |
15 - 20 |
Бордюры, рабатки, группы, альпинарии |
|
4 |
Аквилегия гибридная |
15 - 25 |
Группы, миксбордеры |
|
5 |
Астра альпийская |
15 - 30 |
Бордюры, миксбордеры, каменистые |
|
6 |
Гайлардия гибридная |
20 - 30 |
Группы на газоне |
|
7 |
Дельфиниум гибридный |
25 - 40 |
Солитеры, группы, миксбордеры |
|
8 |
Ирис |
10 - 20 |
Группы, опушки, миксбордеры |
|
9 |
Кореопсис крупноцветный |
20 - 40 |
Группы на газоне |
|
10 |
Лихнис халкедонский |
15 - 20 |
Группы, миксбордеры |
|
11 |
Рудбекия блестящая |
25 - 30 |
То же |
|
12 |
Сапонария лекарственная |
15 - 20 |
Группы |
|
13 |
Флокс метельчатый |
15 - 20 |
Группы, миксбордеры |
Примечания: 1. Рекомендуемый способ посадки однолетников и двулетников - рассадой (алиссум, космея, календула, тагетес - посевом в грунт); многолетников - рассадой, делением куста или корневища (аквилегия - только рассадой). 2. Рекомендуемый ассортимент цветочных растений можно применять в зоне умеренной постоянной загазованности и слабой периодической, кроме календулы и гвоздики перистой, которые выносят зону сильной постоянной загазованности.
|
№ п.п. |
Название растений |
Норма высева семян, кг/га |
Скорость роста и срок coздания прочной дернины |
|
1 |
Костер безостый |
120 - 150 |
Медленнорастущий, 3 - 4 г. |
|
2 |
Мятлик луговой |
100 -120 |
Медленнорастущий, 2 - 3 г. |
|
3 |
Овсяница луговая |
120 - 150 |
Быстрорастущая, 2 - 3 г. |
|
4 |
Овсяница красная |
120 - 150 |
Медленнорастущая, 3 - 4 г. |
|
5 |
Пырей ползучий |
100 - 130 |
Медленнорастущая, 3 г. |
|
6 |
Полевица белая |
25 - 40 |
Медленнорастущая, 3 г. |
|
7 |
Райграс пастбищный |
150 - 180 |
Быстрорастущий, 1 г. |
|
8 |
Тимофеевка луговая |
100 - 200 |
Быстрорастущая, 2 г. |
Примечания: 1. Все указанные газонные травы морозоустойчивы, кроме райграса пастбищного, который менее морозоустойчив. 2. Приведенные в ассортиментной таблице газонные травы рекомендуются для создания газонов в умеренной постоянной и слабой периодической загазованности.