Нормативные документы размещены исключительно с целью ознакомления учащихся ВУЗов, техникумов и училищ.
Объявления:

ГОСТ 26602.1-99

МЕЖГОСУДАРСТВЕННЫЙ СТАНДАРТ

БЛОКИ ОКОННЫЕ И ДВЕРНЫЕ

Методы определения сопротивления теплопередаче

МЕЖГОСУДАРСТВЕННАЯ НАУЧНО-ТЕХНИЧЕСКАЯ КОМИССИЯ ПО СТАНДАРТИЗАЦИИ, ТЕХНИЧЕСКОМУ НОРМИРОВАНИЮ И СЕРТИФИКАЦИИ В СТРОИТЕЛЬСТВЕ (МНТКС)

Москва

2000

Содержание

1 Область применения

2 Нормативные ссылки

3 Термины, обозначения и определения

4 Сущность методов

5 Испытательное оборудование и средства контроля

6 Отбор и подготовка образцов

7 Подготовка к испытаниям

8 Проведение испытаний

9 Обработка результатов испытаний

10 Оформление результатов испытаний

ПРИЛОЖЕНИЕ А (справочное) Методика поверки средств измерений

ПРИЛОЖЕНИЕ Б (рекомендуемое) Формы записи результатов испытаний

ПРИЛОЖЕНИЕ В (справочное) Расчетный метод определения сопротивления теплопередаче

ПРИЛОЖЕНИЕ Г (информационное) Сведения о разработчиках стандарта

Предисловие

1 РАЗРАБОТАН Научно-исследовательским институтом строительной физики Российской Академии архитектуры и строительных наук с участием Управления стандартизации, технического нормирования и сертификации Госстроя России, Федерального научно-технического центра по сертификации в строительстве Госстроя России и Ассоциации производителей энергоэффективных окон Российской Федерации

ВНЕСЕН Госстроем России

2 ПРИНЯТ Межгосударственной научно-технической комиссией по стандартизации, техническому нормированию и сертификации в строительстве (МНТКС) 20 мая 1999 г.

За принятие проголосовали

Наименование государства

Наименование органа государственного управления строительством

Республика Армения

Министерство градостроительства Республики Армения

Республика Казахстан

Комитет по делам строительства Министерства энергетики, индустрии и торговли Республики Казахстан

Кыргызская Республика

Государственная инспекция по архитектуре и строительству при Правительстве Кыргызской Республики

Республика Молдова

Министерство развития территорий, строительства и коммунального хозяйства Республики Молдова

Российская Федерация

Госстрой России

Республика Таджикистан

Комитет по делам архитектуры и строительства Республики Таджикистан

Украина

Государственный комитет строительства, архитектуры и жилищной политики Украины

3 ВЗАМЕН ГОСТ 26602-85, СТ СЭВ 4183-83

4 ВВЕДЕН В ДЕЙСТВИЕ с 1 января 2000 г в качестве государственного стандарта Российской Федерации постановлением Госстроя России от 17 ноября 1999 г № 60

Настоящий стандарт не может быть полностью или частично воспроизведен, тиражирован и распространен в качестве официального издания на территории Российской Федерации без разрешения Госстроя России

МЕЖГОСУДАРСТВЕННЫЙ СТАНДАРТ

БЛОКИ ОКОННЫЕ И ДВЕРНЫЕ

Методы определения сопротивления теплопередаче

WINDOWS AND DOORS

Methods of determination of resistance of thermal transmission

Дата введения 2000-01-01

1 Область применения

Настоящий стандарт устанавливает методы определения сопротивления теплопередаче оконных и дверных остекленных блоков и их элементов (далее - оконных блоков), изготавливаемых из различных материалов, для отапливаемых зданий и сооружений различного назначения.

Методы, установленные в настоящем стандарте, применяют при проведении типовых, сертификационных и других периодических лабораторных испытаний.

Допускается использование методов настоящего стандарта для определения сопротивления теплопередаче глухих дверных блоков, зенитных фонарей, витражей и их фрагментов, а также стеклопакетов и профильных систем.

2 Нормативные ссылки

В настоящем стандарте использованы ссылки на следующие стандарты:

ГОСТ 112-78 Термометры метеорологические стеклянные. Технические условия

ГОСТ 1790-77 Проволока из сплавов хромель Т, алюмель, копель и константан для термоэлектродов термоэлектрических преобразователей. Технические условия

ГОСТ 5774-76 Вазелин конденсаторный. Технические условия

ГОСТ 7502-98 Рулетки измерительные металлические. Технические условия

ГОСТ 8711-93 Приборы аналоговые показывающие электроизмерительные прямого действия и вспомогательные части к ним. Часть 2. Особые требования к амперметрам и вольтметрам

ГОСТ 9736-91 Приборы электрические прямого преобразования для измерения неэлектрических величин. Общие технические требования и методы испытаний

ГОСТ 9871-75 Термометры стеклянные ртутные электроконтактные и терморегуляторы. Технические условия

ГОСТ 10616-90 Вентиляторы радиальные и осевые. Размеры и параметры

ГОСТ 13646-68 Термометры стеклянные ртутные для точных измерений. Технические условия

ГОСТ 14791-79 Мастика герметизирующая нетвердеющая строительная. Технические условия

ГОСТ 15588-86 Плиты пенополистирольные. Технические условия

ГОСТ 20477-86 Лента полиэтиленовая с липким слоем. Технические условия

ГОСТ 25380-82 Здания и сооружения. Метод измерения плотности тепловых потоков, проходящих через ограждающие конструкции

ГОСТ 26254-84 Здания и сооружения. Метод определения сопротивления теплопередаче ограждающих конструкций

ГОСТ 27382-87 Переключатели поворотные. Общие технические условия

3 Термины, обозначения и определения

В настоящем стандарте применяют следующие термины с соответствующими определениями.

Светопрозрачная ограждающая конструкция - ограждающая конструкция, предназначенная для освещения естественным светом помещений зданий.

Теплопередача - перенос теплоты через ограждающую конструкцию от среды с более высокой температурой к среде с более низкой температурой.

Тепловой поток Q, Вт - количество теплоты, проходящее через ограждающую конструкцию в единицу времени.

Плотность теплового потока q, Вт/м2 - количество теплоты, проходящее через ограждающую конструкцию в единицу времени, отнесенное к площади расчетной поверхности размером 1м2.

Термическое сопротивление однородной ограждающей конструкции Rк, М2×°С/Вт - отношение разности температур внутренней и внешней поверхностей однородной ограждающей конструкции к плотности теплового потока через конструкцию в условиях стационарной теплопередачи, вычисляемое по формуле

,                                                                                               (1)

где tв, tн - температура внутренней и внешней поверхностей ограждающей конструкции, °С;

q - плотность теплового потока через ограждающую конструкцию, Вт/м2.

Сопротивление теплопередаче однородной ограждающей конструкции R0, м2×°С/Вт - отношение разности температур окружающей среды по обе стороны однородной ограждающей конструкции к плотности теплового потока через конструкцию в условиях стационарной теплопередачи, вычисляемое по формуле

,                                                                                                 (2)

где tв, tн - температура окружающей среды по обе стороны ограждающей конструкции, °С.

Приведенное термическое сопротивление неоднородной ограждающей конструкции , м2×°С/Вт - усредненное по площади расчетной поверхности неоднородной ограждающей конструкции значение термического сопротивления, вычисляемое по формуле

,                                                                                     (3)

где Fi - площадь i-й однородной зоны ограждающей конструкции, м2;

Rкi - термическое сопротивление i-ой однородной зоны ограждающей конструкции, м2×°СВт.

Приведенное сопротивление теплопередаче неоднородной ограждающей конструкции , м2×°С/Вт - усредненное по площади расчетной поверхности неоднородной ограждающей конструкции значение сопротивления теплопередаче, вычисляемое по формуле

,                                                                                      (4)

где Fi - площадь i-ой однородной зоны ограждающей конструкции, м2;

Roi - сопротивление теплопередаче i-й однородной зоны ограждающей конструкции, м2×°С/Вт.

Расчетные зоны светопрозрачной ограждающей конструкции - участки конструкции (коробка, рама, створка, разделительные элементы: импосты, горбыльки, бруски переплета, центральные и краевые зоны остекления), являющиеся или принимаемые за однородные температурные зоны.

Серия изделий, типоразмерный ряд - рад ограждающих конструкций, характеризующихся единым конструктивным решением и отличающихся габаритными размерами, архитектурным рисунком, а также относительной площадью и вариантами остекления.

4 Сущность методов

Лабораторные методы определения сопротивления теплопередаче оконных блоков заключаются в создании постоянного во времени перепада температур по обеим сторонам испытываемого образца, измерении температур воздуха и поверхностей участков образца, а также теплового потока (или тепловой мощности на его создание), проходящего через образец при стационарных условиях испытания, и последующем вычислении значений термическою сопротивления и сопротивления теплопередаче.

5 Испытательное оборудование и средства контроля

5.1 Для проведения испытаний применяют:

- климатическую камеру по ГОСТ 26254, имеющую теплое и холодное отделения, а также перегородку с проемом (рисунок 1), в которую устанавливают испытываемый образец;

- термоэлектрические преобразователи (термопары) но ГОСТ 1790, градуированные в установленном порядке, с диапазоном измерения температуры от минус 50 до + 50 С;

- измерители теплового потока - тепломеры по ГОСТ 25380, градуированные в установленном порядке, с диапазоном измерения плотности теплового потока до 250 Вт/м2;

- приставную калориметрическую камеру, устанавливаемую в теплом отделении климатической камеры, с примыканием к перегородке по периметру испытываемого образца (рисунок 1);

- источник постоянного тока по нормативному документу (далее - НД);

- амперметр по ГОСТ 8711;

- вольтметр по ГОСТ 8711;

- милливольтметр по ГОСТ 9736;

- стеклянные термометры по ГОСТ 112, ГОСТ 13646 с диапазоном измерения температур от минус 50 до +50 °С;

- электроконтактные термометры по ГОСТ 9871;

- метеорологические термографы и гигрографы по НД;

- аспирационный психрометр по НД с погрешностью измерения не более ±1,0 %;

- щитовые переключатели по ГОСТ 27382;

- сосуд Дьюара по НД;

- рулетки металлические по ГОСТ 7502;

- вентиляторы осевые по ГОСТ 10616.

При проведении испытаний допускается использование других приборов, оборудования и измерительных средств, отвечающих условиям проведения испытаний и поверенных в установленном порядке.

5.2 Поверку аппаратуры, применяемой для определения сопротивления теплопередаче по настоящему стандарту, проводят по методике, изложенной в приложении А.

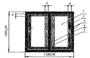
I - теплое отделение камеры; II - холодное отделение камеры; III - машинный зал; IV - помещение с измерительной аппаратурой; 1 - система автоматического сбора данных; 2 - нагревательные приборы; 3 - испытываемый оконный блок; 4 - испаритель; 5 - холодильная установка; 6 - теплоизоляционный слой по периметру проема; 7 - калориметр (утепленная приставная камера); 8 - металлическое отражательное покрытие; 9 - спираль нагрева, равномерно распределенная по площади калориметра; 10 - вентилятор

Рисунок 1 - Схемы климатической камеры для проведения испытаний:

а) при измерении тепловых потоков при помощи тепломеров; б) с помощью приставной калориметрической камеры

6 Отбор и подготовка образцов

6.1 Испытания оконных блоков проводят на образцах полной заводской готовности, изготовленных в соответствии с нормативной и технической документацией на эти изделия.

6.2 Отбор образцов осуществляют методом случайной выборки. Для испытаний рекомендуется отбирать не менее двух однотипных образцов. В случае, если отбор образцов производят без участия представителей испытательного центра (лаборатории), об этом делают соответствующую запись в протоколе испытаний.

6.3 Рекомендуемые размеры образцов оконных блоков для испытаний (высота ´ ширина): (15´12) дм и (15´13,5) дм с отношением площади остекления к площади заполнения светового проема не менее 0,5.

6.4 При испытаниях системы профилей (комбинации створок, коробок и других элементов) из них в соответствии с технической документацией на изделия изготавливают образцы оконного блока, в которых светопрозрачную часть заменяют теплоизоляционной плитой толщиной не менее 24 мм из плитного теплоизоляционного материала по ГОСТ 15588.

Допускается проводить испытания линейных элементов профилей при обеспечении требований 7.2 и 7.3 настоящего стандарта. При этом размеры образцов, подлежащих испытаниям, должны составлять не менее 900 мм.

Торцы полых образцов изолируют при помощи полиэтиленовой липкой ленты по ГОСТ 20477 или другими аналогичными материалами по НД.

6.5 При испытаниях стеклопакетов их монтируют в деревянную или пластмассовую раму соответствующих размеров, при этом толщина брусков рамы должна в два или более раз превышать толщину стеклопакета. Размеры образцов стеклопакетов рекомендуются не менее 0,8´0,8 м.

6.6 Размеры испытываемого образца оконного блока и его деталей измеряют с помощью металлической рулетки, при этом определяют их соответствие размерам, установленным в НД, а также площади светопропускающей Аст и непрозрачной Ар частей конструкции.

7 Подготовка к испытаниям

7.1 Подготовку к испытаниям начинают с рассмотрения технической документации на изделия конкретного вида и составления программы испытаний, в которой учитывают конструктивные особенности изделия и устанавливают требования к температурно-влажностному режиму воздуха в теплом и холодном отделениях климатической камеры, при этом принимают решение о выборе метода измерения тепловых потоков и определяют схему размещения датчиков на поверхностях испытываемого образца.

7.2 Образец оконного блока устанавливают в проем перегородки вертикально, без перекосов и деформаций, монтажные зазоры уплотняют пенополистирольным плитным утеплителем по ГОСТ 15588. Толщина утеплителя должна быть больше или равна толщине рамы оконного блока, но не менее 100 мм. После установки оконного блока стыки между теплоизоляционными плитами и испытываемой конструкцией герметизируют мастикой по ГОСТ 14791 или липкой лентой по ГОСТ 20477.

7.3 При размерах образца, меньших, чем размеры проема перегородки, свободную часть проёма перед испытанием заполняют плитным утеплителем по ГОСТ 15588 толщиной, обеспечивающей превышение значения термического сопротивления этой зоны по сравнению с прогнозируемым значением термического сопротивления примыкающей к утеплителю части образца не менее чем в два раза.

7.4 Термопары на поверхностях образца оконного блока устанавливают по вертикальной и горизонтальной осям в центрах предполагаемых однородных температурных зон светопропускающей и непрозрачной частей, а также в местах теплопроводных включений (рисунок 2). Для оценки геометрических границ однородных зон может быть использован метод моделирования процесса теплопередачи через светопрозрачные ограждающие конструкции на ЭВМ (приложение В) с последующим их уточнением экспериментальным методом по 8.2.

При испытаниях системы профилей (комбинаций створок, коробок и других деталей) термопары устанавливают в однородных зонах на поверхностях створок и коробок.

При испытаниях стеклопакета термопары размещают в центральной и краевых зонах поверхностей стеклопакета.

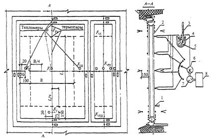
1 - рабочий спай термодатчика; 2 - испытываемый образец; 3 - термометр; 4 - сосуд Дьюара; 5 - холодный спай; 6 - многоточечный переключатель; 7 - микровольтметр; 8 - блок обработки и регистрации данных; FI - FII - термически однородные зоны

Рисунок 2 - Схема размещения термопар и тепломеров на образце оконного блока

На наружной и внутренней поверхностях образца спаи термопар должны располагаться напротив друг друга по направлению нормали к поверхности.

7.5 Для измерения температуры воздушной среды с теплой и холодной сторон образца оконного блока устанавливают термопары, располагая их на расстоянии 0,15 м от наружной и внутренней поверхностей. Число устанавливаемых термопар должно быть не менее трех с каждой стороны образца.

7.6 При измерении плотности тепловых потоков с помощью тепломеров их устанавливают в центрах однородных температурных зон на внутренней поверхности образца оконного блока.

При испытаниях системы профилей (комбинаций створок, коробок) тепломеры устанавливают на поверхностях створок и коробок. Тепломеры должны иметь ширину, не превышающую половины ширины профиля.

При испытаниях стеклопакета тепломеры устанавливают в центральной и краевых зонах стеклопакета.

Примерные схемы расстановки термопар и тепломеров на образце показаны на рисунке 3.

Тепломеры, используемые для измерения плотности тепловых потоков, следует выбирать с учетом соответствия излучательной способности их поверхности и поверхности однородной зоны испытываемого образца (относительная излучательная способность поверхности должна быть не менее 0,8).

7.7 Спаи термопар и тепломеры крепят к поверхностям образца при помощи прозрачной липкой ленты по ГОСТ 20477 или пластилина, толщина слоя которого не должна превышать 2 мм. На рабочую поверхность тепломера предварительно наносят тонкий слой вазелина по ГОСТ 5774.

7.8 При измерении тепловых потоков с помощью приставной калориметрической камеры ее устанавливают в теплое отделение климатической камеры и прижимают торцевыми поверхностями к поверхностям перегородки, граничащим с испытываемым образцом. Места примыкания приставной камеры к откосам проема уплотняют и герметизируют согласно требованиям 7.2.

Перед установкой приставной камеры на поверхностях испытываемого образца закрепляют термопары согласно 7.4 и 7.5.

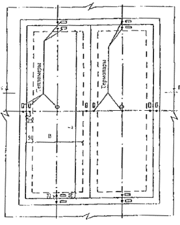
1 - испытываемый образец; 2 - рабочий спай термодатчика

Рисунок 3 - Схема размещения термопар и тепломеров на образце дверного блока

7.9 Свободные спаи термопар погружают в термостат, а рабочие спаи термопар и тепломеры подключают к системе сбора данных.

7.10 После проверки готовности оборудования и измерительных средств в холодном и теплом отделениях и приставной калориметрической камере (при ее использовании) на регулирующей аппаратуре устанавливают заданные значения температур и включают систему автоматического поддержания температуры воздуха, холодильное, нагревательное, вентиляционное и другое испытательное оборудование.

Температура воздуха в теплой зоне климатической камеры или в приставной камере должна быть в пределах 18-20 °С.

Температуру в холодной зоне климатической камеры задают согласно программе испытаний с учетом предполагаемого климатического района эксплуатации оконного блока, но не выше минус 20 °С.

Допускается проведение испытаний при условии выполнения требования к температурному режиму камеры (tв-tн)30 °С.

8 Проведение испытаний

8.1 Измерения температуры и теплового потока при испытаниях в климатической камере проводят единовременно при помощи дистанционных приборов и аппаратуры. Нахождение людей и не используемой при испытаниях измерительной аппаратуры в климатической камере во время проведения измерений не допускается.

8.2 При измерении плотности тепловых потоков с помощью тепломеров режим теплопередачи через испытываемый образец считают стационарным, если результаты повторных, с интервалом не менее 0,5 ч, измерений температуры на поверхностях однородных зон образца со стороны теплого отделения отличаются друг от друга не более чем на 0,3 °С, а значения термического сопротивления, вычисленные по результатам последовательных измерений сигналов термодатчиков, отличаются друг от друга не более чем на 5 % при условии, что эти значения не возрастают и не убывают монотонно.

После установления стационарного режима теплопередачи проверяют правильность выбора однородных температурных зон на образце путем измерения плотности тепловых потоков и температуры его внутренней поверхности. В случае существенных отклонений температуры и плотности тепловых потоков в пределах зоны (превышающих 10 %) производят корректировку расположения датчиков температур и тепловых потоков.

Измерение температуры и плотности тепловых потоков проводят не менее трех раз с интервалом не менее 1 ч.

Результаты измерений заносят в протокол испытаний, форма которого приведена в приложении Б (таблица Б.1).

8.3 При измерении теплового потока с помощью приставной калориметрической камеры электрический нагреватель в приставной камере подключают к регулируемому источнику постоянного тока и методом подбора устанавливают регулятор на уровень, обеспечивающий равенство температуры воздуха в теплом отделении климатической камеры и приставной камере.

Режим теплопередачи через испытываемый образец считают стационарным, если разность значений температур воздуха внутри приставной камеры и теплого отделения климатической камеры не превышает 0,5 °С, а результаты повторных, с интервалом не менее 0,5 ч измерений тепловой мощности нагревателя отличаются не более чем на 5 %.

Измерения температуры поверхностей образца, а также напряжения и силы тока в сети электрического нагревателя приставной калориметрической камеры проводят не менее трех раз с интервалом 15 мин.

Результаты измерений оформляют в соответствии с приложением Б (таблица Б.2).

9 Обработка результатов испытаний

9.1 За расчетные значения температуры для каждой однородной зоны принимают среднеарифметические значения измеренных величин.

9.2 Термическое сопротивление i-й однородной зоны испытываемого образца Rкi при измерении плотности тепловых потоков с помощью тепломеров определяют но формуле

,                                                                                      (5)

где tвi, tнi- средние температуры соответственно внутренней и наружной поверхностей i-й зоны за период измерений, оС;

qi - средняя плотность теплового потока, проходящего через i-ю зону за период измерений, Вт/м2.

9.3 Приведенное термическое сопротивление светопропускающей Rкст и непрозрачной Rкр частей оконного блока, а также полотна Rкп и коробки Rкк дверного блока, м2×оС/Вт, определяют по формулам:

                                                                           (6)

                                                             (7)

где m, n - число однородных зон соответственно в светопропускающей и непрозрачной частях блока;

Аi - расчётная площадь i однородной зоны светопропускающей части блока, м2;

Rкi - термическое сопротивление i однородной зоны светопропускающей части блока, м2×°С/Вт;

Аj - расчётная площадь j-й однородной зоны непрозрачной части блока, м2;

Rкj - термическое сопротивление j-й однородной зоны непрозрачной части блока, м2 ×°С/Вт.

9.4 Приведенное термическое сопротивление испытанного оконного блока Rкпр, м2 оС/Вт, определяют по формуле

Rкпр = (Аст +Ар) / [(Аст / Rкст) + (Ар / Rкр)],                                                      (8)

где Аст, Ар - площади расчётной поверхности светопропускающей и непрозрачной частей оконного блока, м2.

9.5 Приведенное термическое сопротивление испытанного дверного блока Rкпр, м2 ×оС/Вт, определяют по формуле

Rкпр = (Ап + Ак)/[(Ап /Rкп) +к/ Rкк)],                                                         (9)

где Ап, Ак - площади расчетной поверхности полотна и коробки дверного блока, м2.

9.6 Приведенное сопротивление теплопередаче испытанного оконного или дверного блока Rопр, м2×оС/Вт, при измерении плотности тепловых потоков с помощью тепломеров определяют по формуле

,                                                                          (10)

где Rкпр - приведенное термическое сопротивление испытанного оконного и дверного блоков, м2×оС/Вт;

aв, aн - коэффициенты теплоотдачи внутренней и наружной поверхностей блока, принимаемые равными: aв = 8,0 Вт/(м2×оС), aн = 23,0 Вт/(м2×оС).

9.7 Среднее значение плотности теплового потока, проходящего через испытываемый оконный или дверной блок qпр, при его измерении с помощью приставной калориметрической камеры определяют по формуле

,                                (11)

где U - напряжение в сети постоянного тока нагревателя приставной калориметрической камеры, В;

I - сила тока в сети нагревателя калориметра, А;

Qэл - тепловая мощность, выделяемая электродвигателем вентилятора приставной камеры, Вт;

tвi, tнi - средние за период измерений значения температуры соответственно внутренней и наружной поверхностей i-го участка теплоизоляционного материала, заполняющего проем ограждения вне пределов испытываемого образца, разделяющего теплое и холодное отделения климатической камеры, °С;

l - теплопроводность теплоизоляционного материала, Вт/(м.°С);

di - толщина слоя i-го участка теплоизоляционного материала, м;

Аi - площадь поверхности i-го участка теплоизоляционного материала, м2;

Ао - площадь расчетной поверхности испытанного образца оконного блока, м2.

9.8 Приведенное термическое сопротивление испытанного оконного (дверного) блока Rкпр, м2 °С/Вт, при измерении плотности теплового потока с помощью приставной калориметрической камеры определяют по формуле

                                                                                  (12)

где tв, tн - средние температуры соответственно внутренней и наружной поверхностей испытываемого образца за период измерений, определяемые по результатам расчета температурного поля, °С;

qпр - средняя плотность теплового потока, проходящего через испытываемый образец, Вт/м2.

9.9 Приведенное сопротивление теплопередаче испытываемого оконного (дверного) блока Rопр, м2.°С/Вт, при измерении плотности теплового потока с помощью приставной калориметрической камеры определяют по формуле (10).

9.10 Результаты теплотехнических испытаний оконного блока могут быть распространены на типоразмерный ряд изделий (серию), отличающихся габаритными размерами и относительной площадью остекления. Значения приведенного термического сопротивления оконных блоков типоразмерного ряда определяют по формуле

                                                                       (13)

где Rкст - приведенное термическое сопротивление светопропускающей части испытанного оконною блока, определенное по формуле (6), м2.°С/Вт;

Rкр - приведенное термическое сопротивление непрозрачной части испытанного оконного блока, определенное по формуле (7), м2.°С/Вт;

b - отношение площади остекления к площади заполнения светового проема рассчитываемого оконного блока типоразмерного ряда.

Приведенное сопротивление теплопередаче оконных блоков типоразмерного ряда вычисляют по формуле (10) с учетом значений приведенного термического сопротивления, рассчитанных по формуле (13).

10 Оформление результатов испытаний

Результаты испытаний оформляют протоколом, в котором указывают:

- наименование испытательного центра (лаборатории) с указанием номера аттестата аккредитации;

- наименование, юридический адрес организации - заказчика испытаний;

- наименование, юридический адрес организации - изготовителя образцов;

- наименование испытываемой продукции, маркировку и нормативный документ на объект испытаний;

- описание, эскиз и техническую характеристику объекта испытаний (включая площадь образцов, коэффициент остекления, полную характеристику светопрозрачной части конструкции, другие необходимые сведения);

- нормативный документ, в соответствии с которым проводят испытания изделия (обозначение настоящего стандарта);

- программу и результаты испытаний;

- дату проведения испытаний;

- подписи ответственных за проведение работ и испытаний лиц;

- другие данные по согласованию с заказчиком

ПРИЛОЖЕНИЕ А
(справочное)
Методика поверки средств измерений

А.1 Поверку средств измерений, применяемых в лабораторных экспериментальных методах определения сопротивления теплопередаче, проводят согласно настоящему приложению не реже чем раз в полгода, а также при замене датчиков температуры (термопар) и измерителей плотности тепловых потоков (тепломеров).

А.2 При поверке средств измерений экспериментально оценивают методическую погрешность, обусловленную влиянием контактного сопротивления термопар и тепломеров при их креплении к поверхности ограждающей конструкции, изменением характеристик тепломеров в процессе естественного старения, инерционности терморегулирующих приборов и т.д.

Допустимое значение погрешности определения термического сопротивления для эталонного заполнения проема климатической камеры не должно превышать 5 %.

А.3 В качестве эталонного заполнения проема климатической камеры используют плоскопараллельную пластину из полиметил-метакрилата по НД толщиной не менее 10 мм, аттестованную в установленном порядке. Эталонную пластину устанавливают в проеме камеры с максимальным зазором не более 50 мм и закрепляют по периметру проема на пенополистирольном плитном утеплителе по ГОСТ 15588 с учетом требований 7.2.

А.4 Термопары и тепломеры на поверхности эталонного заполнения при поверке средств измерений размещают согласно 7.4 - 7.6, аналогично условиям испытаний стеклопакетов. Коэффициент однородности теплового потока, проходящего через эталонное заполнение, не должен быть менее 0,9.

А.5 Относительную погрешность D, %, определения термического сопротивления вычисляют по формуле

                                                                             (А.1)

где Rк - приведенное термическое сопротивление эталонного заполнения, измеренное согласно настоящему стандарту, м2.°С/Вт;

Rкэт- термическое сопротивление эталонного заполнения, полученное при его аттестации, м2.°С/Вт;

А.6 Термическое сопротивление эталонного заполнения Rкэт определяют по формуле

Rкэт = d/lэт,                                                                                                    (А.2)

где d - толщина пластины эталонного заполнения, м;

lэт - теплопроводность образца из полиметилметакрилата при средней температуре образца в соответствии с требованием 7.10, аттестованного в установленном порядке.

А.7 Результаты поверки средств измерений оформляют «Актом поверки средств измерений» в соответствии с разделом 10 с указанием рассчитанной относительной погрешности.


ПРИЛОЖЕНИЕ Б
(рекомендуемое)
Формы записи результатов испытаний

Таблица Б.1 - Формы записи результатов испытаний оконного (дверного) блока при измерении тепловых потоков с помощью тепломеров

Дата испытания «__» __________________

Характеристика испытываемого образца_______________________

Температура в теплом отделении камеры tв, °С__________________

Температура в холодном отделении камеры tн, °С________________

Номер однородной зоны

Площадь i(j)-й зоны Аi(j) м2

Номер датчиков температуры

Температура поверхности

Номер датчиков теплового потока

Плотность теплового потока

Термическое сопротивление однородной зоны, Rкi(j), м2 °С/Вт

Приведенное термическое сопротивление, м2-°С/Вт

Приведенное сопротивление теплопередаче Rопр м2× °С/Вт

Текущие значения

Средняя по площади Аi(j)

Текущие значения

Средняя по площади Аi(j) Вт/м2

свето­пропуска­­­ющей части Rкст

непро­зрач­ной части Rкр

внутрен­няя tвнi

наруж­ная tнi

внут­рен­няя tвн, °С

на­руж­ная tн, °С

*

°С

*

°С

*

Вт/м2

1

2

3

4

5

6

7

8

9

10

11

12

13

14

15

16

17

 

 

 

 

 

 

 

 

 

 

 

 

 

 

 

 

 

Примечание - В графах, отмеченных знаком *, приводят показания измерительного прибора

Таблица Б.2 - Формы записи результатов испытаний оконного (дверного) блока при помощи приставной калориметрической камеры

Дата испытания «__» ___________

Характеристика испытываемого образца__________________

Температура в теплом отделении камеры tв, °С________________

Температура воздуха внутри приставной калориметрической камеры tвк, °С ____________

Температура в холодном отделении камеры tн °С_________________

Номер однородной зоны

Площадь i(j) зоны Аi(j), м2 

Номер датчиков температуры

 

Температура поверхности

Плотность теплового потока

Приведенное термическое сопротивление Rкпр, м2×С/Вт

Приведенное сопротивление теплопередач Rопр, м2×°С/Вт

Текущие значения

Средняя по площади Аi(j)

Средняя по образцу

Средняя по изоляционному материалу, стенок камеры, Вт/м2

Электрические характеристики нагревателя

Средняя плотность теплового потока qпр, Вт/м2

 

внутрен­няя tвнi

наруж­ная tнi

внут­рен­няя tвн, °C

наруж­ная tн, °C

внутрен­няя, °С

наруж­ная, °С

внутрен­няя

наруж­ная

напряже­ние, В

сила тока, А

*

°C

*

°C

1

2

3

4

5

6

7

8

9

10

11

12

13

14

15

16

17

18

 

 

 

 

 

 

 

 

 

 

 

 

 

 

 

 

 

 

Примечание - В графах, отмеченных знаком *, приводят показания измерительного прибора

 


ПРИЛОЖЕНИЕ В
(справочное)
Расчетный метод определения сопротивления теплопередаче

Метод заключается в моделировании стационарного процесса теплопередачи через светопрозрачную конструкцию с использованием прикладного программного обеспечения для персональных компьютеров.

Рекомендуемая область применения метода - сопоставительный анализ по величине приведенного сопротивления теплопередаче систем профилей и стеклопакетов и выбор оптимальных конструктивных решений, определение размеров расчетных зон одномерного и двумерного температурных полей светопрозрачной конструкции при подготовке к проведению испытаний, оценка типоразмерного ряда оконных блоков (серии изделий) по величине приведенного сопротивления теплопередаче.

В.1 Общие требования к программному обеспечению

В. 1.1 Возможность выполнения расчетов светопрозрачных конструкций, состоящих из любых сочетаний непрозрачных элементов (коробок, створчатых элементов, включая разделительные детали), различных видов силикатных стекол и стеклопакетов при любых условиях окружающей среды и при любом наклоне.

В. 1.2 Возможность получения на принтере копий подробного отчета о результатах проведенных расчетов для оконных блоков и их элементов с использованием данных из соответствующих библиотек.

В. 1.3 Возможность расчета следующих характеристик и показателей светопрозрачных конструкций:

- сопротивление теплопередаче, коэффициент затенения, коэффициент пропускания солнечной радиации, коэффициент светопропускания для всей конструкции и центральной части остекления;

- сопротивление теплопередаче элементов створок, коробок (включая разделительные детали) и соответствующих прилегающих зон остекления;

- угловая зависимость светопропускания и отражения в видимом диапазоне и для всего солнечного спектра, поглощение солнечной радиации и коэффициента пропускания солнечной радиации для системы остекления;

- распределение температур (температурное поле) элементов конструкции.

В. 1.4 Наличие справочной информации по программе для пользователя, включающей основные положения программного руководства, в том числе встроенных, с прямым доступом, библиотек компонентов светопрозрачных конструкций (систем остекления, газононаполнителей стеклопакетов, элементов створок, коробок и разделителей) и окружающей среды, а также библиотеки спектральных характеристик стекол, используемых в светопрозрачных конструкциях.

В. 1.5 Основные требования к вычислительным и моделирующим процедурам программного обеспечения:

- использование многоволновой спектральной модели прохождения излучения через систему остекления;

- использование графического задания геометрии рассчитываемого сечения конструкции на экране монитора;

- использование автоматической дискретизации модели сечения конструкции на расчетные элементы;

- использование библиотеки теплотехнических показателей материалов при моделировании конструкции;

- возможность визуализации рассчитываемого двумерного температурного поля.

В.2 Определение сопротивления теплопередаче светопрозрачной конструкции

В. 2.1 Для расчета применяют программное обеспечение, отвечающее требованиям раздела В.1 настоящего приложения.

В. 2.2 Применение расчетного метода должно соответствовать температурным условиям 7.10 настоящего стандарта. Условия теплообмена на наружной и внутренней поверхностях образца моделируют соответственно коэффициентами теплообмена со значениями:

aн = 23,0 Вт/(м2×°С) и aв = 8,0 Вт/(м2×°С).

В.2.3 Приведенное сопротивление теплопередаче светопрозрачной конструкции вычисляют по схеме и в порядке, приведенном ниже.

Определяют, используя программное обеспечение, сопротивление теплопередаче следующих элементов и расчетных зон светопрозрачной конструкции (см. рисунок В. 1):

1) центральной зоны остекления;

2) краевой зоны остекления;

3) разделительных деталей;

4) краевой зоны остекления у разделительных деталей;

5) коробки (рамы) и створки.

1 - центральная зона остекления; 2 - краевая зона остекления; 3 - коробка и створка; 4 - разделительная деталь (импост); 5 - краевая зона остекления у разделительной детали

Рисунок В.1 - Схема расчетных зон и элементов окна на примере оконного блока с базовыми расчетными размерами (фронтальный вид)

Определяют площади элементов и расчетных зон с округлением до 0,001 м2, в том числе площадь:

центральной зоны остекления: суммарная площадь всех видимых частей остекления, за исключением полос расчетной ширины d, прилегающих к коробке, створке или разделительным деталям;

разделительных деталей: площадь проекции разделительных деталей на плоскость, параллельную плоскости остекления;

краевой зоны остекления: суммарная площадь всех видимых частей остекления в переделах полос расчетной ширины d, прилегающих к любой части коробки или створки;

краевой зоны остекления у разделительных деталей: суммарная площадь видимых частей остекления в пределах полос расчетной ширины d, прилегающих к разделителю;

коробки и створки: сумма площадей проекций всех элементов коробки и створки на плоскость, параллельную плоскости остекления.

Для изделий с разделительными деталями с внешней и внутренней сторон остекления (например, с накладными ложными горбыльками) принимают, что приведенное сопротивление теплопередаче имеет такое же значение, как и идентичное изделие без таких разделителей.

Для изделий с разделительными декоративными рамками внутри стеклопакета принимают, что приведенное сопротивление теплопередаче имеет такое же значение, как и идентичное изделие без таких разделителей, если расстояние между ними и поверхностью стекла составляет не менее 3 мм.

Термическое сопротивление и приведенное сопротивление теплопередаче светопрозрачной конструкции вычисляют по формулам (6) - (10) настоящего стандарта.

В.3 Определение приведенного сопротивления теплопередаче оконных блоков серии изделий

Оценку возможности определения расчетным методом приведенного сопротивления теплопередаче оконных блоков серии изделий производят в следующем порядке:

- оконный блок базового расчетного размера (рисунок В. 1) испытывают любым лабораторным методом по настоящему стандарту с герметизацией притворов створчатых элементов для исключения влияния инфильтрации воздуха на результаты испытаний;

- при испытании оконного блока других размеров допускается пересчет результатов испытаний на оконный блок с базовыми расчетными размерами по формуле (13);

- производят расчет приведенного сопротивления испытанного лабораторным методом оконного блока с базовыми размерами с использованием расчетного метода по настоящему стандарту;

- сравнивают результаты лабораторных испытаний и полученные расчетным методом. Если расхождение значений приведенного сопротивления теплопередаче не превышает 10 %, то расчетный метод используют для определения сопротивления теплопередаче серии изделий (типоразмерного ряда оконных блоков).

В.4 Основные требования к сопровождающей технической документации

Сопровождающая техническая документация должна содержать:

область применения программного обеспечения;

подробное описание назначения программы и ее функций;

описание установки программы на персональном компьютере;

описание математических моделей, используемых в программе;

детальное и наглядное руководство пользователя;

координаты службы поддержки и технической помощи.

ПРИЛОЖЕНИЕ Г
(информационное)
Сведения о разработчиках стандарта

Настоящий стандарт разработан группой исполнителей в составе:

В.А. Могутов, канд. техн. наук, НИИСФ РААСН;

В.К. Савин, д-р. техн. наук, НИИСФ РААСН;

В.А. Лобанов, засл. строитель России, НИИСФ РААСН;

Ю.П. Александров, канд. техн. наук, ЦНИИпромзданий;

Н.В. Шведов, Госстрой России;

А.В. Спиридонов, канд. техн. наук, АПРОК (приложение В);

А.И. Фомичев, канд. техн. наук, АПРОК (приложение В).

Ключевые слова: оконные и дверные блоки, теплопередача, тепловой поток, термическое сопротивление ограждающей конструкции, приведенное сопротивление теплопередаче

2008-2013. ГОСТы, СНиПы, СанПиНы - Нормативные документы - стандарты.