Нормативные документы размещены исключительно с целью ознакомления учащихся ВУЗов, техникумов и училищ.
Объявления:

ГОСТ 26602.3-99

МЕЖГОСУДАРСТВЕННЫЙ СТАНДАРТ

БЛОКИ ОКОННЫЕ И ДВЕРНЫЕ

Метод определения звукоизоляции

МЕЖГОСУДАРСТВЕННАЯ НАУЧНО-ТЕХНИЧЕСКАЯ КОМИССИЯ ПО СТАНДАРТИЗАЦИИ, ТЕХНИЧЕСКОМУ НОРМИРОВАНИЮ И СЕРТИФИКАЦИИ В СТРОИТЕЛЬСТВЕ (МНТКС)

Москва

2000

СОДЕРЖАНИЕ

1. Область применения

2. Нормативные ссылки

3. Термины, обозначения и определения

4. Испытательное оборудование и аппаратура

5. Определение изоляции воздушного шума

6. Оформление результатов испытаний

ПРИЛОЖЕНИЕ А (рекомендуемое) Метод оценки звукоизоляции вспомогательной перегородки

ПРИЛОЖЕНИЕ Б (рекомендуемое) Требования к звукоизоляционной замазке, применяемой при испытаниях

ПРИЛОЖЕНИЕ В (информационное) Сведения о разработчиках стандарта

Предисловие

1. РАЗРАБОТАН Научно-исследовательским институтом строительной физики Российской Академии архитектуры и строительных наук и Федеральным научно-техническим центром по сертификации в строительстве при Госстрое России.

ВНЕСЕН Госстроем России.

2. ПРИНЯТ Межгосударственной научно-технической комиссией по стандартизации, техническому нормированию и сертификации в строительстве (МНТКС) 20 мая 1999 г.

За принятие проголосовали

Наименование государства

Наименование органа государственного управления строительством

Республика Армения

Министерство градостроительства Республики Армения

Республика Казахстан

Комитет по делам строительства Министерства энергетики, индустрии и торговли Республики Казахстан

Кыргызская Республика

Государственная инспекция по архитектуре и строительству при Правительстве Кыргызской Республики

Республика Молдова

Министерство развития территорий, строительства и коммунального хозяйства Республики Молдова

Российская Федерация

Госстрой России

Республика Таджикистан

Комитет по делам архитектуры и строительства Республики Таджикистан

Украина

Государственный комитет строительства, архитектуры и жилищной политики Украины

3. ВВЕДЕН ВПЕРВЫЕ.

4. ВВЕДЕН В ДЕЙСТВИЕ с 1 января 2000 г. в качестве государственного стандарта Российской Федерации постановлением Госстроя России от 17 ноября 1999 г. № 62.

МЕЖГОСУДАРСТВЕННЫЙ СТАНДАРТ

БЛОКИ ОКОННЫЕ И ДВЕРНЫЕ
Метод определения звукоизоляции

WINDOWS AND DOORS

Method of measurement of sound insulation

Дата введения 2000-01-01

1. Область применения

Настоящий стандарт распространяется на оконные и дверные блоки жилых, общественных, производственных и других зданий и сооружений и устанавливает метод определения их звукоизоляции в лабораторных условиях.

Метод также может быть применен для определения звукоизоляции витражей, витрин и других светопрозрачных ограждающих конструкций или их фрагментов.

Метод, установленный в настоящем стандарте, применяют при проведении типовых, сертификационных и других периодических лабораторных испытаний.

2. Нормативные ссылки

В настоящем стандарте использованы ссылки на следующие стандарты:

ГОСТ 6495-89 Микрофоны. Общие технические условия.

ГОСТ 17168-82 Фильтры электронные октавные и третьоктавные. Общие технические требования и методы испытаний.

ГОСТ 17187-81 Шумомеры. Общие технические требования и методы испытаний.

ГОСТ 23854-79 Измерители уровня электрических сигналов. Общие технические требования и методы испытаний.

ГОСТ 24388-88 Усилители сигналов звуковой частоты бытовые. Общие технические условия.

ГОСТ 27296-87 Защита от шума в строительстве. Звукоизоляция ограждающих конструкций. Методы измерения.

СТ СЭВ 4867-84 Защита от шума в строительстве. Звукоизоляция ограждающих конструкций зданий. Нормы.

3. Термины, обозначения и определения

В настоящем стандарте применяют следующие термины с соответствующими определениями.

Время реверберации Т, с - время, требуемое для снижения уровня звукового давления, в замкнутом помещении на 60 дБ после выключения источника звука.

Звукоизоляция оконного блока RAтран, дБА - величина, служащая для оценки снижения оконным блоком воздушного шума потока городского транспорта.

Индекс изоляции воздушного шума Rw, дБ - величина, служащая для оценки звукоизоляции конструкции одним числом и определяемая путем сопоставления частотной характеристики изоляции воздушного шума R(f) со специальной оценочной кривой по СТ СЭВ 4867.

Изоляция воздушного шума (звукоизоляция) R, дБ - десятикратный десятичный логарифм отношения звуковой мощности, падающей на испытываемый образец, к звуковой мощности, переданной через этот образец.

Средний уровень звукового давления в помещении Lm, дБ - десятикратный десятичный логарифм отношения усредненных в пространстве и времени квадратов значения звукового давления к квадрату порогового значения давления r0 = 20 мкПа.

Образец для испытания - изделие, пригодное для испытания, технические характеристики которого полностью соответствуют представленной в испытательный центр (лабораторию) сопроводительной нормативной и конструкторской документации.

Фрагмент изделия - часть изделия, отражающая его основные конструктивные особенности и звукоизоляционные характеристики.

Частотная характеристика изоляции воздушного шума R(f), дБ - значение изоляции воздушного шума R в каждой из третьоктавных полос с частотами f, Гц, лежащими в диапазоне 100ч3150 Гц (в графической или табличной форме).

Эквивалентная площадь звукопоглощения А, м2 - площадь поверхности с коэффициентом звукопоглощения, равным единице, которая обладала бы такой же способностью поглощать звук, как и все вместе взятые поверхности ограждающих конструкций испытательной камеры.

4. Испытательное оборудование и аппаратура

Испытательное оборудование и аппаратура включают в себя испытательную камеру с передающей и приемной измерительными системами.

4.1. Передающая система, содержащая:

- генератор шума с диапазоном 31 - 10000 Гц по нормативной документации (далее - НД);

- фильтры полосовые третьоктавные класса 1 или 2 по ГОСТ 17168;

- усилители мощности по ГОСТ 24388;

- громкоговорители с рабочим диапазоном частот 50 - 8000 Гц по НД (неравномерность характеристики не должна превышать 15 дБ).

4.2. Приемная измерительная система, содержащая:

- микрофон измерительный класса точности 1 или 2 с номинальным диапазоном частот 31,5 - 18 000 Гц по ГОСТ 6495;

- шумомер класса точности 1 или 2 по ГОСТ 17187;

- фильтры полосовые третьоктавные по ГОСТ 17168;

- прибор регистрирующий по ГОСТ 23854.

4.3. Испытательная (реверберационная) камера должна состоять из двух смежных по горизонтали помещений (пара помещений), в проем между которыми монтируют образец испытываемой конструкции, и отвечать требованиям ГОСТ 27296.

4.4. Площадь проема, предназначенного для монтажа образца испытываемой конструкции, должна составлять не менее 8 м2.

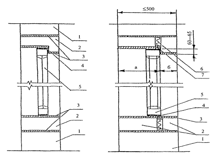
Если испытываемый образец (окно) по размерам меньше испытательного проема, то в проеме следует установить вспомогательную перегородку с заведомо более высокой по сравнению с образцом звукоизоляцией и в нее вставить образец (рисунок 1).

Вариант с однослойной                                                         Вариант с многослойной

перегородкой                                                                           перегородкой

1 - стена проема; 2 - вспомогательная перегородка; 3 -  штукатурный слой; 4 - эластичный герметик; 5 - испытываемый образец; 6 - упругий уплотняющий материал; 7 – вкладыш.

Отношение а: б = 2 : 1

Рисунок 1 - Схема проема испытательной камеры со вспомогательной перегородкой.

4.5. Звукоизоляция вспомогательной перегородки на всех частотах должна быть не менее чем на 6 дБ выше звукоизоляции испытываемого образца.

В необходимых случаях проводят оценку изоляции воздушного шума этой перегородки методом, приведенным в приложении А.

4.6. Толщина вспомогательной перегородки не должна превышать 500 мм. При установке образца внутрь вспомогательной перегородки по обе стороны от нее образуются ниши, глубины которых должны находиться в соотношении 2:1.

4.7. Для монтажа светопрозрачных конструкций во вспомогательной перегородке следует предусматривать устройство опорных четвертей размерами от 60 до 65 мм.

4.8. Оборудование и аппаратура должны быть поверены в установленном порядке.

5. Определение изоляции воздушного шума

5.1. Сущность метода

Метод определения изоляции воздушного шума оконными и дверными блоками в лабораторных условиях заключается в последовательном измерении и сравнении средних уровней звукового давления в помещениях высокого и низкого уровней испытательной камеры в определенных полосах частот с последующим вычислением показателей звукоизоляции изделий.

5.2. Порядок подготовки к проведению испытаний

5.2.1. Порядок отбора и количество образцов для испытаний устанавливают в нормативной документации на испытываемые изделия или в договоре на проведение испытаний. Рекомендуется проведение испытаний не менее чем на двух идентичных образцах.

Предпочтительно использовать для испытаний образцы, предварительно прошедшие испытания на воздухопроницаемость или сопротивление ветровым нагрузкам.

5.2.2. Перед проведением испытаний проводят проверку соответствия конструкций и комплектности, образцов требованиям сопроводительной нормативной и конструкторской документации.

5.2.3. Геометрические размеры образцов проверяют при помощи средств измерения и по методикам, приведенным в НД на испытываемое изделие.

5.2.4. Проверяют правильность установки элементов остекления, уплотняющих прокладок, работу запирающих приборов и петель.

В случае обнаружения недостатков вызывают представителей заказчика для их устранения.

5.2.5. Устанавливают образец в испытательный проем или внутрь вспомогательной перегородки согласно рисунку 1. При необходимости допускается производить установку образца согласно требованиям нормативной (проектной) документации на монтаж изделия.

5.2.6. Щели между вспомогательной перегородкой и устанавливаемым в нее образцом должны быть герметизированы эластичным уплотняющим материалом или специальной замазкой. Звукоизоляционные свойства замазки должны отвечать требованиям приложения Б.

5.2.7. Минимальные размеры испытываемых образцов светопрозрачных ограждений должны составлять [(1250´1500) ± 50] мм.

Допускается использовать при испытаниях оконные или дверные блоки других размеров, принятых в НД на эти изделия.

5.2.8. При испытаниях дверей без порога расстояние от нижнего торца полотна двери до пола должно быть оговорено в договоре на проведение испытаний, но не менее 4 мм.

5.2.9. Удаление краев испытываемых ограждений или окон от стен, потолка или пола камер не должно быть меньше 500 мм.

Испытываемый образец следует размещать несимметрично по отношению к указанным ограждающим конструкциям.

5.2.10. Если испытываемое окно включает в себя открывающиеся створчатые элементы, то оно должно быть установлено так, чтобы эти элементы могли свободно открываться и закрываться.

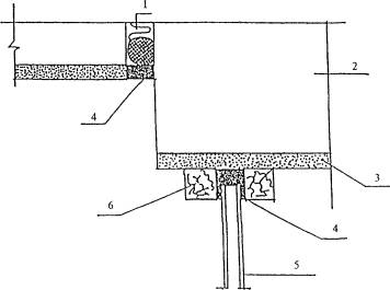
5.2.11. Для закрепления стеклопакетов или элементов панельной конструкции допускается применение деревянных брусков сечением 25Ч25 мм с обязательным промазыванием возможных щелей звукоизоляционной замазкой. Пример решения узла крепления стеклопакета в испытательном проеме показан на рисунке 2.

5.2.12. При испытаниях в помещениях камеры следует поддерживать постоянную температуру (20 ± 3) °С.

Измерения следует проводить после выдерживания образца при этой температуре в течение 24 ч.

1 - эластичный уплотняющий материал; 2 - проем стены; 3 - штукатурный слой; 4 - специальная замазка (герметик) или эластичная прокладка; 5 - стеклопакет (фрагмент светопрозрачной конструкции); 6 - деревянный брусок.

Рисунок 2 - Узел крепления стеклопакета (фрагмента светопрозрачной конструкции) в проеме перегородки.

5.3. Проведение испытаний

5.3.1. Попеременно открывают и закрывают створки (полотна) испытываемых образцов не менее десяти раз.

5.3.2. Включают передающую систему и измеряют уровень звукового давления при помощи приемной измерительной системы в последовательности, предусмотренной ГОСТ 27296.

5.3.3. Измерения следует проводить в третьоктавных полосах частот. Частотный диапазон при измерениях должен быть от 100 до 3150 Гц со следующими средними геометрическими частотами третьоктавных полос:

100, 125, 160, 200, 250, 315, 400, 500, 630, 800, 1000, 1250, 1600, 2000, 2500, 3150.

Рекомендуется для получения дополнительной информации проводить измерения в полосах с частотами 50, 63, 80, 4000, 5000 Гц.

5.3.4. Индекс изоляции воздушного шума испытываемой конструкции определяют по СТ СЭВ 4867 путем сопоставления полученной в результате измерений частотной характеристики изоляции воздушного шума R(f) с оценочной кривой.

5.4. Правила обработки результатов испытаний

5.4.1. Средние уровни звукового давления Lm1 и Lm2, дБ, в помещениях высокого и низкого уровней определяют согласно ГОСТ 27296 по формуле

                                                                    (1)

где Lj - уровень звукового давления в j-й точке, дБ;

п - число точек измерения.

5.4.2. Эквивалентную площадь звукопоглощения помещения низкого уровня А2, м2, определяют по значению времени реверберации Т2, измеренному в соответствии с НД, по формуле

                                                                                               (2)

где V2 - объем измерительного (приемного) помещения низкого уровня, м3;

T2 - время реверберации, с;

0,16 - эмпирический коэффициент, с/м.

5.4.3. Изоляцию воздушного шума испытываемой конструкции Rm, дБ, рассчитывают в соответствии с ГОСТ 27296 по формуле

                                                                       (3)

где Lm1 и Lm2 - средние уровни звукового давления в помещениях высокого и низкого уровней, определяемые по формуле (1), дБ;

S - площадь поверхности испытываемого образца, м2;

А2 - эквивалентная площадь звукопоглощения, м2.

5.4.4. Звукоизоляцию окна RA тран, дБА, определяют по формуле

                                                               (4)

где Li - скорректированный уровень эталонного шума потока городского транспорта в i-й третьоктавной полосе частот, дБ, определяемый по таблице 1;

Rmi - изоляция воздушного шума данной конструкции окна в i-й третьоктавной полосе частот, дБ, определяемая по формуле (3).

Таблица 1

Частоты 1/3 октавной полосы, Гц

Уровень звукового давления Li, дБ

100

55

125

55

160

57

200

59

250

60

315

61

400

62

500

63

630

64

800

66

1000

67

1250

66

1600

65

2000

64

2500

62

3150

60

5.5. Погрешность результатов измерений следует оценивать по ГОСТ 27296.

6. Оформление результатов испытаний

Результаты испытаний оформляют протоколом, в котором указывают:

- наименование испытательного центра (лаборатории) и номер аттестата аккредитации;

- наименование, юридический адрес организации-заказчика испытаний;

- наименование, юридический адрес организации-изготовителя образцов;

- наименование испытываемой продукции, маркировку и НД на объект испытаний;

- описание, эскиз и техническую характеристику объекта испытаний;

- нормативный документ, в соответствии с которым проводят испытания продукции (обозначение настоящего стандарта);

- отклонения от процедур проведения измерений с указанием причин;

- результаты оценки погрешности измерений;

- результаты испытаний, оформленные в виде таблицы или диаграммы для каждой из третьоктавных полос со средними геометрическими частотами от 100 до 3150 Гц;

- оценку изоляции воздушного шума оконным или остекленным дверным блоком одним числом Rw и  RА тран.

- дату проведения испытаний;

- подписи руководителя испытательной лаборатории и испытателя.

ПРИЛОЖЕНИЕ А
(рекомендуемое)

Метод оценки звукоизоляции вспомогательной перегородки

Изоляция воздушного шума перегородкой должна быть на всех частотах на 6 дБ выше значения величины изоляции шума, прошедшего непосредственно через испытываемый образец.

Для определения изоляции воздушного шума перегородкой к установленному в ней испытываемому образцу добавляют дополнительный звукоизоляционный слой с поверхностной плотностью не менее 25 кг/м2 (например, гипсовую плиту с металлическим покрытием толщиной 2 мм) так, чтобы он находился заподлицо с перегородкой. Щели между дополнительным слоем и испытываемым образцом должны быть заполнены звукопоглощающим материалом.

Выполняют измерения изоляции шума  при наличии в проеме вспомогательной перегородки только испытываемого образца. Затем выполняют измерения изоляции воздушного шума  после установки на образец дополнительного звукоизоляционного слоя.

Если разность  лежит в пределах 6 - 15 дБ, то значение величины изоляции воздушного шума испытываемым образцом RS, дБ, должно быть скорректировано по формуле

                                                                (А.1)

где  - измеренная изоляция воздушного шума образцом с дополнительным гибким слоем, дБ.

В случае если разность  меньше 6 дБ, необходимо увеличить звукоизоляцию вспомогательной перегородки.

ПРИЛОЖЕНИЕ Б
(рекомендуемое)

Требования к звукоизоляционной замазке, применяемой при испытаниях

Применяемая при испытаниях замазка должна отвечать требованиям настоящего стандарта. Установление соответствия замазки этим требованиям достигается проведением специальных испытаний.

В испытательный проем монтируют панель из силикатного стекла плотностью 2,5·103 кг/м3, модулем упругости 7·104 Н/мм2, толщиной (10,0 ± 0,3) мм и размерами 1230´1480 мм. Все щели заполняют замазкой выбранного типа и проводят измерения для определения величины показателя снижения шума (звукоизоляции) в третьоктавных полосах в диапазоне частот 1600 - 3150 Гц. Первое измерение следует выполнить не позднее 1 ч после окончания монтажа.

Результаты измерений должны соответствовать следующим требованиям при:

1600 Гц ... R = (31,1 ± 1,6) дБ;

2000 » ... R = (35,6 ± 1,2) » ;

2500 » ... R = (39,1 ± 1,1) » ;

3150 » ... R = (42,7 ± 1,8) » .

Повторное измерение следует провести через 24 ч. Отклонение результатов не должно превышать 0,5 дБ.

ПРИЛОЖЕНИЕ В
(информационное)

Сведения о разработчиках стандарта

Настоящий стандарт разработан рабочей группой исполнителей в составе:

Л.А. Борисов, д-р. техн. наук (руководитель), НИИСФ РААСН;

Г.Л. Осипов, д-р техн. наук, НИИСФ РААСН;

И.Л. Шубин, канд. техн. наук, НИИСФ РААСН;

В.Л. Анджелов, канд. техн. наук, НИИСФ РААСН;

Н.В. Шведов, Госстрой России.

Ключевые слова: оконные и дверные блоки, звукоизоляция, изоляция воздушного шума, индекс изоляции воздушного шума, лабораторные испытания.

2008-2013. ГОСТы, СНиПы, СанПиНы - Нормативные документы - стандарты.