Нормативные документы размещены исключительно с целью ознакомления учащихся ВУЗов, техникумов и училищ.
Объявления:

ГОСУДАРСТВЕННЫЙ СТАНДАРТ СОЮЗА ССР

ТРУБЫ ЖЕЛЕЗОБЕТОННЫЕ НАПОРНЫЕ
ВИБРОГИДРОПРЕССОВАННЫЕ

КОНСТРУКЦИЯ И РАЗМЕРЫ

ГОСТ 12586.1-83

МОСКВА - 1984

РАЗРАБОТАНЫ

Министерством промышленности строительных материалов СССР

Научно-исследовательским институтом бетона и железобетона (НИИЖБ) Госстроя СССР

Государственным проектным институтом «СОЮЗВОДОКАНАЛПРОЕКТ»

Министерством строительного, дорожного и коммунального машиностроения

Министерством путей сообщения

ИСПОЛНИТЕЛИ

О.И. Крикунов, М.Л. Зайченко, канд. техн. наук (руководители темы); Е.Г. Фролов, А.Л. Ционский, канд. техн. наук; В.С. Гершвальд, канд. техн. наук; В.В. Пирожников, Л.П. Хлюпин, Н.Л. Рипс, И.И. Бергер, А.И. Долгушин; В.С. Дикаревский, д-р техн. наук; О.А. Предоус, канд. техн. наук; П.П. Якубчик, канд. техн. наук; В.И. Деньщиков

ВНЕСЕНЫ Министерством промышленности строительных материалов СССР

Зам. министра И.В. Ассовский

УТВЕРЖДЕНЫ И ВВЕДЕНЫ В ДЕЙСТВИЕ Постановлением Государственного комитета СССР по делам строительства от 31 октября 1983 г. № 298

ГОСУДАРСТВЕННЫЙ СТАНДАРТ СОЮЗА ССР

ТРУБЫ ЖЕЛЕЗОБЕТОННЫЕ НАПОРНЫЕ
ВИБРОГИДРОПРЕССОВАННЫЕ

Конструкция и размеры

Reinforced-concrete vibrohydropressed
pressure pipes. Structure and dimensions

ГОСТ
12586.1-83

Постановлением Государственного комитета СССР по делам строительства от 31 октября 1983 г. № 298 срок введения установлен

с 01.01.85

Несоблюдение стандарта преследуется по закону

1. Настоящий стандарт распространяется на железобетонные предварительно напряженные напорные раструбные трубы, изготовляемые из тяжелого бетона методом виброгидропрессования, и устанавливает конструкцию труб, а также арматурных и закладных изделий к ним.

2. Трубы должны удовлетворять всем требованиям ГОСТ 12586.0-83 и требованиям, изложенным в соответствующих пунктах настоящего стандарта.

3. Технические показатели труб приведены в табл. 1.

Таблица 1

Технические показатели труб

Диаметр условного прохода трубы d, мм

Марка трубы

Класс бетона попрочности на сжатие

Расход материалов

Бетон, м3

Сталь, кг

500

ТН50-0

В40

0,53

70,8

ТН50-I

61,3

ТН50-II

44,7

ТН50-III

В30

44,7

600

ТН60-0

В40

0,76

78,6

ТН60-I

74,4

ТН60-II

52,4

ТН60-III

В30

49,3

800

ТН80-I

В40

0,99

106,6 (139,8)

ТН80-II

92,7

ТН80-III

67,2

1000

ТН100-I

1,42

186,5

ТН100-II

158,3

ТН100-III

111,4

1200

ТН120-I

1,98

287,0

ТН120-II

207,9

ТН120-III

146,1

1400

ТН140-I

2,66

441,2

ТН140-II

308,2

ТН140-III

226,9

1600

ТН160-I

3,28

593,5

ТН160-II

386,4

ТН160-III

285,7

Примечание. Расход стали для труб марки ТН80-I приведен для двух вариантов армирования (п. 4): первый вариант указан без скобок, второй - в скобках.

4. Армирование труб должно соответствовать указанному на черт. 1 и в табл. 2.

Армирование труб марки ТН80-I может производиться по двум вариантам: по первому варианту при изготовлении труб в четырехразъемных формах, по второму - в двухразъемных. Данные армирования для труб марки ТН80-I, приведенные на черт. 2 и в табл. 2, 4, 5, 7, по первому варианту указаны без скобок, по второму варианту - в скобках.

Продольная напрягаемая арматура марок П1-П5 должна располагаться равномерно по окружности.

Армирование труб

Черт. 1

Таблица 2

Размеры труб

мм

Марка трубы

a1*

a2**

a3**

ТН50-0

17

32

19

ТН50-I

16

ТН50-II

17

ТН50-III

17

ТН60-0

17

43

20

ТН60-I

17

ТН60-II

18

ТН60-III

18

ТН80-I

18 (17)

39,5

22

ТН80-II

18

ТН80-III

19

ТН100-I

18

49,5

22

ТН100-II

18

ТН100-III

19

ТН120-I

18

55

31

ТН120-II

19

ТН120-III

20

ТН140-I

18

64,5

28

ТН140-II

18

ТН140-III

19

ТН160-I

18

74

29

ТН160-II

18

ТН160-III

19

* Размеры указаны для проектного положения каркаса после опрессовки бетона трубы.

** Размеры а2, а3 - справочные

Каркасы К1¸К21

Черт. 2

5. Спецификация арматурных изделий на одну трубу приведена в табл. 3, выборка стали - в табл. 4.

Таблица 3

Спецификация арматурных изделий на одну трубу

Марка трубы

Каркас

Продольная арматура

Марка

Количество

Марка

Количество

ТН50-0

К1

1

П1

15

ТН50-I

К2

ТН50-II

К3

ТН50-III

К3

ТН60-0

К4

1

П1

14

ТН60-I

К5

ТН60-II

К6

ТН60-III

К6а

ТН80-I

К7

1

П2

20

ТН80-II

К8

ТН80-III

К9

ТН100-I

К10

1

П2

24

ТН100-II

К11

ТН100-III

К12

ТН120-I

К13

1

П3

35

ТН120-II

К14

30

ТН120-III

К15

30

ТН140-I

К16

1

П4

44

ТН140-II

К17

40

ТН140-III

К18

40

ТН160-I

К19

1

П5

54

ТН160-II

К20

50

ТН160-III

К21

50

Таблица 4

Выборка стали на одну трубу

кг

Марка трубы

Арматурная сталь по ГОСТ 7348-81

Сталь прокатная по ГОСТ 503-81

Всего

Класс Вр-II

Класс В-II

Итого

Диаметр 5 мм

Диаметр, мм

Итого

3

4

5

6

7

8

Сечение 20´0,7 мм

ТН50-0

12,5

-

51,9

-

-

-

-

51,9

63,9

6,9

70,8

ТН50-I

-

42,4

-

-

-

-

42,4

54,4

61,3

ТН50-II

25,8

-

-

-

-

-

25,8

37,8

44,7

ТН50-III

25,8

-

-

-

-

-

25,8

37,8

44,7

ТН60-0

11,2

-

60,5

-

-

-

-

60,5

71,7

6,9

78,6

ТН60-I

-

56,3

-

-

-

-

56,3

67,5

74,4

ТН60-II

34,3

-

-

-

-

-

34,3

45,5

52,4

ТН60-III

31,2

-

-

-

-

-

31,2

42,4

49,3

ТН80-I

16,0

-

80,2 (113,4)

-

-

-

-

80,2 (113,4)

96,2 (129,4)

10,4

106,6 (139,8)

ТН80-II

16,0

-

66,3

-

-

-

-

66,3

82,3

10,4

92,7

ТН80-III

16,0

40,8

-

-

-

-

-

40,8

56,8

10,4

67,2

ТН100-I

19,2

-

-

156,9

-

-

-

156,9

176,1

10,4

186,5

ТН100-II

19,2

-

-

128,7

-

-

-

128,7

147,9

10,4

158,3

ТН100-III

19,2

-

81,8

-

-

-

-

81,8

101,0

10,4

111,4

ТН120-I

28,0

-

-

-

245,2

-

-

245,2

273,2

13,8

287,0

ТН120-II

24,0

-

-

170,1

-

-

-

170,1

194,1

13,8

207,9

ТН120-III

24,0

-

108,3

-

-

-

-

108,3

132,3

13,8

146,1

ТН140-I

35,7

-

-

-

-

391,7

-

391,7

427,1

13,8

441,2

ТН140-II

32,4

-

-

-

262,0

-

-

262,0

294,4

13,8

308,2

ТН140-III

32,4

-

-

180,7

-

-

-

180,7

213,1

13,8

226,9

ТН160-I

43,8

-

-

-

-

-

532,5

532,5

576,3

17,2

593,5

ТН160-II

40,5

-

-

-

328,7

-

-

328,7

369,2

17,2

386,4

ТН160-III

40,5

-

-

228,0

-

-

-

228,0

268,5

17,2

285,7

6. Форма и размеры арматурных каркасов должны соответствовать указанным на черт. 2 и 3 и приведенным в табл. 5 и 6.

Спецификация и выборка стали на одно арматурное изделие приведены в табл. 7.

7. Продольная арматура марок П1-П5 должна вырезаться отрезками, на концах которых после установки втулок высаживают головки. Заготовочная длина отрезков, размеры головок и набор втулок должны рассчитываться и приниматься в соответствии с требованиями СНиП 3.09.01-85. В спецификации стали на одно арматурное изделие (табл. 7) приведена длина арматуры в теле бетона трубы.

Таблица 5

Размеры арматурных каркасов К1-К21

Марка каркаса

Размеры в мм

a

d1

d2

l

l1

l2

d3

m

К1

569

753

5145

490

4655

4

18

30°

К2

4

22

К3

3

20

К4

688

901

5145

570

4575

4

18

30°

К5

688

901

4

20

К6 (К6а)

687

900

3

18(20)

К7(К7а)

885

1109

5155

630

4525

4(5)

18(20)

20°

К8

885

1109

4

22

К9

884

1108

3

20

К10

1102

1340

5155

660

4495

5

18

20°

К11

1102

1340

5

22

К12

1101

1339

4

22

К13

1319

1597

5155

780

4375

6

20

15°

К14

1318

1596

5

К15

1317

1595

4

К16

1538

1846

5185

850

4335

7

20

15°

К17

1538

1846

6

22

К18

1537

1845

5

22

К19

1757

2085

5185

925

4260

8

22

12°

К20

1757

2085

6

20

К21

1756

2084

5

20

Примечание. В таблице указаны заготовочные размеры диаметров каркасов. Размеры l, l1, l2 справочные.

Разделительные полосы поз. 22¸29

Черт. 3

Таблица 6

Размеры разделительных полос

мм

Позиция

S

h

b

22

18,02

3,5

9,5

23

20,03

3,5

9,5

24

22,03

4,5

11,5

25

18,02

4,5

11,5

26

20,03

5,0

13,3

27

22,03

5,0

13,3

29

20,03

5,5

17,0

29

22,03

6,5

19,0

Примечание. Размеры разделительных полос приведены минимальными. Максимальные размеры определяются конструкцией режущего инструмента и способом изготовления полос. Допускается поз. 22 - 24 изготовлять из полосы сечением 20´0,7 мм.

Таблица 7

Спецификация и выборка стали на одно арматурное изделие

Марка изделия

Позиция

Эскиз стержня

Диаметр или сечение, мм

Длина, мм

Количество

Общая длина, м

Выборка стали

Диаметр или сечение, мм

Масса, кг

Масса изделия, кг

К1

1

______

4ВII

529300

1

529,3

4ВII

51,9

58,8

25

См. черт. 3

20´0,7

5220

12

62,64

20´0,7

6,9

К2

2

______

4

432000

1

432

4ВII

42,4

49,3

24

См. черт. 3

20´0,7

5220

12

62,64

20´0,7

6,9

К3

3

______

3ВII

469000

1

469,0

3ВII

25,8

32,7

23

См. черт. 3

20´0,7

5220

12

62,64

20´0,7

6,9

К4

4

______

4ВII

617700

1

617,7

4ВII

60,5

67,4

25

См. черт. 3

20´0,7

5220

12

62,64

20´0,7

6,9

К5

5

______

4

576500

1

576

4ВII

56,3

63,2

23

См. черт. 3

20´0,7

5220

12

62,64

20´0,7

6,9

К6 (К6а)

6 (6а)

______

3

623000 (566900)

1

623 (566,9)

3ВII

34,3

(31,2)

41,2 (38,1)

22 (23)

См. черт. 3

20´0,7

5220

12

62,64

20´0,7

6,9

К7 (К7а)

7 (7а)

______

4 (5)

818500 (736640)

1

818,5 (736,6)

4ВII (5ВII)

80,2

(113,4)

90,6 (123,8)

25 (26)

См. черт. 3

20´0,7

5220

18

93,96

20´0,7

10,4

К8

8

______

4ВII

676400

1

676,4

4ВII

66,3

76,7

24

См. черт. 3

20´0,7

5220

18

93,96

20´0,7

10,4

К9

9

______

3ВII

742700

1

742,7

3ВII

40,8

51,2

23

См. черт. 3

20´0,7

5220

18

93,96

20´0,7

10,4

К10

10

______

5ВII

1018800

1

1018,8

5ВII

156,9

167,3

25

См. черт. 3

20´0,7

5220

18

93,96

20´0,7

10,4

К11

11

______

5ВII

835600

1

835,6

5ВII

128,7

139,1

27

См. черт. 3

20´0,7

5220

18

93,96

20´0,7

10,4

К12

12

______

4ВII

835600

1

835,6

4ВII

81,8

92,2

24

См. черт. 3

20´0,7

5220

18

93,96

20´0,7

10,4

К13

13

______

6ВII

1104600

1

1104,6

6ВII

245,2

259,0

26

См. черт. 3

20´0,7

5220

24

125,.3

20´0,7

13,8

К14

14

______

5ВII

1104600

1

1104,6

5ВII

170,1

183,9

26

См. черт. 3

20´0,7

5220

24

125,.3

20´0,7

13,8

К15

15

______

4ВII

1104600

1

1104,6

4ВII

108,3

122,1

23

См. черт. 3

20´0,7

5220

24

125,.3

20´0,7

13,8

К16

16

______

7ВII

1297100

1

1297,1

7ВII

391,7

405,5

28

См. черт. 3

20´0,7

5220

24

125,.3

20´0,7

13,8

К17

17

______

6ВII

1180200

1

1180,2

6ВII

262,0

275,8

27

См. черт. 3

20´0,7

5220

24

125,.3

20´0,7

13,8

К18

18

______

5ВII

1173200

1

1173,2

5ВII

180,7

194,5

27

См. черт. 3

20´0,7

5220

24

125,.3

20´0,7

13,8

К19

19

______

8ВII

1348100

1

1348,1

8ВII

532,5

549,7

29

См. черт. 3

20´0,7

5220

30

156,6

20´0,7

17,2

К20

20

______

6ВII

1480600

1

1480,6

6ВII

328,7

345,9

26

См. черт. 3

20´0,7

5220

30

156,6

20´0,7

17,2

К21

21

______

5ВII

1480600

1

1480,6

5ВII

228,0

245,2

26

См. черт. 3

20´0,7

5220

30

156,6

20´0,7

17,2

П1

31

______

5ВрII

5193

1

5,19

5ВрII

0,8

0,8

П2

32

______

5ВрII

5205

1

5,21

5ВрII

0,8

0,8

П3

33

______

5ВрII

5208

1

5,21

5ВрII

0,8

0,8

П4

34

______

5ВрII

5239

1

5,24

5ВрII

0,8

0,8

П5

35

______

5ВрII

5240

1

5,24

5ВрII

0,8

0,8

8. Спиральная арматура поз. 1 - 21 арматурных каркасов марок К1 - К21 должна быть непрерывной на всю длину.

Два витка спиральной арматуры с обоих концов каркаса и в месте перехода цилиндрической части в коническую должны располагаться вплотную друг к другу и связываться вязальной проволокой в 3 - 4 местах, а концы арматуры длиной 400-500 мм должны быть отогнуты под углом 130 - 150° (см. черт. 2) и прикреплены к виткам каркаса вязальной проволокой в 4 - 5 местах. Допускается вместо связывания крайних витков и отгиба концов арматуры выполнять крепление этих витков зажимами, указанными на черт. 4, в четырех местах у каждого конца каркаса.

Спецификация и выборка стали на один зажим приведены в табл. 8. При применении зажимов общий расход стали на одну трубу (табл. 1) должен быть увеличен на 0,9 кг.

Зажим

Черт. 4

Таблица 8

Спецификация и выборка стали на один зажим

Позиция

Эскиз стержня

Диаметр или сечение, мм

Длина, мм

Количество

Общая длина, м

Выборка стали

Диаметр или сечение, мм

Масса, кг

Масса изделия, кг

36

См. черт. 4

______

25´5

50

2

0,1

25´5

0,1

0,12

37

Болт М5´25 по ГОСТ 7805-70

-

-

2

-

Метизы

0,02

38

Гайка М5 по ГОСТ 5927-70

-

-

2

-

 

39

Шайба М5 по ГОСТ 11371-78

-

-

2

-

 

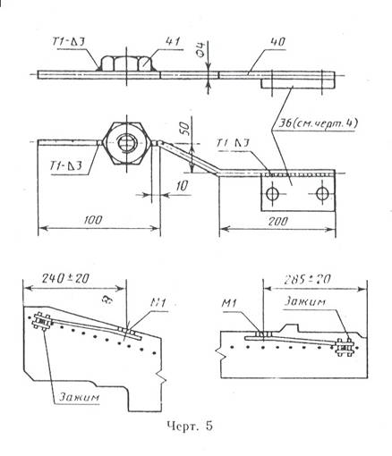
9. При установке в трубах закладных изделий марки М1, предназначенных для защиты трубопроводов от электрокоррозии, независимо от способа крепления концов спиральной арматуры (п.8) должны применяться два зажима. Закладное изделие М1 должно быть приварено к верхней пластине зажима (поз. 36) до установки его в форму. Пластины зажимов, предназначенные для установки закладного изделия М1, а также спиральная арматура в зоне крепления к ней закладного изделия должны быть тщательно очищены для обеспечения электрического контакта между ними.

Конструкция закладного изделия М1 и детали установки его в трубе приведены на черт. 5, а спецификация и выборка стали на одно закладное изделие М1 - в табл. 9.

При изготовлении труб с закладными изделиями М1 общий расход стали на одну трубу (табл. 1) должен быть увеличен на 0,37 кг.

Закладное изделие М1

Таблица 9

Спецификация и выборка стали на одно закладное изделие

Позиция

Эскиз стержня

Диаметр или сечение, мм

Длина, мм

Количество

Общая длина, м

Выборка стали

Диаметр или сечение, мм

Масса, кг

Масса изделия, кг

40

_______

4ВрI

450

1

0,45

4ВрI

0,044

0,064

41

Гайка М16 по ГОСТ 5916-70

-

-

1

-

Гайка

0,02

0,04

Примечание. Поз. 40 допускается изготовлять из проволоки класса В-I.

3 - 9. (Измененная редакция, Изм. 1).

2008-2013. ГОСТы, СНиПы, СанПиНы - Нормативные документы - стандарты.