
ГОСУДАРСТВЕННЫЙ СТАНДАРТ СОЮЗА ССР
ОКНА И БАЛКОННЫЕ ДВЕРИ ДЕРЕВЯННЫЕ
ДЛЯ МАЛОЭТАЖНЫХ
ЖИЛЫХ ДОМОВ
Типы, конструкция и размеры
ГОСТ 26601-85
Государственный строительный комитет СССР
Москва
|
ОКНА И БАЛКОННЫЕ ДВЕРИ ДЕРЕВЯННЫЕ ДЛЯ МАЛОЭТАЖНЫХ ЖИЛЫХ ДОМОВ Типы, конструкция и размеры Wooden windows and balcony doors for one-two storey dwelling houses. Types, structure and dimensions |
ГОСТ 26601-85 |
Постановлением Государственного комитета СССР по делам строительства от 7 мая 1985г. № 64 срок введения установлен
с 01.01.86
Настоящий стандарт распространяется на деревянные окна и балконные двери с двойным и тройным остеклением, предназначаемые для жилых домов высотой не более двух этажей.
Окна и балконные двери с двойным и тройным остеклением соответственно должны изготовляться со следующими показателями: приведенное сопротивление теплопередаче Ro - 0,42 и 0,56 м2°С/Вт, сопротивление воздухопроницанию Ru - 0,5 м2×ч×Па/кг при 10 Па, общий коэффициент светопропускания t - 0,52 и 0,38, индекс звукоизоляции воздушного шума Iн - 28 и 32 дБ.
1.1. Окна и балконные двери по настоящему стандарту подразделяют на серии:
РМ – с раздельными переплетами и дверными полотнами с двойным остеклением;
РСМ – с раздельно-спаренными переплетами и дверными полотнами с тройным остеклением.
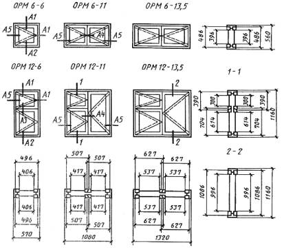
1.2. Типы и габаритные размеры окон и балконных дверей должны соответствовать указанным на черт.1.
1.3. По требованию потребителей одно-створные окна и балконные двери, в т.ч. с форточными створками, должны изготовляться также и левыми, а окна много створные с несимметричным рисунком – в негативном (зеркальном) изображении.
1.4. Устанавливают следующую структуру условного обозначения (марки) окон и балконных дверей:

В конце марки окон и балконных дверей с одинарным остеклением перед обозначением стандарта добавляют цифру 1 через тире.
Окно правое серии РМ высотой 15 и шириной 6 дм (вариант А):
ОРМ15-6А ГОСТ 26601-85
То же, левое:
ОРМ15-6АЛ ГОСТ 26601-85
Дверь балконная серии РСМ высотой 22 и шириной 7,5 дм:
БРСМ22-7,5 ГОСТ 26601-85
Окно серии РМ высотой 12 и шириной 11 дм, с несимметричным рисунком окна:
ОРМ12-11 ГОСТ 26601-85
То же, в негативном исполнении:
ОРМ12-11Н ГОСТ 26601-85
2.1. Окна и балконные двери должны изготовляться в соответствии с требованиями ГОСТ 23166 и настоящего стандарта по рабочим чертежам, утвержденным в установленном порядке.
2.2. Конструкция, форма, основные размеры и марки окон и балконных дверей серии РМ должны соответствовать указанным на черт.2-4, а размеры сечений деталей и притворов – на черт.5-12.
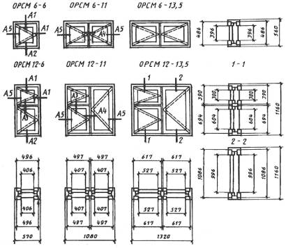
2.3. Конструкция, форма, основные размеры и марки окон и балконных дверей серии РСМ должны соответствовать указанным на черт.13-15, а размеры сечений деталей и притворов – на черт.16-23.
2.4. Размеры на общих видах окон и балконных дверей даны в свету, по наружным сторонам створок, форточек и полотен дверей и по наружным сторонам коробок.
На чертежах, приведенных в настоящем стандарте, указаны в миллиметрах размеры неокрашенных деталей и изделий.
2.5. Для остекления окон и балконных дверей следует применять стекло толщиной 2,0-2,5 мм по ГОСТ 111.
2.6. Места установки уплотняющих прокладок в притворах окон и балконных дверей указаны на чертежах сечений.
2.7. По периметру оконных и дверных коробок на боковых поверхностях допускается по требованию потребителей выборка четверти для уплотнения стыка при соединении блоков друг с другом.
2.8. Бруски коробок допускается изготовлять клееными по ширине или соединять гвоздями после антисептирования или окраски сопрягаемых поверхностей, при этом соединение не должно иметь зазоров и провесов.
2.9. В зданиях для климатических районов, где по теплотехническим расчетам не требуются окна и балконные двери с двойным остеклением, а также в неотапливаемых зданиях и помещениях должны применяться окна и балконные двери серии РМ без внутренних створок, при этом ширина сечения коробки может быть уменьшена до 74 мм.
2.10. Для остекления веранд должны применяться наружные створки окон марок ОРМ 15-6 и ОРМ 15-6А.
2.11. Примеры расположения приборов в окнах и балконных дверях приведены в приложении 1.
2.12. Спецификации стекол для окон и балконных дверей серий РМ и РСМ приведены в приложениях 2 и 3.
Типы и габаритные размеры окон и балконных дверей

Примечания:
1. Схемы изделия изображены со стороны фасада.
2. Цифры над схемами изделий означают размеры изделий в модулях (М - модуль, равный 100 мм).
3. Окна шириной 1080 мм предназначены для деревянных домов заводского изготовления, выпускаемых по типовым проектам с панелями шириной 1200 мм.
Серия РМ
Конструкция, форма, основные размеры и марки окон и балконных дверей с двойным остеклением


Черт.3
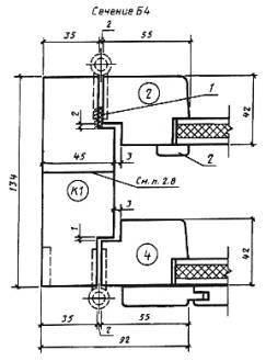
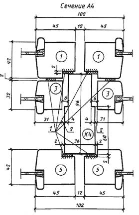
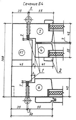
Сечения по притворам окон и балконных дверей с двойным остеклением

|
Сечения |
a |
б |
Детали |
|
|
А1 |
45 |
82 |
1 |
3 |
|
Б1 |
55 |
92 |
2 |
4 |

Черт.6

Черт.7

Черт.8

1 - твердая ДВП марки Т группы А толщиной 3,2-4 мм по ГОСТ 4598; 2 - мягкая ДВП толщиной 8 мм по ГОСТ 4598; 3 -пергамин по ГОСТ 2697; 4 - обшивка типа 2 по
ГОСТ 8242; 5 - раскладка; 6 уплотняющие прокладки по ГОСТ 10174
Черт.9

Черт.10

1 - уплотняющая прокладка; 2 - раскладка
Черт.11

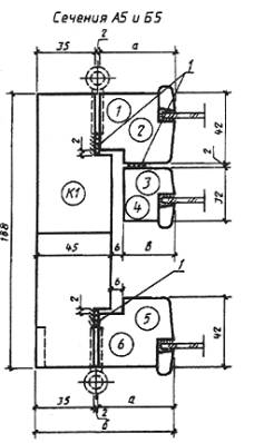
|
Сечения |
a |
б |
Детали |
|
|
А5 |
45 |
82 |
1 |
3 |
|
Б5 |
55 |
92 |
2 |
4 |
СЕРИЯ РСМ
Конструкция, форма, основные размеры и марки окон и балконных дверей с тройным остеклением


Черт.14

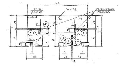
Сечения по притворам окон и балконных дверей с тройным остеклением
Ё 1

|
Сечения |
а |
б |
в |
Детали |
||
|
А1 |
45 |
82 |
31 |
1 |
3 |
5 |
|
Б1 |
55 |
92 |
41 |
2 |
4 |
6 |

Черт.17

1 - уплотняющие прокладки
Черт.18

Черт.19

1 - твердая ДВП марки Т группы А толщиной 3,2-4 мм по ГОСТ 4598-86; 2 - мягкая ДВП толщиной 8 мм по ГОСТ 4598-86; 3 - пергамин по ГОСТ 2697-83;; 4 - обшивка типа 2 по ГОСТ 8242-75; 5 - раскладки; 6 уплотняющие прокладки по ГОСТ 10174-72.
Черт.20

1- уплотняющая прокладка; 2 - раскладки
Черт.21

1 - уплотняющие прокладки; 2 - раскладки
Черт.22

1 - уплотняющие прокладки
|
Сечения |
а |
б |
в |
Детали |
||
|
А5 |
45 |
82 |
31 |
1 |
3 |
5 |
|
Б5 |
55 |
92 |
41 |
2 |
4 |
6 |
Рекомендуемое
ПРИМЕРЫ РАСПОЛОЖЕНИЯ ПРИБОРОВ В ОКНАХ И БАЛКОННЫХ ДВЕРЯХ

1 - ПН1-85Л; 2 - завертка накладная ЗФ2П для наружной форточки; 3 - задвижка накладная ЗТ; 4 - ручка РС80; 5 - ПН5-60; 6 - стяжка СТ; 7 - ПН7; 8 - ПН1-110П
Примечания:
1. Приборы для окон и дверей должны соответствовать ГОСТ 538-78, ГОСТ 5087-80, ГОСТ 5088-78, ГОСТ 5090-86 и ГОСТ 5091-78.
2. Ручки-скобы устанавливают на наружных и внутренних створках и полотнах.
3. Наружные створки должны оснащаться ветровыми крючками.
Справочное
СПЕЦИФИКАЦИЯ СТЕКОЛ ДЛЯ ОКОН И БАЛКОННЫХ ДВЕРЕЙ СЕРИИ РМ
|
Марка |
Размер, мм |
Количество |
|
|
Высота |
Ширина |
||
|
ОРМ 6-6 |
410 |
420 |
2 |
|
ОРМ 6-11 |
410 |
430 |
4 |
|
ОРМ 6-13,5 |
410 |
550 |
4 |
|
ОРМ 12-6 |
315 630 |
420 420 |
2 2 |
|
ОРМ 12-11 |
315 630 1010 |
430 430 430 |
2 2 2 |
|
ОРМ 12-13,5 |
315 630 1010 |
550 550 550 |
2 2 2 |
|
ОРМ 15-6 |
315 930 |
420 420 |
2 2 |
|
ОРМ 15-11 |
315 630 1310 |
430 430 430 |
2 2 2 |
|
ОРМ 15-13,5 |
315 930 1310 |
550 550 550 |
2 2 2 |
|
ОРМ 15-6 |
1310 |
420 |
2 |
|
БРМ 22-7,5 |
1310 |
550 |
2 |
СПЕЦИФИКАЦИЯ СТЕКОЛ ДЛЯ ОКОН И БАЛКОННЫХ ДВЕРЕЙ СЕРИИ РСМ
|
Марка |
Размер, мм |
Количество |
|
|
Высота |
Ширина |
||
|
ОРСМ 6-6 |
410 |
420 |
3 |
|
ОРСМ 6-11 |
410 |
420 |
6 |
|
ОРСМ 6-13,5 |
410 |
540 |
6 |
|
ОРСМ 12-6 |
315 620 |
420 420 |
3 3 |
|
ОРСМ 12-11 |
315 620 1010 |
420 420 420 |
3 3 3 |
|
ОРСМ 12-13,5 |
315 620 1010 |
540 540 540 |
3 3 3 |
|
ОРСМ 15-6 |
315 920 |
420 420 |
3 3 |
|
ОРСМ 15-11 |
315 920 1310 |
420 420 420 |
3 3 3 |
|
ОРСМ 15-13,5 |
315 920 1310 |
540 540 540 |
3 3 3 |
|
ОРСМ 15-6А |
1310 |
420 |
3 |
|
БРСМ 22-7,5 |
1310 |
550 |
3 |
СОДЕРЖАНИЕ