Нормативные документы размещены исключительно с целью ознакомления учащихся ВУЗов, техникумов и училищ.
Объявления:

МЕЖГОСУДАРСТВЕННЫЙ СТАНДАРТ

ЕДИНАЯ СИСТЕМА КОНСТРУКТОРСКОЙ ДОКУМЕНТАЦИИ

ОСНОВНЫЕ НАДПИСИ

ГОСТ 2.104-68

МОСКВА

2002

 

МЕЖГОСУДАРСТВЕННЫЙ СТАНДАРТ

Единая система конструкторской документации

ОСНОВНЫЕ НАДПИСИ

Unified system for design documentation.
Basic inscriptions

ГОСТ
2.104-68*

Взамен
ГОСТ 5293-60
в части разд. I

Утвержден Комитетом стандартов, мер и измерительных приборов при Совете Министров СССР в декабре 1967 г. Дата введения установлена

1971-01-01

1. Настоящий стандарт устанавливает формы, размеры, порядок заполнения основных надписей и дополнительных граф к ним в конструкторских документах, предусмотренных стандартами Единой системы конструкторской документации.

Стандарт соответствует СТ СЭВ 365-76 и СТ СЭВ 140-74 в части размещения основной надписи, разделения поля чертежа на зоны и оставления поля для подшивки.

2. Содержание, расположение и размеры граф основных надписей, дополнительных граф к ним, а также размеры рамок на чертежах и схемах должны соответствовать форме 1, а в текстовых документах - формам 2, 2а и .

Допускается для последующих листов чертежей и схем применять форму 2а.

(Измененная редакция, Изм. № 1, 2).

3. Основные надписи, дополнительные графы к ним и рамки выполняют сплошными основными и сплошными тонкими линиями по ГОСТ 2.303-68.

4. Основные надписи располагают в правом нижнем углу конструкторских документов.

На листах формата А4 по ГОСТ 2.301-68 основные надписи располагаются вдоль короткой стороны листа.

Таблица изменений в основной надписи при необходимости может продолжаться вверх или влево от основной надписи (при наличии графы 33 - влево от нее).

При расположении таблицы изменений слева от основной надписи наименования граф 14 - 18 повторяют.

Расположение дополнительных граф показано в приложении 1.

5. Для быстрого нахождения на чертеже (схеме) составной части изделия или его элемента рекомендуется разбивать поле чертежа (схемы) на зоны. Отметки, разделяющие чертеж (схему) на зоны, рекомендуется наносить на расстоянии, равном одной из сторон формата А4 (черт. 1 и 2 приложения 2).

Отметки наносят:

по горизонтали - арабскими цифрами справа налево;

по вертикали - прописными буквами латинского алфавита снизу вверх.

Зоны обозначают сочетанием цифр и букв, например: 1А, 2А, 3А, 1В, 2В, 3В и т.д.

6. На чертежах (схемах) с одним обозначением, выполненных на нескольких листах, нумерация зон по горизонтали должна быть сквозной в пределах всех листов.

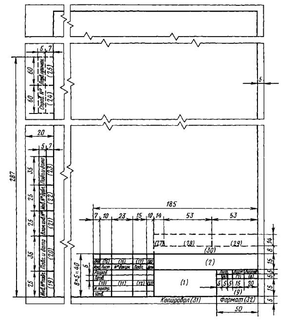
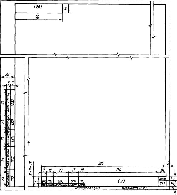
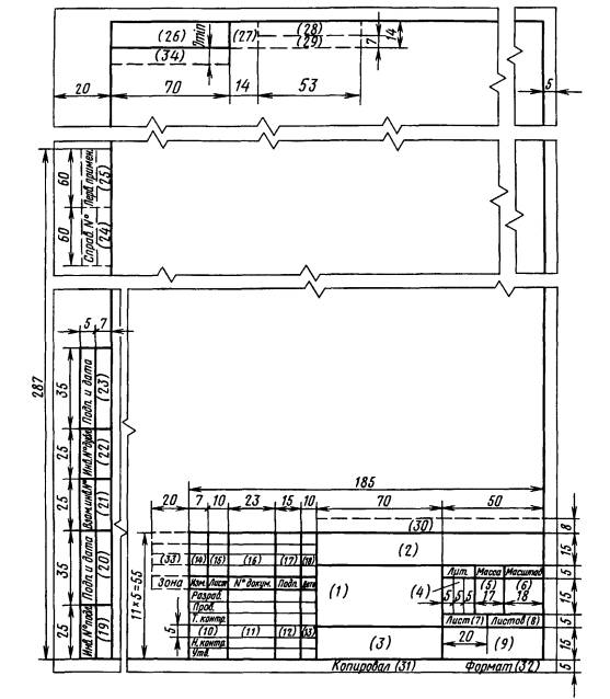
7. В графах основной надписи и дополнительных графах (номера граф на формах показаны в скобках) указывают:

в графе 1 - наименование изделия (в соответствии с требованиями ГОСТ 2.109-73), а также наименование документа, если этому документу присвоен код. Для изделий народнохозяйственного назначения допускается не указывать наименование документа, если его код определен ГОСТ 2.102-68, ГОСТ 2.601-95, ГОСТ 2.602-95, ГОСТ 2.701-84;

в графе 2 - обозначение документа;

в графе 3 - обозначение материала детали (графу заполняют только на чертежах деталей);

в графе 4 - литеру, присвоенную данному документу (графу заполняют последовательно, начиная с крайней левой клетки).

Допускается в рабочей конструкторской документации литеру проставлять только в спецификациях и технических условиях.

Для изделий, разрабатываемых по заказу Министерства обороны, перечень конструкторских документов, на которых должна обязательно проставляться литера, согласуется с заказчиком (представителем заказчика);

в графе 5 - массу изделия по ГОСТ 2.109-73;

в графе 6 - масштаб (проставляется в соответствии с ГОСТ 2.302-68 и ГОСТ 2.109-73);

в графе 7 - порядковый номер листа (на документах, состоящих из одного листа, графу не заполняют);

в графе 8 - общее количество листов документа (графу заполняют только на первом листе);

в графе 9 - наименование или различительный индекс предприятия, выпускающего документ (графу не заполняют, если различительный индекс содержится в обозначении документа);

в графе 10 - характер работы, выполняемой лицом, подписывающим документ, в соответствии с формами 1 и 2. Свободную строку заполняют по усмотрению разработчика, например: «Начальник отдела», «Начальник лаборатории», «Рассчитал»;

в графе 11 - фамилии лиц, подписавших документ;

в графе 12 - подписи лиц, фамилии которых указаны в графе 11.

Подписи лиц, разработавших данный документ и ответственных за нормоконтроль, являются обязательными.

При отсутствии титульного листа допускается подпись лица, утвердившего документ, размещать на свободном поле первого или заглавного листа документа в порядке, установленном для титульных листов по ГОСТ 2.105-95.

Если необходимо на документе наличие визы должностных лиц, то их размещают на поле для подшивки первого или заглавного листа документа;

в графе 13 - дату подписания документа;

в графах 14 - 18 - графы таблицы изменений, которые заполняют в соответствии с требованиями ГОСТ 2.503-90;

в графе 19 - инвентарный номер подлинника по ГОСТ 2.501-88;

в графе 20 - подпись лица, принявшего подлинник в отдел (бюро) технической документации, и дату приемки;

в графе 21 - инвентарный номер подлинника, взамен которого выпущен данный подлинник по ГОСТ 2.503-90;

в графе 22 - инвентарный номер дубликата по ГОСТ 2.502-68;

в графе 23 - подпись лица, принявшего дубликат в отдел (бюро) технической документации, и дату приемки;

в графе 24 - обозначение документа, взамен или на основании которого выпущен данный документ. Допускается также использовать графу для указания обозначения документа аналогичного изделия, для которого ранее изготовлена технологическая оснастка, необходимая для данного изделия;

в графе 25 - обозначение соответствующего документа, в котором впервые записан данный документ;

в графе 26 - обозначение документа, повернутое на 180° для формата А4 и для форматов больше А4 при расположении основной надписи вдоль длинной стороны листа и на 90° для форматов больше А4 при расположении основной надписи вдоль короткой стороны листа;

в графе 27 - знак, установленный заказчиком в соответствии с требованиями нормативно-технической документации и проставляемый представителем заказчика;

в графе 28 - номер решения и год утверждения документации соответствующей литеры;

в графе 29 - номер решения и год утверждения документации;

Форма 1

Основная надпись для чертежей и схем

Форма 2

Основная надпись для текстовых конструкторских документов (первый или заглавный лист)

Форма 2а

Основная надпись для чертежей (схем) и текстовых конструкторских документов (последующие листы)

Форма 2б

Основная надпись для текстовых конструкторских документов при двустороннем светокопировании (последующие листы)

в графе 30 - индекс заказчика в соответствии с нормативно-технической документацией;

в графе 31 - подпись лица, копировавшего чертеж;

в графе 32 - обозначение формата листа по ГОСТ 2.301-68;

в графе 33 - обозначение зоны, в которой находится изменяемая часть изделия;

в графе 34 - номера авторских свидетельств на изобретения, использованные в данном изделии.

Примечания:

1. Графа 26 на форме 2а является обязательной только для чертежей и схем.

2. Графы, выполненные штриховой линией, вводят при необходимости. Графы 27 - 30 обязательны для документов, утверждаемых заказчиком.

3. При использовании для последующих листов чертежей и схем формы 1 графы 1, 3, 4, 5, 6, 9 не заполняют.

4. В графах 13, 20, 23 при написании календарной даты год указывают двумя последними цифрами.

(Измененная редакция, Изм. № 1, 2, 3, 4, 5, 7, Поправка).

ПРИЛОЖЕНИЕ 1

Для формата А4

Для форматов больше А4 при расположении основной надписи вдоль длинной стороны листа

Для формата больше А4 при расположении основной надписи вдоль короткой стороны листа

1 - основная надпись, 2 - дополнительные графы

ПРИЛОЖЕНИЕ 2

ПРИМЕРЫ РАЗБИВКИ ПОЛЯ ЧЕРТЕЖА НА ЗОНЫ

Черт. 1

Черт. 2

ПРИЛОЖЕНИЕ 3

Справочное

Информационные данные о соответствии ГОСТ 2.104-68 и СТ СЭВ 365-76, СТ СЭВ 140-74:

п. 1 ГОСТ 2.104-68 соответствует вводной части СТ СЭВ 365-76;

п. 2 соответствует разд. 1 СТ СЭВ 365-76 и подразделу 2.5 СТ СЭВ 140-74;

п. 4 соответствует подразделу 2.3 СТ СЭВ 140-74;

п. 5 соответствует подразделу 2.4 СТ СЭВ 140-74;

п. 7 соответствует разд. 2 СТ СЭВ 365-76.

Формы 1, 2, 2a, 2б соответствуют разделу 2 СТ СЭВ 365-76.

2008-2013. ГОСТы, СНиПы, СанПиНы - Нормативные документы - стандарты.