
ГОСУДАРСТВЕННЫЙ СТАНДАРТ СОЮЗА ССР
Ворота
деревянные распашные
для производственных зданий
и сооружений
Технические условия
ГОСТ 18853-73
государственный комитет ссср по стандартам
Москва
ГОСУДАРСТВЕННЫЙ СТАНДАРТ СОЮЗА ССР
|
Ворота деревянные распашные для производственных зданий и сооружений Технические условия Swing wooden gates for industrial buildings and structures. Specifications |
ГОСТ
|
Постановлением Государственного комитета Совета Министров СССР по делам строительства от 29 мая 1973 г. № 79 срок введения установлен
с 01.07.74
Настоящий стандарт распространяется на деревянные распашные ворота для зданий и сооружений сельскохозяйственных и промышленных предприятий с размерами по ширине и высоте не более 3 м.
Стандарт не распространяется на ворота специального назначения.
(Измененная редакция, Изм. № 1).
1.1. Ворота деревянные распашные подразделяют на глухие и с калиткой.
Ворота состоят из левого и правого полотен.
Калитка в воротах должна быть в правом полотне.
Открывание ворот и калиток должно быть наружу, только правое, с притвором в четверть.
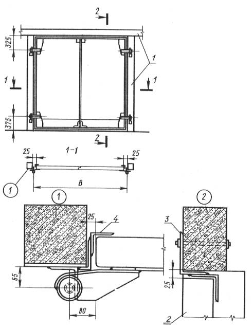
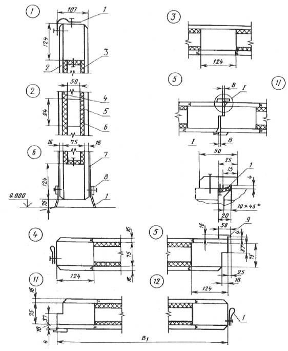
1.2. Размеры ворот должны соответствовать указанным на черт. 1 и в табл. 1.
Схемы ворот
Черт. 1
Таблица 1
Размеры, мм
|
В |
Н |
В1 |
b |
h |
|
|
ВРГ30-30 |
2950 |
2900 |
1480 |
- |
- |
|
ВРГ30-27 |
2950 |
2600 |
1480 |
- |
- |
|
ВРГ24-24 |
2350 |
2300 |
1180 |
- |
- |
|
ВРК30-30 |
2950 |
2900 |
1480 |
800 |
1800 |
|
ВРК30-27 |
2950 |
2600 |
1480 |
800 |
1800 |
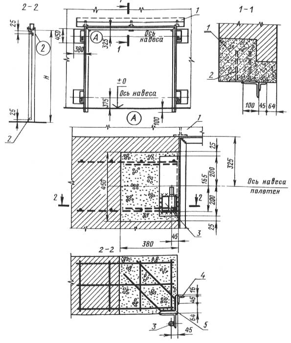
1.3. Общий вид ворот, форма и размеры сечений деталей ворот, а также размер зазора в притворе калитки должны соответствовать указанным на черт. 2 - 4.
1.2, 1.3. (Измененная редакция, Изм. № 1).
Общий вид ворот
Глухих

С калиткой
Сечения элементов приведены на черт. 3 и 4.
Форма и размеры сечений деталей ворот с глухими полотнами
1 - листовая техническая резина толщиной 3 мм по ГОСТ 7338-77; 2,3 - наружная и внутренняя обшивка; 4 - оберточная бумага по ГОСТ 8273-75; 5 - упаковочная битумная бумага по ГОСТ 515-77; 6 - ДВП по ГОСТ 4598-74; 7 - тонколистовая оцинкованная сталь по ГОСТ 14918-80; 8 - стальная лента 20 ´ 2 мм по ГОСТ 6009-74; 9 - нащельник
Примечание. Уплотнения притворов должны выполняться с обеих сторон полотна.
Форма и размеры сечений деталей ворот с калиткой
Черт. 4
Примечание. Уплотнения притворов калитки должны выполняться в соответствии с узлом 1 на черт. 3.
1.4. (Исключен, Изм. № 1).
1.5. Предельные отклонения от размеров полотен ворот, калиток и деталей каркаса указаны в табл. 2.
Таблица 2
|
Пред. откл., мм |
|||
|
по высоте |
по ширине |
по толщине |
|
|
Полотна ворот |
±3 |
±3 |
±2 |
|
Калитки |
±2 |
±2 |
±1 |
|
Детали каркаса |
- |
±2 |
±1 |
1.6. (Исключен, Изм. № 1).
1.7. Все размеры на чертежах приведены для неокрашенных деталей и изделий.
1.8. Условное обозначение ворот должно состоять из букв ВР (ворота распашные), Г (глухие) или К (с калиткой), двух чисел (через тире), означающих ширину и высоту проема в дециметрах, буквы Н для неутепленных ворот и обозначения настоящего стандарта.
Пример условного обозначения ворот распашных глухих шириной 30 и высотой 27 дм:
ВРГ30-27 ГОСТ 18853-73
То же, ворот с калиткой:
ВРК30-27 ГОСТ 18853-73
То же, ворот неутепленных:
ВРК30-27 Н ГОСТ 18853-73
(Измененная редакция, Изм. № 1).
2.1. Полотна ворот и калиток состоят из деревянных каркасов, обшитых с двух сторон по вертикали строгаными досками толщиной 16 мм и шириной от 50 до 120 мм, соединенными между собой по кромке в четверть или паз и гребень по ГОСТ 9330-76.
Ширина досок обшивки в комплекте ворот, состоящем из левого и правого полотен, должна быть одинаковой.
2.2. Допускается обшивка каркасов полотен ворот и калиток березовой фанерой марки ФСФ толщиной 6 мм не ниже сорта В/ВВ по ГОСТ 3916.1 или ГОСТ 3916.2.
Фанеру к каркасу полотен ворот крепят на клеях повышенной водостойкости и прижимают гвоздями длиной не менее 50 мм, располагаемыми на расстоянии 150 - 200 мм друг от друга.
На каждой стороне полотна должно быть более одного соединения листов фанеры. Соединения следует располагать на бруске каркаса.
2.3. Каркасы полотен ворот и калиток обшивают досками со стороны помещения по слою упаковочной битумной бумаги, а с наружной стороны - по слою оберточной бумаги (масса 1 м2 бумаги не должна быть менее 70 г).
Доски обшивки крепят к каркасам полотен ворот и калиток гвоздями длиной не менее 50 мм.
2.4. Между обшивками, внутри каркаса полотен ворот и калиток укладывают утеплитель, как указано на черт. 3 и 4.
В качестве утеплителя применяют изоляционные ДВП толщиной 12 мм по ГОСТ 4598-74.
Допускается применение и других теплоизоляционных материалов при условии отсутствия их усадки при ударах и сотрясениях ворот.
По требованию потребителей допускается изготовление неутепленных ворот с односторонней обшивкой.
Допускается заполнение утеплителем всей воздушной полости между обшивками.
(Измененная редакция, Изм. № 1).
2.5. Детали полотен ворот и калиток должны изготовляться из пиломатериалов хвойных пород не ниже 3-го сорта по ГОСТ 8486-66.
На лицевых поверхностях изделий обзол не допускается.
На нелицевых поверхностях изделий обзол должен быть очищен от коры и луба.
2.6. Сучки частично сросшиеся, несросшиеся, загнившие, гнилые табачные, а также смоляные кармашки в деталях обшивки должны быть плотно (на клее повышенной водостойкости) заделаны пробками или планками, а червоточины, отщепы и выколы - синтетическими замазками.
Размеры пробок не должны превышать размеров сучков, допускаемых для пиломатериалов 3-го сорта по ГОСТ 8486-66.
2.7. Влажность древесины деталей полотен ворот не должна быть более 18 абс. %.
Влажность древесины заделок должна быть на 2 - 3 абс. % ниже влажности древесины деталей.
2.8. Детали ворот могут изготовляться клееными по сечению и длине на клеях повышенной водостойкости. Соединения по длине должны быть выполнены на зубчатый шип по ГОСТ 9330-76.
Прочность клеевых соединений должна быть не менее, кгс/см2:
на скалывание вдоль волокон..................................................... 60
на изгиб деталей, склеенных на зубчатый шип......................... 150
Предприятие-изготовитель обязано проверить прочность клеевых соединений не реже одного раза в месяц и при получении каждой новой партии клея.
2.9. Угловые соединения брусков каркасов полотен ворот и калиток должны быть выполнены на двойные открытые сквозные шипы; соединения горизонтальных и вертикальных брусков, образующих притвор калитки, - на серединный сквозной одинарный шип.
Каркасы полотен ворот и калиток собирают на клеях повышенной водостойкости с креплением нагелями.
Провесы в местах соединений брусков каркасов не должны превышать ± 0,5 мм.
Бруски под обшивку следует крепить гвоздями к брускам каркаса.
2.10. Нащельники следует устанавливать на клеях повышенной водостойкости и прикреплять шурупами, имеющими антикоррозионное покрытие, с шагом 250 мм.
2.11. Изделия и их элементы должны иметь правильную геометрическую форму.
Отклонение от прямолинейности деталей не должно быть более 2 мм по всей длине. Отклонение от плоскостности полотен и калиток не должно быть более 3 мм по всей их поверхности.
2.12. Шероховатость лицевых поверхностей обшивки не должна быть более Rm 320 мкм, брусков каркаса - Rm 500 мкм по ГОСТ 7016-82.
2.13. Поверхности ворот должны иметь защитно-декоративное покрытие атмосферостойкими лакокрасочными материалами и соответствовать требованиям V класса по ГОСТ 24404-80. Допускается по согласованию изготовителя с потребителем поставка ворот с огрунтованными полотнами.
2.11 - 2.13. (Измененная редакция, Изм. № 1).
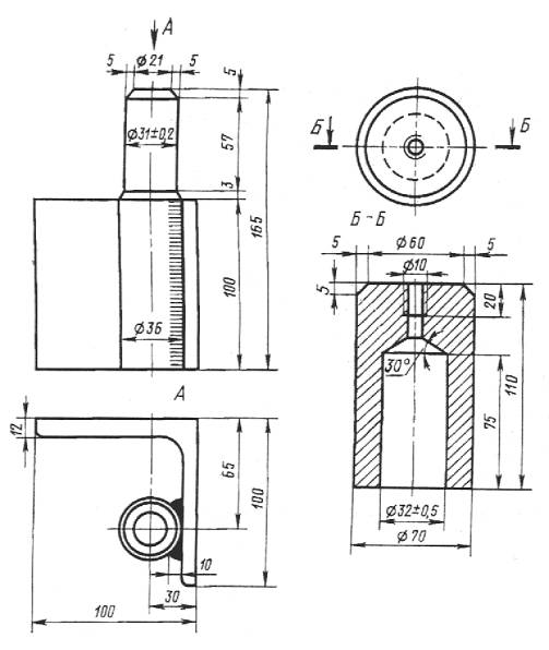
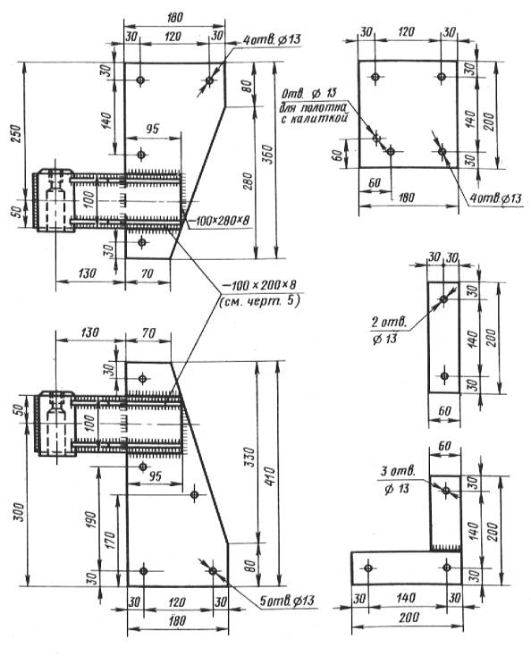
2.14. Форма и размеры металлических накладок и навесов должны соответствовать указанным на черт. 5 - 7.
Форма и размеры стальных накладок и навесов
а) общий вид стальных накладок с навесами
1 - деталь 1; 2 - деталь 2
Примечания:
1. Стальные накладки приведены на черт. 6.
2. Детали 1 и 2 приведены на черт. 7.
Черт. 5
б) стальные накладки
Примечания:
1. Накладки выполняют из стали толщиной 8 мм.
2. На черт. 5 и 6 стальные накладки и навесы показаны для левого полотна ворот; для правого полотна изображение - обратно чертежу (зеркальное).
Черт. 6
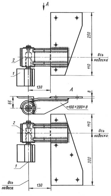
в) детали навесов
Деталь 1 Деталь 2
Примечание. Деталь 1 приваривают к закладной детали колонны или стены, деталь 2 - к металлическим накладкам полотен ворот
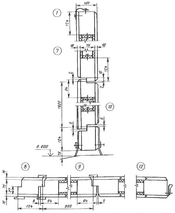
2.15. Крепление металлических накладок и навесов к полотнам ворот должно производиться, как указано на черт. 8 и 9.
Крепление металлических накладок и навесов
а) в глухих полотнах
Болты М12´120 - по ГОСТ 7798-70
б) в полотнах с калиткой
Болты М12´120 по ГОСТ 7798-70.
Черт. 9
2.16. Накладки и навесы для установки их на полотна ворот должны иметь антикоррозионное покрытие. Допускается окраска их масляной краской за два раза.
2.17. Калитка должна быть навешена на две петли типа ПН1-130 по ГОСТ 5088-78. Петли устанавливают на расстоянии 200 мм от верха и низа полотна калитки.
2.18. Нижняя часть ворот должна быть защищена с обеих сторон полосами из оцинкованной стали толщиной 0,5 - 1,0 мм на высоту 250 - 300 мм.
2.19. Ворота должны поставляться предприятием-изготовителем в комплекте, состоящем из левого и правого полотен с прикрепленными к ним металлическими навесами и накладками, с навешенными на петли калитками и резиновыми уплотнителями притворов.
Детали навесов, привариваемые к закладным деталям при заполнении проемов, должны быть упакованы в тару и поставлены заказчику в комплекте с изделиями.
(Измененная редакция, Изм. № 1).
2.20. (Исключен, Изм. № 1).
2.21. Примеры установки ворот в железобетонных и кирпичных стенах приведены в приложениях 1 и 2.
(Измененная редакция, Изм. № 1).
2.22. Ворота должны быть поштучно приняты отделом технического контроля предприятия-изготовителя.
2.23. Навесы, гвозди, шурупы, болты и другие крепежные изделия должны иметь антикоррозионное покрытие.
(Введен дополнительно, Изм. № 1).
3.1. Ворота принимают партиями. Объем партии устанавливают по согласованию изготовителя с потребителем.
(Измененная редакция, Изм. № 1).
3.2. Для контрольной проверки потребителем качества ворот от каждой партии отбирают 3 % ворот, но не менее 2 шт.
Если в результате проверки ворота не будут соответствовать хотя бы одному из требований настоящего стандарта, производят поштучно приемку ворот.
3.3. Размеры, отклонения от формы проверяют с погрешностью до 1 мм металлическим измерительным инструментом; качество покрытия проверяют визуально; требования к материалам - по НТД, определяющей их качество.
(Измененная редакция, Изм. № 1).
3.4. Влажность древесины ворот определяют по ГОСТ 16588-79 или влагомером.
3.5. Прочность клеевых соединений ворот проверяют по ГОСТ 15613.1-77 и ГОСТ 15613.4-78, водостойкость - по ГОСТ 17005-82.
3.6. Шероховатость лицевых поверхностей ворот определяют по ГОСТ 15612-78.
3.7. (Исключен, Изм. № 1).
4.1. На боковой кромке каждого изделия должны быть несмываемой краской нанесены: товарный знак предприятия-изготовителя, адрес предприятия-изготовителя, условное обозначение ворот, масса и дата выпуска изделия.
(Измененная редакция, Изм. № 1).
4.2. Ворота должны быть рассортированы по маркам и храниться в закрытом складе установленными на ребро, в вертикальном положении.
4.3. При хранении и транспортировании ворот должны быть приняты меры к предохранению их от механических повреждений, увлажнения и загрязнения.

1 - железобетонный каркас; 2 - полотно ворот; 3 уголок 150´100´10; 4 уголок обрамления 45´45´5

1 - железобетонная перемычка по проекту; 2 - закладная деталь перемычки; 3 - деталь 1; 4 - уголок обрамления 45´45´5; 5 - закладная деталь
Деталь 1 приведена на черт. 7
ИНФОРМАЦИОННЫЕ ДАННЫЕ
1. РАЗРАБОТАН
Всесоюзным проектным и научно-исследовательским институтом типового и экспериментального проектирования сельскохозяйственных производственных комплексов и предприятий биологической промышленности (Гипронисельхоз) Министерства сельского хозяйства СССР
Центральным научно-исследовательским и проектным институтом по планировке и застройке сельских населенных мест и жилищно-гражданскому строительству на селе (ЦНИИЭПграждансельстрой) Государственного комитета по гражданскому строительству и архитектуре при Госстрое СССР
РАЗРАБОТЧИКИ
И.М. Беркович, И.А. Колодный, Л.Н. Крейндлин (руководители темы), Н.П. Птицын, Г.В. Левушкин
ВНЕСЕН Министерством сельского хозяйства СССР
2. ВВЕДЕН ВПЕРВЫЕ
3. УТВЕРЖДЕН И ВВЕДЕН В ДЕЙСТВИЕ Постановлением Государственного комитета Совета Министров СССР по делам строительства от 29.05.73 № 79
4. ССЫЛОЧНЫЕ НОРМАТИВНО-ТЕХНИЧЕСКИЕ ДОКУМЕНТЫ
|
Обозначение НТД, на которой дана ссылка |
Номер пункта |
|
ГОСТ 3916.1-89 |
|
|
ГОСТ 15613.1-84 |
|
|
ГОСТ 15613.4-78 |
|
5. ПЕРЕИЗДАНИЕ с Изменением № 1, утвержденным в апреле 1984 г. (ИУС 10-84)
СОДЕРЖАНИЕ