ГОСТ 379-95
МЕЖГОСУДАРСТВЕННЫЙ СТАНДАРТ
КИРПИЧ И КАМНИ СИЛИКАТНЫЕ
ТЕХНИЧЕСКИЕ УСЛОВИЯ
МЕЖГОСУДАРСТВЕННАЯ
НАУЧНО-ТЕХНИЧЕСКАЯ КОМИССИЯ
ПО СТАНДАРТИЗАЦИИ И
ТЕХНИЧЕСКОМУ НОРМИРОВАНИЮ
В СТРОИТЕЛЬСТВЕ (МНТКС)
Предисловие
1 РАЗРАБОТАН АО ВНИНстром им. П. П. Будникова с участием ЦНИИСК им. В. А. Кучеренко, НИИСФ и АО "Воронежстройматериалы" Российской Федерации
ВНЕСЕН Минстроем России
2 ПРИНЯТ Межгосударственной научно-технической комиссией по стандартизации и техническому нормированию в строительстве (МНТКС) 19 апреля 1995 г.
За принятие проголосовали:
|
Наименование государства |
Наименование органа государственного управления строительством |
|
Республика Армения Республика Казахстан Кыргызская Республика Республика Молдова Российская Федерация Республика Таджикистан Республика Узбекистан |
Госупрархитектуры Республики Армения Минстрой Республики Казахстан Госстрой Кыргызской Республики Минархстрой Республики Молдова Минстрой России Госстрой Республики Таджикистан Госкомархитектстрой Республики Узбекистан |
3 ВВЕДЕН В ДЕЙСТВИЕ с 1 июля 1996 г. в качестве государств венного стандарта Российской Федерации Постановлением Минстроя России от 4 декабря 1995 г. № 18-102
4 ВЗАМЕН ГОСТ 379-79
Содержание
3 Основные параметры и размеры
4.2 Требования к сырью и материалам
7 Транспортирование и хранение
Приложение А Виды пустотелых изделий
Приложение Б Перечень материалов, применяемых при производстве силикатных изделий
МЕЖГОСУДАРСТВЕННЫЙ СТАНДАРТ
КИРПИЧ И КАМНИ СИЛИКАТНЫЕ
Технические условия
Silicate brick and stones.
Specifications
Дата введения 1996-07-01
Настоящий стандарт распространяется на силикатные кирпич и камни (далее - изделия), изготовляемые способом прессования увлажненной смеси из кремнеземистых материалов и извести или других известесодержащих вяжущих с применением пигментов и без них с последующим твердением под действием насыщенного пара в автоклаве.
Кирпич и камни применяют для кладки каменных и армокаменных наружных и внутренних стен зданий и сооружений, а также для их облицовки из лицевых изделий.
Требования, изложенные в пунктах 3.1, 3.2, 3.3.1, 3.3.3 - 3.3.5, 4.1.1.4 - 4.1.1.9, 4.1.2 - 4.1.5, 4.1.9, разделах 5 и 6, являются обязательными.
Поправка. ИУС 10-96 г.
В настоящем стандарте использованы ссылки на следующие стандарты:
ГОСТ 162-90 Штангенглубиномеры. Технические условия
ГОСТ 166-89 Штангенциркули. Технические условия
ГОСТ 427-75 Линейки измерительные металлические. Технические условия
ГОСТ 2228-81 Бумага мешочная. Технические условия
ГОСТ 3560-73 Лента стальная упаковочная. Технические условия
ГОСТ 3749-77 Угольники поверочные 90°. Технические условия
ГОСТ 7025-91 Кирпич и камни керамические и силикатные. Методы определения водопоглощения, плотности и контроля морозостойкости.
ГОСТ 8273-75 Бумага оберточная Технические условия
ГОСТ 8462-85 Материалы стеновые. Методы определения пределов прочности при сжатии и изгибе
ГОСТ 10354-82 Пленка полиэтиленовая Технические условия
ГОСТ 14192-77 Маркировка грузов
ГОСТ 15846-79 Продукция, отправляемая в районы Крайнего Севера и труднодоступные районы. Упаковка, маркировка, транспортирование и хранение
ГОСТ 18242-72 Статистический приемочный контроль по альтернативному признаку. Планы контроля
ГОСТ 18343-80 Поддоны для кирпича и керамических камней. Технические условия
ГОСТ 23421-79 Устройство для пакетной перевозки силикатного кирпича автомобильным транспортом. Основные параметры и размеры. Технические требования
ГОСТ 24332-88 Кирпич и камни силикатные. Ультразвуковой метод определения прочности при сжатии
ГОСТ 24816-81 Материалы строительные. Метод определения сорбционной влажности
ГОСТ 25951-83 Пленка полиэтиленовая термоусадочная. Технические условия
ГОСТ 30108-94 Материалы и изделия строительные. Определение удельной эффективной активности естественных радионуклидов
ГОСТ 30244-94 Материалы строительные. Методы испытания на горючесть
3.1 Кирпич и камни силикатные (далее - изделия) изготовляют в форме прямоугольного параллелепипеда размерами, указанными в таблице 1.
Таблица 1
В миллиметрах
|
Вид изделия |
Длина |
Ширина |
Толщина |
|
Кирпич одинарный |
250 |
120 |
65 |
|
Камень |
250 |
120 |
138 |
|
Примечание - По согласованию с потребителем допускается выпускать утолщенный кирпич размерами 250´120´180 |
|||
3.2 Предельные отклонения от номинальных размеров и геометрической формы изделия не должны превышать, мм:
- по длине, толщине и ширине - ±2;
- по параллельности граней - +2.
3.3 Типы и размеры
3.3.1 Одинарный и утолщенный кирпич изготовляют полнотелым и пустотелым, камни только пустотелыми.
3.3.2 Размеры, форма и расположение отверстий в изделии, а также пустотность изделия приведены в приложении А.
3.3.3 Отверстия в изделиях должны быть несквозными и расположены перпендикулярно постели. Толщина наружных стенок пустотелых изделий должна быть не менее 10 мм.
Изделие может быть изготовлено другой пустотности, с отверстиями другой формы и расположения при условии соблюдения требований 4.1.2, 4.1.4, 4.1.8.
Поправка. ИУС 10-96 г.
3.3.4 По прочности изделия изготовляют марок: 75, 100, 125, 150, 175, 200, 250, 300.
3.3.5 По морозостойкости изделия изготовляют марок: F15, F25, F35, F50.
Марка по морозостойкости лицевых изделий должна быть не менее F25.
3.3.6 В зависимости от средней плотности полнотелые изделия подразделяют на:
- пористые со средней плотностью до 1500 кг/мм3;
- плотные свыше 1500 кг/м3.
3.3.7 В зависимости от назначения изделия изготовляют лицевыми и рядовыми.
3.3.8 Условное обозначение силикатных изделий должно состоять из названия, вида и назначения изделие, марки по прочности и морозостойкости, обозначения настоящего стандарта.
Примеры условных обозначений:
Кирпич силикатный одинарный рядовой марки по прочности 150, марки по морозостойкости F15:
Кирпич СОР-150/15 ГОСТ 379-95
Кирпич силикатный утолщенный рядовой марки по прочности 175, марки по морозостойкости F25:
Кирпич СУР-175/25 ГОСТ 379-95
Кирпич силикатный утолщенный лицевой марки по прочности 200, марки по морозостойкости F35:
Кирпич СУЛ-200/35 ГОСТ 379-95
Кирпич силикатный лицевой декоративный марки по прочности 150, марки по морозостойкости F25:
Кирпич СЛД-150/25 ГОСТ 379-95
Камень силикатный рядовой марки по прочности 125, марки по морозостойкости F15:
Камень СР-125/15 ГОСТ 379-95
Изделия должны изготовляться в соответствии с требованиями настоящего стандарта по технологическому регламенту, утвержденному предприятием-изготовителем.
4.1.1 Внешний вид
4.1.1.1 По фактуре лицевой поверхности лицевые изделия изготовляют гладкими с декоративным покрытием; по цвету - неокрашенными, имеющими цвет сырья, из которого они изготовлены, или окрашенными, - из окрашенной смеси или с поверхностной окраской лицевых граней.
4.1.1.2 Лицевые изделия должны иметь две лицевые поверхности: тычковую и ложковую.
По согласованию с потребителем допускается выпускать изделия с одной лицевой поверхностью.
4.1.1.3 Поверхность граней изделия должна быть плоской, ребра - прямолинейными.
Допускается выпускать лицевые изделия с закругленными вертикальными ребрами радиусом не более 6 мм.
4.1.1.4 Цвет (оттенок цвета) лицевых изделий должен соответствовать образцу-эталону.
Пятна на лицевой поверхности изделий не допускаются.
4.1.1.5 На рядовом изделии не допускаются дефекты внешнего вида, размеры и количество которых превышают указанные в таблице 2.
Таблица 2
|
Вид дефекта |
Значение |
|
1 Отбитости углов глубиной от 10 до 15 мм, шт. |
3 |
|
2 Отбитости притупленности ребер глубиной от 5 до 10 мм, шт. |
3 |
|
3 Шероховатости или срыв грани глубиной, мм |
5 |
|
4 Трещины на всю толщину изделия протяженностью по постели до 40 мм, шт. |
1 |
4.1.1.6. Отбитости и притупленности углов и ребер, шероховатости, трещины и другие повреждения на лицевых поверхностях готовых изделий не допускаются.
4.1.1.7 Проколы постели пустотелых изделий размером более 10 мм, а также дефекты изделий (вздутие и шелушение поверхности, увеличение объема, наличие сетки мелких трещин от непогасившейся силикатной смеси) не допускаются.
4.1.1.8 В рядовом изделии не допускается наличие в изломе или на поверхности глины, песка, извести и посторонних включений размером свыше 5 мм в количестве более 3.
Для лицевых изделий наличие указанных включений на поверхности не допускаются, в изломе допускается не более 3.
4.1.1.9 Количество половника в партии должно быть не более 5 % для рядовых изделий, 2 % для лицевых изделий.
4.1.2 Марку камня по прочности устанавливают по пределу прочности при сжатии, а кирпича - по значению пределов прочности при сжатии и изгибе, указанных в таблице 3.
Таблица 3
В мегапаскалях (кгс/см2)
|
Марка изделия |
Предел прочности, не менее |
|||||
|
при сжатии |
при изгибе |
|||||
|
всех изделий |
Одинарного и утолщенного полнотелого кирпича |
утолщенного пустотелого кирпича |
||||
|
средний для пяти образцов |
наименьший из пяти значений |
средний для пяти образцов |
наименьший из пяти значений |
средний для пяти образцов |
наименьший из пяти значений |
|
|
300 |
30,0 (300) |
25,0 (250) |
4,0 (40) |
2,7 (27) |
2,4 (24) |
1,8 (18) |
|
250 |
25,0 (250) |
20,0 (200) |
3,5 (35) |
2,3 (23) |
2,0 (20) |
1,6 (16) |
|
200 |
20,0 (200) |
15,0 (150) |
3,2 (32) |
2,1 (21) |
1,8 (18) |
1,3 (13) |
|
175 |
17,5 (175) |
13,5 (135) |
3,0 (30) |
2,0 (20) |
1,6 (16) |
1,2 (12) |
|
150 |
15,0 (150) |
12,5 (125) |
2,7 (27) |
1,8 (18) |
1,5 (15) |
1,1 (11) |
|
125 |
12,5 (125) |
10,0 (100) |
2,4 (24) |
1,6 (16) |
1,2 (12) |
0,9 (9) |
|
100 |
10,0 (100) |
7,5 (75) |
2,0 (20) |
1,3 (13) |
1,0 (10) |
0,7 (7) |
|
75 |
7,5 (75) |
5,0 (50) |
1,6 (16) |
1,1 (11) |
0,8 (8) |
0,5 (5) |
|
Примечания: 1 Предел прочности при изгибе определяют по фактической площади изделия без вычета площади пустот. 2 Марка по прочности лицевого кирпича должна быть не менее 125 лицевых камней - 100. |
||||||
4.1.3 Прочность сцепления декоративного покрытия с поверхностью лицевых изделий должна быть не менее 0,6 МПа (6 кгс/см2).
4.1.4 За марку по морозостойкости принимают число циклов попеременного замораживания и оттаивания, при которых в изделиях отсутствуют признаки видимых повреждений (шелушение, расслоение, выкрашивание и др.), а снижение прочности при сжатии не превышает 25 % для рядовых и 20 % для лицевых изделий.
Прочность сцепления декоративного покрытия с поверхностью изделия после испытания на морозостойкость должна быть не менее 0,6 МПа.
4.1.5 Водопоглощение изделий должно быть не менее 6 %.
4.1.6 Масса утолщенного кирпича в высушенном состоянии должна быть не более 4,3 кг.
По согласованию предприятия-изготовителя с потребителем, отраженному в договоре на поставку, допускается изготовлять утолщенный полнотелый кирпич массой более 4,3 кг.
4.1.7 Изделия относят к группе негорючих строительных материалов по ГОСТ 30244.
4.1.8 Изделия, предназначенные для кладки наружных стен зданий и сооружений, должны подвергаться испытанию на теплопроводность в соответствии с 6.13.
4.1.9 Удельная эффективная активность естественных радионуклидов в изделии должна быть не более 370 Бк/кг.
4.2.1 Материалы, применяемые при изготовлении изделий, должны соответствовать требованиям действующих нормативных и технических документов на эти материалы и обеспечивать получение изделий заданных технических характеристик.
Перечень применяемых материалов приведен в приложении Б.
4 3.1 Изделия должны маркироваться в каждом штабеле (пакете) по одному в среднем ряду.
4.3.2 На изделие наносят несмываемой краской при помощи трафарета или штампа товарный знак предприятия-изготовителя.
4.3.3 Каждое грузовое место (пакет) должно иметь транспортную маркировку по ГОСТ 14192.
5.1 Изделия должны быть приняты техническим контролем предприятия-изготовителя.
5.2 Изделия принимают партиями. Объем партии изделий устанавливают в количестве не более выработки одного автоклава за цикл тепловой обработки.
Партия должна состоять из изделий одного вида, одной марки по прочности и морозостойкости.
5.3 Для проверки соответствия изделий требованиям настоящего стандарта проводят приемо-сдаточные и периодические испытания.
Приемо-сдаточные испытания осуществляют по следующим показателям:
- внешний вид (наличие дефектов внешнего вида);
- размеры и правильность формы;
- наличие включений в изломе и на поверхности;
- наличие проколов и дефектов от непогасившейся смеси;
- цвет (оттенок цвета);
- масса изделия;
- предел прочности при сжатии;
- предел прочности при изгибе для кирпичей марок 75 и 100.
5.4 Периодические испытания проводят не реже одного раза:
в месяц - для определения прочности сцепления декоративного покрытия с поверхностью изделия, предела прочности кирпичей при изгибе марок 125 и выше;
в квартал - для определения морозостойкости, водопоглощения, средней плотности изделий;
в год - для определения удельной эффективной активности естественных радионуклидов в изделии при отсутствии данных поставщика сырьевых материалов об удельной эффективной активности естественных радионуклидов в поставляемых материалах.
Периодические испытания проводят также при изменении сырьевых материалов.
Теплопроводность изделий определяют при постановке продукции на производство, а также при изменении применяемых материалов, размера и количества пустот.
5.5 Для проведения приемо-сдаточных и периодических испытаний образцы отбирают методом случайного отбора из разных мест партии в количестве, указанном в 5.6 и 5.7.
5.6 Приемку изделий по показателям внешнего вида проводят по двухступенчатому нормальному плану контроля в соответствии с требованиями ГОСТ 18242, при этом объем выборки, приемочные и браковочные числа должны соответствовать указанным в таблице 4.
Таблица 4
|
Объем партии изделий |
Ступени контроля |
Объем выборки |
Общий объем выборки |
Приемоч-ное число Ас |
Браковоч-ное число Rе |
Рядовые изделия |
|||||
|
501 - 1200 |
Первая |
20 |
20 |
3 |
7 |
|
1201 - 3200 |
Первая |
32 |
32 |
5 |
9 |
|
3201 - 10000 |
Первая |
50 |
50 |
7 |
11 |
|
10001 - 35000 |
Первая |
80 |
80 |
11 |
16 |
Лицевые изделия |
|||||
|
501 - 1200 |
Первая |
20 |
20 |
2 |
5 |
|
1201 - 3200 |
Первая |
32 |
32 |
3 |
7 |
|
3201 - 10000 |
Первая |
50 |
50 |
5 |
9 |
|
10001 - 35000 |
Первая |
80 |
80 |
7 |
11 |
Для контроля принимают приемочный уровень дефектности, равный 10 % для рядовых изделий и 6,5 % для лицевых изделий.
Партию принимают, если количество дефектных изделий в выборке для первой ступени меньше или равно приемочному числу Ас для первой ступени контроля.
Партию не принимают, если количество дефектных изделий больше или равно браковочному числу Rе для первой ступени контроля.
Если количество дефектных изделий в выборке для первой ступени контроля больше приемочного числа Ас, но меньше браковочного числа Rе, переходят к контролю второй ступени, для чего отбирают выборку такого же объема, как на первой ступени контроля.
Партию изделий принимают, если общее количество дефектных изделий в выборках первой и второй ступени меньше или равно приемочному числу Ас. Партию не принимают, если общее количество дефектных изделий в выборках первой и второй ступени равно или больше браковочного числа Rе для второй ступени контроля.
5.7 Для проведения приемочного контроля по другим показателям и периодических испытаний из выборки изделий, соответствующих требованиям настоящего стандарта по показателям внешнего вида, отбирают количество образцов в соответствии с таблицей 5.
Таблица 5
|
Наименование показателя |
Число образцов |
|
Размеры и правильность формы |
20 |
|
Наличие посторонних включений в изломе и на поверхности |
3 |
|
Цвет (оттенок цвета) |
10 |
|
Масса, водопоглощение |
3 |
|
Предел прочности при сжатии: |
|
|
камней |
5 |
|
кирпича |
10 (или 10 парных половинок) |
|
Предел прочности при изгибе кирпича |
5 |
|
Морозостойкость |
20 |
|
Прочность сцепления декоративного покрытия с поверхностью изделий |
3 |
5.8 Если при проверке размеров и правильности формы отобранных от партии изделий одно изделие не соответствует требованиям стандарта, партию принимают, если два - партия приемке не подлежит.
5.9 Если при испытаниях изделий по другим показателям, указанным в таблице 5, получены неудовлетворительные результаты, по этим показателям проводят повторные испытания удвоенного количества образцов, отобранных от этой партии.
Партию изделий принимают, если результаты повторных испытаний удовлетворяют требованиям стандарта, если не удовлетворяют то партия приемке не подлежит.
5.10 Каждая партия поставляемых изделий должна сопровождаться документом о качестве, в котором указывают:
- наименование предприятия-изготовителя и (или) его товарный знак;
- наименование изделия и его условное обозначение;
- номер и дату выдачи документа;
- номер партии и количество отгружаемых изделий;
- массу утолщенною кирпича;
- водопоглощение;
- предел прочности при изгибе для кирпича марок 75, 100;
- удельную эффективную активность естественных радионуклидов;
- прочность сцепления декоративного покрытия с поверхностью лицевых изделий;
- теплопроводность изделий;
- обозначение настоящего стандарта.
6.1 Размеры изделий, непараллельность граней, толщину наружных стенок, размеры проколов, длину трещин, глубину шероховатостей и срыва, глубину отбитостей углов и ребер измеряют с помощью линейки по ГОСТ 427, штангенциркуля по ГОСТ 166, угольника по ГОСТ 3749 с погрешностью измерения не более 1 мм.
6.2 Длину и ширину изделия измеряют в трех местах - по ребрам и середине постели, толщину - по середине тычка и ложка. За окончательный результат принимают разность наибольшего и наименьшего из измеренных значений.
6.3 Для определения непараллельности граней измеряют четыре ребра изделия по длине, ширине и толщине и вычисляют разность наибольшего и наименьшего из четырех измерений.
6.4 Глубину отбитости углов и ребер измеряют с помощью штангенглубиномера по ГОСТ 162 или угольника и линейки по перпендикуляру от вершины угла или ребра, образованного угольником до поврежденной поверхности.
6.5 Шероховатости и срывы поверхностей граней определяют измерением зазора между гранью изделия и ребром приложенной к ней металлической линейки.
6.6 Размер проколов определяют по наибольшему результату измерения.
6.7 Количество включений и их размер определяют на изломе одной из парных половинок.
6.8 Дефекты от непогасившейся силикатной массы определяют визуально.
6.9 Соответствие цвета (оттенка) окрашенных изделий образцам-эталонам проверяют сравнением их с двумя образцами-эталонами, из которых один окрашен в допустимо бледный, а другой - в допустимо насыщенный тон данного цвета. Изделия, окрашенные слабее образца-эталона бледного тона и сильнее образца-эталона насыщенного тона, приемке не подлежат. Сравнение с образцами-эталонами проводят на открытом воздухе при дневном свете на расстоянии 10 м от глаза контролера.
6.10 Предел прочности изделий при сжатии и изгибе определяют по ГОСТ 8462.
Допускается определять прочность при сжатии неразрушающим ультразвуковым методом в соответствии с ГОСТ 24332.
6.11 Морозостойкость, водопоглощение и среднюю плотность определяют по ГОСТ 7025.
6.12 Прочность сцепления декоративного покрытия с поверхностью лицевых изделий определяют путем отрыва металлической, снабженной петлей, пластинки толщиной 3 - 5 мм и размером 20´20 мм, приклеенной к отделочному покрытию. Пластинку приклеивают к покрытию изделия тонким слоем быстрополимеризующегося клея следующего состава (частей по массе):
1000 - эпоксидная смола;
10 - полиэтиленполиамин;
250 - портландцемент.
Перед отрывом по периметру пластины проводят надрез покрытия. Отрыв покрытия проводят не ранее чем через 2 сут после выдержки образцов при комнатной температуре.
Прочность сцепления Rсц в МПа (кгс/см2) определяют по формуле
(1)
где Р - разрушающая нагрузка, кгс;
F - площадь отрыва покрытия, см2.
Прочность сцепления отделочного покрытия с поверхностью изделия определяют как среднее арифметическое результатов трех определений.
6.13 Теплопроводность изделий в кладке по 6.7.1 ГОСТ 530-95.
Поправка ИУС 9-2003 г.
6.14 Среднюю плотность изделий определяют по ГОСТ 7025.
6.15 Удельную эффективную активность естественных радионуклидов определяют по ГОСТ 30108 на изделиях, уложенных в пакет с перекрестной перевязкой или в технологическом штабеле.
7.1 Силикатные изделия хранят технологическими штабелями на пропарочных вагонетках или на ровных, очищенных от мусора площадках с твердым покрытием, раздельно по видам и маркам, а лицевые изделия, кроме того, - раздельно по цвету и фактуре лицевой поверхности.
7.2 Изделия транспортируют транспортом всех видов в соответствии с Правилами перевозок грузов, действующими на данном виде транспорта, и требованиями документации по погрузке и креплению грузов, утвержденной в установленном порядке.
7.3 Транспортирование изделий осуществляют пакетами. Установку технологических штабелей на средства пакетирования проводят механизированно с использованием специальных двух- и четырехсторонних захватов. По согласованию с потребителем допускается транспортировать кирпич в непакетированном виде.
7.4 Погрузка изделий навалом (набрасыванием) и выгрузка их сбрасыванием не допускается.
7.5 Транспортирование изделий железнодорожным и водным транспортом осуществляют с использованием в качестве средств пакетирования поддонов со стяжками в соответствии с требованиями действующей нормативной или технической документации.
При транспортировании водным транспортом допускается по согласованию с потребителем использование поддонов типа ПОД 520´1030-075 по ГОСТ 18343 с последующей упаковкой пакетов металлической лентой по ГОСТ 3560, термоусадочной пленкой по ГОСТ 25951 или расширяющейся - по ГОСТ 10354.
Транспортирование изделий автомобильным транспортом осуществляется с использованием в качестве средств пакетирования скрепляющих устройств (съемных или стационарных) по ГОСТ 23421. Скрепление пакетов проводят в кузове автотранспорта.
Транспортирование лицевых изделий с декоративным покрытием осуществляют автомобильным или железнодорожным транспортом пакетами на поддонах типа ПОД 520´1030-075. При укладке на поддоны между лицевыми поверхностями прокладывают бумагу по ГОСТ 2228 или по ГОСТ 8273. При погрузке пакеты должны быть упакованы металлической лентой, термоусадочной или растягивающейся пленкой.
7.6 Транспортирование изделий в районы Крайнего Севера и труднодоступные районы - по ГОСТ 15846.
(рекомендуемое)
ВИДЫ ПУСТОТЕЛЫХ ИЗДЕЛИЙ

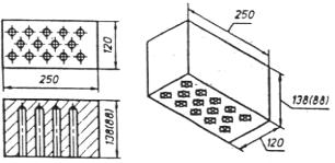
Рисунок А1 - Камень (кирпич) 14-пустотный (диаметр отверстий 30 - 32 мм, пустотность 28 – 31 %)

Рисунок А2 - Камень (кирпич) 11-пустотный (диаметр отверстий 27 - 32 мм, пустотность 22 – 25 %)

Рисунок А3 - Кирпич 3-пустотный (диаметр отверстий 52 мм, пустотностъ 15 %)
(рекомендуемое)
ПЕРЕЧЕНЬ МАТЕРИАЛОВ, ПРИМЕНЯЕМЫХ ПРИ
ПРОИЗВОДСТВЕ
СИЛИКАТНЫХ ИЗДЕЛИЙ
|
Наименование материала |
Нормативный документ |
|
1 Песок для производства силикатных изделий |
По действующим нормативным документам |
|
2 Известь строительная |
ГОСТ 9197-77 |
|
3 Белитовый (нефелиновый) шлам |
По действующим нормативным документам |
|
4 Золы уноса тепловых электростанций |
|
|
5 Мелкозернистая золошлаковая смесь |
|
|
6 Песок шлаковый |
|
|
7 Щелочеустойчивые пигменты |
|
|
8 Известесодержащие вяжущие |
По действующей технической документации |
|
9 Краска сухая поливинилбутирольная П-ВЛ, П-ВЛ-212, редоксайд, фталоциониновый зеленый, паропроницаемые эмали, эмали кремнийорганические КО-174 разных цветов, органосиликатные композиции и др. |
То же |
Ключевые слова: кирпич и камни силикатные, кладка, каменные армокаменные наружные и внутренние стены, здания и сооружения